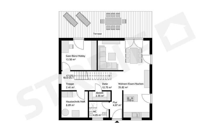
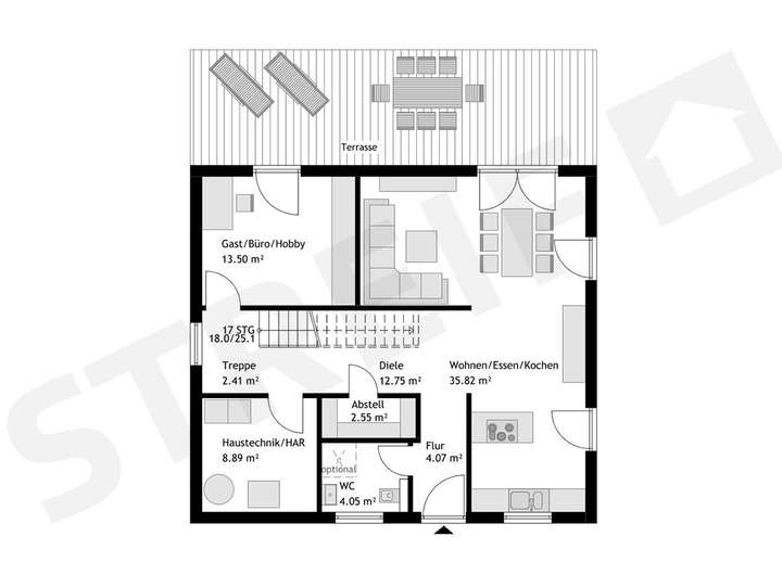
Im Erdgeschoss sind der große Wohn-/Ess-/ Kochbereich, ein Zusatzzimmer und ein optionales Duschbad die Highlights. Im Dachgeschoss gibt es zwei sehr große Kinderzimmer, einen Elternbereich mit Ankleide und ein herrliches Familienbad.
Exklusives Grundstück in Griesingen
89608 Griesingen
Die vollständige Adresse der Immobilie erhalten Sie vom Anbieter.
Auf Karte anzeigen
Die vollständige Adresse der Immobilie erhalten Sie vom Anbieter.
Finanzierungszertifikat
In nur zwei Minuten zu Ihrem persönlichen Finanzierungszertifkat.
Infos
| Haustyp | Einfamilienhaus |
|---|---|
| Etagenzahl | 1 |
| Wohnfläche ca. | 167 m2 |
| Grundstücksfläche | 535 m2 |
| Bezugsfrei ab | sofort |
| Zimmer | 5 |
| Schlafzimmer | 4 |
| Badezimmer | 1 |
| Garage/Stellplatz | Carport |
| Anzahl Garage/Stellplatz | 1 |
Kosten
| Kaufpreis |
548.000 € |
|---|---|
| Preis für Garage/Stellplatz | 10.000 € |
| Provision | Nein |
Finanzierungsrechner:
Kaufpreis:
600.000 €
Eigenkapital:
600.000 €
Monatliche Rate
0 €
Effektiver Jahreszins
0 %
Sollzinsbindung
10 Jahre
Bausubstanz & Energieausweis
| Baujahr | unbekannt |
|---|---|
| Bauphase | Haus in Planung (projektiert) |
| Qualität der Austattung | Gehoben |
| Heizungsart | Wärmepumpe |
| Energieausweis | laut Gesetz nicht erforderlich |
Beschreibung des Objekts
Ausstattung
Ihr STREIF Haus wird im KfW-Standard ausgeführt. KfW-Effizienzhaus inkl. Haustechnik aus dem STREIF-Programm in der Ausbaustufe FF+ (Fast-Fertig+) exklusive einer Fundamentplatte.
■ Rohbau (geschlossene Gebäudehülle) mit Fenstern, Haustür, Dacheindeckung
■ Außenfassade inkl. Außenputz, vor Ort komplett fertiggestellt
■ Komplette Blechner-/Spenglerarbeiten
■ lnnen-/Außenwände wärme- und schallgedämmt und mit Gipsfaserplatten geschlossen
■ Geschosstreppe (außer Bungalow)
■ Decken wärme- und schallgedämmt und mit Gipskarton Bauplatten geschlossen
■ Elektroinstallation, einschließlich erforderlichem Zählerschrank und Inbetriebnahme
■ Heizungsanlage inkl. Inbetriebnahme
■ Innenfensterbänke Kunststeinbänke (Gussmarmorbänke) inkl. Einbau
■ Estrich
■ Sanitärräume mit Wand- und Bodenfliesen
■ Sanitärräume mit Sanitärobjekten
■ Inklusive Gutschein für eine Designküche.
Die Innentüren sowie Wand-, Decken- und Bodenbeläge der übrigen Räume sind Eigenleistungen des Bauherren.
STREIF Frischluft-Wärmepumpen-Technologie - inklusive
- Heizen mit frischer Außenluft
- Kein Gasanschluss, kein Öl- oder Pelletlagerraum
- Keine Heizkörper
- Wärmetauscher mit bis zu 85% Wärmerückgewinnung
Die dargestellten Bilder können Sonderausstattungen beinhalten, die nicht im Preis enthalten sind!
zzgl. Ortüblicher Baunebenkosten
Selbstverständlich können wir Ihr Haus auch schlüsselfertig / bezugsfertig errichten.
■ Bodenbeläge, Sockelleisten verlegt
■ Maler- und Tapezierarbeiten
■ Innentüren inkl. Einbau
Lage
Das Grundstück befindet sich in einem gewachsenen und ebenso gesuchten Wohngebiet am Ortstrand von Griesingen. In die freie Natur sind es nur wenige Meter. Aufgrund dieser idealen Wohnlage bietet sich diese Immobilie als herrlicher Rückzugs- und Wohlfühlort an.
Ländlich geprägt und gleichzeitig mit einer guten Infrastruktur ausgestattet, hat Ihnen Griesingen einiges zu bieten. Die Gemeinde Griesingen verfügt über einen Kindergarten, eine Grundschule und zahlreiche Vereine. Sie liegt nur wenige Minuten von Ehingen als auch von Laupheim entfernt und ist daher bei Immobiliensuchenden auch aufgrund der optimalen Anbindungen sehr gefragt. Die nahe liegende Stadt Ehingen selbst verfügt über eine sehr gute Infrastruktur. Grundschule, Hauptschule, Realschule als auch Gymnasium befinden sich ebenso vor Ort wie zahlreiche Kindergärten, Freizeitmöglichkeiten und Geschäfte des täglichen Bedarfs.
Sonstige Angaben
INDIVIDUELLE ARCHITEKTUR
-persönliche Architekten-Planung
-individuelle Grundrissgestaltung ohne Mehrpreis
UNSERE BAUWEISE
-mehrschichtiger diffusionsvariabler Wandaufbau bis U-Wert 0,10 W / m² * K - im Gefach (zwischen den Stielen) gemessen
-hochstabile Innenwand und Konstruktion
-Fenster gesamt: Uw-Wert 0,81 W/m² * K
Glas der Fenster: Ug-Wert 0,6 W/m² * K
-Haustür ab UD-Wert 0,64 W/m² * K
-30 Jahre Garantie auf statisches Tragwerk
-ausschließlich handgemacht in Deutschland
Grundriss
Broschüre Platzwunder 6 EG 344
>
>
Broschüre Platzwunder 6 OG 345
>
>
Adresse
89608 Griesingen
Interessante Orte
Preis- und Lageinformationen
Preistrend für Bestandsimmobilien in Griesingen