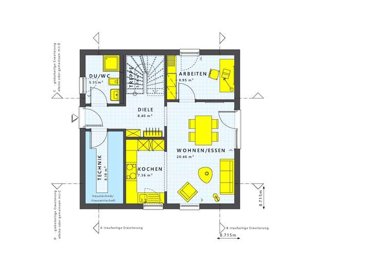
Das Einfamilienhaus von LivingHaus in Jembke ist ein wahres Meisterwerk der individuellen Gestaltung. Mit 124 Quadratmetern Wohnfläche auf einem großzügigen Grundstück von 670 Quadratmetern und einer durchdachten Raumaufteilung bietet es dir ein Zuhause, das genau auf deine Wünsche und Bedürfnisse zugeschnitten ist. Das klassische Satteldach mit einer Neigung von 38 Grad verleiht dem Haus nicht nur einen charmanten Charakter, sondern sorgt auch für eine optimale Raumausnutzung im Obergeschoss. Die bodentiefen Fenster lassen viel Licht herein und schaffen eine helle, einladende Atmosphäre in deinen Wohnräumen. Der Erker oder Giebel erweitert deinen Wohnbereich und schafft zusätzliche Platzmöglichkeiten für entspannte Stunden mit der Familie oder Freunden.
Zusätzlich zu diesem architektonischen Highlight profitierst du von einer Vielzahl an exklusiven Leistungen, die LivingHaus anbietet. Die Traumküche wird perfekt auf deinen Grundriss abgestimmt und kommt mit modernster Technik sowie cleveren Stauraumlösungen - ideal für leidenschaftliche Köche. Um den Bauprozess so angenehm wie möglich zu gestalten, hast du mit dem LivingHaus Bau-Cockpit stets den Überblick über dein Projekt. Hier kannst du alles digital einsehen, vom Zeitplan bis hin zu Dokumenten.
Mit I-KON, dem intelligenten Baukonzept von LivingHaus, baust du nicht nur nachhaltig, sondern auch energieeffizient. Dein neues Zuhause wird als Effizienzhaus 55 konzipiert, sodass du von geringen Energiekosten profitierst. Um deine Finanzierung zu erleichtern, stehen dir attraktive Möglichkeiten wie das Zuhause-Darlehen zur Verfügung, das dir bis zu 250.000 Euro zu besonders günstigen Konditionen bietet. Das Zuhause-Paket sorgt dafür, dass dein Haus mit einer hochwertigen Grundausstattung versehen ist - moderne Böden, edle Türen und stilvolle Sanitäranlagen sind nur einige der Annehmlichkeiten.
Wenn du selbst Hand anlegen möchtest, bietet das DIY-Ausbau-Coaching die Möglichkeit, unter professioneller Anleitung deinen Innenausbau selbst zu gestalten. In nur drei Tagen wirst du zum Profi in deinem eigenen Zuhause! Mit LivingHaus erhältst du ein durchdachtes Gesamtkonzept von der Finanzierung über die Planung bis zur individuellen Ausgestaltung, damit dein Traumhaus Wirklichkeit wird.
Gestalte dein individuelles Traumhaus mit LivingHaus in Jembke
Am Hagen 2,
38477 Jembke
Auf Karte anzeigen
Finanzierungszertifikat
In nur zwei Minuten zu Ihrem persönlichen Finanzierungszertifkat.
Infos
| Haustyp | Einfamilienhaus |
|---|---|
| Etagenzahl | 2 |
| Wohnfläche ca. | 124 m2 |
| Nutzfläche | 124 m2 |
| Grundstücksfläche | 670 m2 |
| Zimmer | 5 |
| Schlafzimmer | 3 |
| Badezimmer | 1 |
Kosten
| Kaufpreis |
467.768 € |
|---|
Finanzierungsrechner:
Kaufpreis:
600.000 €
Eigenkapital:
600.000 €
Monatliche Rate
0 €
Effektiver Jahreszins
0 %
Sollzinsbindung
10 Jahre
Bausubstanz & Energieausweis
| Baujahr | 2026 |
|---|---|
| Bauphase | Haus in Planung (projektiert) |
| Qualität der Austattung | Gehoben |
| Energieausweis | liegt vor |
| Energieausweistyp | Bedarfsausweis |
| Energieverbrauchskennwert | 18,0 kWh/(m²*a) |
| Energieeffizienzklasse | A+ |
18,0
kWh/(m²*a)
Energieeffizienzklasse A+
- A+
- A
- B
- C
- D
- E
- F
- G
- H
- 0
- 25
- 50
- 75
- 100
- 125
- 150
- 175
- 200
- 225
- >250
Beschreibung des Objekts
Ausstattung
In deinem neuen Zuhause von LivingHaus erwarten dich zahlreiche hochwertige Ausstattungsmerkmale. Du erhältst eine moderne Traumküche, die exakt auf deinen Grundriss zugeschnitten ist und mit neuester Technik sowie ausreichend Stauraum aufwartet. Im Zuhause-Paket sind stilvolle Böden, edle Türen und hochwertige Sanitäranlagen bereits enthalten.
Zudem profitierst du von einer 18-monatigen Festpreisgarantie, die ab dem Tag der Auftragsbestätigung gilt. Fällt der Baupreisindex, sinkt auch der Preis für dein Haus. Zu den enthaltenen Versicherungen zählen die Bauherrenhaftpflicht sowie die Bauleistungs- und Wohngebäudeversicherung.
Die hochmoderne Bauantragsplanung und ein Bodengutachten sind ebenfalls Teil des Leistungspakets. Dein Haus wird mit einer vorkonfigurierten I-KON-Lösung ausgestattet, die eine integrierte PV-Anlage und eine moderne Wärmepumpentechnik umfasst. Eine komplette Ausstattung mit Fliesen für das gesamte Erdgeschoss sowie bodengleichen Duschen mit Echtglasabtrennung sind ebenfalls garantiert.
Darüber hinaus sorgen aluminiumgeschäumte Rollläden für optimalen Hitzeschutz im Sommer und eine hervorragende Wärmedämmung im Winter. Mit einem hohen Vorfertigungsgrad wird der Bauprozess besonders effizient gestaltet. Du hast die Möglichkeit, Baustrom- und Bauwasseranschlüsse einfach über LivingHaus zu organisieren. So kannst du dir sicher sein, dass du dein "Wie ich es will Fertighaus" erhältst.
Lage
Jembke bietet eine hervorragende Lebensqualität und zeichnet sich durch eine familienfreundliche Umgebung aus. In der Nähe findest du mehrere Kindergärten, wie den Kindergarten Jembke, der für seine liebevolle Betreuung und die vielfältigen Spielmöglichkeiten bekannt ist. Für ältere Kinder gibt es die Grundschule Jembke, die mit guten Bewertungen punktet und ein breites Bildungsangebot bietet.
Einkaufsmöglichkeiten sind ebenfalls gut erreichbar. Der nahegelegene Supermarkt bietet alles für den täglichen Bedarf und hat durchweg positive Kundenbewertungen. Für weitere Einkaufsmöglichkeiten kannst du in die nahegelegene Stadt Wolfsburg fahren, die nur wenige Kilometer entfernt ist und eine Vielzahl von Geschäften, Boutiquen und Restaurants bietet.
Ärzte und medizinische Einrichtungen sind in der Umgebung ebenfalls schnell erreichbar, sodass du jederzeit auf eine umfassende Gesundheitsversorgung zugreifen kannst. Freizeitangebote sind zahlreich vorhanden: Die umliegenden Wälder und Felder laden zu ausgedehnten Spaziergängen und Fahrradtouren ein, während die Nähe zu Wolfsburg dir kulturelle Highlights wie Museen und Veranstaltungen bietet.
Die Anbindung an den öffentlichen Nahverkehr ist durch Buslinien gegeben, die regelmäßig in die umliegenden Städte fahren. Auch die Autobahn ist schnell erreicht, was Pendlern den Arbeitsweg erleichtert. Jembke bietet somit die perfekte Kombination aus ländlichem Leben und urbaner Annehmlichkeiten, ideal für Familien, Naturliebhaber und Berufspendler.
Adresse
Am Hagen 2, 38477 Jembke
Interessante Orte
Preis- und Lageinformationen
Preistrend für Bestandsimmobilien in Jembke