Traumhaus in ruhiger Siedlungslage von Isny-Neutrauchburg.
Einliegerwohnung:
Im Erdgeschoß des Hauses ist eine geräumige 3 - Zimmer - Wohnung mit Bad, Küche und großer Terrasse sowie weitere Nebenräume wie Keller, Heizung und Garagen. Die EG-Wohnung hat eine separate Gas-Zentralheizung. Die Einliegerwohnung kann sehr gut vermietet werden. Diese wurde im Jahr 2018 saniert.
Hauptwohnung:
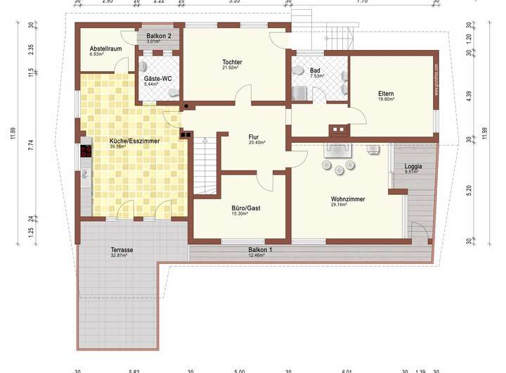
Die Hauptwohnung im Obergeschoß, erreichbar durch das Treppenhaus im Eingangsbereich, ist aufgeteilt in Diele, eine offene, hochwertige Wohnküche mit Esszimmer und Abstellkammer/Speis, Gäste-WC und Bad, sowie einem großen Wohnzimmer mit offenem Kamin und 3 Schlafzimmer.
Ein Wintergarten, nach Süden ausgerichtet wurde nachträglich eingebaut. Große Balkone und Terrassen geben Freiraum mit herrlicher Sicht. Das Grundbaujahr ist 1971. Im Jahr 2018 wurde die Hauptwohnung komplett kernsaniert.
Es sind 2 Kamine vorhanden. In beiden Bädern ist jeweils ein Anschluss für eine Waschmaschine. Im Garten befinden sich ein Holz-Blockhaus und ein weiteres Gartenhaus im rückwärtigen Bereich.
Für weiteren Stauraum sorgt ein großer Keller mit einigen Kellerräumen, Abstellräume und ein großer Dachbodenraum.
Eine Doppelgarage für 3 PKW und PKW-Stellplätze sind in der Nähe des Eingangs.
Das Highlight des Hauses ist der wunderschöne, sehr großzügig angelegte Garten.
Ein Pool und mehrere Sitzecken und Terrassen laden zum gemütlichen Verweilen ein.
Saniertes Einfamilienhaus mit ELW in bester Lage von Isny-Neutrauchburg, Bergblick
88316 Isny im Allgäu
Die vollständige Adresse der Immobilie erhalten Sie vom Anbieter.
Auf Karte anzeigen
Die vollständige Adresse der Immobilie erhalten Sie vom Anbieter.
Finanzierungszertifikat
In nur zwei Minuten zu Ihrem persönlichen Finanzierungszertifkat.
Infos
| Haustyp | Einfamilienhaus |
|---|---|
| Etagenzahl | 2 |
| Wohnfläche ca. | 288 m2 |
| Nutzfläche | 110 m2 |
| Grundstücksfläche | 1.402 m2 |
| Bezugsfrei ab | nach Absprache |
| Zimmer | 8 |
| Badezimmer | 2 |
| Garage/Stellplatz | Außenstellplatz |
| Anzahl Garage/Stellplatz | 7 |
Kosten
| Kaufpreis |
1.080.000 € |
|---|---|
| Provision |
3,57 % inkl. MwSt. |
Finanzierungsrechner:
Kaufpreis:
600.000 €
Eigenkapital:
600.000 €
Monatliche Rate
0 €
Effektiver Jahreszins
0 %
Sollzinsbindung
10 Jahre
Bausubstanz & Energieausweis
| Baujahr | 1971 |
|---|---|
| Objektzustand | Saniert |
| Qualität der Austattung | Gehoben |
| Heizungsart | Zentralheizung |
| Wesentliche Energieträger | Gas |
| Energieausweis | liegt vor |
| Energieausweistyp | Bedarfsausweis |
| Energieverbrauchskennwert | 218,2 kWh/(m²*a) |
| Energieeffizienzklasse | G |
218,2
kWh/(m²*a)
Energieeffizienzklasse G
- A+
- A
- B
- C
- D
- E
- F
- G
- H
- 0
- 25
- 50
- 75
- 100
- 125
- 150
- 175
- 200
- 225
- >250
Beschreibung des Objekts
Ausstattung
- Gasheizung in der Hauptwohnung von 2022
- Fenster in der Hauptwohnung sind 3-fach verglast
- Fußbodenheizung in der Hauptwohnung
- 2 Einbauküchen im Kaufpreis enthalten (Küche in Hauptwohnung mit freistehender Kochinsel)
- Pool im Garten
- 2 Gartenhäuser
- 3 Terrassen
- Gewächshaus
- Decke ist gedämmt
- Sanierung 2018
- Bergsicht vom Balkon
- Wintergarten
- Kaminofen
Lage
Isny, im württembergischen Allgäu gelegen, ist bekannt als lebendige Stadt mit Geschichte, als Stadt zum Leben und Arbeiten, ein idealer Ort für Urlaub, Erholung und Kur mit dem Prädikat "Heilklimatischer Kurort". Isny bietet ein stilvolles, hochkarätiges und doch traditionelles Kulturprogramm. Die Naturlandschaft und Lage nahe dem Bodensee und den Alpen am Dreiländereck Deutschland - Österreich - Schweiz bietet einen hohen Wohn- und Freizeitwert. Isny ist außerdem eine der sonnenreichsten Städte in Deutschland mit sauberer Luft und nebelarmem Reizklima.
In Isny im Allgäu im heilkimatischen Luftkurort Neutrauchburg befindet sich dieses sehr geräumige Wohnhaus mit Einliegerwohnung (ca. 93 m²) in bester, ruhiger Wohnlage. Eine sehr schöne Sicht nach Süden und Westen, mit leichter Hanglage auf sehr großem Grundstück (1402 m²) werden auch Sie begeistern.
Sonstige Angaben
Bezug nach Absprache, ca. Anfang 2027
Grundriss
Grundriss OG
>
>
Grundriss EG
>
>
Adresse
88316 Isny im Allgäu
Interessante Orte
Preis- und Lageinformationen
Preistrend für Bestandsimmobilien in Isny im Allgäu