DIE FLURSTÜCKE WERDEN NUR IM PAKET VERKAUFT!
ES WIRD AUSSCHLIEßLICH UM SCHRIFTLICHE KONTAKTAUFNAHME PER MAIL GEBETEN!
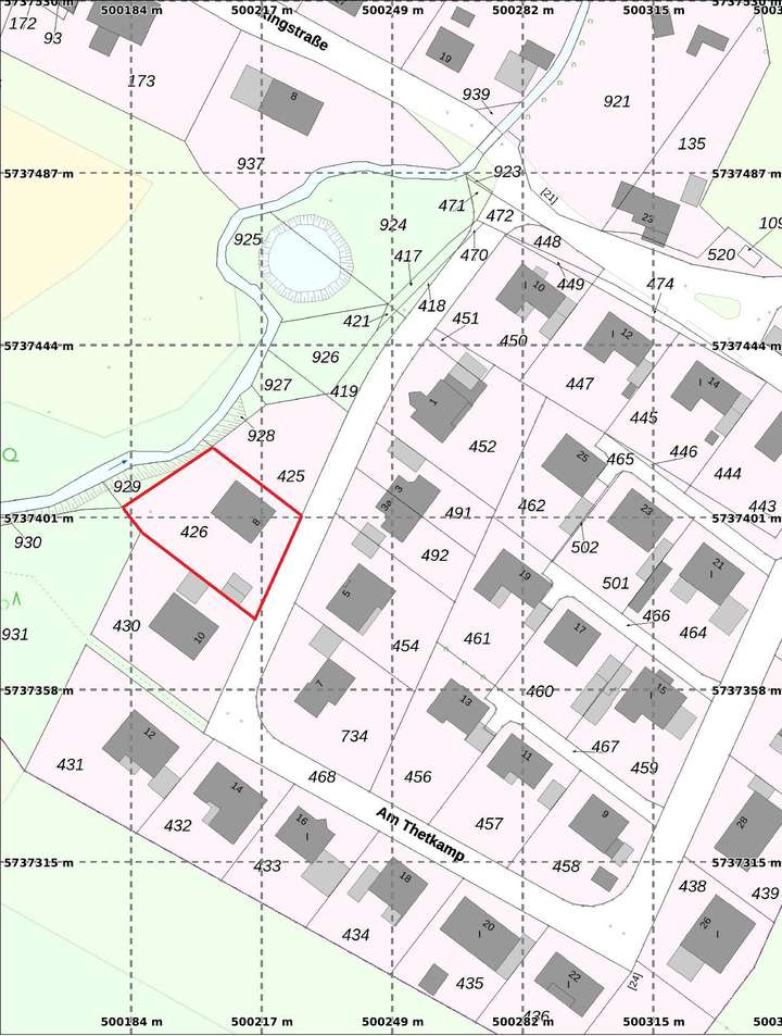
Das Flurstück 426, Am Thetkamp 8, bemisst eine Größe von 974 m² und ist mit einem Einfamilienhaus auf Erbbaurecht bebaut.
Der Erbbaurechtsvertrag besteht noch 50 Jahre und endet am 14.11.2075.
Der Erbbauzins beträgt ca. 320,00 EUR halbjährlich. Im Erbbaurechtsvertrag wurde ein 2/3 Heimfall zum gemeinen Wert vereinbart.
Das Flurstück 929, Am Thetkamp, hat eine Größe von 131 m² und ist als Land-/ und Forstwirtschaftsfläche laut Bodenrichtwert 2024 ausgewiesen. Laut Grundbuch handelt es sich um eine Waldfläche.
Der Verkauf erfolgt im Bieterverfahren zum Höchstgebot.
Zwei Flurstücke, teilweise mit Erbbaurecht, in Erpentrup!
Am Thetkamp 8,
33014 Bad Driburg
Auf Karte anzeigen
Finanzierungszertifikat
In nur zwei Minuten zu Ihrem persönlichen Finanzierungszertifkat.
Infos
| Vermarktungsart | Kaufen |
|---|---|
| Grundstücksfläche | 1.105 m2 |
| Verfügbar ab | sofort |
Kosten
| Miete pro Jahr |
35.000 € |
|---|---|
| Provision |
5,95 inkl. MWSt. Die Maklerprovision ist nach not. Beurkundung des Kaufvertrags zur Zahlung fällig. Der Verkauf erfolgt im Bieterverfahren zum Höchstgebot. |
Finanzierungsrechner:
Kaufpreis:
600.000 €
Eigenkapital:
600.000 €
Monatliche Rate
0 €
Effektiver Jahreszins
0 %
Sollzinsbindung
10 Jahre
Beschreibung des Objekts
Lage
Die Grundstücke liegt in Erpentrup, ein Ortsteil von Bad Driburg zugehörig zum Kreis Höxter in Nordrhein-Westfalen.
Die nächste Bushaltestelle, mit den Linien 578, R75 und R76, liegt ca. 350 m und ca. 5 Gehminuten entfernt.
Bad Driburg, die nächstgrößere Stadt, ist ein staatlich anerkanntes Heilbad. Dort findet man von diversen Einkaufsmöglichkeiten, Restaurants bis hin zu medizinischer Versorgung alles um den täglichen Bedarf zu decken. Es gibt ein
Freizeitbad, ein Hallenbad und eine Therme mit Heilwasser. Die Gegend ist bei Radlern und Wanderer sehr beliebt.
Sonstige Angaben
Die Maklerprovision ist nach notarieller Beurkundung des Kaufvertrags zur Zahlung fällig.
Nach Kontaktanfrage erhalten Sie unseren Hinweis auf Datenschutz. Ihre Anfrage/Ihr Anliegen wird nach Freigabe der Datenschutzerklärung bearbeitet.
Der Verkauf erfolgt im Bieterverfahren zum Höchstgebot.
Um zeitliche Verzögerungen zu vermeiden, bitten wir Sie, bei der Exposé-Anforderung Ihre vollständige Anschrift mit Telefonnummer und E-Mail-Adresse anzugeben. Es wird ausschließlich um schriftliche Kontaktaufnahme gebeten!
Alle Angaben basieren ausschließlich auf den Auskünften, die von den Auftraggebern an uns weitergegeben wurden. Wir übernehmen dafür keine Gewähr!
Eine Besichtigung erfolgt gerne nach Terminvereinbarung mit uns. Der Maklervertrag mit uns kommt durch Inanspruchnahme unserer Maklertätigkeit zu Stande.
Sollte Ihnen das nachgewiesene Objekt bereits bekannt sein, bitten wir Sie, uns dies unverzüglich mitzuteilen.
Grundriss
Flurstücke 426 & 929
>
>
Flurstück 426
>
>
Flurstück 929
>
>