Kapitalanlage und/oder Selbstbezug? Dieses sanierte 1-2 Familienhaus bietet viele Möglichkeiten der Aufteilung. Im EG und OG ist bereits eine Küche und ein Bad sowie im EG ein weiteres Gäste -WC installiert. Durch die umfangreiche Sanierung vor 10 Jahren können Sie nach kleineren Renovierungen einziehen. Auf ca. 100 m² im EG und ca. 66 m² im OG ist genug Platz für die große Familie oder auch Mehrgenerationenwohnen. Vielleicht vermieten Sie ja auch einen Teil und reduzieren somit die monatliche Belastung. Vieles ist hier möglich. Das Haus ist massiv errichtet und bietet als Abstellfläche den 60 m² Keller, in dem auch die 2015/2016 ausgewechselte Haustechnik verbaut ist. Über eine ausziehbare Treppe erreicht man einen großen Speicher. Dieser ist gedämmt zur obersten Geschossdecke (Kaltdach). Mehrere PKW-Stellplätze vorm Haus sind vorhanden. Platz ist auf dem ca. 582 m³ großen und ebenen Grundstück für Ihre Ideen. Die perfekte Lage, ein wenig außerhalb vom Ortskern. Nach Ihrer Anfrage erhalten Sie das umfangreiche Exposé zum Download mit allen Bildern zur Ansicht.
HEMING-IMMOBILIEN - 2015 saniertes Haus mit großem Grundstück in Ortsrandlage
67583 Guntersblum
Die vollständige Adresse der Immobilie erhalten Sie vom Anbieter.
Auf Karte anzeigen
Die vollständige Adresse der Immobilie erhalten Sie vom Anbieter.

Finanzierungszertifikat
In nur zwei Minuten zu Ihrem persönlichen Finanzierungszertifkat.
Infos
Haustyp | Einfamilienhaus |
---|---|
Wohnfläche ca. | 166 m2 |
Nutzfläche | 60,39 m2 |
Grundstücksfläche | 582 m2 |
Bezugsfrei ab | sofort |
Zimmer | 7 |
Schlafzimmer | 5 |
Badezimmer | 3 |
Kosten
Kaufpreis |
450.000 € |
---|---|
Provision |
3,57 % vom Kaufpreis inkl. gesetzlicher MwSt. |
Finanzierungsrechner:
Kaufpreis:
600.000 €
Eigenkapital:
600.000 €
Monatliche Rate
0 €
Effektiver Jahreszins
0 %
Sollzinsbindung
10 Jahre
Bausubstanz & Energieausweis
Baujahr | 1951 |
---|---|
Objektzustand | Saniert |
Qualität der Austattung | Normal |
Heizungsart | Zentralheizung |
Wesentliche Energieträger | Gas |
Energieausweis | liegt vor |
Energieausweistyp | Verbrauchsausweis |
Energieverbrauchskennwert | 145,6 kWh/(m²*a) |
Energieeffizienzklasse | E |
145,6
kWh/(m²*a)
Energieeffizienzklasse E
- A+
- A
- B
- C
- D
- E
- F
- G
- H
- 0
- 25
- 50
- 75
- 100
- 125
- 150
- 175
- 200
- 225
- >250
Beschreibung des Objekts
Ausstattung
Alle im Exposé gemachten Angaben sind Angaben vom Eigentümer. Das Anwesen wurde 2015/2016 größten Teil saniert: - Kontrolle und Verstärkung Dachgebälk - Dämmung Speicherboden - Strom-Wasser-Abwasserleitungen - Heizung Gaszentral mit Warmwasser - je Wohneinheit extra Strom-Wasser-Heizungszähler - Bodenbelege, Wände renoviert - Bad erneuert in allen 3 Wohneinheiten - Balkon hinten geschlossen und Dach über Eingangsbereich errichtet - Terrasse vorne geschlossen als Windfang/Zimmer - Keller hergerichtet - teilweise die Sockelabdichtung hergestellt weitere Ausstattung: - zweiter Kamin zur Holzbefeuerung - Kachelofen WE 1 - alte Holztreppe als Aufgang ins OG (unter PVC-Verkleidung noch vorhanden) - komplette Unterkellerung - Haustechnik im Keller verbaut - 3 Anbauküchen können nach Anfrage übernommen werden
Lage
Guntersblum gehört zum Landkreis Mainz-Bingen und liegt umgeben von Weinbergen zwischen Mainz und Worms. Trotz der idyllischen Lage ist die Verkehrsanbindung an die B9 sehr gut. Auch öffentliche Verkehrsmittel fahren hier regelmäßig. Alle Geschäfte des täglichen Bedarfs, Apotheke und Ärzte finden Sie im Ort. In diversen Kindertagesstätten und in der Grundschule sind auch die Kleinsten gut aufgehoben. Weiterführende Schulen finden Sie in Oppenheim und Worms. Viele urige Weinwirtschaften und Weinfeste laden zum gemütlichen Beisammensein ein. 450 m zum Kindergarten 450 m zur Grundschule 600 m zu den nächsten Supermärkten 2 Minuten zum Bahnhof
Sonstige Angaben
Keine Immobilie ist wie die andere und jede hat Ihre eigene Geschichte. Aus diesem Grund unterstützen wir Sie gerne in allen Fragen rund um den Kauf Ihrer Immobilie und übernehmen selbstverständlich alle organisatorischen Aufgaben, die eine Vermarktung mit sich bringt. Unser kompetentes Team verfügt über langjährige Markterfahrung und steht Ihnen in allen Entscheidungsfragen zur Seite. Gerne helfen wir Ihnen dabei, die passende Immobilie zu finden. Durch die Erstellung einer umfassenden Bedürfnisanalyse erkennen wir Ihr individuelles Suchprofil, auf dessen Basis wir Ihnen die passende Immobilie offerieren und auf Wunsch gerne persönlich mit Ihnen besichtigen. Sollten Sie Unterstützung beim Verkauf oder der Vermietung Ihrer Immobilie benötigen, sprechen Sie uns gerne darauf an. Wir verfügen über einen umfassenden Suchkundenbestand und können somit auch in diesem Bereich für Sie unterstützend tätig werden. Aktuell suchen wir für unsere Kunden Einfamilienhäuser (freistehend oder Reihenhaus), Mehrfamilienhäuser und Kapitalanlagen in Mainz und Umgebung. Wir freuen uns darauf, Sie und Ihre Immobilie kennenzulernen. HEMING-IMMOBILIEN Friedrich-Ebert-Straße 48-50 (Neuborn-Galerie) 55286 Wörrstadt Tel.: +49 (0) 6732 / 9408-0 Fax: +49 (0) 6732 / 9408-99 anfragen [at] heming-immobilien.de www.heming-immobilien.de
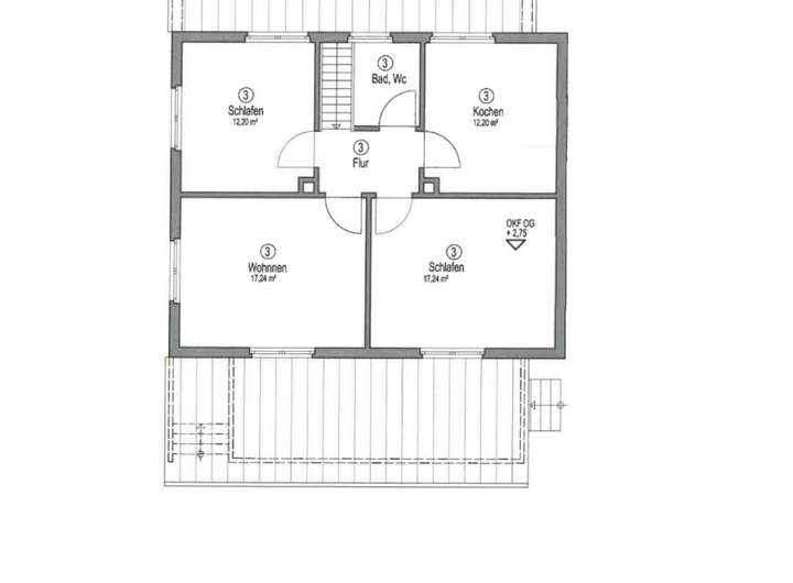
Grundriss
EG
>

OG
>

Keller
>

Speicher
>

EG - Projektierung EFH
>

OG - Projektierung als EFH
>

Adresse
67583 Guntersblum
Interessante Orte
Preis- und Lageinformationen
Preistrend für Bestandsimmobilien in Guntersblum