Entdecken Sie die faszinierende Geschichte dieser charmanten Doppelhaushälfte, die Ihnen nicht nur Raum zum Leben bietet, sondern auch eine unschätzbare Möglichkeit zur Einkommensgenerierung.
Im Erdgeschoss erwartet Sie eine ca. 80 m² großzügige abgeschlossene 3,5 Zimmer-Wohnung – ideal, um Mieteinnahmen zu erzielen oder Gäste unterzubringen.
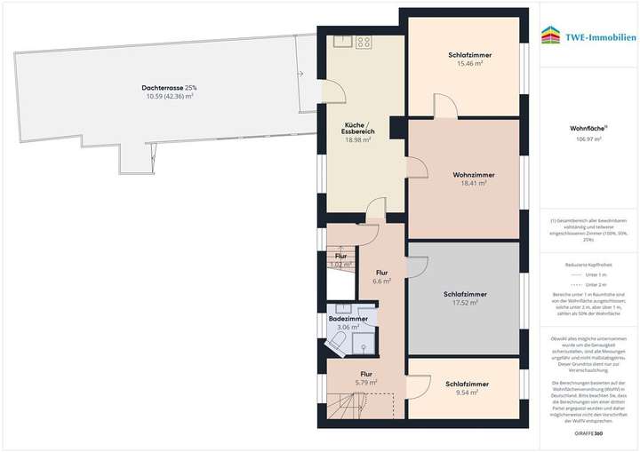
Doch das ist erst der Anfang! Im ersten Obergeschoss und im Dachgeschoss wird Sie die Maisonette-Wohnung begeistern. Hier strömt Licht in die offene Küche, die nahtlos in den einladenden Essbereich übergeht – ein perfekter Ort für gesellige Abende mit Familie und Freunden.
Ein echtes Highlight ist die beeindruckende ca. 42 m² große Dachterrasse, die zum Entspannen und Genießen einlädt. Stellen Sie sich vor, wie Sie an einem sonnigen Tag mit einem Buch in der Hand die frische Luft genießen!
Die Wohnung verteilt sich auf zwei Ebenen mit ca. 165 m² und bietet Ihnen zwei moderne Badezimmer sowie insgesamt sechs Zimmer. Egal, ob Sie Räume für Schlafzimmer, ein kreatives Hobbyzimmer, ein Kinderzimmer, ein Büro oder einfach nur für Ihr persönliches Refugium gestalten möchten – hier sind Ihrer Fantasie keine Grenzen gesetzt.
Über den Hof betreten Sie eine großzügige Scheune, die Ihnen eine Vielzahl von Möglichkeiten bietet. Im Erdgeschoss erwarten Sie zwei Garagen – eine mit ca. 23 m² und die andere mit ca. 30 m². Diese Räume können nicht nur als ideale Abstellfläche für Ihr Fahrzeug dienen, sondern auch Ihr kreatives Potenzial entfalten.
Stellen Sie sich vor, wie Sie die Scheune in einen einzigartigen Wohnraum verwandeln oder vielleicht sogar den Platz für eine Neubebauung im hinteren Teil des Grundstücks nutzen – alles in Absprache mit dem örtlichen Bauamt möglich.
Lassen Sie sich von dieser einmaligen Gelegenheit begeistern und überzeugen sich selbst bei der virtuellen Tour + entdecken Sie das verborgene Potenzial!
https://tour.giraffe360.com/b3f181a542a3497497f66526369b3d92/?lsf=1
Ich freue mich auf Ihre Anfrage.
*Mehr als ein Haus - greifen Sie nach dem Besonderen*
76297 Stutensee
Die vollständige Adresse der Immobilie erhalten Sie vom Anbieter.
Auf Karte anzeigen
Die vollständige Adresse der Immobilie erhalten Sie vom Anbieter.
Finanzierungszertifikat
In nur zwei Minuten zu Ihrem persönlichen Finanzierungszertifkat.
Infos
| Haustyp | Doppelhaushaelfte |
|---|---|
| Etagenzahl | 2 |
| Wohnfläche ca. | 274 m2 |
| Nutzfläche | 188 m2 |
| Grundstücksfläche | 363 m2 |
| Zimmer | 9 |
| Schlafzimmer | 7 |
| Badezimmer | 3 |
| Garage/Stellplatz | Garage |
| Anzahl Garage/Stellplatz | 2 |
Kosten
| Kaufpreis |
719.000 € |
|---|---|
| Provision |
3,57 % inkl. MwSt. |
Finanzierungsrechner:
Kaufpreis:
600.000 €
Eigenkapital:
600.000 €
Monatliche Rate
0 €
Effektiver Jahreszins
0 %
Sollzinsbindung
10 Jahre
Bausubstanz & Energieausweis
| Baujahr | 1960 |
|---|---|
| Objektzustand | Vollständig Renoviert |
| Qualität der Austattung | Normal |
| Heizungsart | Zentralheizung |
| Wesentliche Energieträger | Gas |
| Energieausweis | liegt vor |
| Energieausweistyp | Verbrauchsausweis |
| Energieverbrauchskennwert | 67,7 kWh/(m²*a) |
| Energieeffizienzklasse | B |
67,7
kWh/(m²*a)
Energieeffizienzklasse B
- A+
- A
- B
- C
- D
- E
- F
- G
- H
- 0
- 25
- 50
- 75
- 100
- 125
- 150
- 175
- 200
- 225
- >250
Beschreibung des Objekts
Ausstattung
- 3 Badezimmer
- Gäste-WC
- Gewölbekeller
- 2 Garagen
- Gartenterrasse
- Dachterrasse
- Gartenanteil
- Einliegerwohnung
- Scheune (darf zu Wohnzwecken umgenutzt werden, Baugenehmigung für die 2. Reihe liegt vor)
Lage
Willkommen in Spöck, einem charmanten Stadtteil in Stutensee, der durch seine ideale Lage und hervorragende Infrastruktur besticht! Die Immobilie befindet sich in einem ruhigen, familienfreundlichen Wohngebiet, das sowohl für Singles als auch für Familien ein attraktives Zuhause bietet.
Familien profitieren von der hervorragenden Bildungslandschaft in Stutensee-Spöck. In der Nähe befinden sich mehrere Kindergärten sowie Grund- und weiterführende Schulen, die eine hohe Bildungsqualität garantieren. Diese Faktoren machen die Lage besonders attraktiv für Familien mit Kindern.
Spöck bietet eine harmonische Mischung aus ländlichem Flair und modernem Lebensstil. Die Umgebung zeichnet sich durch gepflegte Grünflächen und Parks aus, die zu erholsamen Spaziergängen und aktiver Freizeitgestaltung einladen. Hier können Sie die Natur in vollen Zügen genießen und zugleich von den Vorzügen der Stadt profitieren.
Die Anbindung an das öffentliche Verkehrsnetz ist hervorragend. Die nahegelegene Straßenbahnhaltestelle ermöglicht schnelle Verbindungen in die umliegenden Städte, darunter Karlsruhe, wo Ihnen umfangreiche Einkaufs- und Freizeitmöglichkeiten zur Verfügung stehen. Auch die Autobahn ist schnell erreichbar, wodurch sich Pendler in kurzer Zeit in den umliegenden Wirtschaftsraum bewegen können.
Sonstige Angaben
Wir sind der allein beauftragte Makler und freuen uns auf Ihre Anfrage und einen Besichtigungstermin, bei dem Sie sich selbst einen Eindruck vor Ort verschaffen können.
Um eine schnelle Bearbeitung zu gewährleisten, bitten wir Sie, uns Ihre Kontaktdaten mit vollständiger Adresse, E-Mail-Adresse und Telefon-Nummer zu übermitteln. Daten und Dokumente können wir Ihnen nur mit vollständigen Kontaktdaten zukommen lassen.
Wir vermitteln - mit Sicherheit.
Grundriss
Erdgeschoss
>
>
1. Obergeschoss
>
>
Dachgeschoss
>
>
Gewölbekeller
>
>
Wohnhaus komplett
>
>
ImmoScout24 Gold Partner
>
>
Immowelt Platin Partner
>
>
Top 10 Immobilienpreis
>
>
Adresse
76297 Stutensee
Interessante Orte
Preis- und Lageinformationen
Preistrend für Bestandsimmobilien in Stutensee