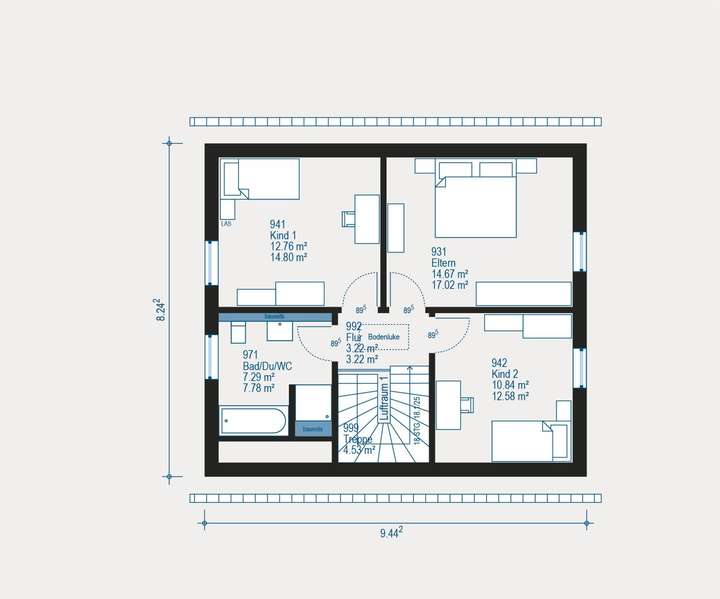
Mit einer Wohnfläche von 123 m² ist dieses Haus perfekt geeignet für Familien mit Kindern. Das Erdgeschoss besticht durch ein offenes, großzügiges Raumkonzept, das durch den Zugang zu Terrasse und Garten ein Gefühl von Freiheit ins Haus holt. Der Wohn- und Essbereich mit offener Küche, ein Gäste-WC, der Hauswirtschaftsraum und ein geräumiger Flur mit Treppenaufgang finden hier Platz. Im Dachgeschoss befinden sich drei Schlafzimmer sowie ein geräumiges Badezimmer.
Sie haben auch die Möglichkeit den Grundriss anzupassen. Z.B. kann die Küche getrennt werden, wenn dies bevorzugt ist.
Ihr individuelles & effizientes Eigenheim - Gestalten Sie Ihre Wohnträume, jetzt zum Aktionsprei
16321 Bernau bei Berlin
Die vollständige Adresse der Immobilie erhalten Sie vom Anbieter.
Auf Karte anzeigen
Die vollständige Adresse der Immobilie erhalten Sie vom Anbieter.
Finanzierungszertifikat
In nur zwei Minuten zu Ihrem persönlichen Finanzierungszertifkat.
Infos
| Haustyp | Einfamilienhaus |
|---|---|
| Etagenzahl | 2 |
| Wohnfläche ca. | 123 m2 |
| Grundstücksfläche | 485 m2 |
| Zimmer | 4 |
| Schlafzimmer | 3 |
| Badezimmer | 1 |
Kosten
| Kaufpreis |
370.000 € |
|---|
Finanzierungsrechner:
Kaufpreis:
600.000 €
Eigenkapital:
600.000 €
Monatliche Rate
0 €
Effektiver Jahreszins
0 %
Sollzinsbindung
10 Jahre
Bausubstanz & Energieausweis
| Baujahr | unbekannt |
|---|---|
| Bauphase | Haus in Planung (projektiert) |
Beschreibung des Objekts
Ausstattung
- Architektenleistung inkl.
- KfW Effizienzhaus 55 im Grundpreis
- geringer Mehrpreis für Effizienzhausstandard 40, mit der Möglichkeit für KfW-Fördermittel
- Kontrollierte Be- und Entlüftungsanlage mit Wärmerückgewinnung
- klimafreundliche Luftwasser-Wärmepumpe inkl. Fußbodenheizung
- Echtholztreppe in verschiedenen Farben
- Versicherungspaket während der Bauphase
- 3-fach verglaste Fenster inkl. Alurollläden
- Wohnraumhöhe von 2,75 m enthalten
- und vieles mehr...
Lage
Das Haus ist auf einem realen Baugrundstück geplant oder auf einem Grundstück in einer Planungsphase. Das Grundstück erwerben Sie direkt vom Eigentümer.
Bitte beachten Sie, Grundstücksdaten können wir ohne ein persönliches Gespräch aus rechtlichen Gründen nicht weiterleiten.
Gern sind wir bei der Wahl Ihres Traumgrundstückes behilflich!
Natürlich können wir ihren Haustraum auch auf einem anderen Grundstück realisieren, lassen Sie sich dazu in einem unverbindlichen Gespräch zu Ihrem Bauvorhaben beraten.
Sonstige Angaben
Bauen mit allkauf Haus bedeutet:
- individuelle und professionelle Beratung
- Möglichkeit zur Individualisierung Ihres Hausgrundrisses
- Bauen mit Profis - über 40 Jahre Markterfahrung
- Festpreisgarantie 15 Monate
- kurze Hausbauzeit
- professionelle Betreuung bei der Finanzierung
- Unterstützung bei der Inanspruchnahme möglicher Fördergelder
Die Baunebenkosten, wie zum Beispiel Grunderwerbskosten, Notar, Hausanschlüsse, behördliche Gebühren oder Finanzierungskosten sind nicht im Gesamtpreis enthalten. Die Abbildungen zeigen zum Teil Sonderausstattungen. Für die Richtigkeit und Vollständigkeit der Angaben kann keine Gewähr bzw. Haftung übernommen werden. Ein Zwischenverkauf und Irrtümer sind vorbehalten.
Grundriss
Grundriss EG
>
>
Grundriss DG
>
>
Adresse
16321 Bernau bei Berlin
Interessante Orte
Preis- und Lageinformationen
Preistrend für Bestandsimmobilien in Bernau bei Berlin