Über eine breite Zufahrt erreichen Sie das weitläufige Grundstück, das Privatsphäre in familienfreundlicher Lage garantiert. Ein großzügiger, blickdicht eingefriedeter Garten mit schönem alten Baumbestand öffnet sich zum Südwesten hin und lädt mit liebevoll angelegten Beeten, einem malerischen Zierteich und mehreren Terrassen dazu ein, den Feierabend oder das Wochenende in entspannter Atmosphäre zu genießen. Eine Garage sowie Carport- und Außenstellplätze ermöglichen bequemes Parken direkt am Haus.
Das Ensemble verbindet ein kernsaniertes Architektenhaus von 1979 mit einem zweigeschossigen Neu- und Anbau aus dem Jahr 2006. Die umfassende Sanierung und Modernisierung erfolgte in den Jahren 2018 und 2022. Hierbei wurden u.a. die Dachdämmung, Fassaden, Kellerwandabdichtungen, Fenster, Elektrik und Entwässerungsschächte saniert. Eine Gasheizung mit Solar- und Photovoltaik sowie sämtliche Böden, Türen, Bäder und die Küche wurden in diesem Zuge hochwertig erneuert und auf den neuesten Stand gebracht. Das Ergebnis ist ein stilvolles, nachhaltiges Unikat.
Der Eingangsbereich besticht durch ein einladendes Entrée mit eingebautem Garderobenschrank, Gäste-WC und Zugang zu einem schönen Gästebereich, zum Hauswirtschaftsraum sowie dem Souterrain und Keller.
Hinter einer großformatigen Glasschiebetür öffnet sich der Wohnbereich mit imposanten Deckenhöhen von bis zu ca. 6 Metern. Dieser vereint stilvolles Wohnen mit Kochen und Essen - die drei Splitlevel-Bereiche geben jedem Raum seinen eigenen Charme und Charakter. Die hochwertige Einbauküche überzeugt mit klarer Linienführung, großem Mittelblock, viel Arbeitsfläche, Sitzgelegenheit und einer erstklassigen Ausstattung sowie cleverem Dunstabzug. Der großzügige Wohn- und Essbereich präsentiert sich mit bodentiefen Fensterfronten, hochwertigem Gaskamin, Blick in den Garten und Zugang zur Hauptterrasse, die eine Überdachung mit integrierter Beschattung bietet.
Im Erdgeschoss schließt sich der separate Elternbereich an. Dieser beeindruckt mit einer Ankleide und einem hochwertigem Einbauschrank, einem großen Schlafzimmer mit Terrassenzugang, einem ansprechend ausgestatteten Vollbad mit einer Doppel-Dusche (Walk-In, Rainshower) und einer weiteren Terrasse in unmittelbarer Nähe zur Garten-Sauna.
Von der Essdiele gelangen Sie über eine moderne Holztreppe in das Obergeschoss. Hier erwartet Sie ein zentraler Bibliotheksbereich, ein gemütliches Schlafzimmer mit Dachschrägen und eigenem Duschbad. Ein weiteres, helles Zimmer öffnet sich zu einer Dachterrasse mit wunderschöner Aussicht in den Garten. Eine separate Außentreppe bietet die Möglichkeit, diese Räumlichkeiten auch als Einliegerbereich umzugestalten - ob zum Arbeiten, für größere Kinder oder die Großeltern.
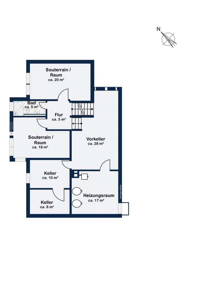
Damit aber noch nicht genug des vielseitigen Raumangebotes - im Souterrain befinden sich zwei wohnlich ausgebaute Räume mit großen Fenstern, Heizkörpern und Parkett sowie einem modernen Duschbad. Weitere Kellerräumlichkeiten bieten Abstellfläche sowie Vorratsräume und beherbergen die moderne Haustechnik.
In einem der fest gemauerten Nebengebäude befindet sich ein Fitnessraum mit Klimagerät - auch hier wurden in 2023 umfangreiche Modernisierungen vorgenommen.
Dieses hochwertig ausgestattete Wohnensemble mit klarer Architektur, großzügigen Raumschnitten, lichtdurchfluteten Bereichen und einem privaten Gartenambiente wird Sie begeistern; insbesondere wenn Sie Wert auf Qualität, Nachhaltigkeit und klare Stilrichtungen legen. Das vorhandene Potenzial eines Einliegerbereiches macht dieses Anwesen besonders attraktiv für größere Familien, Mehrgenerationen oder Paare mit außergewöhnlichen Wohnansprüchen.
Hier werden Sie sich wohlfühlen - überzeugen Sie sich gern bei einer persönlichen Besichtigung von diesem Familienidyll!
Traumhaus-Ensemble mit Stil und Nachhaltigkeit im Herzen von Sasel
22393 Hamburg
Die vollständige Adresse der Immobilie erhalten Sie vom Anbieter.
Auf Karte anzeigen
Die vollständige Adresse der Immobilie erhalten Sie vom Anbieter.
Finanzierungszertifikat
In nur zwei Minuten zu Ihrem persönlichen Finanzierungszertifkat.
Infos
| Haustyp | Villa |
|---|---|
| Etagenzahl | 3 |
| Wohnfläche ca. | 250 m2 |
| Nutzfläche | 113 m2 |
| Grundstücksfläche | 1.959 m2 |
| Zimmer | 10 |
| Schlafzimmer | 4 |
| Badezimmer | 4 |
| Garage/Stellplatz | Garage |
| Anzahl Garage/Stellplatz | 1 |
Kosten
| Kaufpreis |
2.100.000 € |
|---|---|
| Provision |
Käuferprovision beträgt 3,57 % (inkl. MwSt.) des beurkundeten Kaufpreises |
Finanzierungsrechner:
Kaufpreis:
600.000 €
Eigenkapital:
600.000 €
Monatliche Rate
0 €
Effektiver Jahreszins
0 %
Sollzinsbindung
10 Jahre
Bausubstanz & Energieausweis
| Baujahr | 1979 |
|---|---|
| Letzte Sanierung | 2022 |
| Bauphase | Haus fertig gestellt |
| Objektzustand | Neuwertig |
| Qualität der Austattung | Gehoben |
| Heizungsart | Zentralheizung |
| Wesentliche Energieträger | Gas |
| Energieausweis | liegt vor |
| Energieausweistyp | Bedarfsausweis |
| Energieverbrauchskennwert | 36,0 kWh/(m²*a) |
| Energieeffizienzklasse | A |
36,0
kWh/(m²*a)
Energieeffizienzklasse A
- A+
- A
- B
- C
- D
- E
- F
- G
- H
- 0
- 25
- 50
- 75
- 100
- 125
- 150
- 175
- 200
- 225
- >250
Beschreibung des Objekts
Ausstattung
* Gasheizung (2018)
* Solar- und Photovoltaikanlage / Solar- und Speicherkollektorfläche
* Dreifachverglaste Fenster, innen Holz und außen Aluminium (2018)
* Fenster mit integrierter Beschattung oder Jalousien (2006/2018)
* Echtholz-Parkett und großformatiger Feinsteinzeugboden (2018)
* Fußbodenheizung auf den Hauptwohnebenen
* Gaskamin mit Fernbedienung (2018)
* Einbauküche mit Küchenblock und Markengeräten (2018)
* Diverse maßangefertigte Einbauten (u.a. Nolte) und Designerleuchten
* Terrassen mit hochwertigem Bodenbelag sowie teilweise Bangkirai
* Sauna- und Fitness-Haus
* Neue Entwässerungs- und Überlaufschächte mit Alarmfunktion (2022)
* Große Garage und Carport sowie Außenstellplätze
Lage
Das im idyllischen Alstertal gelegene Sasel befindet sich im grünen Nord-Osten Hamburgs und gehört zu den begehrten Wohngebieten der Hansestadt. Das Umfeld der Immobilie wird geprägt von gepflegten Einfamilienhäusern und schön angelegten Gärten.
Dieser kinderfreundliche Stadtteil überzeugt mit seinen vielen Grünflächen, der Nähe zum Alsterlauf und einer guten Bus- und Bahnverbindung in die Hamburger Innenstadt. Diese erreichen Sie mit dem PKW in ca. 25 Minuten.
Der Saseler Markt bietet eine breite Auswahl an Einkaufsmöglichkeiten, Ärzten und Dienstleistern. Zusätzlich findet hier zweimal wöchentlich der beliebte Wochenmarkt statt. Alle weiteren Wünsche kann man sich in dem exklusiven Alstertal-Einkaufszentrum erfüllen, das nur wenige Minuten entfernt liegt.
Sämtliche Schulformen sowie zahlreiche Kindergärten und Kindertagesstätten sind in unmittelbarer Umgebung vorhanden. Tennisclub, Reit- und Sportvereine sowie Musikschulen bieten hier optimale Möglichkeiten zur Freizeitgestaltung und machen das tägliche Leben in diesem Stadtteil abwechslungsreich und vielfältig.
Sonstige Angaben
GELDWÄSCHE: Als Immobilienmaklerunternehmen ist die von Poll Immobilien GmbH nach § 2 Abs. 1 Nr. 14 und § 11 Abs. 1, 2 Geldwäschegesetz (GwG) dazu verpflichtet, bei der Begründung einer Geschäftsbeziehung die Identität des Vertragspartners festzustellen und zu überprüfen, bzw. sobald ein ernsthaftes Interesse an der Durchführung des Immobilienkaufvertrages besteht. Hierzu ist es erforderlich, dass wir nach § 11 Abs. 4 GwG die relevanten Daten Ihres Personalausweises festhalten (wenn Sie als natürliche Person handeln) – beispielsweise mittels einer Kopie. Bei einer juristischen Person benötigen wir eine Kopie des Handelsregisterauszugs, aus welchem der wirtschaftlich Berechtigte hervorgeht. Das Geldwäschegesetz sieht vor, dass der Makler die Kopien bzw. Unterlagen fünf Jahre aufbewahren muss. Als unser Vertragspartner haben Sie auch eine Mitwirkungspflicht nach § 11 Abs. 6 GwG.
HAFTUNG: Wir weisen darauf hin, dass die von uns weitergegebenen Objektinformationen, Unterlagen, Pläne etc. vom Verkäufer bzw. Vermieter stammen. Eine Haftung für die Richtigkeit oder Vollständigkeit der Angaben übernehmen wir daher nicht. Es obliegt daher unseren Kunden, die darin enthaltenen Objektinformationen und Angaben auf ihre Richtigkeit hin zu überprüfen. Alle Immobilienangebote sind freibleibend und vorbehaltlich Irrtümer, Zwischenverkauf- und Vermietung oder sonstiger Zwischenverwertung.
UNSER SERVICE FÜR SIE ALS EIGENTÜMER:
Planen Sie den Verkauf oder die Vermietung Ihrer Immobilie, so ist es für Sie wichtig, deren Marktwert zu kennen. Lassen Sie kostenfrei und unverbindlich den aktuellen Wert Ihrer Immobilie professionell durch einen unserer Immobilienspezialisten einschätzen. Unser bundesweites und internationales Netzwerk ermöglicht es uns, Verkäufer bzw. Vermieter und Interessenten bestmöglich zusammenzuführen.
Grundriss
Erdgeschoss
>
>
Dachgeschoss
>
>
Kellergeschoss
>
>
Adresse
22393 Hamburg
Interessante Orte
Preis- und Lageinformationen
Preistrend für Bestandsimmobilien in Sasel