Dieses 2025 erbaute Reihenhaus vereint zeitgemäße Architektur, hochwertige Ausstattung und einen großzügigen Grundriss mit insgesamt ca. 181,55 m² Wohnfläche.
Auf drei Ebenen bietet es viel Platz und Flexibilität für Paare, Familien oder Wohnen & Arbeiten unter einem Dach.
Erdgeschoss:
Der großzügige Eingangsbereich hat einen praktischen Abstellraum, der wertvollen Stauraum für Haushalt und Alltag bietet.
1. Obergeschoss:
Das Herzstück des Hauses ist der großzügige, offene Wohn -und Essbereich mit großer offener Küche und direktem Zugang zur großen Terrasse. Hier befindet sich auch ein Schlaf -oder Arbeitszimmer mit direktem Terrassenzugang. Ein Duschbad sowie ein Hauswirtschaftsraum runden diese Ebene ab.
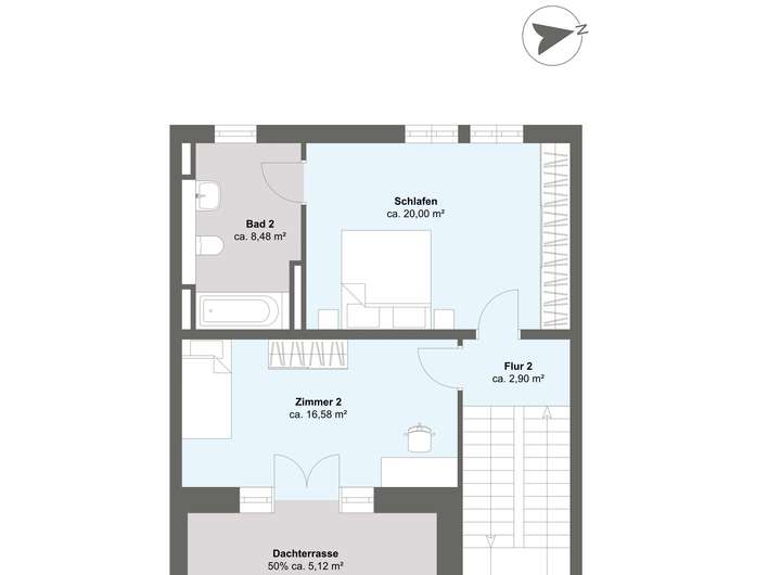
Dachgeschoss:
Hier befinden sich zwei Schlafzimmer unterschiedlicher Größe, die sich flexibel als Kinder-, Eltern- oder Arbeitszimmer nutzen lassen. Ein modernes Bad mit einer Badewanne sowie ein Abstellraum komplettieren das Geschoss. Auf dieser Etage befindet sich noch ein zusätzlicher kleiner Balkon, um im Alltag noch mal tief durchatmen zu können.
Das Reihenhaus überzeugt durch lichtdurchflutete Räume, zeitgemäße Ausstattung und eine durchdachte Aufteilung über drei Ebenen.
Großes 5-Zimmer Reihenhaus mit großer Dachterrasse
Lüdersworth 59,
30539 Hannover
Auf Karte anzeigen
Infos
| Haustyp | Reihenmittelhaus |
|---|---|
| Etagenzahl | 3 |
| Wohnfläche ca. | 181 m2 |
| Grundstücksfläche | 0 m2 |
| Bezugsfrei ab | Sofort |
| Zimmer | 5 |
| Schlafzimmer | 3 |
| Badezimmer | 2 |
| Haustiere | Nach Vereinbarung |
| Garage/Stellplatz | Tiefgarage |
| Anzahl Garage/Stellplatz | 1 |
Kosten
| Kaltmiete |
2.250 € |
|---|---|
| Nebenkosten | + 272 € |
| Heizkosten | + 272.33 € |
| Gesamtmiete | 2.800 € (zzgl. Heizkosten) |
| Miete für Garage/Stellplatz | 80 € |
| Kaution o. Genossenschaftsanteile | 6750,00 |
Weiter mieten oder doch kaufen?
Wer in Miete wohnt, überweist dem Vermieter im Laufe der Jahre hohe Summen, die sich
auch in die eigenen vier Wände investieren lassen könnten.
Bausubstanz & Energieausweis
| Baujahr | 2025 |
|---|---|
| Objektzustand | Erstbezug |
| Qualität der Austattung | Gehoben |
| Heizungsart | Fernwärme |
| Wesentliche Energieträger | Fernwärme |
| Energieausweis | liegt vor |
| Energieausweistyp | Bedarfsausweis |
| Energieverbrauchskennwert | 65,9 kWh/(m²*a) |
| Energieeffizienzklasse | B |
65,9
kWh/(m²*a)
Energieeffizienzklasse B
- A+
- A
- B
- C
- D
- E
- F
- G
- H
- 0
- 25
- 50
- 75
- 100
- 125
- 150
- 175
- 200
- 225
- >250
Beschreibung des Objekts
Ausstattung
- Echtholzparkett
- Fußbodenheizung
- LAN-Dosen in allen Wohnräumen
- moderne Einbauküche
- modernes Wannen -und Duschbad
- Terrasse
Lage
Die Häuser befinden sich in Hannover-Kronsrode, einem der neuesten und modernsten Wohnquartiere der Stadt. Das Viertel verbindet urbanes Wohnen mit viel Grün und einer hervorragenden Infrastruktur.
In fußläufiger Entfernung finden sich zahlreiche Einkaufsmöglichkeiten wie Rewe, Aldi und Rossmann sowie Cafés, Bäckereien und Gastronomieangebote – von Eiscafé über Döner bis hin zu asiatischer Küche. Auch Apotheken, Ärzte und Dienstleister sind im direkten Umfeld angesiedelt.
Familien profitieren von der sehr guten Bildungs- und Betreuungsinfrastruktur: Kitas, Grundschulen und weiterführende Schulen befinden sich in unmittelbarer Nähe.
Die Anbindung an den öffentlichen Nahverkehr ist exzellent: Die Stadtbahnlinien 2 und 8 bringen Sie in wenigen Minuten in die Innenstadt, die Haltestellen sind bequem zu Fuß erreichbar. Über die B6 und den Messeschnellweg besteht zudem eine schnelle Verbindung ins Umland sowie zur A7 und A2.
Das Quartier ist von großzügigen Grünflächen, Spielplätzen und Radwegen durchzogen und bietet eine hohe Lebensqualität für Familien, Paare und Singles. Auch der Tiergarten und die Eilenriede liegen nur wenige Minuten entfernt und laden zu Spaziergängen, Sport oder Erholung ein.
Kronsrode gilt als eines der spannendsten Neubaugebiete Hannovers – modern, urban, familienfreundlich und zugleich naturnah.
Adresse
Lüdersworth 59, 30539 Hannover
Interessante Orte
Preis- und Lageinformationen
Preistrend für Bestandsimmobilien in Bemerode