Das Anwesen, dessen Bauzeit vor dem Zweiten Weltkrieg liegt, wurde zwischen 1966 und 1969 grundlegend saniert und deutlich erweitert. Weiterführende Renovierungen erfolgten 1982 mit der Addition einer Privatwohnung im ersten Obergeschoss und setzten sich zwischen 1992 und 1997 fort, wobei neue Sanitäranlagen und Balkone hinzugefügt sowie die Speiseräume neu verglast wurden. Im Jahr 2000 kam eine freistehende Garage hinzu. Ursprünglich diente das Objekt als Gaststätte mit Übernachtungsmöglichkeiten, wird jedoch seit 2011 nur noch privat genutzt. Die Immobilie beeindruckt durch ihren hervorragenden Zustand und bietet großzügige, lichtdurchflutete Räume mit hohen Decken.
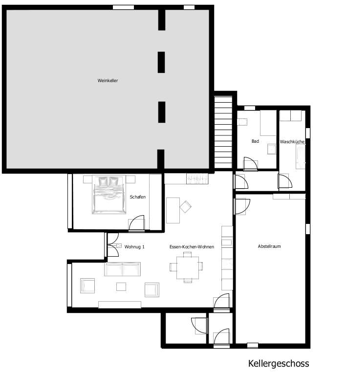
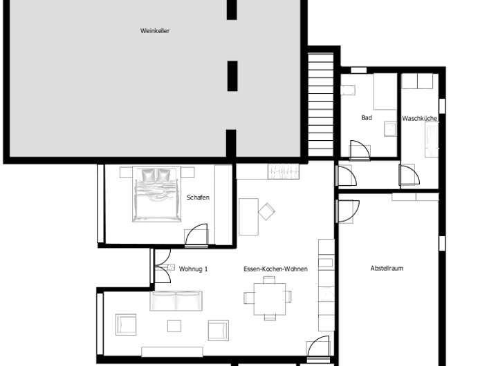
Das dreistöckige Haus umfasst 21 Zimmer und 11 Bäder, eine professionelle Gastroküche sowie umfangreiche Nutzflächen. Im Keller befinden sich Lager- und Nutzräume, Weinkeller, ein Heizungsraum und mehrere Garagen. Das Erdgeschoss bietet ehemalige Gasträume, eine große Küche, private Wohnbereiche und Terrassenzugänge. Im ersten Obergeschoss finden sich mehrere Schlafzimmer mit Balkonen, großzügige Wohnräume, zwei Ferienwohnungen und eine separate Privatwohnung, während das zweite Obergeschoss weitere Schlafzimmer und kleinere Bäder aufweist. Der Dachboden bietet zusätzliche Ausbaumöglichkeiten.
Besondere Highlights sind die weitläufigen Kellerbereiche, die sich ideal als Lager oder Weinkeller eignen, sowie die Vielzahl an flexibel nutzbaren Wohn- und Schlafräumen. Dieses Anwesen eignet sich ausgezeichnet für große Familien oder als Mehrgenerationenhaus. Es bietet ebenfalls ideale Bedingungen für Selbstständige oder Freiberufler, die Wohnen und Arbeiten kombinieren möchten. Die solide Bausubstanz, reichliche Parkmöglichkeiten und eine ausgedehnte Gartenfläche schaffen ideale Voraussetzungen für den Umbau zu einem Mehrfamilienhaus, was attraktive Investitions- und Entwicklungschancen eröffnet.
Für den Umbau von bis zu 10 Wohnungen bestens geeignet, gute Bausubstanz, Parkplätze und Garten,
56859 Bullay
Die vollständige Adresse der Immobilie erhalten Sie vom Anbieter.
Auf Karte anzeigen
Die vollständige Adresse der Immobilie erhalten Sie vom Anbieter.
Finanzierungszertifikat
In nur zwei Minuten zu Ihrem persönlichen Finanzierungszertifkat.
Infos
| Haustyp | Mehrfamilienhaus |
|---|---|
| Etagenzahl | 3 |
| Wohnfläche ca. | 576 m2 |
| Nutzfläche | 252 m2 |
| Grundstücksfläche | 932 m2 |
| Zimmer | 21 |
| Schlafzimmer | 13 |
| Badezimmer | 11 |
Kosten
| Kaufpreis |
449.000 € |
|---|---|
| Provision |
3,57 % inkl. USt. |
Finanzierungsrechner:
Kaufpreis:
600.000 €
Eigenkapital:
600.000 €
Monatliche Rate
0 €
Effektiver Jahreszins
0 %
Sollzinsbindung
10 Jahre
Bausubstanz & Energieausweis
| Baujahr | 1966 |
|---|
Beschreibung des Objekts
Lage
Das Anwesen befindet sich in der charmanten Weinbaugemeinde Bullay, gelegen an der malerischen Mosel. Diese Region ist bekannt für ihre idyllische Landschaft, die nicht nur Touristen anzieht, sondern auch eine hohe Lebensqualität für ihre Bewohner bietet. Bullay selbst gilt als wichtiger Knotenpunkt in der Moselregion und zieht dank seiner attraktiven Lage und Gemeindestruktur zahlreiche Besucher an.
Bullay ist überdurchschnittlich gut vernetzt, insbesondere was die öffentlichen Verkehrsmittel angeht. Der Bahnhof Bullay (DB) spielt eine zentrale Rolle im lokalen Transportwesen und bietet direkte Verbindungen zu größeren Städten wie Koblenz und Trier, die jeweils in weniger als einer Stunde zu erreichen sind. Die Bahnverbindungen sind ideal für Pendler sowie Touristen. Zusätzlich sorgt die Nähe zum Flughafen Frankfurt-Hahn (etwa 30 Minuten Fahrtzeit) für eine ausgezeichnete nationale und internationale Anbindung.
Bullay genießt Beliebtheit als touristische Destination, besonders wegen seiner Weinberge und der traditionellen Weinfeste. Die Lage entlang der Mosel bietet optimale Bedingungen für Weinbau und zieht regelmäßig Weinliebhaber und Touristen an, die die lokale Gastronomie und Landschaft erkunden möchten. Dies macht die Region auch für Investitionen in Gastgewerbe und verwandte Dienstleistungen interessant.
Der Ort bietet alle notwendigen Einrichtungen des täglichen Bedarfs – von Supermärkten und Bäckereien bis hin zu Apotheken und Banken. Alles ist schnell und bequem erreichbar. Darüber hinaus befinden sich in unmittelbarer Nähe größere Einkaufszentren und Fachmärkte in den umliegenden Städten wie Cochem und Wittlich, welche das Angebot abrunden.
Für Investoren bietet Bullay aufgrund seiner starken touristischen Anziehungskraft und der stabilen Infrastruktur attraktive Möglichkeiten. Das Anwesen selbst, mit umfangreichen Wohn- und Nutzflächen, könnte idealerweise als Boutique-Hotel, Ferienwohnungen oder als exklusiver Wohnkomplex weiterentwickelt werden. Die bestehenden Einrichtungen und die Möglichkeit, weitere Baumaßnahmen durchzuführen, bieten Raum für kreative und profitable Projekte.
Sonstige Angaben
Die Höhe der Courtage richtet sich nach den ab dem 23.12.2020 in Kraft getretenen gesetzlichen Regelungen zur Teilung der Maklercourtage. Hiernach wird die Courtage regelmäßig für beide Parteien (Eigentümer und Käufer) fällig. Sie beträgt 3,57 % des Kaufpreises einschließlich Umsatzsteuer und wird mit notariellem Vertragsabschluss verdient und fällig.
Alle Angaben sind ohne Gewähr und basieren ausschließlich auf Informationen, die uns von unserem Auftraggeber übermittelt wurden. Wir übernehmen keine Gewähr für die Vollständigkeit, Richtigkeit und Aktualität dieser Angaben.
Grundriss
KG
>
>
Gestaltungsvorschlag KG
>
>
OG
>
>
Gestaltungsvorschlag OG
>
>
DG
>
>
Gestaltungsvorschlag DG
>
>
Adresse
56859 Bullay
Interessante Orte
Preis- und Lageinformationen
Preistrend für Bestandsimmobilien in Bullay