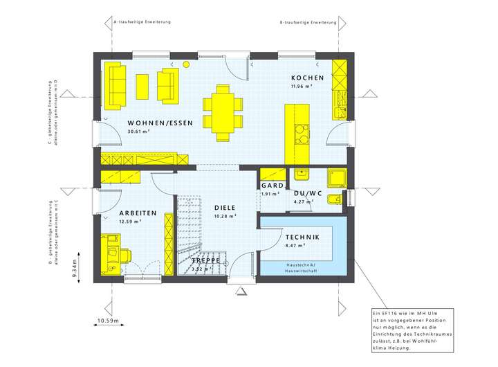
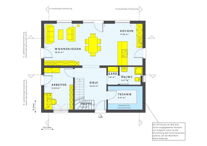
Das Einfamilienhaus mit einem klassischen Satteldach macht Eigenheimträume wahr. Mit seinen großzügigen 165 m² Wohnfläche und insgesamt sechs Zimmern, darunter vier Schlafzimmer und zwei Badezimmer, bietet es dir und deiner Familie ausreichend Raum zum Wohlfühlen und Entspannen. Der Panorama-Erker mit riesigem Fenster liefert dir den perfekten Blick nach draußen und sorgt für eine helle und freundliche Atmosphäre im Innenraum. Der Zwerchgiebel mit Flachdach sorgt für einen vergrößerten Wohnraum im Obergeschoss, wodurch die gesamte Deckenhöhe optimal genutzt werden kann.
LivingHaus bietet dir zusätzliche Leistungen, die dein Zuhause noch einzigartiger machen. Die hochwertige Traumküche von Living Haus wird perfekt auf deinen Grundriss abgestimmt und ist mit modernster Technik, cleveren Stauraumlösungen und einem ästhetischen Design ausgestattet. Sie wird rechtzeitig zum Einzug geliefert, damit du sofort loskochen kannst. Das Living Haus Bau-Cockpit gibt dir einen digitalen Überblick über dein Bauprojekt, von Zeitplan bis Dokumentenverwaltung - alles ist einfach und stressfrei zugänglich.
Das I-KON-Konzept kombiniert nachhaltiges Bauen mit modernster Technik. Dein Zuhause wird energieeffizient und umweltfreundlich gestaltet, wobei das I-KON Effizienzhaus 55 nur 55 % des Energiebedarfs eines Standardhauses benötigt. Mit dem Zuhause-Darlehen kannst du bis zu 250.000 EUR zu einem besonders günstigen Zinssatz finanzieren und von staatlichen Förderprogrammen profitieren. Das Zuhause-Paket beinhaltet eine hochwertige Grundausstattung mit modernen Böden, edlen Türen und stilvollen Sanitäranlagen, die fix und fertig geliefert werden.
Zudem bietet LivingHaus ein DIY-Ausbau-Coaching an, bei dem du in nur drei Tagen von Experten lernst, wie du den Innenausbau selbst meisterst. So kannst du dein Zuhause nach deinen Wünschen gestalten und gleichzeitig wertvolle handwerkliche Fähigkeiten erwerben. LivingHaus bietet ein durchdachtes Gesamtkonzept von der Finanzierung über die Planung bis zur individuellen Ausgestaltung, damit dein Traumhaus so sicher und passend wie möglich verwirklicht wird.
Dein individuelles Traumhaus - LivingHaus macht's möglich
74393 Güglingen
Die vollständige Adresse der Immobilie erhalten Sie vom Anbieter.
Auf Karte anzeigen
Die vollständige Adresse der Immobilie erhalten Sie vom Anbieter.
Finanzierungszertifikat
In nur zwei Minuten zu Ihrem persönlichen Finanzierungszertifkat.
Infos
| Haustyp | Einfamilienhaus |
|---|---|
| Wohnfläche ca. | 165 m2 |
| Grundstücksfläche | 798 m2 |
| Zimmer | 6 |
| Schlafzimmer | 4 |
| Badezimmer | 2 |
Kosten
| Kaufpreis |
664.598 € |
|---|---|
| Provision | Nein |
Finanzierungsrechner:
Kaufpreis:
600.000 €
Eigenkapital:
600.000 €
Monatliche Rate
0 €
Effektiver Jahreszins
0 %
Sollzinsbindung
10 Jahre
Bausubstanz & Energieausweis
| Baujahr | 2026 |
|---|---|
| Bauphase | Haus in Planung (projektiert) |
| Heizungsart | Wärmepumpe |
| Energieausweis | liegt vor |
| Energieausweistyp | Bedarfsausweis |
| Energieverbrauchskennwert | 18,0 kWh/(m²*a) |
| Energieeffizienzklasse | A+ |
18,0
kWh/(m²*a)
Energieeffizienzklasse A+
- A+
- A
- B
- C
- D
- E
- F
- G
- H
- 0
- 25
- 50
- 75
- 100
- 125
- 150
- 175
- 200
- 225
- >250
Beschreibung des Objekts
Ausstattung
Das Haus kommt mit einer umfassenden Ausstattung, die keine Wünsche offenlässt. Du profitierst von einer 18-monatigen Festpreisgarantie, sodass dein Preis sicher bleibt. Essenzielle Bauversicherungen sind ebenfalls enthalten, und du erhältst ein Zuhause-Darlehen von bis zu 250.000 Euro zu einem besonders günstigen Zinssatz. Die Bau-App sorgt für direkten Kontakt und Einsicht in alle wichtigen Dokumente. Dein Haus erfüllt höchste ökologische, ökonomische und technische Standards und wird mit einer Garantie von 30 Jahren auf die Grundkonstruktion geliefert. Die hochwertige Grundausstattung umfasst moderne Böden, edle Türen und stilvolle Sanitäranlagen. Das DIY-Ausbau-Coaching gibt dir die Möglichkeit, den Innenausbau selbst zu gestalten, und du erhältst eine individuelle Küchenausstattung, die perfekt auf deinen Grundriss abgestimmt ist. Das hohe Maß an Vorfertigung garantiert einen schnellen Bauprozess und effiziente Abläufe. Aluminiumgeschäumte Rollläden verbessern den sommerlichen Hitzeschutz und tragen zur Wärmedämmung im Winter bei. Dein individuelles Zuhause wird somit zu einem Ort, an dem du dich rundum wohlfühlen kannst und das ganz nach deinen Vorstellungen gestaltet ist.
Lage
Güglingen bietet dir und deiner Familie eine hervorragende Lebensqualität mit einer Vielzahl an Bildungseinrichtungen, Freizeitmöglichkeiten und Einkaufsmöglichkeiten. In der Umgebung findest du mehrere Kindergärten und Schulen, darunter die Grundschule Güglingen, die für ihre engagierte Lehrerschaft und eine familiäre Atmosphäre bekannt ist. Auch die weiterführenden Schulen sind gut erreichbar und bieten den Schülern vielfältige Optionen. Supermärkte wie EDEKA und LIDL sorgen für eine unkomplizierte Nahversorgung.
Die medizinische Versorgung ist ebenfalls vor Ort gewährleistet - eine Vielzahl von Ärzten, Zahnärzten und Apotheken stehen dir zur Verfügung. Für Freizeitaktivitäten gibt es zahlreiche Möglichkeiten: Ob Sportvereine, Wanderwege oder der nahegelegene Naturpark Stromberg-Heuchelberg, hier ist für jeden etwas dabei. Zudem sind die Anbindungen an das öffentliche Verkehrsnetz und die Autobahn A81 ausgezeichnet, was Pendlern eine bequeme Anreise nach Heilbronn oder Stuttgart ermöglicht. Güglingen ist somit nicht nur ein idealer Ort zum Wohnen, sondern auch für aktive Familien und Naturliebhaber. Die Kombination aus Natur, Bildung und guter Anbindung macht diesen Ort besonders attraktiv.
Grundriss
Livinghaus: Clever geplant!
>
>
Cleverer Wohnkomfort
>
>
Adresse
74393 Güglingen
Interessante Orte
Preis- und Lageinformationen
Preistrend für Bestandsimmobilien in Güglingen