Dieses ursprüngliche Haus aus den 1950 Jahren hat eine sehr gute Aufteilung. Im Erdgeschoss befinden sich 3 Zimmer, die Küche sowie WC. Vom Wohnzimmer aus gelangen Sie auf eine wunderbare Terrasse, die Ihnen gemütliche Stunden im Sonnenschein ermöglicht.
Im ersten Stock/Dachgeschoss sind drei weitere großzügige Zimmer, Badezimmer und WC. Vom kleinen Balkon auf diesem Stockwerk können Sie einen fantastischen Ausblick auf die Umgebung genießen.
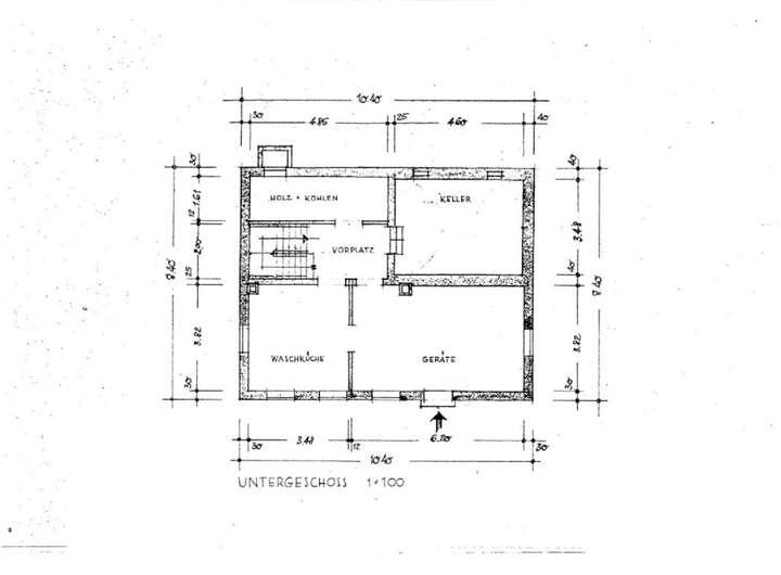
Im Untergeschoss wurde nachträglich eine schöne Einliegerwohnung erstellt.
Im UG sind auch ein „kalter“ Keller, der Öltank sowie der Heizungskeller.
Zum Haus gehören eine Garage sowie ein Abstellplatz.
Haus mit Potenzial und wunderbarer Lage
71134 Aidlingen
Die vollständige Adresse der Immobilie erhalten Sie vom Anbieter.
Auf Karte anzeigen
Die vollständige Adresse der Immobilie erhalten Sie vom Anbieter.
Finanzierungszertifikat
In nur zwei Minuten zu Ihrem persönlichen Finanzierungszertifkat.
Infos
| Haustyp | Einfamilienhaus |
|---|---|
| Etagenzahl | 2 |
| Wohnfläche ca. | 220 m2 |
| Nutzfläche | 50 m2 |
| Grundstücksfläche | 805 m2 |
| Bezugsfrei ab | Nach Vereinbarung |
| Zimmer | 7 |
| Schlafzimmer | 3 |
| Badezimmer | 3 |
| Garage/Stellplatz | Garage |
| Anzahl Garage/Stellplatz | 2 |
Kosten
| Kaufpreis |
490.000 € |
|---|---|
| Provision |
3,57 % inkl. MwSt. Die Provision errechnet sich aus dem notariell beurkundeten Kaufpreis. |
Finanzierungsrechner:
Kaufpreis:
600.000 €
Eigenkapital:
600.000 €
Monatliche Rate
0 €
Effektiver Jahreszins
0 %
Sollzinsbindung
10 Jahre
Bausubstanz & Energieausweis
| Baujahr | 1954 |
|---|---|
| Letzte Sanierung | 1975 |
| Objektzustand | Renovierungsbedürftig |
| Qualität der Austattung | Einfach |
| Heizungsart | Zentralheizung |
| Wesentliche Energieträger | Öl |
| Energieausweis | liegt vor |
| Energieausweistyp | Bedarfsausweis |
| Energieverbrauchskennwert | 332,7 kWh/(m²*a) |
| Energieeffizienzklasse | H |
332,7
kWh/(m²*a)
Energieeffizienzklasse H
- A+
- A
- B
- C
- D
- E
- F
- G
- H
- 0
- 25
- 50
- 75
- 100
- 125
- 150
- 175
- 200
- 225
- >250
Beschreibung des Objekts
Grundriss
455 grundriss_Page1
>
>
455 grundriss_Page2
>
>
455 grundriss_Page3
>
>
455 grundriss_Page4
>
>
Adresse
71134 Aidlingen
Interessante Orte
Preis- und Lageinformationen
Preistrend für Bestandsimmobilien in Aidlingen