Dieses attraktive Einfamilienhaus in ruhiger Wohnlage von Sauerlach bietet auf insgesamt sieben Zimmern und drei Bädern ein ideales Zuhause für Familien oder Paare mit Platzbedarf. Die Immobilie überzeugt durch ihren gepflegten Zustand, helle, freundliche Räume und eine durchdachte Raumaufteilung, die vielfältige Nutzungsmöglichkeiten eröffnet.
Im Obergeschoss befinden sich vier großzügige Schlafzimmer sowie zwei moderne Bäder – perfekt geeignet für die Bedürfnisse einer Familie oder Gäste. Das Herzstück des Hauses bildet der offene Wohn- und Essbereich im Erdgeschoss mit direktem Zugang zum weitläufigen Garten – ein echtes Highlight für Naturliebhaber und Familien mit Kindern.
Das große Grundstück bietet viel Freiraum für Freizeitgestaltung, Gartenarbeit oder entspannte Stunden im Grünen. Im Untergeschoss stehen zwei zusätzliche Hobbyräume zur Verfügung, ideal als Homeoffice, Fitnessraum oder für kreative Projekte.
Dank der guten Energieeffizienz ist das Haus nicht nur komfortabel, sondern auch wirtschaftlich im Unterhalt. Ein durch und durch stimmiges Gesamtpaket – ruhig gelegen, bestens gepflegt und mit viel Platz für individuelle Lebenskonzepte.
Komfortables Einfamilienhaus mit viel Platz für die ganze Familie
82054 Sauerlach
Die vollständige Adresse der Immobilie erhalten Sie vom Anbieter.
Auf Karte anzeigen
Die vollständige Adresse der Immobilie erhalten Sie vom Anbieter.
Finanzierungszertifikat
In nur zwei Minuten zu Ihrem persönlichen Finanzierungszertifkat.
Infos
| Haustyp | Einfamilienhaus |
|---|---|
| Etagenzahl | 2 |
| Wohnfläche ca. | 243 m2 |
| Nutzfläche | 150 m2 |
| Grundstücksfläche | 1.112 m2 |
| Zimmer | 7 |
| Schlafzimmer | 6 |
| Badezimmer | 3 |
| Garage/Stellplatz | Garage |
| Anzahl Garage/Stellplatz | 2 |
Kosten
| Kaufpreis |
0 € |
|---|---|
| Provision |
2,98% inklusive Mehrwertsteuer |
Finanzierungsrechner:
Kaufpreis:
600.000 €
Eigenkapital:
600.000 €
Monatliche Rate
0 €
Effektiver Jahreszins
0 %
Sollzinsbindung
10 Jahre
Bausubstanz & Energieausweis
| Baujahr | 2007 |
|---|---|
| Bauphase | Haus fertig gestellt |
| Objektzustand | Gepflegt |
| Qualität der Austattung | Gehoben |
| Heizungsart | Zentralheizung |
| Wesentliche Energieträger | Strom |
| Energieausweis | liegt vor |
| Energieausweistyp | Verbrauchsausweis |
| Energieverbrauchskennwert | 48,0 kWh/(m²*a) |
| Energieeffizienzklasse | A |
48,0
kWh/(m²*a)
Energieeffizienzklasse A
- A+
- A
- B
- C
- D
- E
- F
- G
- H
- 0
- 25
- 50
- 75
- 100
- 125
- 150
- 175
- 200
- 225
- >250
Beschreibung des Objekts
Ausstattung
· Niedrigenergiehaus in Holzständerbauweise
· Solaranlage für das Warmwasser
· Zentrale Lüftungsanlage mit Wärmerückgewinnung
· Sicherheitsglas im EG und OG
· 7 Zimmer
· 3 Badezimmer
· Einbauküche mit Granitarbeitsfläche
· Terrasse
· Großer Abstellraum im Keller
· Waschkeller
· Doppelgarage mit extra Stellplatz
· Großzügiger Garten mit Gartenhäuschen
Lage
Das Einfamilienhaus befindet sich in ruhiger und äußerst begehrter Wohnlage in Sauerlach, einer charmanten Gemeinde im Süden des Landkreises München. Eingebettet in eine gewachsene Nachbarschaft mit gepflegten Einfamilienhäusern und viel Grün, überzeugt die Adresse durch ihre familienfreundliche Umgebung und die Nähe zur Natur.
Sauerlach bietet eine ideale Kombination aus ländlicher Idylle und hervorragender Anbindung an die Landeshauptstadt München. Die S-Bahn-Station Sauerlach (S3) ist nur wenige Minuten entfernt und ermöglicht eine direkte Verbindung ins Münchener Stadtzentrum in ca. 30 Minuten. Mit dem Auto sind Sie über die nahegelegene A995 bzw. A8 schnell in München, am Tegernsee oder in Richtung Alpen unterwegs.
In fußläufiger Entfernung finden sich Kindergärten, Schulen, Supermärkte, Bäckereien sowie Ärzte und Apotheken, was den Alltag besonders komfortabel macht. Zahlreiche Rad- und Wanderwege durch die umliegenden Wälder und Felder bieten Erholung und Freizeitmöglichkeiten direkt vor der Haustür. Auch Sportvereine und ein reges Gemeindeleben tragen zur hohen Lebensqualität in Sauerlach bei.
Das Haus liegt in einer ruhigen Anliegerstraße ohne Durchgangsverkehr – ideal für Familien mit Kindern oder alle, die ein entspanntes und naturnahes Wohnen zu schätzen wissen.
Sonstige Angaben
Den besten Eindruck dieser traumhaften Immobilie bekommen Sie bei einer persönlichen Besichtigung. Für alle weiteren Fragen und der Vereinbarung einer Besichtigung steht Ihnen unsere Geschäftsführerin Frau Dorothea Kammerscheid persönlich unter 0173 35 73 007 zur Verfügung. Provisionshinweis: 2,98 % Käufer-Provision inkl. MwSt., fällig bei Abschluss des notariellen Kaufvertrags. Wir haben mit dem Verkäufer einen provisionspflichtigen Maklervertrag in gleicher Höhe abgeschlossen (§656c BGB). Die anfallende Maklercourtage wird nach rechtskräftig geschlossenen Kaufvertrag in Rechnung gestellt. Die Maklerprovision ist 30 Tage nach dem Beurkundungstermin zur Zahlung fällig. Alle Angaben sind ohne Gewähr und basieren ausschließlich auf Informationen, die uns von unserem Auftraggeber zur Verfügung gestellt wurden. Wir übernehmen keine Gewähr für die Vollständigkeit, Richtigkeit und Aktualität dieser Angaben. Der Energieausweis liegt zur Besichtigung vor. Weitere interessante Objekte finden Sie auf unserer Firmenhomepage: www.kensington-muenchen.com
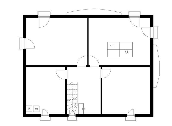
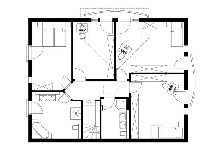
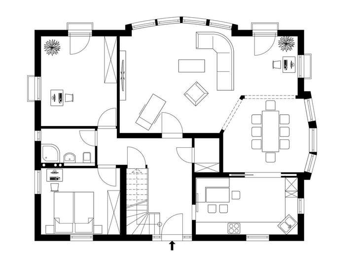
Grundriss
Grundriss EG
>
>
Grundriss DG
>
>
Grundriss KG
>
>
Adresse
82054 Sauerlach
Interessante Orte
Preis- und Lageinformationen
Preistrend für Bestandsimmobilien in Sauerlach