Zum Verkauf steht ein idyllisches Baugrundstück (375 qm) in attraktiver Lage im Rasteder Ortsteil Nethen.
Die Baugenehmigung für die Bebauung mit einer Doppelhaushälfte liegt bereits vor.
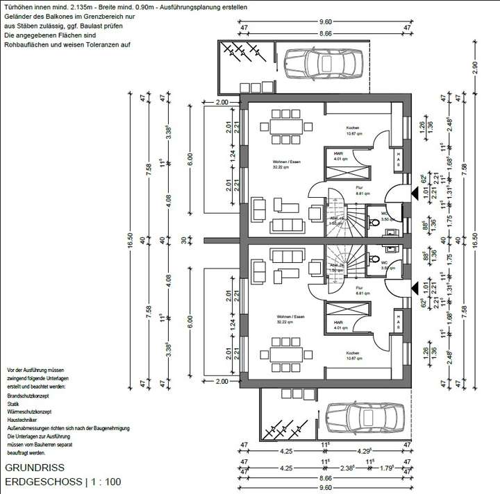
Die genehmigte Wohnfläche beträgt:
Erdgeschoss:
Wohnen/Essen: 32,33 qm
Küche: 10,67 qm
HWR: 4,01 qm
Flur: 8,81 qm
WC: 3,50 qm
Abstellraum: 1,50 qm
Terrasse: 3,425 qm (13,7 * 0,25)
Erdgeschoss gesamt: 64,135 qm
Obergeschoss:
Flur: 4,33 qm
Bad: 8,52 qm
Eltern: 12,79 qm
Kind 1: 13,91 qm
Kind 2: 13,80 qm
Obergeschoss gesamt: 53,36 qm
Wohnfläche der Doppelhaushälfte gesamt: 117,495 qm
Der Kaufpreis von 112.500,00 EUR bezieht sich auf 375 qm Grundstücksteil, auf dem eine Doppelhaushälfte entstehen kann.
Es ist auch möglich beide Grundstücksteile für die zu erwerben, der Kaufpreis beträgt dann 225.000,00 Euro.
Finanzierungszertifikat
In nur zwei Minuten zu Ihrem persönlichen Finanzierungszertifkat.
Infos
| Vermarktungsart | Kaufen |
|---|---|
| Grundstücksfläche | 375 m2 |
| Erschließung | Erschlossen |
| Empfohlene Nutzung | Doppelhaus |
| Bebaubar nach | Bebauungsplan |
| Verfügbar ab | sofort |
Kosten
| Miete pro Jahr |
112.500 € |
|---|---|
| Provision | Nein |
Finanzierungsrechner:
Kaufpreis:
600.000 €
Eigenkapital:
600.000 €
Monatliche Rate
0 €
Effektiver Jahreszins
0 %
Sollzinsbindung
10 Jahre
Beschreibung des Objekts
Lage
Das Grundstück liegt ruhig und zentral in Nethen, einem beliebten und familienfreundlichen Ortsteil der Gemeinde Rastede. Naherholung ist in unmittelbarere Umgebung (Badesee, Biotop, Sparzierwege) möglich. Der ideale Wohnort für Familien und Naturliebhaber!
Der Ortskern mit Einkaufsmöglichkeiten, Kindergarten und Schule ist in 5 Minuten zu erreichen.
Nethen überzeugt darüber hinaus durch einen sehr guten Anschluss an die Autobahn Richtung Oldenburg, Bremen, Wilhelmshaven. Hier schaffen Sie ein Zuhause zum Wohlfühlen und ankommen!
Sonstige Angaben
Übergeben wird ein geräumtes Grundstück, die aktuell noch vorhandene Bestandsimmobilie wird vor Übergabe durch den Verkäufer entfernt.
Grundriss
Grundriss EG
>
>
Grundriss OG
>
>