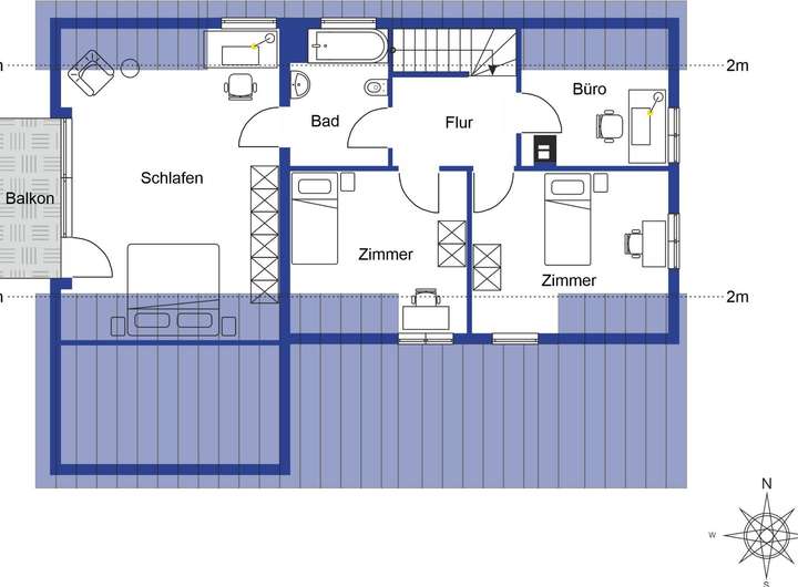
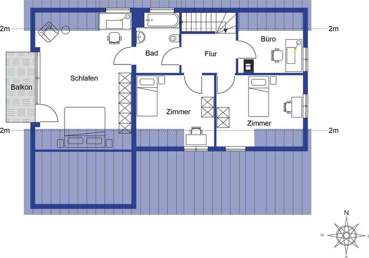
Zentral und dennoch in einer ruhigen Sackgasse gelegen präsentieren wir Ihnen dieses ideale Wohnhaus für große oder kleine Familien. Insgesamt 7 Zimmer bieten Nutzungsmöglichkeiten, die keine Wünsche offen lassen. Im Erdgeschoss findet das gemeinsame Leben mit Essen und Wohnen statt. Im Dachgeschoss haben Sie ein großes Schlafzimmer, zwei Kinderzimmer und noch ein zusätzliches Büro. Im Erdgeschoss kann der später angebaute Teil mit separatem Bad und WC als Einliegerwohnung zur Vermietung, als Generationenwohnung oder auch als Homeoffice genutzt werden. Mit dem hauseigenen Gewächshaus können Sie Ihre Familie mit selbst angebautem gesunden Gemüse und Kräutern versorgen, während Ihre Kinder sich geschützt im Garten austoben können. Ein besonderes Plus: Drei Garagen bieten ausreichend Stellfläche für Ihre Fahrzeuge. Die familienfreundliche Umgebung mit einem Kindergarten quasi vor der Haustür macht dieses Objekt zur perfekten Wahl für Familien aller Generationen.
Das Angebot klingt interessant? Dann freuen wir uns auf Ihren Anruf unter 07031 20 42 60.
Energiedaten: EBA, 320,7 kWh/(m²a), H, Gas, Holz, Bj. Haus 1950, Bj. Wärmeerzeuger 2010
Provision 2,975 % inkl. MwSt. aus dem beurkundeten Kaufpreis. Wir haben einen Maklervertrag mit dem Verkäufer über die gleiche Provisionshöhe abgeschlossen.
Raum und Platz zur individuellen Wunscherfüllung
70806 Kornwestheim
Die vollständige Adresse der Immobilie erhalten Sie vom Anbieter.
Auf Karte anzeigen
Die vollständige Adresse der Immobilie erhalten Sie vom Anbieter.
Finanzierungszertifikat
In nur zwei Minuten zu Ihrem persönlichen Finanzierungszertifkat.
Infos
| Haustyp | Einfamilienhaus |
|---|---|
| Etagenzahl | 2 |
| Wohnfläche ca. | 216 m2 |
| Grundstücksfläche | 629 m2 |
| Bezugsfrei ab | sofort |
| Zimmer | 7 |
| Schlafzimmer | 5 |
| Badezimmer | 1 |
| Garage/Stellplatz | Garage |
| Anzahl Garage/Stellplatz | 3 |
Kosten
| Kaufpreis |
695.000 € |
|---|---|
| Provision |
2,98 % inkl. 19% MwSt. |
Finanzierungsrechner:
Kaufpreis:
600.000 €
Eigenkapital:
600.000 €
Monatliche Rate
0 €
Effektiver Jahreszins
0 %
Sollzinsbindung
10 Jahre
Bausubstanz & Energieausweis
| Baujahr | 1950 |
|---|---|
| Objektzustand | Renovierungsbedürftig |
| Heizungsart | Zentralheizung |
| Wesentliche Energieträger | Gas |
| Energieausweis | liegt vor |
| Energieausweistyp | Bedarfsausweis |
| Energieverbrauchskennwert | 320,7 kWh/(m²*a) |
| Energieeffizienzklasse | H |
320,7
kWh/(m²*a)
Energieeffizienzklasse H
- A+
- A
- B
- C
- D
- E
- F
- G
- H
- 0
- 25
- 50
- 75
- 100
- 125
- 150
- 175
- 200
- 225
- >250
Beschreibung des Objekts
Grundriss
Untergeschoss
>
>
Erdgeschoss
>
>
Dachgeschoss
>
>
Adresse
70806 Kornwestheim
Interessante Orte
Preis- und Lageinformationen
Preistrend für Bestandsimmobilien in Kornwestheim