Das Doppelhaus Viseo gleicht einem perfekt durchdachten Raumwunder.
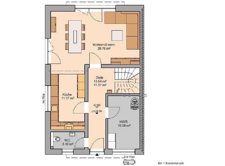
Auf zwei Geschossen erstreckt sich das Haus auf 129 m². Im Erdgeschoss befinden sich ein WC, der Hauswirtschaftsraum und der großzügige Wohn-/ Essbereich mit offener Küche, der durch bodentiefe Fensterelemente wunderbar erhellt wird. Über die gut angeordnete Diele lassen sich alle Räume im Erdgeschoss perfekt erreichen.
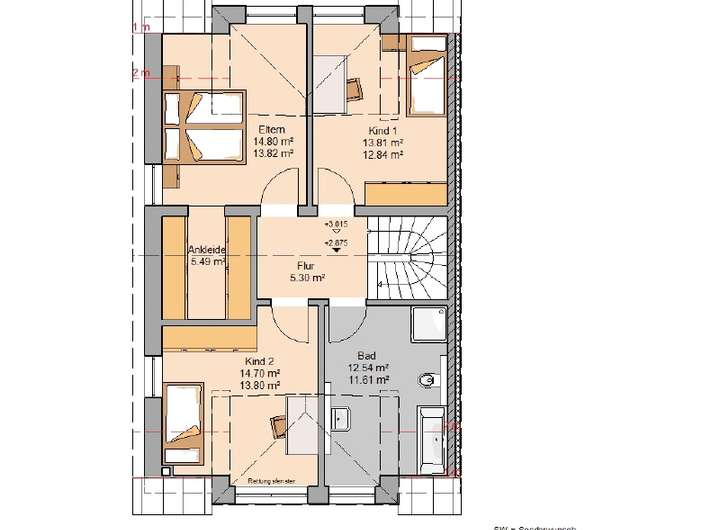
Über die u-förmige Treppe erreicht man das 63 m² große Dachgeschoss. Hier bekommt jedes Familienmitglied seinen eigenen Rückzugsort. Zwei Kinderzimmer, ein geräumiges Elternschlafzimmer mit angrenzender Ankleide und ein großes Familienbad bilden das geräumige Dachgeschoss.
Dieses Haus wird nach Ihren individuellen Wünschen geplant und ausgestattet!
Traumhaus von Kern-Haus: Individuell & massiv! (inkl. Grundstück)
72178 Waldachtal
Die vollständige Adresse der Immobilie erhalten Sie vom Anbieter.
Auf Karte anzeigen
Die vollständige Adresse der Immobilie erhalten Sie vom Anbieter.
Finanzierungszertifikat
In nur zwei Minuten zu Ihrem persönlichen Finanzierungszertifkat.
Infos
| Haustyp | Doppelhaushaelfte |
|---|---|
| Wohnfläche ca. | 129 m2 |
| Grundstücksfläche | 414 m2 |
| Zimmer | 4 |
| Schlafzimmer | 3 |
| Badezimmer | 1 |
| Anzahl Garage/Stellplatz | 2 |
Kosten
| Kaufpreis |
646.900 € |
|---|---|
| Provision | Nein |
Finanzierungsrechner:
Kaufpreis:
600.000 €
Eigenkapital:
600.000 €
Monatliche Rate
0 €
Effektiver Jahreszins
0 %
Sollzinsbindung
10 Jahre
Bausubstanz & Energieausweis
| Baujahr | 2026 |
|---|---|
| Bauphase | Haus in Planung (projektiert) |
| Objektzustand | Erstbezug |
| Qualität der Austattung | Gehoben |
| Heizungsart | Wärmepumpe |
| Wesentliche Energieträger | Strom |
| Energieausweis | liegt vor |
| Energieausweistyp | Bedarfsausweis |
| Energieverbrauchskennwert | 19,6 kWh/(m²*a) |
| Energieeffizienzklasse | A+ |
19,6
kWh/(m²*a)
Energieeffizienzklasse A+
- A+
- A
- B
- C
- D
- E
- F
- G
- H
- 0
- 25
- 50
- 75
- 100
- 125
- 150
- 175
- 200
- 225
- >250
Beschreibung des Objekts
Ausstattung
4 Zimmer, Küche, Diele, Bad, WC, Ankleide, Flur, Hauswirtschaftsraum
Das gezeigte Traumhaus im Überblick:
+ Schlüsselfertiges Massivhaus im Sinne der Ausstattungsbeschreibung "Edition 25"
+ Zukunftsorientierte Energieausstattung in Form einer Luft-Wasser-Wärmepumpe und Fußbodenheizung sowie einer kontrollierten Wohnraumlüftung mit Wärmerückgewinnung
+ Inklusive Keller
Beste Markenausstattung in jedem Kern-Haus:
+ Zimmermannsmäßiger Dachstuhl aus Konstruktionsvollholz
+ Dacheindeckung mit Betondachsteinen von Braas
+ Hochwertiger Kunstharz-Außenputz für eine langlebige Fassade
+ Vollständige Badausstattung von Villeroy & Boch mit Badewanne und flacher Duschwanne sowie einer Echtglasduschkabine
+ Fliesen von Villeroy & Boch in Bad und WC
+ Haustür mit 5-fach-Sicherheitsverriegelung
+ Erstklassige Innentüren der Marke Herholz
+ Fenster mit 3-Scheiben-Wärmeschutzverglasung und Rollläden
+ Stahl-Holz-Treppe mit individueller Farbgestaltungsmöglichkeit
+ Vollständige und überdurchschnittliche Elektroausstattung inklusive Klingelanlage und Netzwerkdosen
+ Rauchmelder für Ihre Sicherheit
+ Alle Leistungen aus einer Hand
+ Alle Planungs- und Architektenleistungen
+ Einsatz regionaler Handwerksbetriebe
+ Baubegleitende 5-Phasen-TÜV-Prüfung und Blower-Door-Test
+ Individuelle Anpassung auf Ihre Bedürfnisse
+ Auf Wunsch mit weiteren Energietechniken erhältlich
Lage
Das Grundstück liegt in einer landschaftlich attraktiven und gehoben strukturierten Wohnlage von Salzstetten – mit stellenweise herrlichem Fernblick über die umliegende Natur. Salzstetten bietet eine hohe Lebensqualität mit einer guten Infrastruktur. Der Ort verfügt über Einkaufsmöglichkeiten, eine Grundschule, einen Kindergarten und verschiedene Freizeitangebote. Die Nähe zu den Städten Freudenstadt und Horb am Neckar ermöglicht zudem eine gute Anbindung an weiterführende Schulen und Arbeitsplätze. Die enge Verbindung zwischen Salzstetten und der Unternehmensgruppe Fischer prägt den Ort nachhaltig. Die Kombination aus wirtschaftlicher
Stabilität, innovativer Industrie und naturnaher Umgebung macht Salzstetten zu einem attraktiven Standort für Bewohner und
Unternehmen gleichermaßen. Insgesamt ist Salzstetten ein lebenswerter Ort, der Tradition und Moderne harmonisch verbindet und sowohl für Familien als auch für Naturliebhaber und Ruhesuchende attraktiv ist.
Sonstige Angaben
Kern-Haus
Kern-Haus baut individuelle und massive Architektenhäuser zu einem attraktiven Preis-Leistungs-Verhältnis – und das bereits mit einer Erfahrung seit 1980. Bei Kern-Haus erhalten Sie unter anderem 10 Jahre Gewährleistung auf die wesentlichen Bauleistungen, bis zu 24 Monate Preissicherheit sowie eine dokumentierte 5-Phasen-TÜV-Prüfung während der Bauphase. Jedes Kern-Haus als Effizienzhaus 40 ist bereits QNG-zertifiziert durch die Deutsche Gesellschaft für nachhaltiges Bauen (DGNB).
40 Jahre Expertise für das massive, energieeffiziente Bauen: Kern-Haus realisiert Massivhäuser in Ziegel, Bims, Porenbeton oder Stahlbeton (DuoTherm).
Kern-Haus setzt auf eine hohe Bauqualität der Handwerker und auf eine große Auswahl starker Marken. So verwendet Kern-Haus beim Bau Ihres Hauses nur hochwertige Markenprodukte renommierter Hersteller – wie etwa Produkte von Villeroy & Boch.
Preise und Auszeichnungen von Kern-Haus:
- German Brand Award in den Jahren 2018 und 2021
- Hausbau Design Award: Sieger in den Jahren 2017, 2018, 2019, 2020, 2021, 2022 und 2023
- Deutscher Traumhauspreis: Sieger in den Jahren 2014, 2015, 2016 und 2018 und Silber 2017, 2020 und 2021
- Mittelstandspreis "Top 100" in den Jahren 2014, 2016, 2018, 2020 und 2022
- German Design Award im Jahr 2018
Weitere Informationen
Der gezeigte Preis versteht sich inklusive Grundstück und exklusive der Baunebenkosten. Durch die Vorgaben des Bebauungsplans sind am Ideenhaus Planänderungen notwendig.
Grundriss
Grundriss Erdgeschoss
>
>
Grundriss Dachgeschoss
>
>
Adresse
72178 Waldachtal
Interessante Orte
Preis- und Lageinformationen
Preistrend für Bestandsimmobilien in Waldachtal