Diese großzügige Doppelhaushälfte mit einer Wohnfläche von ca. 151 m² befindet sich auf einem weitläufigen Grundstück von rund 1.375 m² und bietet viel Raum für individuelle Gestaltungsideen. Das Haus verfügt über zwei Wohnebenen sowie einen Dachboden und eignet sich ideal für Familien, Mehrgenerationenwohnen oder Wohnen und Arbeiten unter einem Dach.
Der großzügige Wohn- und Essbereich im Erdgeschoss mit Zugang zur Terrasse bildet das Herzstück des Hauses. Große Fenster sorgen für viel Tageslicht und schaffen eine freundliche Wohnatmosphäre. Die Terrasse bietet einen schönen Blick in den weitläufigen Garten, der mit seiner Größe von über 1.300 m² zahlreiche Nutzungsmöglichkeiten für Freizeit, Gartenprojekte oder Spielflächen für Kinder eröffnet.
Das Haus befindet sich in einem gepflegten Zustand und kann grundsätzlich bezogen werden. Einige Bereiche entsprechen noch dem älteren Standard, bieten aber eine solide Grundlage für spätere Modernisierungen nach eigenen Vorstellungen.
Diese Immobilie bietet eine solide Grundstruktur, großzügige Flächen und viel Potenzial, um persönliche Wohnideen zu verwirklichen – ideal für Käufer, die Platz, Ruhe und Gestaltungsspielraum suchen.
Naturnah wohnen – stadtnah leben
16775 Löwenberger Land
Die vollständige Adresse der Immobilie erhalten Sie vom Anbieter.
Auf Karte anzeigen
Die vollständige Adresse der Immobilie erhalten Sie vom Anbieter.
Finanzierungszertifikat
In nur zwei Minuten zu Ihrem persönlichen Finanzierungszertifkat.
Infos
| Haustyp | Doppelhaushaelfte |
|---|---|
| Wohnfläche ca. | 151 m2 |
| Nutzfläche | 224 m2 |
| Grundstücksfläche | 1.375 m2 |
| Zimmer | 5 |
| Badezimmer | 2 |
| Garage/Stellplatz | Carport |
| Anzahl Garage/Stellplatz | 2 |
Kosten
| Kaufpreis |
329.000 € |
|---|---|
| Provision |
Käuferprovision beträgt 3,57 % (inkl. MwSt.) des beurkundeten Kaufpreises |
Finanzierungsrechner:
Kaufpreis:
600.000 €
Eigenkapital:
600.000 €
Monatliche Rate
0 €
Effektiver Jahreszins
0 %
Sollzinsbindung
10 Jahre
Bausubstanz & Energieausweis
| Baujahr | 1921 |
|---|---|
| Bauphase | Haus fertig gestellt |
| Objektzustand | Gepflegt |
| Wesentliche Energieträger | Strom |
| Energieausweis | liegt vor |
| Energieausweistyp | Bedarfsausweis |
| Energieverbrauchskennwert | 223,8 kWh/(m²*a) |
| Energieeffizienzklasse | G |
223,8
kWh/(m²*a)
Energieeffizienzklasse G
- A+
- A
- B
- C
- D
- E
- F
- G
- H
- 0
- 25
- 50
- 75
- 100
- 125
- 150
- 175
- 200
- 225
- >250
Beschreibung des Objekts
Ausstattung
Das Haus befindet sich in einem gepflegten Zustand und bietet eine solide Basis für individuelles Wohnen. In den vergangenen Jahren wurden Teilmodernisierungen durchgeführt.
Beide Etagen verfügen jeweils über einen Kamin, der für eine angenehme Wohnatmosphäre sorgt und eine zusätzliche Heizquelle bietet.
Ein Carport mit der Möglichkeit für zwei Stellplätze bietet praktischen Schutz für Fahrzeuge. Insgesamt überzeugt die Immobilie durch funktionale Grundstrukturen und Potenzial zur individuellen Weiterentwicklung.
Lage
Das Löwenberger Land vereint ländliche Ruhe mit moderner Infrastruktur im Berliner Pendlergürtel. Die Region zeichnet sich durch eine niedrige Bevölkerungsdichte und eine hohe Lebensqualität aus – ideal für Familien, die ein naturnahes Umfeld mit guter Anbindung an die Hauptstadt suchen.
Schulen, Kindergärten, Ärzte und Einkaufsmöglichkeiten sind im Ort und in der näheren Umgebung vorhanden. Der Bahnhof Löwenberg (Mark) liegt nur wenige Minuten entfernt und bietet eine direkte Bahnverbindung nach Berlin – in rund 40 Minuten erreicht man ohne Umsteigen den Potsdamer Platz.
Die Umgebung lädt mit weitläufigen Feldern, Wäldern und mehreren Badeseen, die mit dem Fahrrad in wenigen Minuten erreichbar sind, zu Erholung und Freizeitaktivitäten im Grünen ein.
Sonstige Angaben
GELDWÄSCHE: Als Immobilienmaklerunternehmen ist die von Poll Immobilien GmbH nach § 2 Abs. 1 Nr. 14 und § 11 Abs. 1, 2 Geldwäschegesetz (GwG) dazu verpflichtet, bei der Begründung einer Geschäftsbeziehung die Identität des Vertragspartners festzustellen und zu überprüfen, bzw. sobald ein ernsthaftes Interesse an der Durchführung des Immobilienkaufvertrages besteht. Hierzu ist es erforderlich, dass wir nach § 11 Abs. 4 GwG die relevanten Daten Ihres Personalausweises festhalten (wenn Sie als natürliche Person handeln) – beispielsweise mittels einer Kopie. Bei einer juristischen Person benötigen wir eine Kopie des Handelsregisterauszugs, aus welchem der wirtschaftlich Berechtigte hervorgeht. Das Geldwäschegesetz sieht vor, dass der Makler die Kopien bzw. Unterlagen fünf Jahre aufbewahren muss. Als unser Vertragspartner haben Sie auch eine Mitwirkungspflicht nach § 11 Abs. 6 GwG.
HAFTUNG: Wir weisen darauf hin, dass die von uns weitergegebenen Objektinformationen, Unterlagen, Pläne etc. vom Verkäufer bzw. Vermieter stammen. Eine Haftung für die Richtigkeit oder Vollständigkeit der Angaben übernehmen wir daher nicht. Es obliegt daher unseren Kunden, die darin enthaltenen Objektinformationen und Angaben auf ihre Richtigkeit hin zu überprüfen. Alle Immobilienangebote sind freibleibend und vorbehaltlich Irrtümer, Zwischenverkauf- und Vermietung oder sonstiger Zwischenverwertung.
UNSER SERVICE FÜR SIE ALS EIGENTÜMER:
Planen Sie den Verkauf oder die Vermietung Ihrer Immobilie, so ist es für Sie wichtig, deren Marktwert zu kennen. Lassen Sie kostenfrei und unverbindlich den aktuellen Wert Ihrer Immobilie professionell durch einen unserer Immobilienspezialisten einschätzen. Unser bundesweites und internationales Netzwerk ermöglicht es uns, Verkäufer bzw. Vermieter und Interessenten bestmöglich zusammenzuführen.
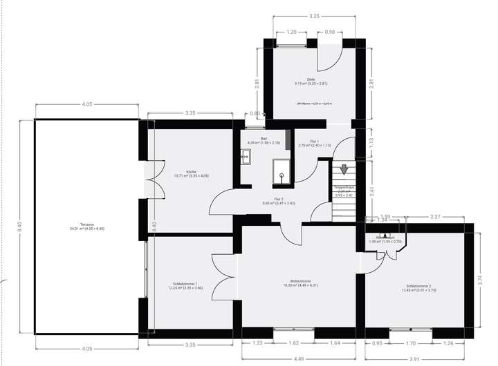
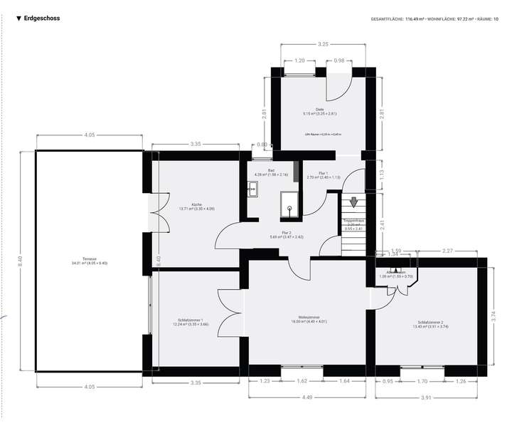
Grundriss
Grundriss EG
>
>
Grundriss DG
>
>
Grundriss DB
>
>
Adresse
16775 Löwenberger Land
Interessante Orte
Preis- und Lageinformationen
Preistrend für Bestandsimmobilien in Löwenberger Land