Dieses außergewöhnliche Wohn- und Geschäftshaus vereint auf beeindruckende Weise Wohnkomfort, solide Rendite und nachhaltige Energiegewinnung. Es spricht sowohl Eigennutzer an, die Wohnen und Arbeiten clever verbinden möchten, als auch Investoren, die Wert auf eine sichere und attraktive Kapitalanlage legen.
Das im Jahr 1989 erbaute und 2019 zuletzt modernisierte Gebäude befindet sich auf einem ca. 583 m² großen Grundstück in ruhiger Lage mit herrlichem Blick über den Schurwald.
Die Immobilie ist in zwei eigenständige Einheiten mit jeweils ebenerdigem Zugang und separater Adresse aufgeteilt.
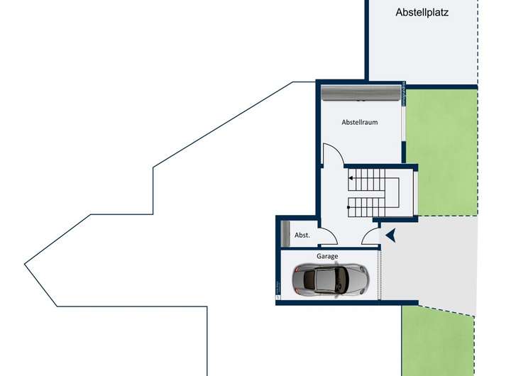
Im Untergeschoss befindet sich die großzügige Arztpraxis, die mit rund 179 m² Nutzfläche ideale Arbeitsbedingungen bietet. Helle Räume, ein durchdachter Grundriss und eine freundliche Atmosphäre schaffen ein angenehmes Umfeld für Patienten und Mitarbeiter. Die Praxis ist durch den Mieter vollständig ausgestattet und seit vielen Jahren zuverlässig vermietet – ein wertvoller Vorteil für Kapitalanleger, die von stabilen Mieteinnahmen und einer langfristigen Nutzung profitieren möchten.
Zum Praxisbereich gehören drei überdachte PKW-Stellplätze, die sowohl für Mitarbeiter als auch für Besucher bequem erreichbar sind.
Im Erdgeschoss liegt die private Wohneinheit mit einer Wohnfläche von ca. 210 m². Schon beim Betreten spürt man die Großzügigkeit und Helligkeit dieses Bereichs. Der weitläufige Wohn- und Essbereich mit seinem offenen Grundriss, dem stilvollen Wintergarten und dem Zugang zur überdachten Terrasse ist der Mittelpunkt des Hauses. Hier genießt man zu jeder Tageszeit den traumhaften Ausblick über den Schurwald und erlebt ein besonderes Wohngefühl.
Die geräumige Einbauküche fügt sich harmonisch in das Raumkonzept ein und bietet alles, was das Kochen zum Vergnügen macht. Durchdachte Raumaufteilungen schaffen vielseitige Nutzungsmöglichkeiten – so lässt sich bei Bedarf eine separate Einliegerwohnung realisieren, ideal für Mehrgenerationenwohnen, Gäste oder ein Homeoffice.
Die Ausstattung des Hauses wurde laufend modernisiert und befindet sich in einem sehr gepflegten Zustand. Eine Fußbodenheizung sorgt im gesamten Haus für ein angenehmes Raumklima. 2008 wurde das Dach inkl. der verschiednen Lichtkuppeln erneuert, 2009 eine 9 kWp Photovoltaikanlage installiert, die mit einem attraktiven Einspeisevertrag bis 2029 für zusätzliche Einnahmen sorgt. 2014 wurden die Fenster größtenteils gegen energieeffiziente, dreifach verglaste Modelle ausgetauscht, und 2019 erhielt das Gebäude eine neue Gaszentralheizung.
Diese Maßnahmen gewährleisten nicht nur zeitgemäßen Komfort, sondern auch eine hervorragende Energieeffizienz und Werterhaltung.
Der Außenbereich ist liebevoll gestaltet und bietet mit dem charmanten Teehaus, überdachten Terrassen und gepflegten Grünflächen zahlreiche Rückzugsmöglichkeiten. Eine Garage sowie ein zusätzlicher PKW-Stellplatz stehen zur Verfügung und runden das Angebot ab.
Die Lage überzeugt durch eine ruhige, gepflegte Umgebung mit hervorragender Infrastruktur. Einkaufsmöglichkeiten, Schulen, Kindergärten und Freizeiteinrichtungen befinden sich in unmittelbarer Nähe. Die gute Verkehrsanbindung sorgt dafür, dass sowohl der Arbeitsweg als auch Freizeitaktivitäten bequem zu erreichen sind.
Dieses Haus ist mehr als nur eine Immobilie – es ist ein Zuhause mit Perspektive. Es vereint Wohnkomfort, Renditepotenzial und nachhaltige Energiegewinnung zu einem harmonischen Gesamtkonzept. Ob als großzügiges Eigenheim mit zusätzlicher Einnahmequelle oder als zukunftssichere Kapitalanlage – hier treffen Lebensqualität, Wirtschaftlichkeit und Weitblick aufeinander.
Wohnen & Rendite vereint mit traumhafter Weitsicht – Einfamilienhaus mit vermieteter Arztpraxis
73773 Aichwald
Die vollständige Adresse der Immobilie erhalten Sie vom Anbieter.
Auf Karte anzeigen
Die vollständige Adresse der Immobilie erhalten Sie vom Anbieter.
Finanzierungszertifikat
In nur zwei Minuten zu Ihrem persönlichen Finanzierungszertifkat.
Infos
| Etagenzahl | 3 |
|---|---|
| Wohnfläche ca. | 210 m2 |
| Nutzfläche | 237 m2 |
| Grundstücksfläche | 583 m2 |
| Zimmer | 17 |
| Badezimmer | 2 |
| Garage/Stellplatz | Garage |
| Anzahl Garage/Stellplatz | 1 |
Kosten
| Kaufpreis |
849.000 € |
|---|---|
| Provision |
Käuferprovision beträgt 4,76 % (inkl. MwSt.) des beurkundeten Kaufpreises |
Finanzierungsrechner:
Kaufpreis:
600.000 €
Eigenkapital:
600.000 €
Monatliche Rate
0 €
Effektiver Jahreszins
0 %
Sollzinsbindung
10 Jahre
Bausubstanz & Energieausweis
| Baujahr | 1989 |
|---|---|
| Letzte Sanierung | 2019 |
| Bauphase | Haus fertig gestellt |
| Objektzustand | Modernisiert |
| Qualität der Austattung | Gehoben |
| Heizungsart | Fußbodenheizung |
| Wesentliche Energieträger | Gas |
| Energieausweis | liegt vor |
| Energieausweistyp | Bedarfsausweis |
| Energieverbrauchskennwert | 102,9 kWh/(m²*a) |
| Energieeffizienzklasse | D |
102,9
kWh/(m²*a)
Energieeffizienzklasse D
- A+
- A
- B
- C
- D
- E
- F
- G
- H
- 0
- 25
- 50
- 75
- 100
- 125
- 150
- 175
- 200
- 225
- >250
Beschreibung des Objekts
Ausstattung
Sanierungen und Modernisierungen:
2008 - Neue Dacheindeckung
2009 - PV Anlage mit 9 kWp mit sehr gutem Einspeisevertrag bis 2029
2014 - Erneuerung der Fenster (3-fach Verglasung)
2019 - neue Gaszentral-Heizung
Ausstattungshighlights:
Fußbodenheizung
Lichtkuppeln in verschiednen Bereichen
Teehaus
Panoramaaussicht
Traumhafte Außenbereiche
Wintergarten
Überdachte Terrassen
3 überdachte PKW-Stellplätze
1 PKW-Freiplatz
1 Garagenstellplatz
vermietete Arztpraxis mit sehr guter Rendite
Lage
Die Gemeinde Aichwald mit ihren ca. 7.600 Einwohnern liegt inmitten des vielbesuchten Naherholungsgebietes - Vorderer Schurwald.
Die Landschaft ist geprägt von vielen Feldern, Obstwiesen und Wäldern, die Groß und Klein für Freizeitaktivitäten und Entdeckungstouren einladen. Mit den zahlreichen Waldflächen in der Umgebung wird ein sauberes Luftklima und ein ländliches Flair vermittelt.
Die Gemeinde Aichwald verfügt über eine gute Infrastruktur mit Einkaufsmöglichkeiten, Handwerksbetrieben und Dienstleistungsunternehmen. Für Familien mit Kinder sind Kindergärten und Schulen in unmittelbarer Umgebung und gut zu erreichen. In unmittelbarer Nähe (ca. 5 km) zu Aichwald befindet sich Weinstadt. Hier sind weitere umfassende Angebote im Bereich Einkaufen, Freizeitgestaltung und Bildung gegeben.
Die Stadt Esslingen und Weinstadt erreichen Sie bequem mit dem ÖPNV oder dem Auto in ungefähr 10-20 Minuten.
Sonstige Angaben
GELDWÄSCHE: Als Immobilienmaklerunternehmen ist die von Poll Immobilien GmbH nach § 2 Abs. 1 Nr. 14 und § 11 Abs. 1, 2 Geldwäschegesetz (GwG) dazu verpflichtet, bei der Begründung einer Geschäftsbeziehung die Identität des Vertragspartners festzustellen und zu überprüfen, bzw. sobald ein ernsthaftes Interesse an der Durchführung des Immobilienkaufvertrages besteht. Hierzu ist es erforderlich, dass wir nach § 11 Abs. 4 GwG die relevanten Daten Ihres Personalausweises festhalten (wenn Sie als natürliche Person handeln) – beispielsweise mittels einer Kopie. Bei einer juristischen Person benötigen wir eine Kopie des Handelsregisterauszugs, aus welchem der wirtschaftlich Berechtigte hervorgeht. Das Geldwäschegesetz sieht vor, dass der Makler die Kopien bzw. Unterlagen fünf Jahre aufbewahren muss. Als unser Vertragspartner haben Sie auch eine Mitwirkungspflicht nach § 11 Abs. 6 GwG.
HAFTUNG: Wir weisen darauf hin, dass die von uns weitergegebenen Objektinformationen, Unterlagen, Pläne etc. vom Verkäufer bzw. Vermieter stammen. Eine Haftung für die Richtigkeit oder Vollständigkeit der Angaben übernehmen wir daher nicht. Es obliegt daher unseren Kunden, die darin enthaltenen Objektinformationen und Angaben auf ihre Richtigkeit hin zu überprüfen. Alle Immobilienangebote sind freibleibend und vorbehaltlich Irrtümer, Zwischenverkauf- und Vermietung oder sonstiger Zwischenverwertung.
UNSER SERVICE FÜR SIE ALS EIGENTÜMER:
Planen Sie den Verkauf oder die Vermietung Ihrer Immobilie, so ist es für Sie wichtig, deren Marktwert zu kennen. Lassen Sie kostenfrei und unverbindlich den aktuellen Wert Ihrer Immobilie professionell durch einen unserer Immobilienspezialisten einschätzen. Unser bundesweites und internationales Netzwerk ermöglicht es uns, Verkäufer bzw. Vermieter und Interessenten bestmöglich zusammenzuführen.
Grundriss
Grundriss EG
>
>
Grundriss 1. UG
>
>
Grundriss 2. UG
>
>
Adresse
73773 Aichwald
Interessante Orte
Preis- und Lageinformationen
Preistrend für Bestandsimmobilien in Aichwald