Dieses freistehende Einfamilienhaus in Darmstadt-Wixhausen aus dem Jahr 1912 vereint den Charme vergangener Zeiten mit dem Komfort modernen Wohnens. Auf einem ca. 230 m² großen Grundstück gelegen, präsentiert sich die Immobilie nach einer umfassenden Modernisierung im Jahr 2015 in hervorragendem, bezugsfertigem Zustand. Die rund 125 m² Wohnfläche verteilen sich auf vier gut geschnittene Zimmer und bieten vielfältige Gestaltungsmöglichkeiten für individuelle Wohnideen. Herzstück des Hauses ist die großzügige Einbauküche in eleganter Bordeaux-Rot-Lackoptik inkl. Fussbodenheizung, die höchsten Ansprüchen gerecht wird. Zwei moderne Badezimmer (1 x Badezimmer en-suite im 1. OG) unterstreichen den zeitgemäßen Wohnkomfort. Im großzügigen Wohnbereich besticht der hochwertige, seltene Hirnholzboden, der dem Haus eine warme und stilvolle Atmosphäre verleiht. In den weiteren Räumen finden sich edle Schiffsbodendielen, dunkelgraue Fliesen und Korkböden, die harmonisch aufeinander abgestimmt sind. Der pflegeleichte Garten lädt zum Verweilen im Freien ein, während ein Balkon zusätzlichen Raum zur Entspannung bietet. Das Gebäude ist voll unterkellert und wurde durch einen Anbau aus dem Jahr 1980 erweitert, wodurch zusätzliche Nutz- und Abstellflächen entstanden sind. Eine effiziente Junkers-Gasheizung (Baujahr 1997) sorgt für angenehme Wärme im gesamten Haus. Mit seiner gelungenen Kombination aus historischem Charakter und modernem Komfort ist dieses Einfamilienhaus ein echtes Schmuckstück – ideal für alle, die stilvolles Wohnen mit besonderem Ambiente schätzen.
Charmantes Einfamilienhaus mit historischem Flair und modernem Wohnkomfort
64291 Darmstadt
Die vollständige Adresse der Immobilie erhalten Sie vom Anbieter.
Auf Karte anzeigen
Die vollständige Adresse der Immobilie erhalten Sie vom Anbieter.

Finanzierungszertifikat
In nur zwei Minuten zu Ihrem persönlichen Finanzierungszertifkat.
Infos
Haustyp | Einfamilienhaus |
---|---|
Etagenzahl | 2 |
Wohnfläche ca. | 101 m2 |
Nutzfläche | 39,75 m2 |
Grundstücksfläche | 230 m2 |
Bezugsfrei ab | nach Vereinbarung |
Zimmer | 4 |
Schlafzimmer | 2 |
Badezimmer | 2 |
Kosten
Kaufpreis |
484.000 € |
---|---|
Provision |
3,57 % inkl. der gesetzl. MwSt., bezogen auf den Kaufpreis |
Finanzierungsrechner:
Kaufpreis:
600.000 €
Eigenkapital:
600.000 €
Monatliche Rate
0 €
Effektiver Jahreszins
0 %
Sollzinsbindung
10 Jahre
Bausubstanz & Energieausweis
Baujahr | 1912 |
---|---|
Objektzustand | Modernisiert |
Heizungsart | Zentralheizung |
Wesentliche Energieträger | Gas |
Energieausweis | liegt vor |
Energieausweistyp | Verbrauchsausweis |
Energieverbrauchskennwert | 189,6 kWh/(m²*a) |
Energieeffizienzklasse | F |
189,6
kWh/(m²*a)
Energieeffizienzklasse F
- A+
- A
- B
- C
- D
- E
- F
- G
- H
- 0
- 25
- 50
- 75
- 100
- 125
- 150
- 175
- 200
- 225
- >250
Beschreibung des Objekts
Ausstattung
* Wohnen auf zwei Ebenen * hochwertige Bordeaux-Rote Lackküche aus dem Jahr 2008 mit Fussbodenheizung * verschiedene Bodenbeläge (dunkelgraue Fliesen, Hirnholzparket, Kork und Holzboden * dreifach verglaste Kuststofffenster * elektische Aufsatzrollläden * Balkonkraftwerk ohne Speicher * abgehängte Decken mit Leuchten * 1 x Badezimmer en-suite * 1 Gäste Badezimmer/WC * komplett Unterkellert * wunderbar blühender Garten * Junker Gasheizung aus dem Jahr 1997 * Stellplatz
Lage
Die Rebusgasse 11 liegt im beliebten Darmstädter Stadtteil Wixhausen, dem nördlichsten Stadtteil der Wissenschaftsstadt. Der Ortsteil zeichnet sich durch seinen charmanten Mix aus dörflichem Flair und urbaner Anbindung aus. Rund um den historischen Ortskern mit der evangelischen Kirche von 1776 prägen Fachwerkhäuser und gepflegte Wohngebäude das Bild. Gleichzeitig bietet Wixhausen alles, was man im Alltag braucht: Supermärkte, Bäckereien, Apotheken und kleinere Fachgeschäfte sind bequem erreichbar. Kindergärten und eine Grundschule befinden sich direkt im Stadtteil, weiterführende Schulen sind in den benachbarten Stadtteilen schnell erreichbar. Verkehrstechnisch ist Wixhausen hervorragend angebunden. Mit der S-Bahn-Linie S6 gelangt man in wenigen Minuten zum Darmstädter Hauptbahnhof und hat eine direkte Verbindung bis Frankfurt am Main. Buslinien ergänzen das öffentliche Verkehrsnetz, während die Bundesstraße B3 und die nahegelegene Autobahn A5 eine schnelle Anbindung mit dem Auto ermöglichen. Auch für Freizeit und Erholung ist gesorgt: Grünflächen, Spazierwege und das nahegelegene Vogelschutzgehölz Pechbusch laden zu Ausflügen in die Natur ein. Gleichzeitig ist Darmstadt mit seinem vielfältigen Kultur-, Freizeit- und Einkaufsangebot schnell erreicht. Die Lage der Rebusgasse verbindet somit die Ruhe eines gewachsenen Wohngebiets mit einer sehr guten Infrastruktur und idealen Verkehrsanbindungen – perfekt für alle, die naturnah wohnen und dennoch städtische Annehmlichkeiten nicht missen möchten.
Sonstige Angaben
Ihre Werte sind bei uns in besten Händen! Seit über 25 Jahren wird unser Unternehmen von Kirsten und Björn Dahler geführt und setzt mit Innovationskraft und Servicequalität Maßstäbe in der Branche. Unsere mehr als 80 Standorte in Deutschland und Spanien unterstützen den Erfolg Ihres Immobilienverkaufs nachhaltig und stehen Ihnen in allen Themen rund um den Immobilienverkauf professionell zur Seite. Unsere Maxime ist es, Ihre Erwartungen beim Immobilienverkauf zu übertreffen und wir freuen uns, Ihnen mit unseren Fach- und Marktkenntnissen und einer kompetenten Beratung zur Seite zu stehen. Unabhängig davon, ob Sie ein Haus oder eine Wohnung verkaufen möchten. Wir verstehen uns als Servicemakler. Denn wer sein Anliegen rund um das Thema Immobilie in unsere Hände legt, vertraut auf den verantwortungsvollen Umgang mit erheblichen materiellen Werten. Diesem Anspruch begegnen wir in allen Phasen des Verkaufs einer Immobilie mit innovativen Serviceleistungen. Dabei stehen profunde Fach- und Marktkenntnisse und eine kompetente Beratung im Vordergrund.
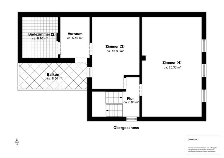
Grundriss
Untergeschoss
>

Erdgeschoss
>

Obergeschoss
>

Adresse
64291 Darmstadt
Interessante Orte
Preis- und Lageinformationen
Preistrend für Bestandsimmobilien in Wixhausen