Das Dreifamilienhaus (Doppelhaushälfte) befindet sich in ruhiger, gesuchter Wohnlage und präsentiert sich in ordentlichem und gepflegtem Zustand. Von den drei Wohnungen ist derzeit eine (1. OG) vermietet. Die barrierefreie Erdgeschoßwohnung steht leer, die Dachgeschoßmaisonette wird vom Eigentümer selbst bewohnt. Die aktuelle Mieteinnahme des Hauses ist daher nicht repräsentativ. Nach dem Verkauf besteht die Möglichkeit, falls gewünscht, dass der bisherige Eigentümer als Mieter in der DG-Wohnung bleibt.
Das Gebäude bietet eine Reihe unterschiedlicher Nutzungsmöglichkeiten. Als solide Kapitalanlage, zum selber nutzen oder als Generationenhaus – flexibel nutzbar für die unterschiedlichsten Lebensentwürfe.
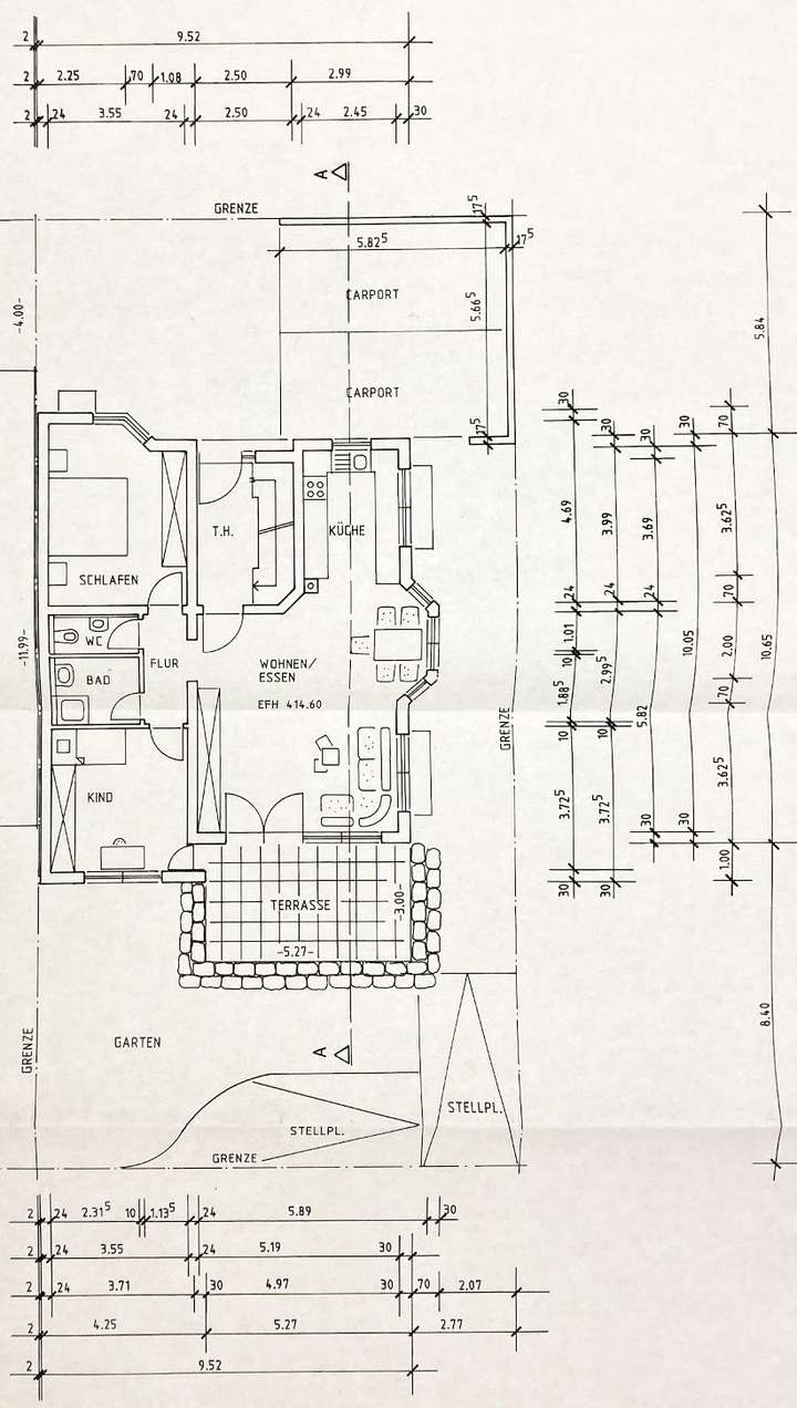
Alle Wohnungen verfügen über einen Balkon oder Terrasse und eine Einbauküche. Insgesamt steh für das Gebäude 4 Pkw-Stellplätze zur Verfügung (2x Carport, 2x nicht überdacht). Die Wohnung im Erdgeschoss ist weitestgehend barrierefrei ausgestattet.
2023 wurde die Heizung erneuert. Die damit verbundene Energieeinsparung ist im vorliegenden Energieausweis von 2021 daher nichtberücksichtigt.
Bei Voll-/ Neuvermietung ist mit einer Jahreskaltmiete von ca. 45.000,-€ zu rechnen.
Geflegtes Dreifamilienhaus in guter Wohnlage (1 WE barrierefrei)
71272 Renningen
Die vollständige Adresse der Immobilie erhalten Sie vom Anbieter.
Auf Karte anzeigen
Die vollständige Adresse der Immobilie erhalten Sie vom Anbieter.
Finanzierungszertifikat
In nur zwei Minuten zu Ihrem persönlichen Finanzierungszertifkat.
Infos
| Haustyp | Mehrfamilienhaus |
|---|---|
| Etagenzahl | 4 |
| Wohnfläche ca. | 270 m2 |
| Nutzfläche | 350 m2 |
| Grundstücksfläche | 306 m2 |
| Bezugsfrei ab | nach Absprache |
| Zimmer | 9 |
| Garage/Stellplatz | Carport |
| Anzahl Garage/Stellplatz | 4 |
Kosten
| Kaufpreis |
1.250.000 € |
|---|---|
| Provision |
4,165% Die Vermittlungsprovision (Käuferprovision) zur angebotenen Immobilie wird fällig mit Abschluss des notariellen Kaufvertrags. |
Finanzierungsrechner:
Kaufpreis:
600.000 €
Eigenkapital:
600.000 €
Monatliche Rate
0 €
Effektiver Jahreszins
0 %
Sollzinsbindung
10 Jahre
Bausubstanz & Energieausweis
| Baujahr | 2000 |
|---|---|
| Bauphase | Haus fertig gestellt |
| Objektzustand | Gepflegt |
| Qualität der Austattung | Gehoben |
| Heizungsart | Zentralheizung |
| Wesentliche Energieträger | Gas |
| Energieausweis | liegt vor |
| Energieausweistyp | Verbrauchsausweis |
| Energieverbrauchskennwert | 120,5 kWh/(m²*a) |
| Energieeffizienzklasse | D |
120,5
kWh/(m²*a)
Energieeffizienzklasse D
- A+
- A
- B
- C
- D
- E
- F
- G
- H
- 0
- 25
- 50
- 75
- 100
- 125
- 150
- 175
- 200
- 225
- >250
Beschreibung des Objekts
Ausstattung
3 Wohnungen mit je 3 Zimmern + Terrasse oder Balkon
4 Pkw-Stellplätze
Einbauküchen
Kunststofffenster
Laminat-/ Fliesenböden
Zentralheizung (Gas)
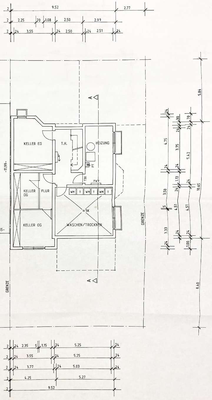
Abstellkeller
Waschküche
Lage
Ihr Haus befinden sich in einer guten, ruhigen Wohnlage von Renningen-Malmsheim. Malmsheim verfügt über einen S-Bahnanschluss, eine Grundschule, mehrere Kindergärten und Einkaufsmöglichkeiten für den täglichen Bedarf.
Sonstige Angaben
Alle Angaben beruhen Auf den Informationen der Eigentümer. Eine Gewähr für deren Richtigkeit können wir nicht übernehmen.
Zur Bearbeitung Ihrer Anfrage benötigen wir Ihre VOLLSTÄNDIGEN Kontaktdaten (dazu gehören Name, Anschrift, Telefonnummer, E-Mailadresse)
Grundriss
Keller
>
>
Erdgeschoss
>
>
1. Obergeschoss
>
>
Dachgeschoss I
>
>
Dachgeschoss II
>
>
Gebäudeschnitt
>
>
Adresse
71272 Renningen
Interessante Orte
Preis- und Lageinformationen
Preistrend für Bestandsimmobilien in Renningen