In einer bevorzugten Wohngegend von Hargesheim liegt dieses freistehende Einfamilienhaus auf einem großzügigen Grundstück von 714 m². Das Objekt verfügt über eine Wohnfläche von rund 112 m², einen durchdachten Grundriss und eine solide Bausubstanz. Es eignet sich für unterschiedliche Wohnkonzepte, wie beispielsweise zur Eigennutzung, als Mehrgenerationenwohnen oder als Kapitalanlage.
Die Immobilie ist aktuell unbewohnt und kann sofort bezogen werden. Dies bietet sowohl Eigennutzern als auch Investoren flexible Möglichkeiten zur individuellen Planung und Umsetzung – und das ohne zeitliche Verzögerung.
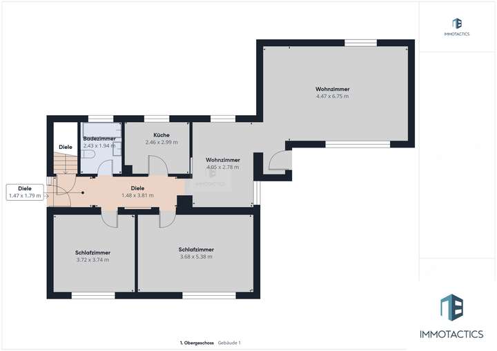
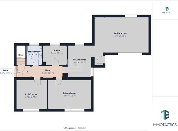
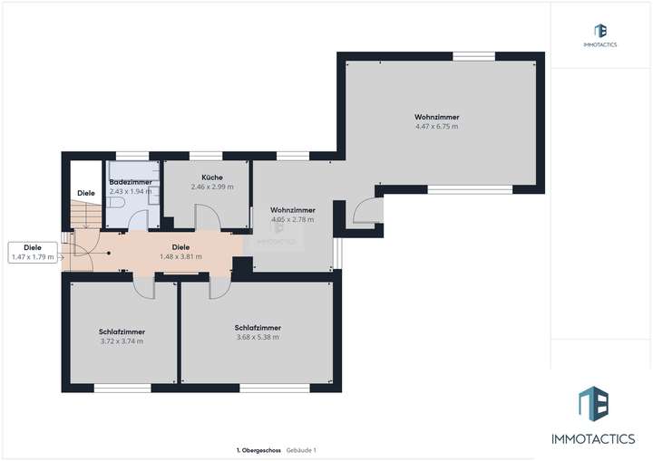
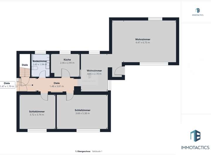
Im Erdgeschoss befindet sich ein großzügiger Wohn- und Essbereich mit breiter Fensterfront und Zugang zur Terrasse. Die Räumlichkeit ist lichtdurchflutet und eignet sich ideal für entspannte Stunden mit Familie oder Freunden. Die separate Küche bietet einen gut nutzbaren Zuschnitt und lässt sich je nach Wunsch offen gestalten. Auf derselben Ebene befinden sich zwei zusätzliche Räumlichkeiten, die sich vorzüglich als Kinder-, Gäste- oder Arbeitszimmer eignen. Ein Tageslichtbad mit Badewanne sowie ein Flur mit praktischen Stauraumlösungen ergänzen diese Etage sinnvoll.
Das Untergeschoss bietet mehr als nur Nutzfläche: Ein großer, heller Raum mit direktem Zugang zum Garten eröffnet vielfältige Nutzungsmöglichkeiten – etwa als Hobbyraum, Atelier, Homeoffice oder Rückzugsbereich. Ein separates WC, Technikräume und weitere Abstellflächen bieten zusätzlichen Komfort. Aufgrund der guten Tageslichtverhältnisse und der Raumhöhe eignet sich das Untergeschoss auch für eine teilwohnliche Nutzung.
Großes Grundstück mit Potenzial
Das großzügige Grundstück mit sonniger Süd-/Westausrichtung ist besonders hervorzuheben. Die Fläche eignet sich beispielsweise als Spielfläche für Kinder, als Rückzugsort für Gartenliebhaber oder als Erweiterungspotenzial für kreative Projekte. Auch für Investoren bietet sich hier Entwicklungsspielraum, etwa durch An- oder Umbauten.
Eine Garage sowie zwei Außenstellplätze direkt am Haus sorgen für komfortable Parkmöglichkeiten.
Solide Basis mit Entwicklungsmöglichkeiten
Das Gebäude wurde etwa 1963 errichtet und zuletzt im Jahr 2014 modernisiert. Das Objekt präsentiert sich in einem gepflegten Zustand und bietet eine ideale Grundlage für individuelle Modernisierungen und zeitgemäße Ausstattungsupdates. Der leerstehende Zustand des Objekts ermöglicht es den neuen Eigentümern, ohne Vorlaufzeit mit der Umsetzung ihrer Vorstellungen zu beginnen.
Unabhängig davon, ob Sie eine Wohnimmobilie für Ihre Familie suchen, Wohnen und Arbeiten unter einem Dach verbinden möchten oder nach einem Renditeobjekt Ausschau halten – dieses Haus bietet Ihnen die Möglichkeit, Ihre Pläne zu verwirklichen.
Fazit- Wohnraum mit Zukunftsperspektive
Diese Immobilie besticht durch ihre Lage, Grundstücksgröße und Nutzungsvielfalt. Die klare Raumstruktur, der zusätzliche Bereich im Untergeschoss und der große Garten machen sie insbesondere für Familien mit Platzbedarf, Paare mit Homeoffice-Wunsch oder Investoren mit Weitblick interessant.
Mit einer sorgfältigen Gestaltung kann hier ein modernes Zuhause oder ein attraktives Anlageobjekt entstehen. Der zweite Badbereich im Untergeschoss, die flexiblen Nutzungsmöglichkeiten und die ruhige Wohnlage bieten dafür die besten Voraussetzungen.
Freistehendes Einfamilienhaus in Hargesheim mit großem Garten & Garage – ab sofort bezugsfrei
55595 Hargesheim
Die vollständige Adresse der Immobilie erhalten Sie vom Anbieter.
Auf Karte anzeigen
Die vollständige Adresse der Immobilie erhalten Sie vom Anbieter.
Finanzierungszertifikat
In nur zwei Minuten zu Ihrem persönlichen Finanzierungszertifkat.
Infos
| Haustyp | Einfamilienhaus |
|---|---|
| Etagenzahl | 2 |
| Wohnfläche ca. | 112 m2 |
| Nutzfläche | 66 m2 |
| Grundstücksfläche | 714 m2 |
| Bezugsfrei ab | sofort |
| Zimmer | 4 |
| Schlafzimmer | 3 |
| Badezimmer | 1 |
| Anzahl Garage/Stellplatz | 3 |
Kosten
| Kaufpreis |
324.900 € |
|---|---|
| Provision |
3,57 % inkl. gesetzlicher Umsatzsteuer |
Finanzierungsrechner:
Kaufpreis:
600.000 €
Eigenkapital:
600.000 €
Monatliche Rate
0 €
Effektiver Jahreszins
0 %
Sollzinsbindung
10 Jahre
Bausubstanz & Energieausweis
| Baujahr | 1963 |
|---|---|
| Letzte Sanierung | 2014 |
| Bauphase | Haus fertig gestellt |
| Objektzustand | Gepflegt |
| Qualität der Austattung | Normal |
| Heizungsart | Gas-Heizung |
| Wesentliche Energieträger | Gas |
| Energieausweis | liegt vor |
| Energieausweistyp | Verbrauchsausweis |
| Energieverbrauchskennwert | 146,3 kWh/(m²*a) |
| Energieeffizienzklasse | E |
146,3
kWh/(m²*a)
Energieeffizienzklasse E
- A+
- A
- B
- C
- D
- E
- F
- G
- H
- 0
- 25
- 50
- 75
- 100
- 125
- 150
- 175
- 200
- 225
- >250
Beschreibung des Objekts
Ausstattung
-Baujahr: ca. 1963
-Modernisierung: 2014
-Wohnfläche: ca. 112m²
-Zimmer: 4 (3 Schlafzimmer + 1 Wohn-/Essbereich)
-1 Badezimmer+ separates WC
-Keller: vollständig nutzbar, teils mit Tageslicht
-Fenster: teilweise erneuert (Kunststoff, isolierverglast)
-Stellplätze: eine Garage sowie zwei Außenstellplätze bieten komfortable Parkmöglichkeiten direkt am Haus – ideal für Mehr-Pkw-Haushalte oder künftige Mieter
-Großer Garten mit Süd-Ausrichtung – vielseitig nutzbar
Lage
Hargesheim gehört zu den begehrten Wohnlagen im direkten Einzugsgebiet von Bad Kreuznach und verbindet ein ruhiges Wohnumfeld mit hervorragender Infrastruktur – perfekt für alle, die entspannt wohnen und dennoch schnell in der Stadt sein möchten. Die Gemeinde ist bekannt für ihre familienfreundliche Atmosphäre, ein reges Vereinsleben und eine gute Anbindung an den öffentlichen Nahverkehr sowie die umliegenden Verkehrsachsen.
Nur wenige Minuten entfernt befinden sich zahlreiche Einkaufsmöglichkeiten, Kindergärten und Schulen – darunter auch eine sehr gut erreichbare integrierte Gesamtschule. Für den schnellen Einkauf zwischendurch oder die alltäglichen Erledigungen muss man also nicht weit fahren. Auch Ärzte, Apotheken und Freizeitangebote sind bequem erreichbar und machen den Alltag angenehm unkompliziert.
Besonders attraktiv ist die Nähe zur Stadt Bad Kreuznach mit ihrer historischen Altstadt, einem breiten Kultur- und Gastronomieangebot und dem Kurgebiet. Pendler profitieren von der schnellen Anbindung über die B41 und B50 sowie die A61, über die auch das Rhein-Main-Gebiet und der Flughafen Frankfurt gut erreichbar sind. Die Fahrzeit dorthin beträgt rund 60 bis 75 Minuten mit dem Auto – ideal für Berufspendler mit gelegentlichen Geschäftsreisen.
Für Naturfreunde und aktive Familien bietet die Umgebung zahlreiche Möglichkeiten: Ob Spaziergänge durch die Weinberge, Fahrradtouren entlang der Nahe oder Ausflüge in den Soonwald – hier lebt man naturnah und dennoch urban angebunden.
Hargesheim vereint das Beste aus zwei Welten: ein entspanntes Wohngefühl mit hoher Lebensqualität und die Nähe zu allem, was das moderne Leben braucht.
Sonstige Angaben
Die in unserem Exposé enthaltenen Aussagen basieren ausschließlich auf Informationen, die uns vom Verkäufer und von Handwerkern zur Verfügung gestellt wurden.
Wir übernehmen daher keine Gewähr für die Vollständigkeit und Richtigkeit der Angaben.
Das Immobilienangebot ist freibleibend.
Irrtum und Zwischenverkauf bleiben vorbehalten.
Weitere Details zum Objekt erläutern wir Ihnen gerne bei einem Besichtigungstermin.
Wir bitten um Ihr Verständnis dafür, dass wir nur Anfragen mit vollständigen Adressdaten inklusive Vor- und Zuname, Anschrift, Telefon-/Mobilnummer und Email Adresse bearbeiten können.
Sie suchen nach der passenden Finanzierung? Wir finden sie!
Als ungebundene Finanzierungsvermittler vergleichen wir über 900 Banken und finden einen optimalen Kredit für Sie.
Sparen Sie Geld und Zeit! Mit Sicherheit günstiger als Ihre Hausbank.
Informieren Sie sich jetzt hier, kostenfrei und unverbindlich über Finanzierungsmöglichkeiten zu dieser Immobilie. Fördermittelberatung inklusive.
Wir freuen uns auf den Kontakt zu Ihnen.
Immotactics GmbH
0671 – 20272030
info@immotactics.de
Grundriss
Grundriss EG
>
>
Grundriss Keller
>
>
Optionaler Grundriss nach Umba
>
>
Adresse
55595 Hargesheim
Interessante Orte
Preis- und Lageinformationen
Preistrend für Bestandsimmobilien in Hargesheim