Modernes Wohnen im Grünen – Doppelhaushälfte mit Einliegerwohnung und großzügigen Außenbereichen
Diese im Jahr 2023 errichtete Doppelhaushälfte vereint moderne Architektur, hochwertige Ausstattung und ein durchdachtes Raumkonzept auf insgesamt 212,15 m² Wohnfläche. Das Haus befindet sich in einem ruhigen Neubaugebiet mit Kindergarten und Grundschule in unmittelbarer Nähe – ideal für Familien, die Komfort, Sicherheit und eine naturnahe Umgebung schätzen.
Die Immobilie besticht durch ihre massive Bauweise und die Energieeffizienzklasse A, realisiert durch eine moderne Wärmepumpe und vollflächige Fußbodenheizung in allen Räumen. Sämtliche Zimmer sind mit LAN-Anschlüssen ausgestattet, was optimale Voraussetzungen für Arbeiten im Homeoffice schafft.
Das Hauptgeschoss überzeugt mit einem großzügigen Wohn- und Essbereich und direktem Zugang zur rund 32 m² großen Terrasse mit Blick ins unverbaute Grüne. Im Obergeschoss erwarten Sie drei Schlafzimmer, ein modernes Tageslichtbad, ein separates Home-Office mit Bad en Suite sowie ein rund 15,44 m² großer Balkon darüber im Obergeschoss. Ein Wäscheschacht sorgt für zusätzlichen Komfort im Alltag.
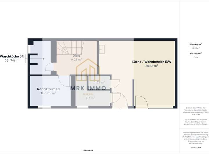
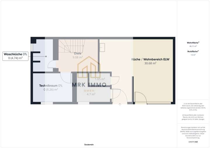
Im Souterrain befindet sich eine separate Einliegerwohnung mit eigenem Zugang – ideal für Gäste, Berufspendler oder zur Vermietung. Hier stehen eine eigene Küche, ein Bad sowie ein separater Wohnbereich zur Verfügung.
Das Haus verfügt über zwei Außenstellplätze direkt am Grundstück. Die Garten- und Außenanlagen sind derzeit noch nicht fertiggestellt, wodurch individuelle Gestaltungs- oder Umbauwünsche des Käufers auf Wunsch noch berücksichtigt werden können.
Moderne Doppelhaushälfte (Baujahr 2023) mit Einliegerwohnung und schönem Ausblick
74861 Neudenau
Die vollständige Adresse der Immobilie erhalten Sie vom Anbieter.
Auf Karte anzeigen
Die vollständige Adresse der Immobilie erhalten Sie vom Anbieter.
Finanzierungszertifikat
In nur zwei Minuten zu Ihrem persönlichen Finanzierungszertifkat.
Infos
| Haustyp | Doppelhaushaelfte |
|---|---|
| Etagenzahl | 3 |
| Wohnfläche ca. | 212 m2 |
| Nutzfläche | 59,11 m2 |
| Grundstücksfläche | 304 m2 |
| Bezugsfrei ab | sofort |
| Zimmer | 6 |
| Schlafzimmer | 5 |
| Badezimmer | 3 |
| Garage/Stellplatz | Außenstellplatz |
| Anzahl Garage/Stellplatz | 2 |
Kosten
| Kaufpreis |
619.000 € |
|---|---|
| Preis für Garage/Stellplatz | 0 € |
| Provision |
2,98 % inkl. MwSt. Provision für den Käufer: 2,98 % des Kaufpreises inkl. 19 % MwSt., fällig mit Abschluss des notariellen Kaufvertrags. Der Makler hat einen provisionspflichtigen Maklervertrag mit dem Verkäufer in gleicher Höhe abgeschlossen. |
Finanzierungsrechner:
Kaufpreis:
600.000 €
Eigenkapital:
600.000 €
Monatliche Rate
0 €
Effektiver Jahreszins
0 %
Sollzinsbindung
10 Jahre
Bausubstanz & Energieausweis
| Baujahr | 2023 |
|---|---|
| Letzte Sanierung | 2025 |
| Bauphase | Haus fertig gestellt |
| Objektzustand | Neuwertig |
| Qualität der Austattung | Gehoben |
| Heizungsart | Wärmepumpe |
| Wesentliche Energieträger | Strom |
| Energieausweis | liegt vor |
| Energieausweistyp | Bedarfsausweis |
| Energieverbrauchskennwert | 32,2 kWh/(m²*a) |
| Energieeffizienzklasse | A |
32,2
kWh/(m²*a)
Energieeffizienzklasse A
- A+
- A
- B
- C
- D
- E
- F
- G
- H
- 0
- 25
- 50
- 75
- 100
- 125
- 150
- 175
- 200
- 225
- >250
Beschreibung des Objekts
Ausstattung
Neubaustandard in gehobener Qualitätsstufe (2023)
- Einbauschränke in der Waschküche
- Fenster mit Sonnenschutzverglasung
- 3 Bäder + Gäste-WC
- Einbauküche
- Wäscheschacht
- Massivbauweise
- elektrische Rollläden
- Wärmepumpe
- vollflächige Fußbodenheizung
- LAN-Verkabelung im Gesamthaus
- Außenstellplätze
- ebenerdig begehbar
- Keller
- Einliegerwohnung
Lage
Die Immobilie liegt in Neudenau-Siglingen im Neubaugebiet. In Laufnähe gibt es ein Restaurant. Weiter entfernt gibt es zudem mehrere Einkaufsmöglichkeiten, Schulen und einen Kindergarten. Einige Museen, zahlreiche Erholungs- und Sportmöglichkeiten und eine gute medizinische Versorgung erreichen Sie schließlich ebenfalls im größeren Umkreis.
Sonstige Angaben
Die Immobilie ist aktuell vom Eigentümer bewohnt, kann jedoch kurzfristig bezogen werden.
Grundriss
Erdgeschoss
>
>
Obergeschoss
>
>
Dachgeschoss
>
>
Einliegerwohnung
>
>
Gesamtübersicht WFl (ohne Terr
>
>
Adresse
74861 Neudenau
Interessante Orte
Preis- und Lageinformationen
Preistrend für Bestandsimmobilien in Neudenau