Diese DHH befindet sich noch im Bau.
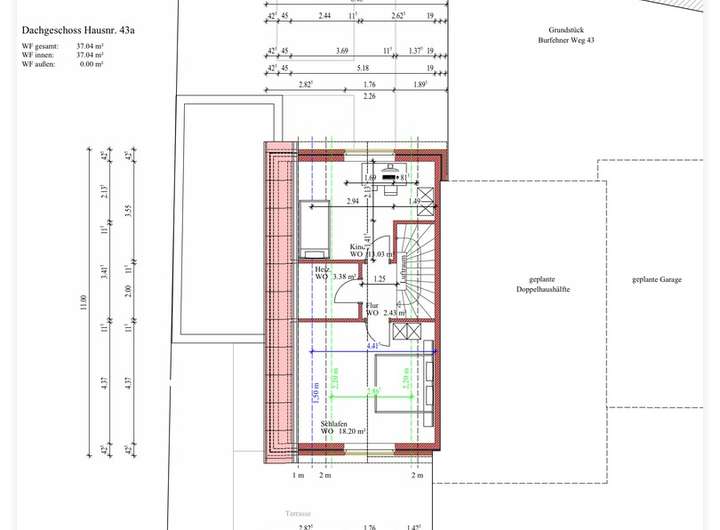
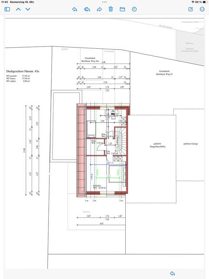
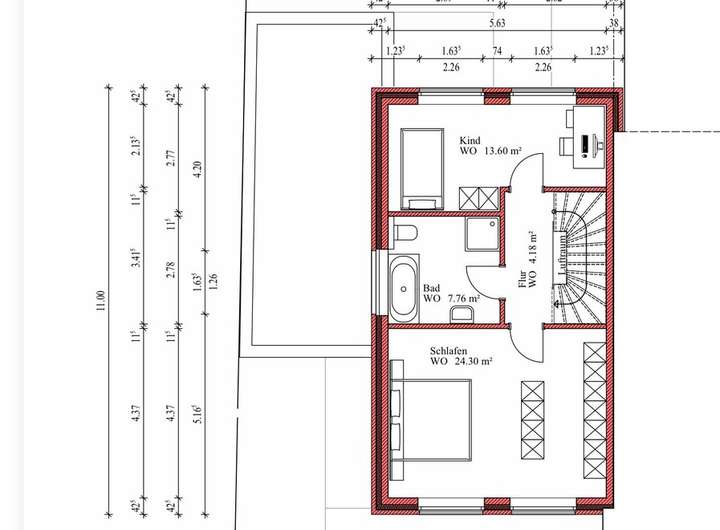
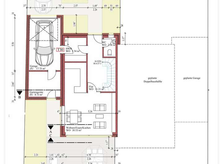
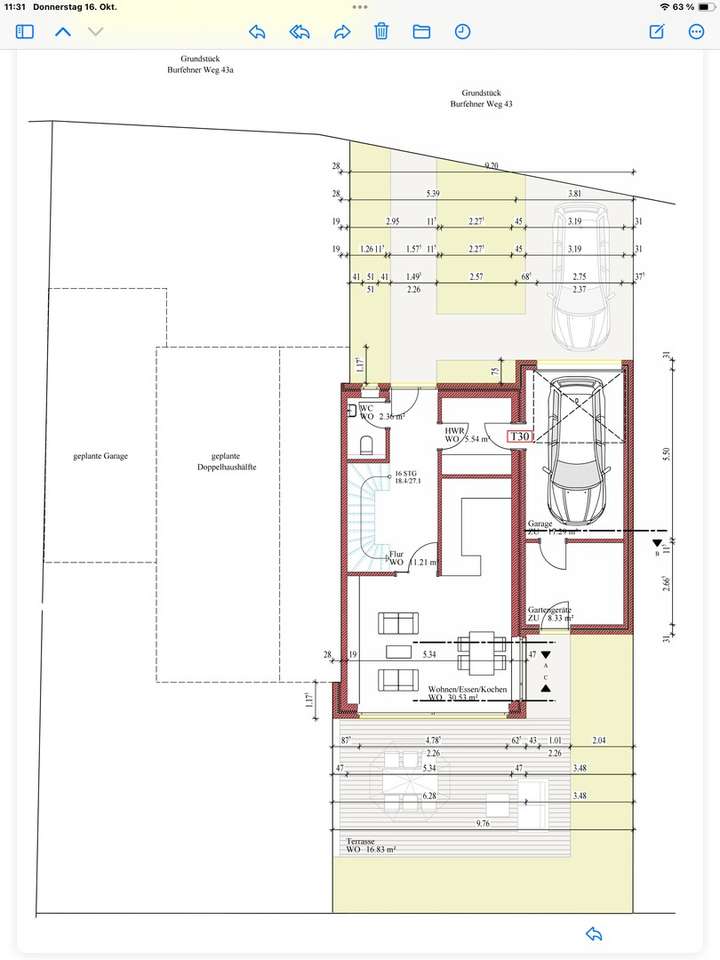
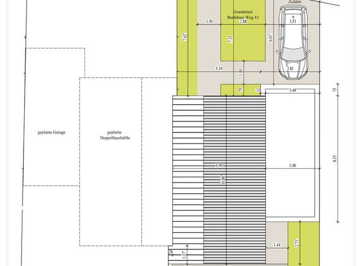
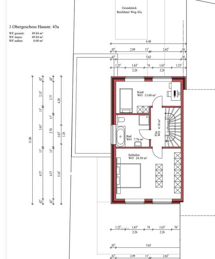
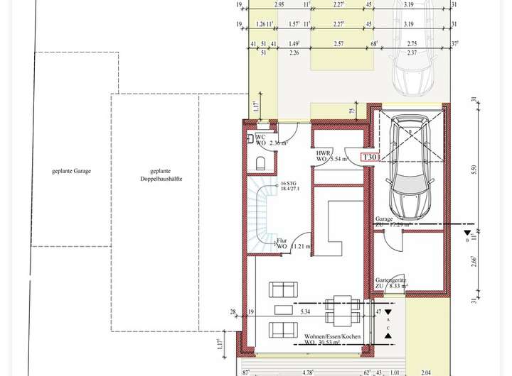
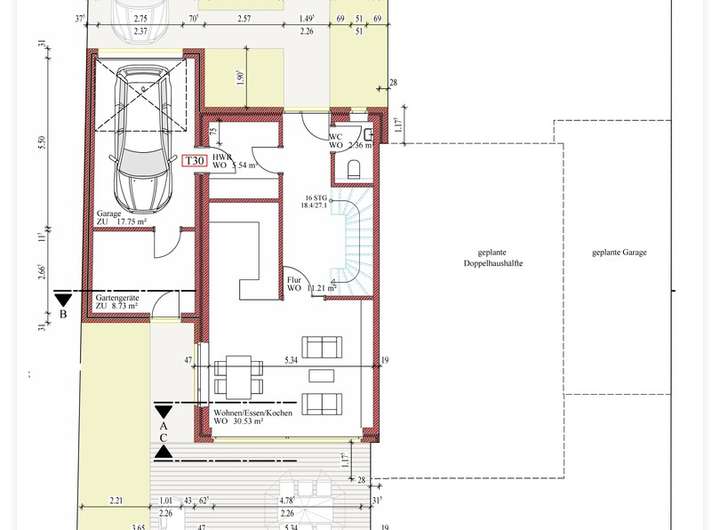
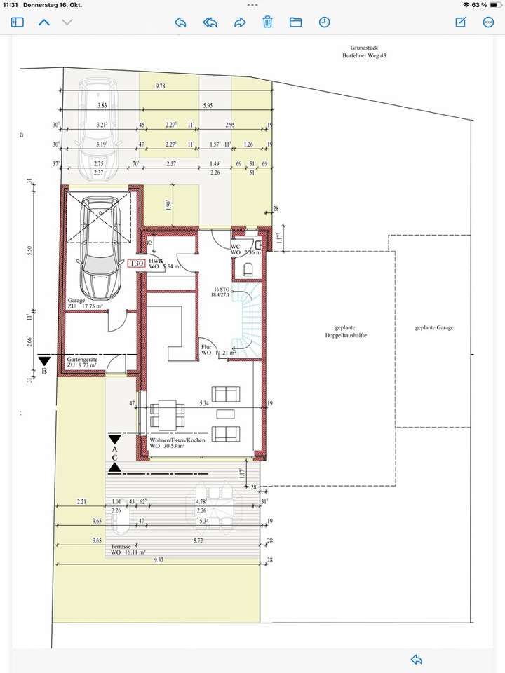
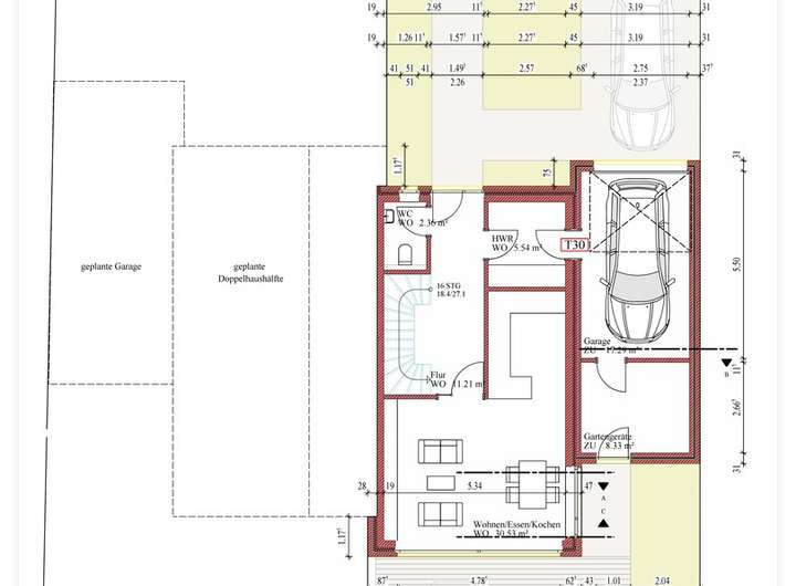
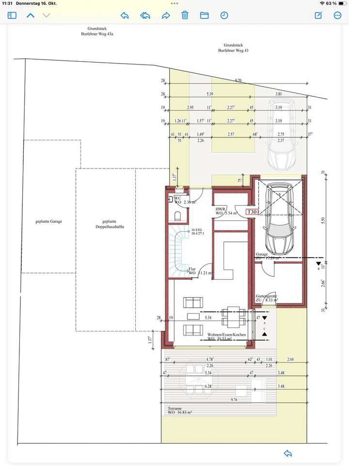
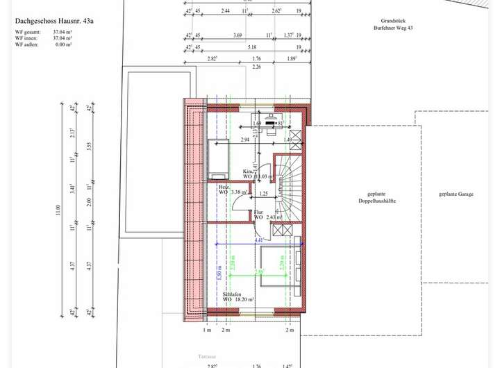
Die Grundrisse. Die zum Süden ausgerichteten Wohnräume erlauben einen weiten und wirklich wunderschönen Blick über die Gärten der Häuser der Hajo- Unken- Str..
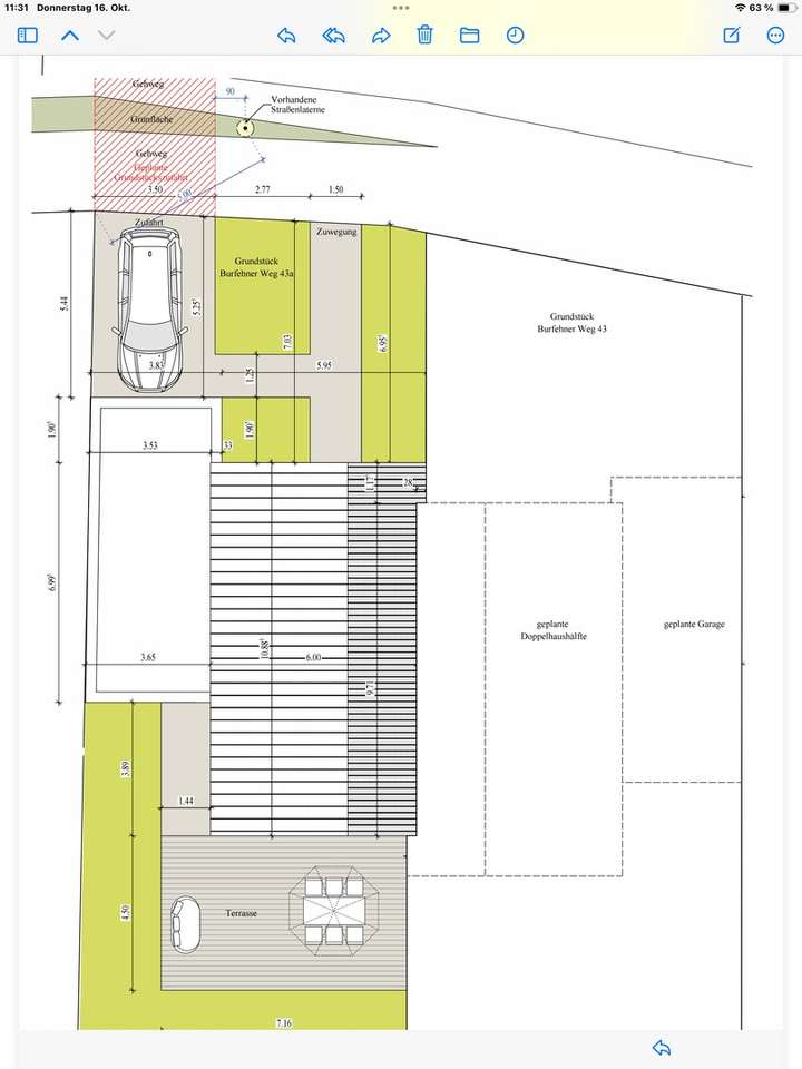
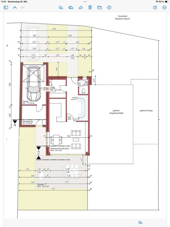
Details siehe Zeichnungen.
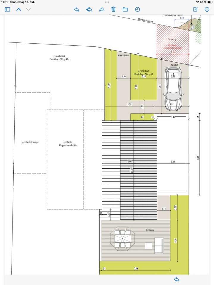
Eine Garage mit zusätzlichen Abstellraum ermöglicht den Zugang von der Straße in den Garten und zur Terrasse.
Ich möchte dazu noch erwähnen, dass aus meiner Sicht sich hier nur Paare mit Kindern oder mit der Absicht Kinder zu bekommen, melden sollten. Von hier können Kinder zum Kindergarten, Grund. - und alle weiterbildenden Schulen zu vielen Sport. - und weiteren Freizeiteinrichtungen gelangen ohne eine Ampel zu benutzen bzw. eine Hauptverkehrsader überqueren zu müssen.
Rechnerisch ist das Haus bereits ein Passivhaus und es werden daher keine Änderungen durchgeführt werden müssen, um die Anforderung zu erfüllen, die bis 2045 laut Grundgesetz alle Bestandsbauten vor sich haben.
Die Kosten: beim Katasteramt werden alle Kaufverträge eingereicht.
Die daraus resultierende Statistik zeigt, dass im Mittel für Wohnungen in vergleichbarer Lage und mit vergleichbarer Ausstattung ca. 3.800,- Euro pro Quadratmeter bezahlt werden.
Ich biete diese DHH für 3.000,- - 3.300,- Euro pro Quadratmeter an.
Da die Bauarbeiten noch vor dem Innenausbau stehen, kann vieles noch entschieden werden, was den Kaufpreis beeinflusst.
            
        Neubau Doppelhaushälfte zu verkaufen
                     Buhrfehner Weg 43,                          
                         26789 Leer (Ostfriesland)                    
        
            
            Auf Karte anzeigen
        
        
    
    Finanzierungszertifikat
In nur zwei Minuten zu Ihrem persönlichen Finanzierungszertifkat.
Infos
| Haustyp | Doppelhaushaelfte | 
|---|---|
| Etagenzahl | 3 | 
| Wohnfläche ca. | 154 m2 | 
| Nutzfläche | 28 m2 | 
| Grundstücksfläche | 240 m2 | 
| Bezugsfrei ab | nach Absprache | 
| Zimmer | 5 | 
| Schlafzimmer | 4 | 
| Badezimmer | 1 | 
| Garage/Stellplatz | Garage | 
| Anzahl Garage/Stellplatz | 1 | 
Kosten
| Kaufpreis | 
                3.000 € | 
        
|---|---|
| Provision | Nein | 
Finanzierungsrechner:
                    
                     Kaufpreis:
                        
                            600.000 €
                        
                    
                    
                    
                
            
                        
                            Eigenkapital:
                            
                                 600.000 €
                            
                        
                    
                
            
                        Monatliche Rate
                        0 €
                    
                    
                        
                            Effektiver Jahreszins
                        
                        0 %
                    
                    
                        Sollzinsbindung
                        10 Jahre
                    
                Bausubstanz & Energieausweis
| Baujahr | 2025 | 
|---|---|
| Objektzustand | Erstbezug | 
| Wesentliche Energieträger | Strom | 
| Energieausweis | liegt zur Besichtigung vor | 
Beschreibung des Objekts
Ausstattung
                Terrasse, Vollbad, Gäste-WC, Fliesen, Sonstiges (s. Text)
Bemerkungen:
Die technische Ausstattung ist hervorzuheben. Natürlich gibt’s schnelles Internet (Glasfaser) eine PV Anlage mit rund 10 kWh. Ein Akkuspeicher bleibt optional. Der selbst produzierte Strom kann auch eine Elektroauto aufladen. Beheizt wird mit Wärmepumpe wobei die dazugehörige Ausseneinheit oberhalb der Garage aufgestellt werden wird, damit der Garten dadurch nicht beeinträchtigt werden muss.
Die Fenster haben elektrische Rollladen und die hochwertigste wärmedämende Verglasung.
Die Terrasse kann mit einer Markise beschattet werden oder auch eine Überdachung bekommen (optional).
               
        Lage
                Nahezu einzigartig ist zum ersten die Lage.
Es sind nur 150 Meter bis zum Naturpark Leeraner Westerhamrich mit mehreren kleinen Seen, Kinderspielplatz und und sehr schöne Wanderwege. In ca. 10-15 Minuten ist man zu Fuß im Stadtzentrum, der Fußgängerzone, verschieden Supermärkte, Krankenhäuser und alles andere was die Innenstadt anbieten kann. 10 Minuten mit dem Fahrrad und man ist am Bahnhof.
Viele Sportvereine, alle Schulen, Kindergärten, das neue Schwimmbad, und vieles mehr, kann leicht zu Fuß oder mit einem Fahrrad in wenigen Minuten erreicht werden.
Infrastruktur (im Umkreis von 5 km):
Apotheke, Lebensmittel-Discount, Allgemeinmediziner, Kindergarten, Grundschule, Hauptschule, Realschule, Gymnasium, Gesamtschule, Öffentliche Verkehrsmittel
                
        Sonstige Angaben
                Heizungsart: Sonstiges (s. Text)
Energieträger: Strom
Energieausweis nicht vorhanden
Anders gesagt, am liebsten möchte ich da selbst wohnen, nur leider dürfen Bauunternehmer sich nicht in Wohngebiete niederlassen.
Damit bin ich beim letzten: ich bin Eigentümer, Entwurfsverfasser, Investor, Bauunternehmer und auch noch mein eigener Makler.
Natürlich bekommen sie die volle Gewährleistung von mir und von meinen Zulieferern übertragen, damit das Glück ungetrübt bleibt.
Ein letztes: noch sind beide Seiten / Haushälften frei, sie können sich also noch entscheiden, ob ihnen die Morgensonne oder die Abendsonne wichtiger ist. Bei den Grundrissen, da habe ich die Westseite hier angehängt.
Wer die schöne Stadt Leer nicht kennt, dem kann ich nur empfehlen, sich diese Idylle hier mal anzusehen.
Makleranfragen nicht erwünscht. Nach § 7 UWG sind unaufgeforderte Kontaktaufnahmen durch Makler ohne ausdrückliche Einwilligung des Empfängers verboten!
ohne-makler (OM) ist weder Anbieter noch Vermittler der Immobilie. OM betreibt eine Plattform für Immobilieneigentümer, die unter anderem die gleichzeitige Veröffentlichung einzelner Inserate auf mehreren Immobilienportalen ermöglicht. Die Inhalte dieser Inserate werden ausschließlich von Dritten verantwortet. Für die Richtigkeit, Vollständigkeit oder Rechtmäßigkeit der Angaben übernimmt OM keine Haftung. Hinweise auf mögliche Rechtsverstöße können jederzeit gemeldet werden und werden nach Prüfung umgehend bearbeitet.
           
        Grundriss
                                    Grundriss
                                                                            
                                        >
                                                                    
                                                                                                                
                                        >
                                                                    
                                    Grundriss
                                                                            
                                        >
                                                                    
                                                                                                                
                                        >
                                                                    
                                    Grundriss
                                                                            
                                        >
                                                                    
                                                                                                                
                                        >
                                                                    
                                    Grundriss
                                                                            
                                        >
                                                                    
                                                                                                                
                                        >
                                                                    
                                    Grundriss
                                                                            
                                        >
                                                                    
                                                                                                                
                                        >
                                                                    
                                    Grundriss
                                                                            
                                        >
                                                                    
                                                                                                                
                                        >
                                                                    
                                    Grundriss
                                                                            
                                        >
                                                                    
                                                                                                                
                                        >
                                                                    
                                    Grundriss
                                                                            
                                        >
                                                                    
                                                                                                                
                                        >
                                                                    
                                    Grundriss
                                                                            
                                        >
                                                                    
                                                                        
                                        >
                                                                    Adresse
Buhrfehner Weg 43, 26789 Leer (Ostfriesland)
Interessante Orte
Preis- und Lageinformationen
                Preistrend für Bestandsimmobilien in Leer (Ostfriesland)