Hier verbinden sich Wohnqualität, Rendite und Lebensgefühl !
Willkommen in Bad Kreuznach-Süd – einer der begehrtesten Wohnlagen der Stadt.
Das Baugrundstück liegt in einer ruhigen leicht ansteigenden Straße als letztes und damit höchstgelegenes Grundstück am dortigen „Wendehammer“ und besticht durch seine fantastische unverbaubare Aussichtslage.
Einzelstück in Bestandswohnlage !
Kein Neubaugebiet.
Das Besondere :
Bereits vorhanden sind fünf vermietete, transportable
Einzel-Stahlbeton-Fertiggaragen,
ein solides Investment mit bestehender Rendite.
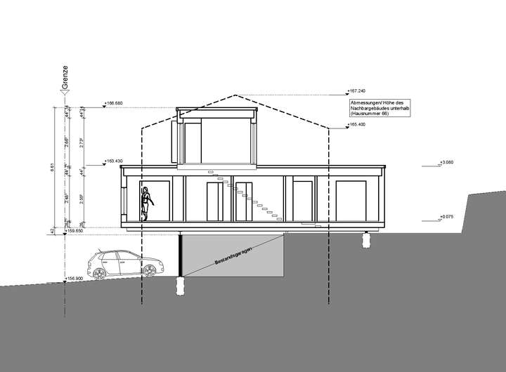
Ihr mögliches Bebauungskonzept :
Ein modernes Wohnhaus mit bis zu zwei Wohneinheiten und großzügigen Terrassen über zwei Etagen, über den Garagen, ist in diesem von einem Architekten geplanten Vorschlag möglich.
(sogenannte "Verdichtung über Bestand")
Ein Bauvorbescheid hierzu wurde bereits erteilt !
Das überzeugende Konzept (siehe Simulation der Straßenansicht in der Bildergalerie) zeigt eine perfekte Lösung für Ihr MODERNES WOHNEN.
Eine einfache Umsetzung dieses Highlights bietet zum Beispiel "SchwörerHaus" mit seinem innovativen "FlyingSpaces-Konzept"
– offene Grundrisse, Loft-Charakter und modernes Wohngefühl mit Penthouse-Anmutung.
Die beauftragten Architektenpläne für das vorgestellte Projekt, basieren auf den „FlyingSpaces“-Konzepten und wurden entsprechend der Simulation in der Bildergalerie ausgearbeitet.
Vielfältige Möglichkeiten :
Zahlreiche Varianten sind individuell umsetzbar –
vom exklusiven Bungalow mit Terrassenanlagen bis hin zum Zweifamilienhaus für Wohnen und Arbeiten oder zwei Wohneinheiten mit attraktivem Vermietungspotenzial.
Weitere Informationen :
Lageplan, Grundrisse, Gebäudeschnitte sowie ergänzende Unterlagen
erhalten Sie gerne auf Anfrage in unserem Büro.
Zusätzliche Hinweise zu den Garagen :
Die Garagen sind frei kündbar und können nach Ihrem Belieben genutzt werden.
Eine vorhandene Winkelstützmauer
(Statik kann angefordert werden)
umfasst die Garagen und Stellplätze, daher ist es grundsätzlich möglich, einzelne oder auch alle Garagen zu entfernen.
Dieses Angebot ermöglicht Ihnen ein individuelles Ideen- und Nutzungskonzept.
Sie erwerben ein Baugrundstück mit vorhandener statisch abgesicherter Winkelstützmauer, Garagenanlage und Stellplatzflächen – die ideale Basis, um Ihr persönliches Bauprojekt zu realisieren.
Wie bei jedem Grundstückserwerb sind Sie auch hier in Ihren künftigen Planungen und Entscheidungen frei.
Überzeugen Sie sich selbst von den Vorteilen dieses übersichtlichen Grundstücks – mit schnell umsetzbaren Planungsideen bietet es die ideale Grundlage für Ihr Einzelstück in perfekter Lage.
Der Kaufpreis für dieses exklusive Baugrundstück, wie vorausgehend ausführlich beschrieben,
beträgt 295.000 € zzgl. den üblichen Kaufnebenkosten.
Exklusives Baugrundstück mit Weitblick, 5 Garagen schon da, Platz für Ihre Ideen & Oldtimer, Rendite
55543 Bad Kreuznach
Die vollständige Adresse der Immobilie erhalten Sie vom Anbieter.
Auf Karte anzeigen
Die vollständige Adresse der Immobilie erhalten Sie vom Anbieter.
Finanzierungszertifikat
In nur zwei Minuten zu Ihrem persönlichen Finanzierungszertifkat.
Infos
| Vermarktungsart | Kaufen |
|---|---|
| Grundstücksfläche | 315 m2 |
| Erschließung | Erschlossen |
| Verfügbar ab | sofort |
Kosten
| Miete pro Jahr |
295.000 € |
|---|---|
| Provision |
3,57 % inkl. MwST. Käuferprovsion Wenn Sie eine Kontaktaufnahme über Immoscout starten, achten Sie bitte auch darauf in Ihren SPAM Ordner zu schauen. Es wäre wirklich schade, wenn Sie unsere schriftliche Antwort nicht erhalten würden. Im Voraus vielen Dank. Ihr Team von Pfarriushof-Immobilien |
Finanzierungsrechner:
Kaufpreis:
600.000 €
Eigenkapital:
600.000 €
Monatliche Rate
0 €
Effektiver Jahreszins
0 %
Sollzinsbindung
10 Jahre
Beschreibung des Objekts
Lage
Gesuchte LAGE !
In etwa 1,5 km Entfernung zum Hauptbahnhof und der Fußgängerzone. Von dort kann das historische Zentrum sowie der Kurpark fußläufig erreicht werden. Wenige Gehminuten entfernt befindet sich eine Bushaltestelle mit direkter Busverbindung zum Hauptbahnhof, der den ÖPNV-Knotenpunkt in Bad Kreuznach bildet.
Auch die Verkehrsanbindung ist ideal. In 10 Minuten erreichen Sie die Autobahn A 61 mit direkter Verbindung zum Rhein-Main-Gebiet, nach Koblenz oderLudwigshafen. Im direkten Umfeld befinden sich außerdem mehrere Kitas, eine Grundschule sowie Einkaufsmöglichkeiten.