Sie planen Ihren Altersruhesitz oder möchten heute schon in eine Immobilie investieren, die Ihnen später ein komfortables Zuhause bietet? Dann ist dieser Bungalow in Ihrhove genau das Richtige für Sie. Das Objekt ist derzeit langfristig vermietet (Nettokaltmiete 11.400 € p.a.) und sichert Ihnen bis zu Ihrem eigenen Einzug eine attraktive Rendite.
In zentraler, aber angenehm ruhiger Lage von Ihrhove erwartet Sie ein Zuhause, das Komfort, Qualität und Wohlfühlatmosphäre perfekt vereint. Der in den Jahren 2022 und 2023 vollständig kernsanierte, barrierefreie Bungalow bietet alles, was ein Leben im besten Alter so angenehm macht: ebenerdiges Wohnen, moderne Technik, helle Räume und einen geschützten Garten zum Entspannen.
Das 730 m² große Eigentumsgrundstück liegt ruhig, von der Straße aus kaum einsehbar, und öffnet sich nach Süden – ideal, um auf der Terrasse oder im Wintergarten die Sonne zu genießen. Hier verbinden sich Geborgenheit, Privatsphäre und eine angenehme Wohnatmosphäre zu einem echten Wohlfühlort.
Die Sanierung wurde mit viel Sorgfalt und Liebe zum Detail durch Fachfirmen ausgeführt. Erneuert wurden unter anderem die Elektroinstallation einschließlich Verteilerkasten, sämtliche Leitungssysteme, die Dacheindeckung mit hochwertigen Tonpfannen und neuen Dachrinnen sowie Teile der Fenster und Terrassentüren, die nun alle über elektrische Jalousien verfügen. Die Innenräume präsentieren sich modern und freundlich: neue Bodenbeläge aus Fliesen und Laminat, weiße Stiltüren, frische Wände mit Rauhfaser, neue Deckenverkleidungen und LED-Spots in allen Räumen sorgen für ein harmonisches Gesamtbild. Das moderne Bad mit ebenerdiger Dusche und das separate Gäste-WC bieten zeitgemäßen Komfort. Eine neue Gasheizung aus dem Jahr 2023, moderne Heizkörper und ein Glasfaseranschluss runden die technische Ausstattung ab.
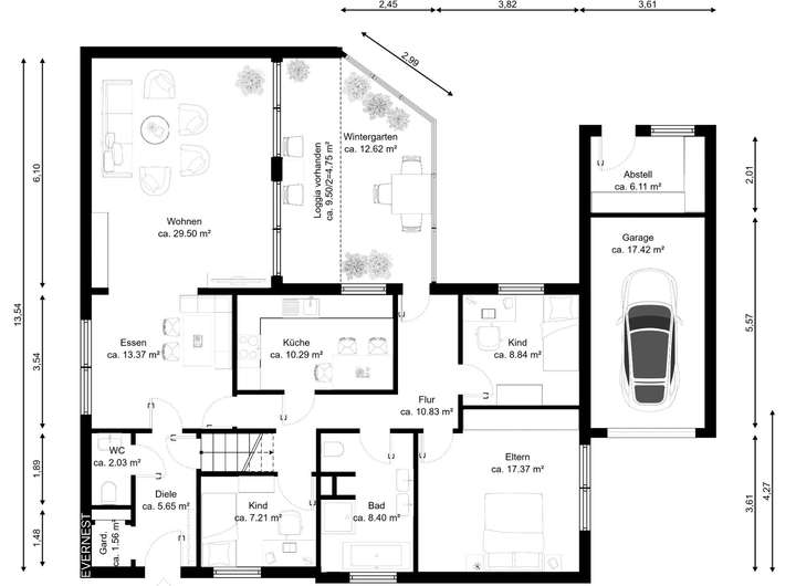
Mit rund 125 m² Wohnfläche überzeugt der Bungalow durch ein großzügiges, stufenfreies Raumkonzept. Der helle Wintergarten mit Heizkörpern und Fußbodenerwärmung wird schnell zum Lieblingsplatz – ob für entspannte Nachmittage mit Blick in den Garten oder gemütliche Abende mit Freunden. Die Teilunterkellerung bietet zusätzlichen Stauraum, und die Garage mit elektrischem Sektionaltor verfügt bereits über vorbereitete Leitungen für eine Wallbox.
Ein besonderes Highlight: Das gesamte Haus ist barrierefrei gestaltet – ideal für Menschen, die ihren Ruhestand komfortabel, unabhängig und sorgenfrei genießen möchten.
Ein Zuhause mit Weitblick – modernisiert mit Herz und Verstand. Ob als solide Kapitalanlage oder als Ihr zukünftiger Altersruhesitz: Dieser Bungalow in Ihrhove vereint Wertbeständigkeit, Komfort und Wohlgefühl auf überzeugende Weise.
Investieren Sie in Ihren Altersruhesitz -komfortabel, pflegeleicht, barrierefrei und Zentral
26810 Westoverledingen
Die vollständige Adresse der Immobilie erhalten Sie vom Anbieter.
Auf Karte anzeigen
Die vollständige Adresse der Immobilie erhalten Sie vom Anbieter.
Finanzierungszertifikat
In nur zwei Minuten zu Ihrem persönlichen Finanzierungszertifkat.
Infos
| Haustyp | Bungalow |
|---|---|
| Etagenzahl | 1 |
| Wohnfläche ca. | 125 m2 |
| Nutzfläche | 6,11 m2 |
| Grundstücksfläche | 730 m2 |
| Zimmer | 4 |
| Schlafzimmer | 3 |
| Badezimmer | 1 |
| Garage/Stellplatz | Parkhaus |
Kosten
| Kaufpreis |
339.000 € |
|---|---|
| Provision |
3.57 % inkl. MwSt. Bei Abschluss eines notariellen Kaufvertrages ist eine Käuferprovision vom Käufer in Höhe von 3.57 % inkl. MwSt. aus dem Kaufpreis fällig. |
Finanzierungsrechner:
Kaufpreis:
600.000 €
Eigenkapital:
600.000 €
Monatliche Rate
0 €
Effektiver Jahreszins
0 %
Sollzinsbindung
10 Jahre
Bausubstanz & Energieausweis
| Baujahr | 1971 |
|---|---|
| Letzte Sanierung | 2023 |
| Objektzustand | Modernisiert |
| Qualität der Austattung | Normal |
| Heizungsart | Gas-Heizung |
| Wesentliche Energieträger | Gas |
| Energieausweis | liegt vor |
| Energieausweistyp | Bedarfsausweis |
| Energieverbrauchskennwert | 188,8 kWh/(m²*a) |
| Energieeffizienzklasse | F |
188,8
kWh/(m²*a)
Energieeffizienzklasse F
- A+
- A
- B
- C
- D
- E
- F
- G
- H
- 0
- 25
- 50
- 75
- 100
- 125
- 150
- 175
- 200
- 225
- >250
Beschreibung des Objekts
Ausstattung
Allgemein / Gebäude:
Bungalow, barrierefrei, ebenerdiges Wohnen
Baujahr: Kernsanierung 2022–2023
Teilunterkellerung
125 m² Wohnfläche
Grundstücksfläche: 730 m², Süd-Ausrichtung, ruhig gelegen und von der Straße kaum einsehbar
Innenräume:
Helle, großzügige Räume
Wintergarten mit Heizkörpern und Fußbodenerwärmung
Neue Bodenbeläge: Fliesen und Laminat
Neue Deckenverkleidung, Wände mit Rauhfaser
LED-Spots in allen Räumen
Weiße Stiltüren im gesamten Haus
Modernes Bad mit ebenerdiger Dusche
Neues Gäste-WC
Technik:
Neue Elektroinstallation inklusive Verteilerkasten
Erneuerte Leitungen (Strom, Wasser)
Neue Gasheizung (2023) mit modernen Heizkörpern
Glasfaseranschluss
Teilweise neue Fenster und Terrassentüren, alle mit elektrischen Jalousien
Neue Dacheindeckung mit hochwertigen Tonpfannen und neuen Dachrinnen
Außenbereich:
Geschützter Garten, Süd-Ausrichtung
Terrasse
Garage mit elektrischem Sektionaltor, Leitungen für Wallbox bereits vorbereitet
Besondere Merkmale:
Barrierefrei und altersgerecht gestaltet
Ruhige Lage in zentraler Umgebung
Langfristige Vermietung möglich (Nettokaltmiete 11.400 € p.a.)
Modernisierung mit Liebe zum Detail durch Fachfirmen durchgeführt
Lage
Ihrhove, der lebendige Hauptort der Gemeinde Westoverledingen, liegt zentral zwischen Leer und Papenburg und bietet eine ideale Kombination aus ruhigem Wohnen und guter Infrastruktur. Hier finden Sie alles, was für den täglichen Bedarf wichtig ist – Einkaufsmöglichkeiten, Ärzte, Apotheken, Schulen und Kindergärten befinden sich in unmittelbarer Nähe.
Die Umgebung ist geprägt von gepflegten Einfamilienhäusern, weitläufigen Grünflächen und einer freundlichen Nachbarschaft. Dank der guten Verkehrsanbindung erreichen Sie die umliegenden Städte Leer, Papenburg oder auch die Nordseeküste in kurzer Zeit. Der Bahnhof Ihrhove bietet regelmäßige Zugverbindungen, und auch die Autobahnen A31 und A28 sind schnell erreichbar.
Für Freizeit und Erholung sorgen die vielen Rad- und Spazierwege entlang der typischen ostfriesischen Kanäle, kleine Cafés und Restaurants sowie die Nähe zur Ems. Die Region ist bekannt für ihre Weite, Ruhe und den besonderen Charme Ostfrieslands – ein Ort, an dem man gerne ankommt und bleibt.
Ihrhove bietet damit den perfekten Rahmen für Menschen, die ruhiges Wohnen mit einer guten Anbindung und hoher Lebensqualität verbinden möchten.
Grundriss
Erdgeschoss
>
>
Adresse
26810 Westoverledingen
Interessante Orte
Preis- und Lageinformationen
Preistrend für Bestandsimmobilien in Westoverledingen