Willkommen in Ihrem neuen Zuhause – einem 1957 erbauten und in 2015 durch den jetzigen Eigentümer liebevoll und hochwertig kernsanierten Reihenendhaus in begehrter Lage von Frankfurt-Eschersheim. Dieses charmante Haus in ruhiger, familienfreundlicher Lage überzeugt auf Anhieb durch seine helle und warme Atmosphäre, stilvolle Ausstattung und durchdachte Raumaufteilung. Bei den umfassenden Baumaßnahmen wurde großer Wert auf hochwertige Materialien, moderne Technik und ein harmonisches Wohngefühl gelegt. So umfasste die Sanierung Dach, Dämmung, Elektrik, Sanitär, Böden, Wände/Decken, Fenster und Fassade und sorgt für ein neuwertiges Zuhause, das Komfort, Stil und Geborgenheit vereint. Geheizt wird mit Gas (Zentralheizung).
Mit einer Wohnfläche von ca. 126 m² auf 2 Etagen plus ausgebautem Dachgeschoss sowie einer Grundstücksfläche von 276 m² mit schönem Süd-West-Garten bietet dieses Haus Raum für individuelle Lebensentwürfe – ob für Paare, Familien oder Menschen, die das Besondere in sehr guter Wohnlage suchen. Im Keller stehen Ihnen zusätzliche ca. 43 m² Nutzfläche zur Verfügung – ideal für Hauswirtschaft, Lager oder Hobby. Die Wohn-Nutzfläche beträgt folglich knappe 170 m².
Der schöne Wohn- und Essbereich (ca. 28 m²) mit Zugang zum eigenen Garten bildet das Herzstück des Hauses. Hier trifft modernes Wohnen auf einladendes Ambiente – mit hellem, offenem Grundriss, glatten Wänden, hochwertigen Echtholzparkettböden, großformatigen Feinsteinzeugfliesen und stimmiger Beleuchtung. Die halboffene Küche (ca. 8 m²) ist hochwertig ausgestattet (Ehmann-Küchen Oberursel, Nobilia, Siemens-Geräte) und fügt sich elegant in das Gesamtbild ein. Ein Gäste-WC (ca. 2 m²) sowie ein einladender Flurbereich mit Garderobe (ca. 9 m²) runden das Flächenangebot des Erdgeschosses ab. Vom Wohnzimmer aus gelangen Sie auf die beiden Sonnenterrassen, einmal Süd-West (ca. 15 m², d.h. bei 25% ca. 4 m² Wfl.) und einmal Süd (ca. 10 m² d.h. ca. 3 m² Wfl.) und in den liebevoll angelegten Garten mit modernem Gartenhaus und schöner Natureinfriedung (überwiegend Thuja-Hecke).
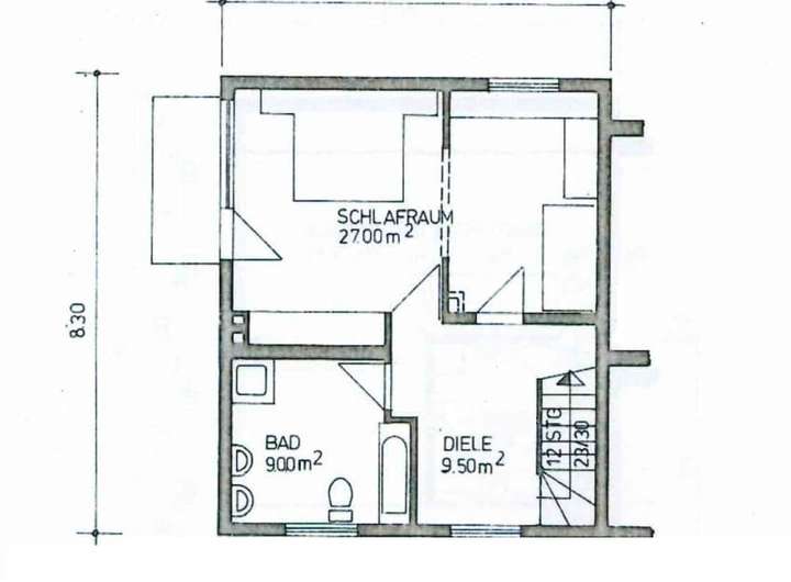
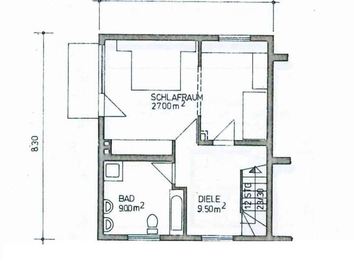
Im Obergeschoss befindet sich das große Schlafzimmer (ca. 15 m²) mit Süd-West-Balkon (ca. 4 m² d.h. bei 25% ca. 1 m² Wfl.) und ausreichend Platz für Ruhe und Erholung. Das Kinder- bzw. Arbeitszimmer (ca. 12 m²) eignet sich perfekt für Familie, Gäste oder Homeoffice. Das moderne Familienbad (ca. 9 m²) mit Badewanne und Dusche ist stilvoll gestaltet und hochwertig ausgestattet (u.a. Keramag Badmöbel). Ein großzügiger Flur / Diele (ca. 10 m²) verbindet die Räume harmonisch und bietet weitere, praktische Abstellflächen.
Das vollständig ausgebaute Dachgeschoss mit großen Dachfenstern präsentiert sich als vielseitig nutzbarer Raum – ideal als Eltern-, Jugend-, Gäste- oder Arbeitsbereich. Das helle Studio (ca. 18 m²) mit vielen Abstellflächen in den Schrägen wird durch ein zweites Bad mit Dusche (ca. 4 m²) ergänzt – ein echtes Highlight für individuelle Wohnansprüche.
Im Keller gibt es folgende Räume: einen großen Hobbyraum (ca. 16 m²), einen für Hauswirtschaft und Waschen mit ca. 10 m², einen für Haustechnik (ca. 8 m²) sowie zum Abstellen (ca. 2 m²). Der Flur misst ca. 8 m² und kann ebenso zum Abstellen verwendet werden.
Die Kombination aus Lagequalität, Sanierungsstandard und Grundstücksgröße sichert nachhaltige Wertstabilität im begehrten Frankfurter Norden. Erleben Sie dieses besondere Eckhaus persönlich - vereinbaren Sie Ihren Besichtigungstermin mit Riedberg Immobilien.
Die Immobilie ist an eine Familie für 2.500 € p.m. kalt vermietet. Eine Eigenbedarfskündigung ist möglich.
Top-Reihenendhaus mit Wohlfühlcharakter in familienfreundlicher Lage von Frankfurt-Eschersheim
60431 Frankfurt am Main
Die vollständige Adresse der Immobilie erhalten Sie vom Anbieter.
Auf Karte anzeigen
Die vollständige Adresse der Immobilie erhalten Sie vom Anbieter.
Finanzierungszertifikat
In nur zwei Minuten zu Ihrem persönlichen Finanzierungszertifkat.
Infos
| Haustyp | Reiheneckhaus |
|---|---|
| Etagenzahl | 3 |
| Wohnfläche ca. | 126 m2 |
| Nutzfläche | 43 m2 |
| Grundstücksfläche | 276 m2 |
| Zimmer | 4 |
| Schlafzimmer | 3 |
| Badezimmer | 2 |
Kosten
| Kaufpreis |
1.095.000 € |
|---|---|
| Provision |
Die Käuferprovision beträgt 2,95% vom Kaufpreis, fällig mit notariellem Vertragsabschluss. |
| Mieteinnahmen | 2.500 € |
Finanzierungsrechner:
Kaufpreis:
600.000 €
Eigenkapital:
600.000 €
Monatliche Rate
0 €
Effektiver Jahreszins
0 %
Sollzinsbindung
10 Jahre
Bausubstanz & Energieausweis
| Baujahr | 1957 |
|---|---|
| Letzte Sanierung | 2015 |
| Objektzustand | Saniert |
| Heizungsart | Zentralheizung |
| Wesentliche Energieträger | Gas |
| Energieausweis | liegt zur Besichtigung vor |
Beschreibung des Objekts
Ausstattung
Hier erwartet Sie Wohnen auf hohem Niveau – jedes Detail wurde mit Bedacht gewählt, um Behaglichkeit und Qualität miteinander zu vereinen:
- Top Reihenendhaus, Baujahr 1957, Kernsanierung 2015: Alle Wände geglättet, Erneuerung aller Leitungen und sämtliche Heizkörper, dito Wasserspeicher und Zirkulation. Dachsparren und Dämmung komplett erneuert, komplettes Dach abgedeckt und defekte Ziegel erneuert, Schornstein erneuert. Fassade mit Matten unterfüttert und Putz komplett erneuert. Dachrinnen erneuert. Alle Fenster erneuert, elektrische Rollläden im EG sowie Schlafzimmer OG Balkon (dort mit Solarstrom) eingebaut. 2 Bäder mit Badmöbel im OG/DG komplett hochwertig saniert und Gäste-WC im EG. Echtholzparkett im ganzen Haus neu verlegt, dito großformatige Fliesen (Feinsteinzeug), dito neue Einbauküche mit Einbauschrank im EG. Hochwertige Glastrennwände zu den Treppen EG/OG/DG eingebaut. Kellerwände- und Boden neu gestrichen. 2 große Terrassen Südwest und Süd komplett erneuert und vergrößert mit hochwertigen Steinplatten, Terrasse für Anschluss mit elektrischer Markise vorbereitet, Balkon vollständig saniert und erneuert, Garten neu angelegt inkl. Wegen. Gartenhaus aus Alu errichtet im Vorgarten. Trennmauer als Sichtschutz zur Abgrenzung des Vordergartens errichtet. Mülltonnenkasten erneuert (Fa. Wolff)
- ca. 170 m² Wfl., davon ca. 126 m² Wfl. und ca. 43 m² Nfl. (Keller)
- 4 schöne helle Zimmer, 1 großer Hobbyraum im UG
- 276 m² Grundstück in Bestlage Frankfurt (Eschersheim)
- Süd-West-Garten mit 2 Sonnenterrassen und Gartenhaus
- Grundriss mit halboffener, lichtdurchfluteter Küche und Wohn- und Esszimmer mit Anschluss an die Süd- (ca. 15 m²) und Süd-Westterrasse (ca. 10 m²) und den großzügigen Garten
- Die Glasdetails und moderne Ausstattungselemente verleihen dem Haus eine helle, offene Atmosphäre
- 2 moderne Bäder: großes Familienbad mit Wanne und Dusche im Obergeschoss sowie zusätzliches Duschbad im Dachgeschoss, Gäste-WC im Erdgeschoss
- Einbauküche und Einbauschrank von Ehmann Küchen Oberursel, Nobilia-Küche, Siemens-Elektrogeräte
- Gas-Zentralheizung aus 2005
- Vermietet, Eigenbedarfskündigung möglich
- Fazit: Ein Haus, das Sie nicht nur sehen, sondern auch fühlen müssen!
Haben wir Ihr Interesse geweckt? Dann füllen Sie bitte am besten das Kontaktformular vollständig aus (Name, Adresse, Kontaktdaten usw.) und teilen uns Ihre Frage bzw. Ihren Besichtigungswunsch und auch gerne den bevorzugten Kommunikationsweg mit. Wir melden uns kurzfristig.
Sie können uns auch gerne anderweitig kontaktieren. Vor einer Besichtigung bitten wir jedoch um das vollständige Ausfüllen des Kontaktformulars. Dies erleichtert die Bearbeitung durch unsere EDV und die Kommunikation mit Ihnen und die Berichtspflicht gegenüber unserem weiteren Auftraggeber, dem Eigentümer.
Wollen Sie selbst verkaufen? Gerne können Sie uns ansprechen und wir schätzen professionell und für Sie kostenfrei den Marktwert Ihrer Immobilie. Auf Wunsch entwerfen wir auch eine Vermarktungsstrategie für Ihr Haus, Ihre Wohnung oder Ihr Grundstück.
Lage
Das Haus befindet sich in einer schönen und ruhigen Wohnstraße mit gewachsenem Nachbarschaftscharakter im beliebten und begehrten Stadtteil Eschersheim. Hier genießen Sie die perfekte Kombination aus naturnaher Lage, urbanem Leben und Familienfreundlichkeit. Gepflegte Einfamilienhäuser, kleine Gärten und begrünte Straßen prägen das Bild dieses charmanten Stadtteils, der durch seine ruhige, sichere und dennoch zentrale Lage überzeugt.
Eschersheim bietet eine vollständig ausgebaute Infrastruktur für den täglichen Bedarf. Einkaufsmöglichkeiten, Bäckereien, Cafés, Restaurants und Ärzte sind bequem zu Fuß erreichbar (u.a. REWE, REWE to go, Penny, Nahkauf, Hügel-Markt, Alnatura, Reformhaus Freya). Für Familien bietet die Umgebung kurze Wege zu Kindergärten und Schulen (u.a. Ludwig Richter Schule, IGS Eschersheim, Geschwister-Scholl-Schule, Ziehenschule, Kinderzentrum Hügelstraße, Kita Kunterbund). Auch Krankenhäuser, Ärzte und Apotheken sind nicht weit. Zahlreiche nahe gelegene Grünflächen und Parkanlagen (Niddapark mit den weitläufigen Uferwegen, Marie-Bittorf-Anlage, Sinaipark, Freibad Eschersheim) laden zu Spaziergängen, Jogging oder Radtouren ein.
Die Verkehrsanbindung ist hervorragend: Mehrere Buslinien sowie U-Bahnstationen (U1, U2,U3 und U8 - Lindenbaum, Hügelstraße) in der Nähe bringen Sie schnell in die Frankfurter Innenstadt (ca. 15 Minuten) und mit 1 x Umsteigen in das Nordwestzentrum. Auch die S-Bahn-Station Eschersheim (S5/S6) liegt in komfortabler Reichweite. Über die Autobahnen A5, A661 und A3 erreichen Sie in kurzer Zeit das gesamte Rhein-Main-Gebiet. Auch der Flughafen Frankfurt ist in rund 20 Minuten erreichbar.
Sonstige Angaben
Maklervertrag, Widerrufsrecht und Auszug aus den allgemeinen Geschäftsbedingungen für Kaufinteressenten:
Die Firma Riedberg Immobilien eK unterstützt und berät in dieser Verkaufssache den Eigentümer exklusiv (qualifizierter Alleinauftrag). Sämtliche Anfragen, Besichtigungen und Verhandlungen zur angebotenen Immobilie laufen zunächst auf Wunsch der Verkäuferseite nur über uns. Unsere Vergütung erfolgt in Höhe von 2,95% inkl. MwSt. aus dem Kaufpreis durch die Käuferseite an uns, fällig mit rechtswirksamen, notariellen Kaufvertragsabschluss. Die Verkäuferseite zahlt die gleiche Maklercourtage an uns. Mithin beträgt die Gesamtprovision 5,9% inkl. MwSt. und wird gemäß den gesetzlichen Vorgaben 50:50 zwischen Käufer und Verkäufer aufgeteilt (jeweils separate Maklerverträge). Bitte beachten Sie Ihr gesetzlich vorgesehenes Widerrufsrecht zum Abschluss eines Maklervertrags mit uns. Entscheiden Sie sich gegen den Kauf der angebotenen Immobilie, fallen selbstverständlich keine Maklerkosten für Sie an (Erfolgsabhängigkeit unserer Tätigkeit). Da wir für beide Parteien als Makler tätig sind und von diesen honoriert werden, sind wir bei Vermittlungsleistungen zur Unparteilichkeit verpflichtet. Wir agieren als neutraler Vermittler. Alle Angaben zur Immobilie stammen von der Verkäuferseite bzw. deren Baupartnern, wie Bauträger, Architekten, Handwerkern etc. und sind von uns nach bestem Wissen und Gewissen übernommen. Eine Haftung für solche Informationen erfolgt durch uns nicht. Der Käufer soll bitte alle für ihn wichtigen Punkte selbst prüfen bzw. uns einen gesonderten, ausdrücklichen Auftrag dazu erteilen und ggf. in den allein maßgeblichen Kaufvertrag mit dem Verkäufer aufnehmen lassen. Für eigene Fehler haften wir nur bei Vorsatz oder grober Fahrlässigkeit, soweit gesetzlich zulässig. Alle unsere Angebote und Informationen sind unser "Geschäftskapital" und folglich ausschließlich für Sie als unseren Auftraggeber persönlich bestimmt und müssen vertraulich behandelt werden. Eine Weitergabe, insbesondere unserer Exposés mit der Adresse zur Ihnen angebotenen Immobilie an Dritte, auch beratende Personen, ist nur mit unserer schriftlichen Zustimmung gestattet. Die unbefugte und schuldhafte Weitergabe durch Sie als Kaufinteressent verpflichtet Sie zur Zahlung der o.g. Provision, wenn der Dritte die Ihnen angebotene Vertragsabschlussgelegenheit erwirbt, d.h. diese Informationen zu unseren Lasten ausnutzt. Zudem können Schadensersatzansprüche von uns an Sie entstehen im Hinblick auf die ggf. ebenso entgangene Verkäuferprovision. Das Angebot ist für uns freibleibend, der Zwischenverkauf bleibt dem Eigentümer stets vorbehalten.
Anbietender Makler:
Riedberg Immobilien eK
Inhaber: Mirjana Tannek
Rudolf Schwarz Platz 1, 60438 Frankfurt am Main
Tel. 069 - 348 68 42 40
Mail: mail@riedberg.immo
www.riedberg.immo
Verkaufsberatung:
Tuba Sener
Tel. 0174 - 56 88 567
Mail: sener@riedberg.immo
Anton T. Hartl
Tel. 0172 - 855 77 05
Mail: hartl@riedberg.immo
Eingetragen im Handelsregister beim AG Frankfurt unter Nr. HR A 48 505
Gewerbeaufsicht: Ordnungsamt der Stadt Frankfurt am Main
Zulassung nach § 34 c GewO: Landratsamt Dachau bzw. Groß-Gerau
Adresse
60431 Frankfurt am Main
Interessante Orte
Preis- und Lageinformationen
Preistrend für Bestandsimmobilien in Eschersheim