- Attraktives Mehrfamilienhaus mit 9 Einheiten
- Wohnfläche von 360 m²
- Gesamtgrundstücksfläche von 1.218 m²
- Bauplatz von 420 m² mit der Möglichkeit, 80 m² pro Etage zu bauen
- Gepflegter Zustand mit zahlreichen Wohnmöglichkeiten
- Umgebaute Scheune mit Wohnraum und Gemeinschaftsflächen
- Keller im Haupthaus vorhanden
- Garage und weitere Stellplätze im Hof
Ideal für Kapitalanleger oder Familien. Kontaktieren Sie uns für weitere Informationen oder einen Besichtigungstermin!
IMMORath.de - Investitionsobjekt: Mehrfamilienhaus mit Baugrundstück
79379 Müllheim
Die vollständige Adresse der Immobilie erhalten Sie vom Anbieter.
Auf Karte anzeigen
Die vollständige Adresse der Immobilie erhalten Sie vom Anbieter.
Finanzierungszertifikat
In nur zwei Minuten zu Ihrem persönlichen Finanzierungszertifkat.
Infos
| Haustyp | Mehrfamilienhaus |
|---|---|
| Etagenzahl | 3 |
| Wohnfläche ca. | 360 m2 |
| Grundstücksfläche | 1.218 m2 |
| Bezugsfrei ab | Frei nach Absprache |
| Zimmer | 14 |
| Badezimmer | 9 |
| Garage/Stellplatz | Garage |
| Anzahl Garage/Stellplatz | 1 |
Kosten
| Kaufpreis |
998.000 € |
|---|---|
| Provision |
3,57% |
Finanzierungsrechner:
Kaufpreis:
600.000 €
Eigenkapital:
600.000 €
Monatliche Rate
0 €
Effektiver Jahreszins
0 %
Sollzinsbindung
10 Jahre
Bausubstanz & Energieausweis
| Baujahr | 1898 |
|---|---|
| Objektzustand | Gepflegt |
| Heizungsart | Zentralheizung |
| Wesentliche Energieträger | Gas |
| Energieausweis | liegt vor |
| Energieausweistyp | Verbrauchsausweis |
| Energieverbrauchskennwert | 91,8 kWh/(m²*a) |
| Energieeffizienzklasse | C |
91,8
kWh/(m²*a)
Energieeffizienzklasse C
- A+
- A
- B
- C
- D
- E
- F
- G
- H
- 0
- 25
- 50
- 75
- 100
- 125
- 150
- 175
- 200
- 225
- >250
Beschreibung des Objekts
Lage
Diese besondere Immobilie befindet sich in einer ruhigen und dennoch zentralen Umgebung. Die Lage bietet eine angenehme Balance zwischen städtischem Komfort und naturnahem Wohnen und eignet sich ideal für die Vermietung.
In der Nähe des Hauses, etwa 650 m entfernt, befindet sich ein Supermarkt. Weitere Einkaufsmöglichkeiten, die den täglichen Bedarf abdecken, finden sich in der nahgelegenen Innenstadt von Müllheim in nur 2,5 km Entfernung. Hier finden sich weiterhin eine Vielzahl von kulturellen und gastronomischen Angeboten.
Familien mit Kindern profitieren von der Nähe zum Kindergarten, der lediglich 500 m entfernt liegt. Weiterführende Bildungseinrichtungen wie Grundschule, Realschule und Gymnasium sind in etwa 2,9 km bequem erreichbar.
Für Berufspendler liegt die nächste Autobahnzufahrt ca. 8,6 km entfernt, welche so eine gute Verbindung in die umliegenden Regionen ermöglicht. Des Weiteren befindet sich fußläufig eine Bushaltestelle mit direkter Anbindung an die Innenstadt von Müllheim.
Dieses Wohnobjekt kombiniert somit Stadtnähe mit ruhiger Nachbarschaft und einer guten Infrastruktur.
Sonstige Angaben
Sie haben Interesse und möchten zeitnah die Immobilie besichtigen? Kein Problem! Schicken Sie uns gerne Ihre Anfrage, Sie werden von der Immobilie begeistert sein!
Alle vom Eigentümer bereitgestellten Informationen werden als zuverlässig erachtet, aber nicht garantiert und sollten unabhängig verifiziert werden. Wir übernehmen keinerlei Gewähr für die Richtigkeit der Angaben.
Der Courtageanteil des Käufers beträgt 3,57% des tatsächlichen Kaufpreises inklusive der gesetzlichen Mehrwertsteuer.
Der Courtageanteil ist im Kaufpreis nicht enthalten und ist vom Käufer an uns zu zahlen. Er ist fällig und zahlbar bei Notariat.
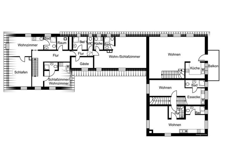
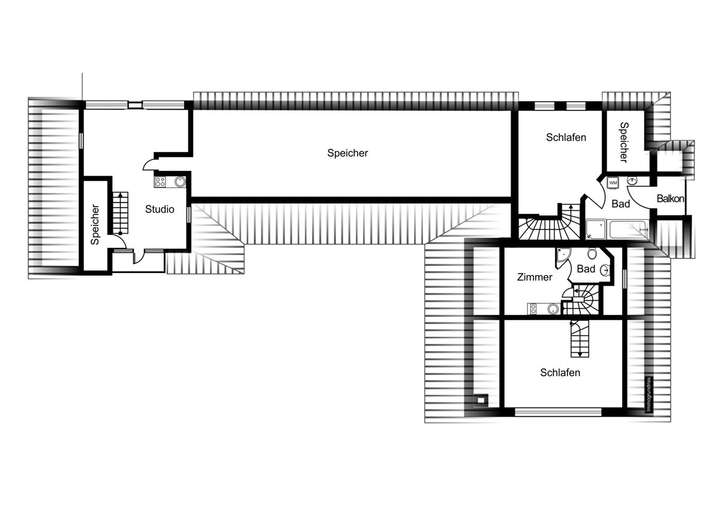
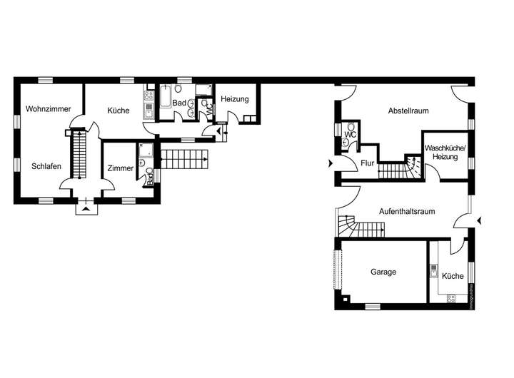
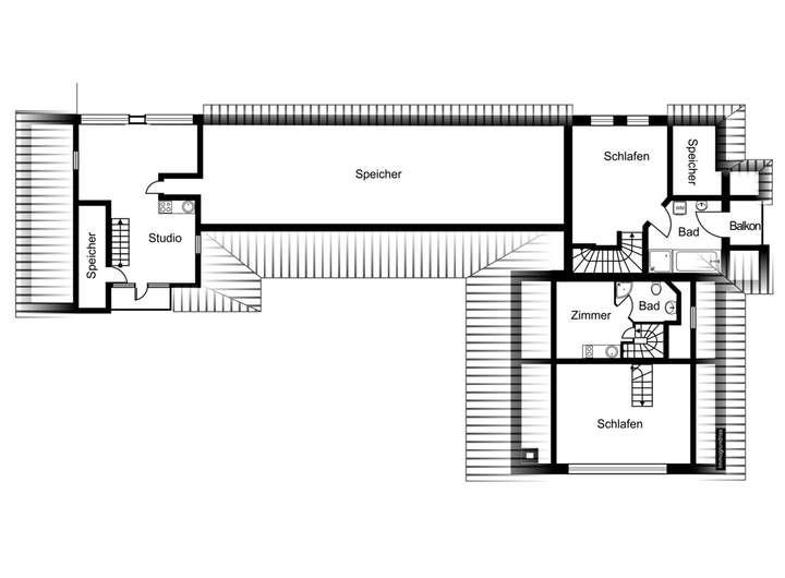
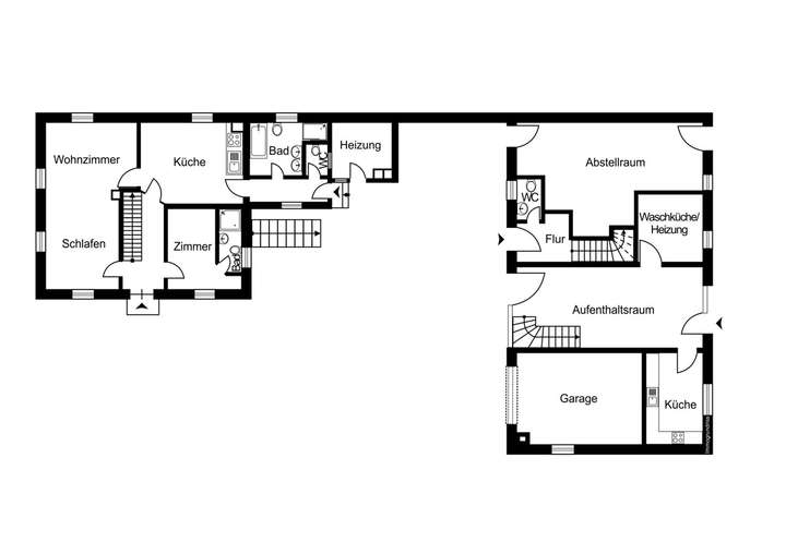
Grundriss
Erdgeschoss
>
>
Obergeschoss
>
>
Dachgeschoss
>
>
Adresse
79379 Müllheim
Interessante Orte
Preis- und Lageinformationen
Preistrend für Bestandsimmobilien in Müllheim