Dieses moderne Zuhause aus dem Jahr 2020 liegt ruhig am Ende einer Sackgasse, umgeben von Wald und Grün. Auf rund 1.250 m² Grundstück bietet das Anwesen ca. 364 m² Wohnfläche – aufgeteilt in zwei separate Einheiten. Ideal für alle, die Wert auf Privatsphäre, Flexibilität und ein klares, zeitgemäßes Wohnkonzept legen.
Die Hauptwohnung (ca. 263 m²) überzeugt mit moderner Architektur, offenen Grundrissen und hochwertigen Materialien. Große Fensterflächen holen Licht und Natur ins Haus, während Naturstein- und Parkettböden für eine warme Atmosphäre sorgen.
Die Küche, ein Schlafzimmer mit Ankleide, ein großzügiges Bad sowie drei flexibel nutzbare Räume mit Badezimmer im Obergeschoss bieten Raum für unterschiedliche Lebensstile – von Familie bis Homeoffice.
Die Einliegerwohnung im Untergeschoss (ca. 101 m²) hat einen eigenen Zugang und einen abgetrennten Gartenbereich – ideal für Gäste, Arbeiten von zu Hause oder als eigenständige Einheit.
Ein Haus, das Architektur, Ruhe und Natur verbindet – klar im Design, großzügig im Raumgefühl und perfekt für modernes Leben.
Modernes Traumhaus am Waldrand – mit Weitblick
53894 Mechernich
Die vollständige Adresse der Immobilie erhalten Sie vom Anbieter.
Auf Karte anzeigen
Die vollständige Adresse der Immobilie erhalten Sie vom Anbieter.
Finanzierungszertifikat
In nur zwei Minuten zu Ihrem persönlichen Finanzierungszertifkat.
Infos
| Haustyp | Einfamilienhaus |
|---|---|
| Etagenzahl | 3 |
| Wohnfläche ca. | 364 m2 |
| Nutzfläche | 60 m2 |
| Grundstücksfläche | 1.251 m2 |
| Bezugsfrei ab | sofort |
| Zimmer | 9 |
| Schlafzimmer | 4 |
| Badezimmer | 4 |
| Garage/Stellplatz | Garage |
| Anzahl Garage/Stellplatz | 2 |
Kosten
| Kaufpreis |
959.000 € |
|---|---|
| Provision |
3,57 Der Maklervertrag mit Sabine Rüssel Immobilien kommt durch die Bestätigung der Inanspruchnahme unserer Maklertätigkeiten zustande. Der/Die Käufer*in verpflichtet sich damit zur Zahlung einer Käuferprovision in Höhe von 3,57 % (inkl. 19% USt.) des Kaufpreises an Sabine Rüssel Immobilien. |
Finanzierungsrechner:
Kaufpreis:
600.000 €
Eigenkapital:
600.000 €
Monatliche Rate
0 €
Effektiver Jahreszins
0 %
Sollzinsbindung
10 Jahre
Bausubstanz & Energieausweis
| Baujahr | 2000 |
|---|---|
| Letzte Sanierung | 2023 |
| Bauphase | Haus fertig gestellt |
| Qualität der Austattung | Gehoben |
| Heizungsart | Gas-Heizung |
| Wesentliche Energieträger | Gas |
| Energieausweis | liegt vor |
| Energieausweistyp | Verbrauchsausweis |
| Energieverbrauchskennwert | 75,8 kWh/(m²*a) |
| Energieeffizienzklasse | C |
75,8
kWh/(m²*a)
Energieeffizienzklasse C
- A+
- A
- B
- C
- D
- E
- F
- G
- H
- 0
- 25
- 50
- 75
- 100
- 125
- 150
- 175
- 200
- 225
- >250
Beschreibung des Objekts
Ausstattung
* elektrisches Eingangstor,
freistehende Doppelgarage mit PV
* moderner Grundriss, hochwertige Materialien
* Südwest-Garten mit Weitblick
* Keller mit Hobbyraum, HAR & Waschkeller
* Entrée mit Galerie und doppelter Raumhöhe
* Hochwertige Naturstein- und Parkettböden
* Bodentiefe Fenster
* Überdachte Terrasse mit Blick ins Grüne
* hochwertig EBK
* Schlafzimmer mit Ankleide und Gartenzugang
* Stilvolles Masterbad + Tageslichtbad im OG
* 3 Zimmer im Obergeschoss
* Maßgefertigte Einbaulschränke
* eingefriedeter Garten (Südwest-Ausrichtung)
* Natursteinbrunnen, Zypressen, blühende Sträucher
* Lichtdurchflutet, gepflegt, bezugsbereit
* Ideal für Mehrgenerationenwohnen, Homeoffice oder Vermietung
Lage
Mechernich – ein gewachsener Zentralort in der Eifel – vereint das Beste aus zwei Welten: ländliche Ruhe und moderne Infrastruktur. Die Umgebung ist geprägt von freistehenden Einfamilienhäusern, großzügigen Grundstücken und einem familiären Wohnumfeld.
Alles für den Alltag ist schnell erreichbar: Kindergärten, Schulen, Einkaufsmöglichkeiten, Ärzte, Apotheken und Cafés befinden sich in unmittelbarer Nähe. Selbst das Kreiskrankenhaus ist nur wenige Gehminuten entfernt.
Beste Verkehrsanbindung:
A1 in wenigen Minuten erreichbar
Bahnhof Mechernich mit direkter Verbindung nach Köln und Bonn
Die umliegenden Wälder und Wanderwege bieten hohen Freizeitwert und machen Mechernich besonders attraktiv für Familien und Pendler, die naturnah wohnen und trotzdem gut angebunden bleiben möchten.
Sonstige Angaben
Also:
Wenn Sie nicht nur ein schönes neues Zuhause für Ihre Familie suchen, sondern sich darüber hinaus ein elegantes, kultiviertes und entspanntes Wohnen wünschen, dann ist dieses Haus genau das richtige für Sie.
Nutzen Sie die Chance und überzeugen Sie sich von dieser Immobilie bei einer persönlichen Besichtigung.
Bitte haben Sie Verständnis, dass wir ausschließlich Anfrage mit vollständigen Kontaktinformationen (Adresse, Emailadresse und Telefonnummer) bearbeiten können. Herzlichen Dank!
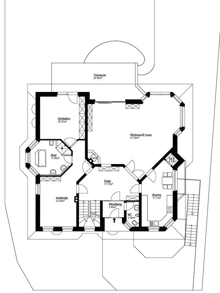
Grundriss
Grundriss Erdgeschoss
>
>
Adresse
53894 Mechernich
Interessante Orte
Preis- und Lageinformationen
Preistrend für Bestandsimmobilien in Mechernich