Grundstück:
Das ca. 787 m² große Grundstück ist gartenseitig mit Rasen, Bäumen und Büschen und einem kleinen Teich angelegt. Neben dem gepflegten Vorgarten liegt die Garage mit dahinterliegendem Raum für Gartengeräte, weitere Möglichkeiten zum Abstellen von Fahrzeugen sind gegeben.
Gebäude:
Das 1939 als Einfamilienhaus errichtete Gebäude zeigt sich in einem sehr gepflegten Zustand, eine Generalsanierung erfolgte im Jahre 2012 (Dach, Heizung, alle Leitungen). Zwischendurch erfolgte eine Umnutzung des Gebäudes. So findet sich im Erdgeschoss ein bezugsfreies Büro, welches bei Bedarf auch wieder zu Wohnzwecken umgebaut werden könnte. Die Wohnung im 1. Obergeschoss ist ebenfalls bezugsfrei und wurde auch als Büro genutzt, hier müsste noch ein Bad eingebaut werden. Das Appartement im Dachgeschoss mit Bad und Küche ist z.Z. noch vermietet.
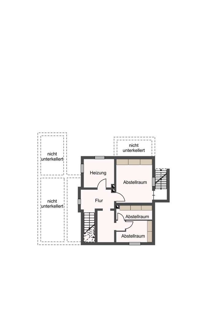
Die Gesamtfläche des Hauses beträgt ca. 170 m². Im Erdgeschoss liegen drei Räume, über einen Anbau gelangt man über einige Treppenstufen auf die Terrasse und in den Garten. Ein Gäste-WC sowie eine Küche sind im EG vorhanden. Im 1. Obergeschoss finden sich drei Schlaf- Wohnräume, eine Küche und ein WC. Ein Zimmer hat einen Ausgang auf den großzügigen Balkon und bietet sich als Elternschlafzimmer an. Im Dachgeschoss liegt ein großes Wohn- Esszimmer mit Küchenzeile, ein Duschbad sowie ein kleiner Abstellraum. Im Keller mit Treppenaufgang in den Garten finden sich neben dem Heizungsraum noch drei Abstellräume. Beheizung erfolgt mittels Gas-Zentralheizung. Die Warmwasserversorgung über elektrische Durchlauferhitzer.
Hier einige Ausstattungsdetails, die wir Ihnen gerne im Rahmen einer Innenbesichtigung erläutern:
- Garage und Stellplätze
- Großzügiger Garten mit Teich und Terrasse
- Balkon im Obergeschoss
- moderne Bäder und WCs
- isolierverglaste Kunststofffenster
Gewerbe und Wohnfläche:
ca. 170 m²
Grundstück:
ca. 787 m²
Altlasten:
Lt. schriftlicher Auskunft der Stadt Bonn v. 11.08.2025 sind keine Altlasten vorhanden
Baulasten und Erschließungsbeiträge:
entsprechende Auskünfte sind erbeten und liegen in Kürze vor.
Energieausweis:
dieser wird derzeit erstellt und liegt zur Besichtigung vor.
Provision:
Der Käufer zahlt eine Provision in Höhe von 3,57 % des Kaufpreises inkl. der gesetzlichen Mehrwertsteuer, fällig und zahlbar am Tage der notariellen Beurkundung des Kaufvertrages. Wir weisen darauf hin, dass wir mit den Verkäufern eine Provision in gleicher Höhe vereinbart haben.
Besichtigung:
Für eine Innenbesichtigung setzen Sie sich bitte mit Herrn Roth in Verbindung.
Wohnen und Arbeiten unter einem Dach! 3-Parteienhaus mit großem Garten in Rüngsdorf
53179 Bonn
Die vollständige Adresse der Immobilie erhalten Sie vom Anbieter.
Auf Karte anzeigen
Die vollständige Adresse der Immobilie erhalten Sie vom Anbieter.
Finanzierungszertifikat
In nur zwei Minuten zu Ihrem persönlichen Finanzierungszertifkat.
Infos
| Haustyp | Villa |
|---|---|
| Etagenzahl | 2 |
| Wohnfläche ca. | 170 m2 |
| Nutzfläche | 57 m2 |
| Grundstücksfläche | 787 m2 |
| Bezugsfrei ab | teilvermietet |
| Zimmer | 7 |
| Garage/Stellplatz | Garage |
| Anzahl Garage/Stellplatz | 1 |
Kosten
| Kaufpreis |
890.000 € |
|---|---|
| Provision |
3,57% inklusive gesetzlicher MwSt. |
Finanzierungsrechner:
Kaufpreis:
600.000 €
Eigenkapital:
600.000 €
Monatliche Rate
0 €
Effektiver Jahreszins
0 %
Sollzinsbindung
10 Jahre
Bausubstanz & Energieausweis
| Baujahr | 1939 |
|---|---|
| Objektzustand | Modernisiert |
| Heizungsart | Zentralheizung |
| Wesentliche Energieträger | Gas |
| Energieausweis | liegt zur Besichtigung vor |
Beschreibung des Objekts
Lage
Lage:
Der Ortsteil Rüngsdorf war bereits Anfang des 20sten Jahrhunderts Teil des sogenannten Villenviertel der bis 1969 selbständigen Stadt Bad Godesberg. Daher wird die Lage überwiegend durch teils toprestaurierte Gründerzeithäuser geprägt. Von hier erreicht man zu Fuß in wenigen Minuten die Rheinpromenade, charmante Cafés und Restaurants am Römerplatz, die Godesberger Fußgängerzone und den Bahnhof mit S-Bahn-Anschluss. Im kurzen Takt verbindet diese nach Bonn-Zentrum, die DB-Zuganbindung ermöglicht eine schnelle Erreichbarkeit von Bad Godesberg nach Köln und Koblenz.
Grundriss
Grundriss Erdgeschoss
>
>
Grundriss Obergeschoss
>
>
Grundriss Dachgeschoss
>
>
Grundriss Untergeschoss
>
>
Adresse
53179 Bonn
Interessante Orte
Preis- und Lageinformationen
Preistrend für Bestandsimmobilien in Bad Godesberg