Willkommen in diesem beeindruckenden Mehrfamilienhaus in der charmanten Gemeinde Pfungstadt, das mit seiner vollendeten Mischung aus historischem Charme und modernem Komfort begeistert.
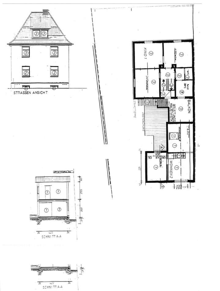
Das Vorderhaus ist Errichtet im Jahr 1928, aufgestockt 1990 und Modernisiert 2006, versprüht dieses Haus nach einer umfassenden Modernisierung zeitlose Eleganz.
Mit einer großzügigen Wohnfläche von 250 m² Insgesamt, verteilt auf 3 Wohnungen die bereits nach WEG aufgeteilt sind und aktuell voll Vermietet sind.
Ursprünglich wurde der Gesamte Erdgeschoss Bereich mit dem Anbau zusammen als 5 Zi. Wohnung genutzt, die später wieder voneinander getrennt wurden, aktuell befindet sich eine 3 Zi.-Wohnung im Vorderhaus und eine 3 Zi.-Maisonetten-Wohnung im Hinterhaus.
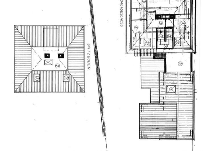
Im Ober- und Dachgeschoss ist noch eine weitere 5,5 Zimmer-Wohnung als Maisonetten-Wohnung mit einer Dachterrasse.
Auf dem 442 m² großen Grundstück finden Sie genügend Raum für Entspannung und Freizeit im Freien.
Die Gartennutzung ermöglicht es Ihnen, sich in der Natur zurückzuziehen, während der Balkon zur Südwestseite hin mit seinem Sonnenschein und seiner Aussicht zum Verweilen einlädt.
Die zentrale Lage in Pfungstadt verbindet ruhiges Wohnen mit der Nähe zu allen Annehmlichkeiten des täglichen Bedarfs und einer hervorragenden Verkehrsanbindung.
Dieses traumhafte Mehrfamilienhaus kann nach Absprache Ihr neues Zuhause werden. Lassen Sie sich diese seltene Gelegenheit nicht entgehen und vereinbaren Sie einen Besichtigungstermin. Wir freuen uns darauf, Ihnen diese außergewöhnliche Immobilie persönlich vorzustellen.
2-3-FH mit Garten und Terrasse in ruhiger Anliegerstraße Pfungstadt
64319 Pfungstadt
Die vollständige Adresse der Immobilie erhalten Sie vom Anbieter.
Auf Karte anzeigen
Die vollständige Adresse der Immobilie erhalten Sie vom Anbieter.
Finanzierungszertifikat
In nur zwei Minuten zu Ihrem persönlichen Finanzierungszertifkat.
Infos
| Haustyp | Mehrfamilienhaus |
|---|---|
| Etagenzahl | 3 |
| Wohnfläche ca. | 250 m2 |
| Nutzfläche | 36,66 m2 |
| Grundstücksfläche | 442 m2 |
| Bezugsfrei ab | 01.03.2026 |
| Zimmer | 10,5 |
| Schlafzimmer | 7 |
| Badezimmer | 3 |
| Garage/Stellplatz | Außenstellplatz |
| Anzahl Garage/Stellplatz | 4 |
Kosten
| Kaufpreis |
695.000 € |
|---|---|
| Provision |
3,5 % inkl. MwSt. aus dem Kaufpreis |
Finanzierungsrechner:
Kaufpreis:
600.000 €
Eigenkapital:
600.000 €
Monatliche Rate
0 €
Effektiver Jahreszins
0 %
Sollzinsbindung
10 Jahre
Bausubstanz & Energieausweis
| Baujahr | 1928 |
|---|---|
| Letzte Sanierung | 2006 |
| Objektzustand | Modernisiert |
| Heizungsart | Zentralheizung |
| Wesentliche Energieträger | Gas |
| Energieausweis | liegt vor |
| Energieausweistyp | Verbrauchsausweis |
| Energieverbrauchskennwert | 120,0 kWh/(m²*a) |
Beschreibung des Objekts
Lage
Das Mehrfamilienhaus befindet sich in der charmanten Stadt Pfungstadt, gelegen im Herzen des südhessischen Landkreises Darmstadt-Dieburg. Diese Lage zeichnet sich durch ihre hervorragende Verkehrsanbindung und Infrastruktur aus, die optimale Bedingungen für Pendler und Einwohner bietet. Die Umgebung besticht durch eine harmonische Mischung aus urbanem Flair und ländlicher Idylle.
In unmittelbarer Nähe finden sich zahlreiche Einkaufsmöglichkeiten, Restaurants und Cafés sowie diverse Freizeitangebote, die für eine hohe Lebensqualität sorgen. Außerdem liegen Bildungseinrichtungen und Kindertagesstätten nur einen Steinwurf entfernt, was diese Lage besonders attraktiv für Familien macht. Die umliegende Natur lädt zu ausgedehnten Spaziergängen und Fahrradtouren ein und bietet einen idealen Rückzugsort vom hektischen Alltag.
Die Nähe zur Stadt Darmstadt erweitert das kulturelle und wirtschaftliche Spektrum um ein Vielfaches, sodass Sie von einer Vielzahl an Veranstaltungen und beruflichen Möglichkeiten profitieren können. Ein weiteres Highlight ist die schnelle Anbindung an die Autobahn sowie den öffentlichen Nahverkehr, wodurch auch die Rhein-Main-Region bequem erreichbar ist.
Diese Lage vereint somit auf eindrucksvolle Weise modernes Stadtleben mit erholsamer Naturnähe und erfüllt die Ansprüche von Jung und Alt gleichermaßen.
Sonstige Angaben
Die EG-Wohnung und Anbau mit einer Hochwertigen Einbauküche ist komplett modernisiert worden 2006 mit neuen Fußböden, Holzkamin, Deckenspots und modernen Bad.
Die Wohnung Maisonetten-Wohnung wurde zuletzt im Jahre 2020 Renoviert.
Großer Hofbereich mit Parkplätzen vor dem Haus, pflegeleichter Garten mit Gartenhütte.
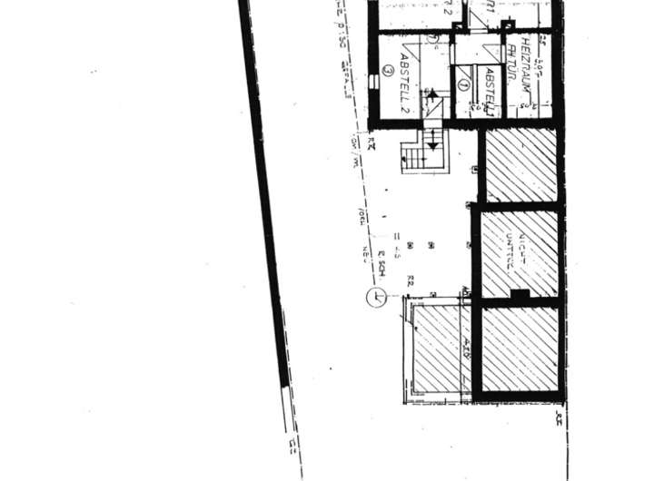
Vorderhaus ist vollunterkellert bietet genügend Stauraum an.
Die Wohnungen sind nach WEG-Aufgeteilt, so das auch später die Wohnungen separat als Eigentumswohnungen Verkauf oder aufgeilt werden können.
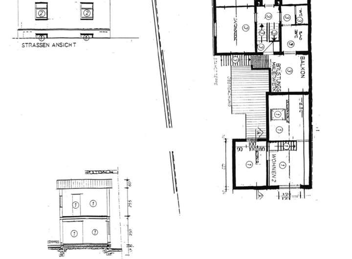
Grundriss
Grundriss 1
>
>
Grundriss 2
>
>
Grundriss 3
>
>
Grundriss 4
>
>
Adresse
64319 Pfungstadt
Interessante Orte
Preis- und Lageinformationen
Preistrend für Bestandsimmobilien in Pfungstadt