Dieses moderne KfW-55-Effizienzhaus aus dem Baujahr 2019 überzeugt durch seine nachhaltige Bauweise und energieeffiziente Ausstattung. Beheizt wird die Immobilie über eine umweltfreundliche Fernwärmeversorgung, ergänzt durch eine Entlüftungsanlage mit Wärmerückgewinnung, die für ein angenehmes Raumklima und niedrige Energiekosten sorgt. Das Haus bietet modernen Wohnkomfort in einer zukunftsorientierten Bauweise – ideal für alle, die Wert auf Energieeffizienz und Nachhaltigkeit legen.
KFW55 energieeffizientes Reihenmittelhaus mit Dachterrasse und Carport
28329 Bremen
Die vollständige Adresse der Immobilie erhalten Sie vom Anbieter.
Auf Karte anzeigen
Die vollständige Adresse der Immobilie erhalten Sie vom Anbieter.

Finanzierungszertifikat
In nur zwei Minuten zu Ihrem persönlichen Finanzierungszertifkat.
Infos
Haustyp | Reihenmittelhaus |
---|---|
Etagenzahl | 3 |
Wohnfläche ca. | 120 m2 |
Grundstücksfläche | 139 m2 |
Bezugsfrei ab | nach Vereinbarung |
Zimmer | 5 |
Schlafzimmer | 4 |
Badezimmer | 1 |
Garage/Stellplatz | Carport |
Anzahl Garage/Stellplatz | 1 |
Kosten
Kaufpreis |
498.000 € |
---|---|
Provision |
3,57 % (inkl. 19 % MwSt.) vom beurkundeten Kaufpreis, jeweils vom Käufer und Verkäufer |
Finanzierungsrechner:
Kaufpreis:
600.000 €
Eigenkapital:
600.000 €
Monatliche Rate
0 €
Effektiver Jahreszins
0 %
Sollzinsbindung
10 Jahre
Bausubstanz & Energieausweis
Baujahr | 2019 |
---|---|
Objektzustand | Gepflegt |
Heizungsart | Fernwärme |
Wesentliche Energieträger | KWK fossil |
Energieausweis | liegt vor |
Energieausweistyp | Bedarfsausweis |
Energieverbrauchskennwert | 42,0 kWh/(m²*a) |
Energieeffizienzklasse | A |
42,0
kWh/(m²*a)
Energieeffizienzklasse A
- A+
- A
- B
- C
- D
- E
- F
- G
- H
- 0
- 25
- 50
- 75
- 100
- 125
- 150
- 175
- 200
- 225
- >250
Beschreibung des Objekts
Ausstattung
Exemplarisch möchten wir auf folgende Ausstattungsdetails hinweisen: - 3–4 Schlafzimmer – flexibel nutzbar für Familie, Gäste oder Homeoffice - Gäste-WC für zusätzlichen Komfort - Modernes Vollbad mit stilvollen Armaturen - Küche mit hochwertiger Einbauküche (EBK) - Effiziente Entlüftungsanlage mit Wärmerückgewinnung - Zusätzliche Klimaanlage in jedem Zimmer für ein angenehmes Raumklima - Großzügige, nicht einsehbare Dachterrasse – ideal zum Entspannen - Neue Bodenbeläge in allen Etagen für ein modernes Wohngefühl - Sonnige, nach Süden ausgerichtete Gartenterrasse - Praktisches Gartenhaus für zusätzlichen Stauraum - Carport für bequemes und geschütztes Parken Diese Ausstattung sorgt für höchsten Wohnkomfort und eine hervorragende Lebensqualität.
Lage
In unmittelbarer Nähe zum renommierten Club zur Vahr befindet sich das neue Wohnquartier „Am Mittelkampsfleet“ – eine ideale Umgebung für Familien. Die Lage überzeugt durch eine erstklassige Infrastruktur: Mehrere Kindergärten und zwei Grundschulen sind in wenigen Gehminuten erreichbar. Auch Einkaufsmöglichkeiten, wie ein Supermarkt und eine Bäckerei, sowie Haltestellen des öffentlichen Nahverkehrs, darunter das Einkaufszentrum „Berliner Freiheit“, befinden sich nur einen kurzen Spaziergang entfernt. Die nächste Autobahnauffahrt ist in nur drei Minuten mit dem Auto erreichbar und ermöglicht eine schnelle Anbindung an das überregionale Verkehrsnetz. Das Wohngebiet ist über eine öffentliche Zufahrtsstraße mit Wendekreis erschlossen. Fußwege führen zu den Hauseingängen, wodurch störender Autoverkehr innerhalb des Quartiers vermieden wird. Umrahmt von einem dichten, gewachsenen Baumbestand, bietet das gesamte Gebiet eine grüne und ruhige Wohnatmosphäre.
Sonstige Angaben
Die aktuelle Grundsteuer beträgt aktuell ca. € 695,00 p.a. Unsere Objektangaben basieren auf den uns erteilten Informationen. Eine Haftung für die Richtigkeit und Vollständigkeit können wir deshalb nicht übernehmen.
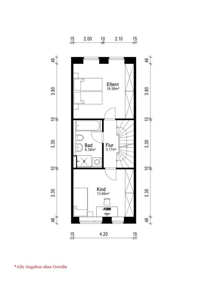
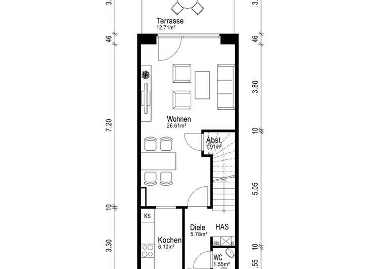
Grundriss
Grundriss DG
>

Grundriss EG
>

Grundriss OG
>

Adresse
28329 Bremen
Interessante Orte
Preis- und Lageinformationen
Preistrend für Bestandsimmobilien in Neue Vahr Nord