Dieses ansprechende Einfamilienhaus, perfekt für Familien mit Kindern, überzeugt durch seine großzügige Raumaufteilung, hochwertige Ausstattung und eine ruhige Wohnlage in Altötting.
Über eine gemeinschaftlich genutzte Zufahrt erreichen Sie das neu errichtete Carport, das bereits für eine Photovoltaikanlage und eine Wallbox vorbereitet ist. Eine separate Eingangstür trennt das Grundstück vom öffentlichen Bereich ab und schafft ein hohes Maß an Privatsphäre.
Ein gepflasterter Weg führt zum Haupteingang des Hauses, der direkt in einen großzügigen Flur übergeht.
Von hier aus eröffnet sich das Herzstück des Hauses: ein offener Wohn- und Essbereich mit hochwertiger Einbauküche, die mit Granitarbeitsplatte sowie Geräten von Miele und V-Zug ausgestattet ist. Ein Grundofen (Einsatz Brunner) mit speziellen Wärmespeichersteinen (Schamottsteine) sorgt nicht nur für eine stimmungsvolle Atmosphäre, sondern spendet auch über viele Stunden angenehme Wärme.
Ebenfalls befinden sich im Erdgeschoss drei vielseitig nutzbare Zimmer sowie ein modernes, komplett saniertes Badezimmer mit annähernd ebenerdiger Dusche, Doppelwaschbecken und WC.
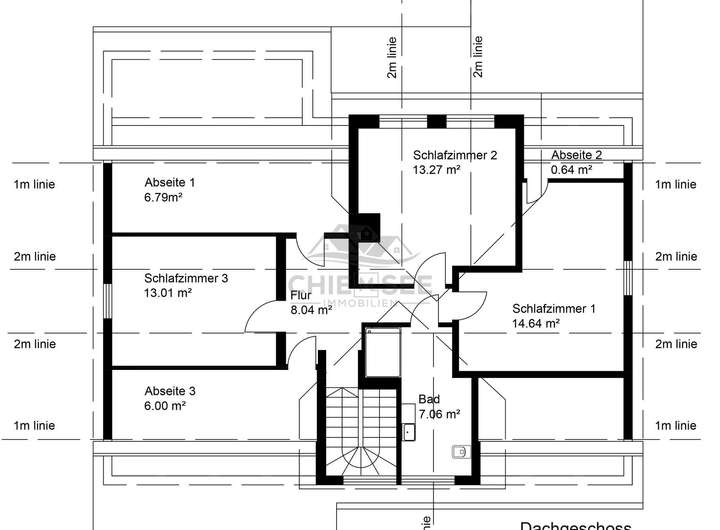
Über das zentrale Treppenhaus gelangen Sie in das 2011 neu ausgebaute Dachgeschoss. Hier stehen drei weitere Zimmer nebst Badezimmer – bestehend aus Dusche, Waschbecken und WC – sowie zwei praktische Spitzböden zur Verfügung.
Auch das Untergeschoss bietet viel Platz und vielfältige Nutzungsmöglichkeiten. Mit einer Raumhöhe von bis zu ca. 2,15 Metern, Tageslicht und Wärmeversorgung eignet sich der ca. 38 m² große Hobbyraum hervorragend zur vielseitigen Nutzung. Zusätzlich stehen drei weitere Lagerräume sowie ein Hauswirtschafts- und Technikraum bereit.
In den Jahren 2011 bis 2024 wurde das gesamte Haus laufend modernisiert. Sämtliche Wohnräume sind mit hochwertigen Bodenbelägen aus Fliesen, Parkett oder Laminat ausgestattet. Die Fenster wurden 2007 bzw. 2011 gegen zweifach verglaste Isolierglasfenster ausgetauscht und größtenteils mit Rollläden versehen.
Ein echtes Highlight ist die rund 30 m² große Terrasse (Angabe bitte prüfen), die 2023 erweitert und mit einem fest installierten Glasdach sowie zwei Markisen ausgestattet wurde. Sie bietet einen geschützten Außenbereich, der sowohl vom Wohnzimmer als auch von zwei Zimmern aus zugänglich ist. Der Garten ist pflegeleicht angelegt, bietet durch dichte Bepflanzung angenehmen Sichtschutz und wird durch eine Gartenhütte für zusätzlichen Stauraum ergänzt.
Abgerundet wird das Immobilienangebot durch eine Einzelgarage in unmittelbarer Nähe zum Wohnhaus (siehe Bild aus der Vogelperspektive).
Festverbaute Einrichtungen (Küche) und Möbel (Einbauschränke) werden mitverkauft. Weiteres Mobiliar und zusätzliche Einrichtungen (z. B. Whirlpool, Tische, Betten etc.) stellen lediglich Einrichtungsvorschläge dar bzw. können ggf. zusätzlich erworben werden.
Ruhig gelegenes Einfamilienhaus mit Terrasse, Garage und Carport in Altötting
Hüttenberger Weg 20,
84503 Altötting
Auf Karte anzeigen
Finanzierungszertifikat
In nur zwei Minuten zu Ihrem persönlichen Finanzierungszertifkat.
Infos
| Haustyp | Einfamilienhaus |
|---|---|
| Wohnfläche ca. | 207 m2 |
| Nutzfläche | 121 m2 |
| Grundstücksfläche | 565 m2 |
| Bezugsfrei ab | sofort |
| Zimmer | 7 |
| Badezimmer | 2 |
| Garage/Stellplatz | Garage |
| Anzahl Garage/Stellplatz | 2 |
Kosten
| Kaufpreis |
790.000 € |
|---|---|
| Provision |
3,57 % 3,57% Provision (inkl. Mwst.) jeweils für Verkäufer und Käufer, fällig mit notariellem Kaufvertrag. |
Finanzierungsrechner:
Kaufpreis:
600.000 €
Eigenkapital:
600.000 €
Monatliche Rate
0 €
Effektiver Jahreszins
0 %
Sollzinsbindung
10 Jahre
Bausubstanz & Energieausweis
| Baujahr | 1970 |
|---|---|
| Heizungsart | Fernwärme |
| Wesentliche Energieträger | Fernwärme |
| Energieausweis | liegt vor |
| Energieausweistyp | Verbrauchsausweis |
| Energieverbrauchskennwert | 97,6 kWh/(m²*a) |
| Energieeffizienzklasse | C |
97,6
kWh/(m²*a)
Energieeffizienzklasse C
- A+
- A
- B
- C
- D
- E
- F
- G
- H
- 0
- 25
- 50
- 75
- 100
- 125
- 150
- 175
- 200
- 225
- >250
Beschreibung des Objekts
Ausstattung
Folgende Renovierungen/Modernisierungen wurden durchgeführt:
- 2007/2011 Tausch aller Fenster
- 2011 Wasseraufbereitungsanlage
- 2011 Neueindeckung des Daches samt Dachgauben - Grunderneuerung des Gesamten Dachgeschosses
- 2011 Anbringung eines Wärmedämmverbundsystems
- 2011 Einbauküche
- 2011 Abgeschirmte Leitungen vermeidet Elektrosmog, verbessert den Schlaf
- 2017 Anschluss an das Fernwärmenetz samt Wasseraufbereitungsanlage
- 2023 Badezimmer (EG)
- 2023 Erweiterung Terrasse samt Überdachung
- 2024 Carport mit Vorbereitung für Photovoltaik und Wallbox
- Glasfasernetz beantragt
Lage
Makrolage
Altötting liegt im Südosten Bayerns und ist als traditionsreicher Wallfahrtsort weit über die Region hinaus bekannt. Die Stadt bietet eine hervorragende Infrastruktur mit Schulen, Kindergärten, Einkaufsmöglichkeiten, medizinischer Versorgung sowie einem breiten Freizeit- und Kulturangebot.
Durch die Nähe zur B299, B20 und A94 sowie den Regionalbahnhof besteht eine gute Anbindung in Richtung Mühldorf, Burghausen, München und zum Flughafen. Die reizvolle Umgebung mit ihren Rad- und Wanderwegen macht Altötting besonders lebenswert.
Mikrolage
Der Hüttenberger Weg befindet sich in einer ruhigen Wohngegend mit überwiegend Einfamilienhäusern. Trotz der ruhigen Lage ist die Innenstadt schnell erreichbar. Schulen, Einkaufsmöglichkeiten, Ärzte und Freizeitangebote befinden sich in direkter Nähe.
Bushaltestellen und der Bahnhof sind gut erreichbar, ebenso wie Grünflächen und Spielplätze in der Umgebung.
Sonstige Angaben
Angaben- und Haftungsvorbehalt:
Alle Angaben, Darstellungen und Berechnungen im Prospekt sind mit Sorgfalt zusammengestellt worden.
Eine Haftung dafür kann nicht übernommen werden. Die Angaben in m² sind ca. und können geringfügig abweichen. Mit dem Abschluss des Kaufvertrages und evtl. Leistungsverträge erklärt sich der Erwerber ausdrücklich mit dieser Beschränkung der Prospektverantwortung einverstanden.
Die Grundrisse und Ansichten sind schematisch, dienen nur der Orientierung und sind auch zur Maßentnahme nicht geeignet. Das etwaig eingezeichnete Mobiliar sowie die sanitären Einrichtungsgegenstände, sofern nicht ausdrücklich in den Beschreibungen genannt, stellen Einrichtungsvorschläge dar und sind nicht im Kaufpreis enthalten.
Von diesem Prospekt abweichende Angaben, Aussagen oder Zusagen bedürfen der ausdrücklichen schriftlichen Zustimmung des Prospektherausgebers. Mit dem Vertrieb und der Vermittlung der Objekte befasste Personen und Gesellschaften, dürfen nur Angaben machen, die dem Prospektinhalt entsprechen. Besondere Absprachen, Änderungen, Ergänzungen und Sonderwünsche bzw. Zusatzleistungen bedürfen der schriftlichen Vereinbarung mit dem Prospektherausgeber.
Widerrufsbelehrung
Aufgrund gesetzlicher Vorgaben müssen wir Sie über Ihr nachfolgendes Widerrufsrecht belehren und Ihnen ein Muster-Widerrufsformular zur Verfügung stellen.
Durch die Zusendung unserer Angebote sowie durch die Besichtigung der Objekte mit uns entstehen Ihnen keine Kosten.
Nur wenn es zum Abschluss eines notariellen Kaufvertrags einer von uns nachgewiesenen bzw. vermittelten Immobilie kommt, entsteht ein Provisionsanspruch unsererseits an Sie.
Im Falle eines zustande kommenden Maklervertrages haben Verbraucher das folgende Widerrufsrecht:
Widerrufsrecht
Sie haben das Recht, binnen vierzehn Tagen ohne Angabe von Gründen diesen Vertrag zu widerrufen.
Die Widerrufsfrist beträgt 14 Tage ab dem Tag des Vertragsschlusses und des Zugangs dieser Belehrung in Textform.
Um Ihr Widerrufsrecht auszuüben, müssen Sie die Mayer-Business-Group GmbH, Hauptstraße 12, 83339 Chieming (Tel: 08664 / 928 12 0 Fax: 08664 928 12 -20, Email: office@mayer-business-group.com) mittels einer eindeutigen Erklärung (z. B. ein mit der Post versandter Brief, Telefax oder E-Mail) über Ihren Entschluss, diesen Vertrag zu widerrufen, informieren.
Sie können dafür das beigefügte Muster-Widerrufsformular verwenden, das jedoch nicht vorgeschrieben ist.
Zur Wahrung der Widerrufsfrist reicht es aus, dass Sie die Mitteilung über die Ausübung des Widerrufsrechts vor Ablauf der Widerrufsfrist absenden.
Folgen des Widerrufs
Wenn Sie diesen Vertrag widerrufen, haben wir Ihnen alle eventuell erhaltenen Zahlungen, die wir von Ihnen erhalten haben, unverzüglich und spätestens binnen vierzehn Tagen ab dem Tag zurückzuzahlen, an dem die Mitteilung über Ihren Widerruf dieses Vertrages bei uns eingegangen ist.
Für diese Rückzahlung verwenden wir dasselbe Zahlungsmittel, das sie bei der ursprünglichen Transaktion eingesetzt haben, es sei denn, mit Ihnen wurde ausdrücklich etwas anderes vereinbart.
In keinem Fall werden Ihnen wegen dieser Rückzahlung Entgelte berechnet.
Ja, ich habe die Widerrufsbelehrung, die Widerrufsfolgen und das Muster-Widerrufsformular gelesen und zur Kenntnis genommen.
________________________________________________
Ort, Datum Unterschrift des/der Auftraggeber
Aufgrund gesetzlicher Vorgaben dürfen wir nur dann sofort für Sie tätig werden, wenn Sie nachfolgendes ausdrücklich bestätigen:
Ja, ich wünsche ein sofortiges Tätigwerden des Maklers in Kenntnis der Tatsache, dass ich dann mein Widerrufsrecht verliere und als Wertersatz bei erfolgreicher Maklertätigkeit eine Provision in Höhe von 3,57 (inkl. 19% MwSt.) an Mayer-Business-Group GmbH zu leisten habe.
_________________________________________________
Ort, Datum Unterschrift des/der Auftraggeber
================================================
Weitere Dokumente
EnergieausweisGrundriss
EG - Grundriss
>
>
DG - Grundriss
>
>
KG - Grundriss
>
>
Adresse
Hüttenberger Weg 20, 84503 Altötting
Interessante Orte
Preis- und Lageinformationen
Preistrend für Bestandsimmobilien in Altötting