Dieses Einfamilienhaus aus dem Jahr 1958 befindet sich in einer ruhigen und gewachsenen Siedlungslage von Brinkum. Mit seiner durchdachten Raumaufteilung, dem großzügigen Platzangebot und einem ca. 830 m² großen Grundstück bietet es ideale Voraussetzungen für Familien, die auf der Suche nach einem behaglichen Zuhause mit Gestaltungsspielraum sind. Der Blick aus dem Garten auf die umliegenden Wiesen sorgt für eine besonders angenehme und naturnahe Atmosphäre – eine gute Gelegenheit für alle, die Ruhe und Erholung schätzen.
Raumaufteilung:
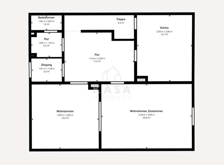
Das Erdgeschoss besticht durch ein helles, freundliches Wohnzimmer, das über einen weiten Durchgang mit dem Esszimmer verbunden ist – ideal für gesellige Stunden mit Familie und Freunden. Die Küche bietet ausreichend Platz für individuelle Gestaltungsideen und ermöglicht zudem den direkten Zugang zum Keller.
Im Obergeschoss befinden sich insgesamt drei Schlafzimmer. Zwei der Räume verfügen über einen gemeinsamen Zugang zu einem Balkon, der zum Verweilen im Freien einlädt. Das Badezimmer ist mit Badewanne und Dusche ausgestattet und bietet sowohl Komfort als auch Funktionalität. Ein zusätzlicher Dachboden steht als praktische Staumöglichkeit zur Verfügung.
Der Vollkeller mit einer Fläche von ca. 67 m² bietet vielfältige Nutzungsmöglichkeiten – etwa als Hobbyraum, Spielzimmer oder zusätzlichen Stauraum. Hier befindet sich auch die moderne Brennwerttherme Baujahr ca. 2022, die für eine effiziente und zuverlässige Beheizung des Hauses sorgt.
Die Fenster sind zweifach verglast und mit Außenjalousien ausgestattet. Zum Haus gehört außerdem eine massive Garage, die weiteren Komfort bietet.
Dieses Einfamilienhaus ist eine seltene Gelegenheit für alle, die ein solides Zuhause in ruhiger Lage suchen – mit viel Platz, schöner Aussicht und großem Potenzial, eigene Wohnträume zu verwirklichen.
Gerne vereinbaren wir einen persönlichen Besichtigungstermin, um Ihnen diese besondere Immobilie näher vorzustellen. Rufen Sie uns an, schreiben Sie uns eine E-Mail oder besuchen Sie uns in unserem Shop in Leer!
RESERVIERT! Charmantes Einfamilienhaus in einer ruhigen Siedlungslage in Brinkum!
26835 Brinkum
Die vollständige Adresse der Immobilie erhalten Sie vom Anbieter.
Auf Karte anzeigen
Die vollständige Adresse der Immobilie erhalten Sie vom Anbieter.
Finanzierungszertifikat
In nur zwei Minuten zu Ihrem persönlichen Finanzierungszertifkat.
Infos
| Haustyp | Einfamilienhaus |
|---|---|
| Etagenzahl | 2 |
| Wohnfläche ca. | 118 m2 |
| Nutzfläche | 89,7 m2 |
| Grundstücksfläche | 830 m2 |
| Bezugsfrei ab | nach Vereinbarung |
| Zimmer | 4 |
| Schlafzimmer | 3 |
| Badezimmer | 1 |
Kosten
| Kaufpreis |
239.000 € |
|---|---|
| Provision |
3,57 % (inkl. MwSt.) vom Kaufpreis |
Finanzierungsrechner:
Kaufpreis:
600.000 €
Eigenkapital:
600.000 €
Monatliche Rate
0 €
Effektiver Jahreszins
0 %
Sollzinsbindung
10 Jahre
Bausubstanz & Energieausweis
| Baujahr | 1958 |
|---|---|
| Objektzustand | Renovierungsbedürftig |
| Heizungsart | Gas-Heizung |
| Wesentliche Energieträger | Gas |
Beschreibung des Objekts
Ausstattung
- Baujahr: 1958
- Ruhige Siedlungslage in Brinkum
- Heizungsanlage von 2022
- Zweifach verglaste Fenster mit Außenjalousien
- Drei Schlafzimmer, davon zwei mit kleinem Balkon
- Gäste WC im Erdgeschoss
- Badezimmer mit Badewanne und Dusche im Obergeschoss
- Helles Wohnzimmer mit großem Durchgang zum Esszimmer
- Vollkeller mit vielseitigen Nutzungsmöglichkeiten
- Massive Garage
- Dachboden
Lage
Lage – familienfreundlich & verkehrsgünstig!
Das Einfamilienhaus liegt in einem gewachsenen Wohngebiet von Brinkum – ruhig und dennoch verkehrsgünstig. Einkaufsmöglichkeiten wie Supermärkte, Bäckereien und Drogerien befinden sich nur wenige Minuten entfernt. Kindergärten und Schulen sind mit dem Rad schnell erreichbar.
Die ärztliche Versorgung, Apotheken und Freizeitangebote wie Sportvereine, Spielplätze und das nahe gelegene Hallenbad runden die familienfreundliche Infrastruktur ab.
Auch Pendler profitieren: Die Anbindung an die Autobahn sowie an den öffentlichen Nahverkehr ist ideal. Der Nachbarort Holtland ist in 2,5 km erreicht und bietet alle Anlaufpunkte des täglichen Bedarfs. Die Einkaufsstadt Leer mit Ihrer malerischen Altstadt ist in ca. 5km erreichen und in der Innenstadt befinden Sie sich in knapp 14 Minuten.
Sonstige Angaben
Die Käufer-Provision beträgt 3,57% vom Kaufpreis inkl. MwSt. Die Käufer-Provision ist verdient und fällig mit notarieller Beurkundung. Der Immobilienmakler hat einen provisionspflichtigen Maklervertrag in gleicher Höhe mit dem Verkäufer abgeschlossen. Grunderwerbsteuer, Notar- und Grundbuchkosten sind vom Käufer zu tragen.
Da wir Objektangaben nicht selbst ermitteln, übernehmen wir hierfür keine Gewähr.
Dieses Exposé ist nur für Sie persönlich bestimmt.
Eine Weitergabe an Dritte ist an unsere ausdrückliche Zustimmung gebunden und unterbindet nicht unseren Provisionsanspruch bei Zustandekommen eines Vertrages. Alle Gespräche sind über unser Büro zu führen. Bei Zuwiderhandlung behalten wir uns Schadenersatz bis zur Höhe der Provisionsansprüche ausdrücklich vor. Irrtum und Zwischenvermietung bleibt ausdrücklich vorbehalten.
Adresse
26835 Brinkum
Interessante Orte
Preis- und Lageinformationen
Preistrend für Bestandsimmobilien in Brinkum