Willkommen in dieser großzügigen Maisonette-Eigentumswohnung in Teterow, ideal für Familien und alle, die großzügiges Wohnen in einer naturnahen Umgebung schätzen. Die Wohnung befindet sich in einer gepflegten Wohnanlage mit zehn Einheiten, die 1993 erbaut wurde. Mit einer Wohnfläche von ca. 107 m² und einer Gesamtfläche von etwa 120 m² bietet die Wohnung auf zwei Ebenen vier Zimmer, eine großzügige Terrasse und durchdachte Details, die speziell auf Familien ausgerichtet sind. Der Eingangsbereich führt in den offenen Wohnraum mit Zugang zur Terrasse, die mit ca. 23 m² viel Platz für Entspannung und gesellige Stunden im Freien bietet. Die Wohnung ist leerstehend und somit sofort beziehbar.
Familienfreundliche Maisonette-Eigentumswohnung mit großer Terrasse Nahe Teterower See
17166 Teterow
Die vollständige Adresse der Immobilie erhalten Sie vom Anbieter.
Auf Karte anzeigen
Die vollständige Adresse der Immobilie erhalten Sie vom Anbieter.
Finanzierungszertifikat
In nur zwei Minuten zu Ihrem persönlichen Finanzierungszertifkat.
Infos
| Wohnungskategorie | Maisonette |
|---|---|
| Etage | 1 von 2 |
| Wohnfläche ca. | 107 m2 |
| Nutzfläche | 120 m2 |
| Zimmer | 4 |
| Schlafzimmer | 3 |
| Badezimmer | 1 |
| Anzahl Garage/Stellplatz | 1 |
Kosten
| Kaufpreis |
189.000 € |
|---|---|
| Hausgeld |
303 € |
| Provision | Nein |
Finanzierungsrechner:
Kaufpreis:
600.000 €
Eigenkapital:
600.000 €
Monatliche Rate
0 €
Effektiver Jahreszins
0 %
Sollzinsbindung
10 Jahre
Bausubstanz & Energieausweis
| Baujahr | 1997 |
|---|---|
| Qualität der Austattung | Normal |
| Heizungsart | Gas-Heizung |
| Wesentliche Energieträger | Gas |
| Energieausweis | liegt vor |
| Energieausweistyp | Verbrauchsausweis |
| Energieverbrauchskennwert | 34,1 kWh/(m²*a) |
| Energieeffizienzklasse | A |
34,1
kWh/(m²*a)
Energieeffizienzklasse A
- A+
- A
- B
- C
- D
- E
- F
- G
- H
- 0
- 25
- 50
- 75
- 100
- 125
- 150
- 175
- 200
- 225
- >250
Beschreibung des Objekts
Ausstattung
Die Maisonette-Wohnung ist familienfreundlich ausgestattet und bietet viele praktische Details. Die Treppe ins obere Geschoss ist mit einem zweiten Geländer auf Kinderhöhe versehen, das bei Bedarf leicht rückgebaut werden kann. Im Badezimmer befinden sich Doppelwaschbecken mit Spiegeln in Kinderhöhe – ein praktisches Extra für Familien mit Kindern. Der Vormieter hat das gesamte Obergeschoss (außer das Bad) mit Teppichboden ausgestattet, was für eine warme und behagliche Atmosphäre sorgt.
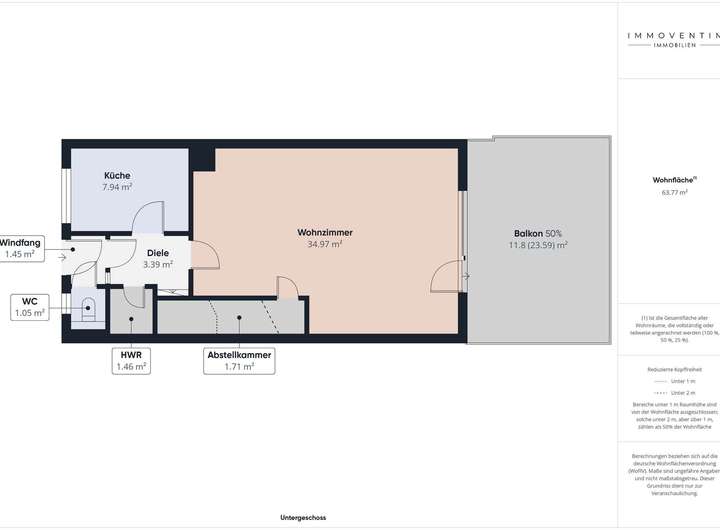
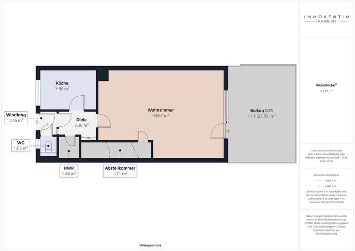
· Wohnfläche: ca. 107 m², Gesamtfläche ca. 120 m²
· Zimmer: 4 geräumige Zimmer
· Badezimmer: Innenliegendes Bad mit Badewanne und Gäste-WC mit Tageslicht
· Terrasse: Großzügige Terrasse mit ca. 24 m²
· Hauswirtschaftsraum: Praktischer Stauraum für Haushalt und Vorräte
· Stellflächen: Zusätzliche Abstellfläche unter der Treppe sowie im Dachspeicher
Lage
Die Wohnung liegt in Teterow, einer charmanten Kleinstadt im Herzen Mecklenburg-Vorpommerns. Die Lage zeichnet sich durch eine idyllische Umgebung und die Nähe zum Teterower See aus, der ein beliebtes Naherholungsziel für Spaziergänge, Radtouren und Wassersport bietet. Das Stadtzentrum von Teterow ist gut erreichbar und bietet alle wichtigen Einrichtungen des täglichen Bedarfs, darunter Schulen, Kitas, Supermärkte und Freizeitangebote. Teterow besticht durch seine zentrale Lage in der Mecklenburgischen Schweiz und ist somit ein idealer Ausgangspunkt für Naturliebhaber und Familien, die Wert auf eine ruhige, naturnahe Umgebung legen.
Sonstige Angaben
Ein gemeinschaftlicher Fahrradraum bietet ausreichend Platz für große und kleine Räder. Die Wohnung ist derzeit leerstehend und somit sofort bezugsfrei – perfekt für alle, die gerne schnell einziehen möchten.
Das Badezimmer hatte kürzlich einen Wasserschaden, der bereits an die Wohngebäudeversicherung gemeldet wurde. Die Regulierung läuft aktuell über die Versicherung. In welchem Umfang das Bad im Zuge der Sanierung erneuert wird, steht noch nicht endgültig fest – so bietet sich Ihnen möglicherweise sogar die Chance, bei der Neugestaltung eigene Vorstellungen einzubringen und dem Raum Ihre persönliche Note zu verleihen.
Aufgrund des Alters zeigt die Wohnung an einigen Stellen leichten Renovierungsbedarf, was sich jedoch wunderbar als Gelegenheit für eine individuelle Auffrischung anbietet. Der Eigentümer ist zudem bereit, sich nach Absprache und im angemessenen Rahmen an anstehenden Renovierungsarbeiten zu beteiligen – eine ideale Grundlage, um dieses Zuhause mit etwas Liebe und Gestaltungskraft in ein echtes Wohlfühlrefugium zu verwandeln.
Grundriss
Grundriss Untergeschoss
>
>
Grundriss Obergeschoss
>
>
Adresse
17166 Teterow
Interessante Orte
Preis- und Lageinformationen
Preistrend für Bestandsimmobilien in Teterow