Diese einzigartige Immobilie besticht durch ihre idyllische Lage in einem Runddorf mit einem unverbaubaren Blick auf
Felder, Wiesen und Alleen. Sie bietet Ihnen exklusive Aufenthaltsqualität auf einer Grundstücksfläche von ca. 22.802
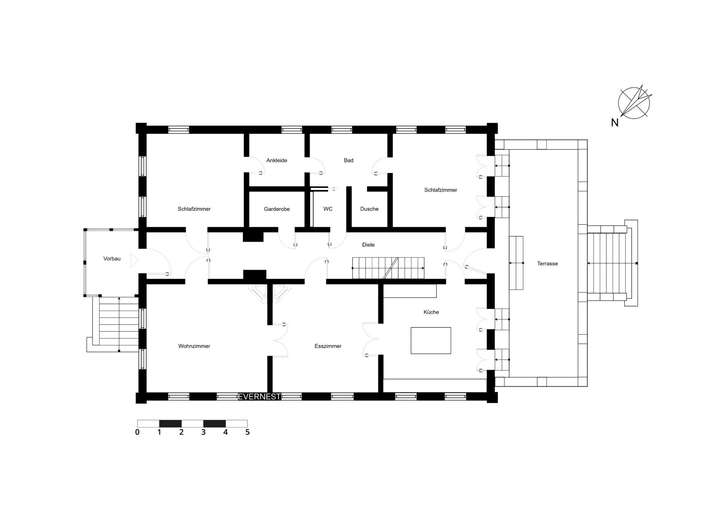
m². Das lichtdurchflutete Haus verfügt auf einer Wohnfläche von ca. 189 m² im Erdgeschoss über 4 geräumige Zimmer
sowie eine große Küche, ein Bad, ein Ankleidezimmer und eine Garderobe. Es ist ein wundervoller Ort für Familie und
Freunde.
Einstmals ein stolzer Vierkanthof aus dem Jahre 1845, wurde es in den Jahren 1994 bis 1996 zu einem Anwesen mit
einer klassizistischen Fassade und einem großen Park. Weitere behutsame Instandhaltungs- und
Sanierungsmaßnahmen in den Jahren 2012 und 2022 haben seine zeitlose Schönheit bewahrt und verfeinert.
Dieses erhabene preußische Mittelflurhaus verzaubert durch die exquisite Wahl seiner Materialien. Die Böden sind aus
massiven bis zu 45 cm breiten raumlangen Eichendielen. Terrassen und Flure sind mit afrikanischen Sandsteinplatten
belegt, die das Licht sanft einfangen. Das Dach ist mit Natur-Schiefer bedeckt. Im Dachgeschoss befindet sich eine
zum Ausbau vorbereitete Fläche von ca. 140 m², welche auf eine neue Nutzung wartet. Stilvolle Kamine knistern mit
Gemütlichkeit und eine Fülle exklusiver Details prägen den unverwechselbaren Charakter dieses Hauses, das den
erlesenen Geschmack seiner Schöpfer, eines Architekten und einer Designerin auf wunderbare Weise widerspiegelt.
Das Anwesen umfasst nicht nur das majestätische Herrenhaus, sondern auch einen liebevoll restaurierten Stall,
eingebettet in ein ca. 7.082 m² großes Parkgrundstück, an dem auch die "Königliche Gartenakademie Dahlem"
beteiligt war. Hier umfangen altehrwürdige Bäume, üppige Staudenbeete und formale Hecken das Auge und die
Seele. Dahinter öffnet sich ein atemberaubender, unverbaubarer Blick über sanfte Wiesen, Felder und malerische
Alleen. Das Panorama eröffnet die Weite der Natur in ihrer reinsten Form. Ein wahres Juwel dieses Anwesens ist der
ca. 900 m² großer Grundwasserteich. Eine Oase der Ruhe, zu der ein stilvolles Gewächshaus, kleine Terrassen und
ein einladender Steg gehören. Er lädt dazu ein, kostbare Stunden inmitten der Natur zu verbringen, die Seele baumeln
zu lassen und die harmonische Schönheit dieses einzigartigen Ortes in vollen Zügen zu genießen. Es ist ein idealer
Rückzugsort aus der lauten und hektischen Großstadt Berlin, von dessen westlicher Stadtgrenze es nur 65 km entfernt
ist.
Dieses Anwesen eignet sich perfekt für Liebhaber von historischen Gebäuden, die das Besondere suchen. Lassen Sie
sich von dem einzigartigen Flair dieses klassizistischen Landsitzes verzaubern und werden Sie Teil einer ganz
besonderen Lebensart.
Überzeugen Sie sich selbst von diesem traumhaften Anwesen und vereinbaren Sie noch heute einen Besichtigungstermin. Rufen Sie uns an und lassen Sie sich von unserem erstklassigen Service überzeugen.
Klassizistischer Landsitz mit großem Parkgrundstück in einem Runddorf
16845 Wusterhausen/Dosse
Die vollständige Adresse der Immobilie erhalten Sie vom Anbieter.
Auf Karte anzeigen
Die vollständige Adresse der Immobilie erhalten Sie vom Anbieter.
Finanzierungszertifikat
In nur zwei Minuten zu Ihrem persönlichen Finanzierungszertifkat.
Infos
| Haustyp | Villa |
|---|---|
| Etagenzahl | 3 |
| Wohnfläche ca. | 189 m2 |
| Nutzfläche | 183,78 m2 |
| Grundstücksfläche | 22.802 m2 |
| Zimmer | 5 |
| Schlafzimmer | 3 |
| Badezimmer | 2 |
| Garage/Stellplatz | Außenstellplatz |
| Anzahl Garage/Stellplatz | 2 |
Kosten
| Kaufpreis |
1.450.000 € |
|---|---|
| Provision |
3.57 % inkl. MwSt. Bei Abschluss eines notariellen Kaufvertrages ist eine Käuferprovision vom Käufer in Höhe von 3.57 % inkl. MwSt. aus dem Kaufpreis fällig. |
Finanzierungsrechner:
Kaufpreis:
600.000 €
Eigenkapital:
600.000 €
Monatliche Rate
0 €
Effektiver Jahreszins
0 %
Sollzinsbindung
10 Jahre
Bausubstanz & Energieausweis
| Baujahr | 1845 |
|---|---|
| Objektzustand | Gepflegt |
| Qualität der Austattung | Gehoben |
| Heizungsart | Öl-Heizung |
| Wesentliche Energieträger | Öl |
| Energieausweis | liegt vor |
| Energieausweistyp | Bedarfsausweis |
| Energieverbrauchskennwert | 371,3 kWh/(m²*a) |
| Energieeffizienzklasse | H |
371,3
kWh/(m²*a)
Energieeffizienzklasse H
- A+
- A
- B
- C
- D
- E
- F
- G
- H
- 0
- 25
- 50
- 75
- 100
- 125
- 150
- 175
- 200
- 225
- >250
Beschreibung des Objekts
Ausstattung
- Preußisches Mittelflur-Landhaus
- 5 Zimmer
- 3 Schlafzimmer
- Baujahr: 1845
- Aufwändig saniert und modernisiert (1994 bis 1996)
- Wohnfläche: ca. 189 m²
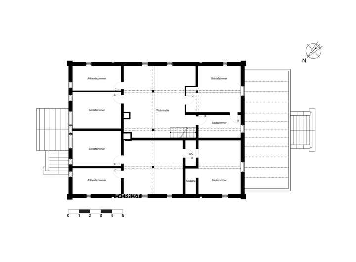
- Ausbaureserve: ca. 140 m² im Dachgeschoss mit bis zu 5 Meter Deckenhöhe
- Stallgebäude: ca. 213 m² Fläche (ausbaugeeignet)
- Etwa 40 m² große Terrasse
- Zwei Kamine, ca. 3 Meter Deckenhöhe u.v.m.
- Dampfsauna mit japanischer Sitzbadewanne im Souterrain, Weinkeller, Hauswirtschaftsraum
- Großer ca. 8.000 m² Landschaftsgarten mit altem Baumbestand
- Grundwasserteich mit Terrasse, Steg und Gewächshaus
- Zusätzliche ca. 1,5 Hektar Land, direkt anliegend, ideal z.B. für die Pferdehaltung
Lage
Läsikow, ein malerisches Runddorf wendischen Ursprungs in der historischen Mark Brandenburg, beeindruckt mit seiner einzigartigen, bis heute erhaltenen Dorfstruktur. Im 12. Jahrhundert, während der Germanisierung durch Markgraf Albrecht den Bären, entwickelte sich der Ort zu einer lebendigen Siedlung und wurde 1491 erstmals urkundlich erwähnt. Heute ist Läsikow mit seinen 54 Einwohnern (Stand 2022) ein idyllischer und ruhiger Rückzugsort auf dem Land.
Läsikow liegt in der Region Ostprignitz-Ruppin, ca. 75 km nordwestlich von Berlin. Die nächstgrößere Stadt und das Zentrum für die meisten Versorgungsleistungen ist Neuruppin.
Hier befinden sich Arztpraxen und medizinische Versorgung, Einkaufsmöglichkeiten des täglichen Bedarfs und Supermärkte sowie Schulen. Kleine Läden und eine Kindertagesstätte sind im Nachbardorf ansässig und schnell zu erreichen.
Die alte Kirche, die vermutlich auf den Überresten eines slawischen Tempels steht, bildet den Mittelpunkt des Dorfes. Der Runddorf-Charakter zeigt sich in der ringförmigen Anordnung der Häuser um die Kirche. Das geschichtsträchtige Dorf verfügt über eine einzige Ein- und Ausfahrtsstraße, die ausschließlich von den Bewohnern genutzt wird und als Spielstraße mit Spielplatz ausgebaut ist.
Läsikow zeichnet sich nicht nur durch seine historische Bedeutung aus, sondern auch durch das starke Engagement seiner Bewohner. Das ehemalige Nachtwächterhaus dient seit 2006 als Gemeindehaus und ist ein zentraler Treffpunkt. Zudem setzt sich der 2006 gegründete Förderverein „Kirche und Dorf Läsikow e. V.“ aktiv für den Erhalt der kulturellen und historischen Identität des Ortes ein.
Grundriss
Hochparterre
>
>
Dachgeschoss - Option
>
>
Tagesbelichtetes Souterrain
>
>
Scheune
>
>
Adresse
16845 Wusterhausen/Dosse
Interessante Orte
Preis- und Lageinformationen
Preistrend für Bestandsimmobilien in Wusterhausen/Dosse