+++ provisionsfrei +++
Sowohl für Privatleute, als auch Bauträger geeignet.
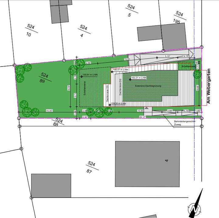
Das Grundstück ist unbebaut (Abbruch des ehemaligen Wohnhauses ist bereits erfolgt) und frei von Bäumen.
Es ist geeignet für eine Ein- oder Mehrfamilienhausbebauung oder auch zum Beispiel eine großzügige freistehende Villenbebauung mit großem Garten, bzw. nach §34 BauGB.
Die Bebauung ist demnach in Abstimmung mit der Bauaufsicht/Stadtplanung nach Art und Maß in die Umgebungsbebauung einzufügen.
Seinerseits konnte sich die Bauaufsicht und Stadtplanung Bad Vilbel eine Mehrfamilienhausbebauung mit vier Geschossen und einer Grundfläche von ca. 215 m² als genehmigungsfähig vorstellen (ohne Garantie).
freies Baugrundstück mit Weitblick in Bad Vilbel
Am Webergarten 2,
61118 Bad Vilbel
Auf Karte anzeigen
Finanzierungszertifikat
In nur zwei Minuten zu Ihrem persönlichen Finanzierungszertifkat.
Infos
| Vermarktungsart | Kaufen |
|---|---|
| Grundstücksfläche | 724 m2 |
| Erschließung | Erschlossen |
| Bebaubar nach | wie Nachbarbebauung |
| Verfügbar ab | 01.10.2025 |
Kosten
| Miete pro Jahr |
950.000 € |
|---|---|
| Provision | Nein |
Finanzierungsrechner:
Kaufpreis:
600.000 €
Eigenkapital:
600.000 €
Monatliche Rate
0 €
Effektiver Jahreszins
0 %
Sollzinsbindung
10 Jahre
Beschreibung des Objekts
Lage
Das Grundstück liegt im oberen Teil des beliebten Bad Vilbeler Hangs ("Niederberg") mit freiem Blick in Richtung Taunus.
Das Grundstück ist eine Rarität, in Bad Vilbel gibt es kaum Grundstücke in gewachsener Gegend.
Weitere Dokumente
KatasterauszugGrundriss
VIW Skizze Übersichtsplan
>
>