Highlights:
• Aktueller Bauschein: vom 22.09.2023
• Genehmigung für Neubau: Zweifamilienhaus mit Pkw-Garage
• Lage: Ruhig und attraktiv in Schwalbach/Elm
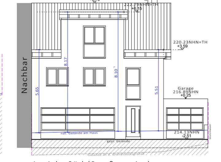
Dieses Baugrundstück bietet eine einzigartige Gelegenheit, Ihren Traum vom Eigenheim oder einem attraktiven Anlageobjekt zu verwirklichen. Auf einer Grundstücksfläche von 279 m² befindet sich die Möglichkeit, ein modernes Zweifamilienhaus mit einer geplanten Wohnfläche/Nutzfläche von ca. 203,75 m² zu errichten.
Der aktuelle Bauschein vom 22.09.2023 erlaubt die Errichtung von zwei Wohneinheiten mit folgenden Flächen:
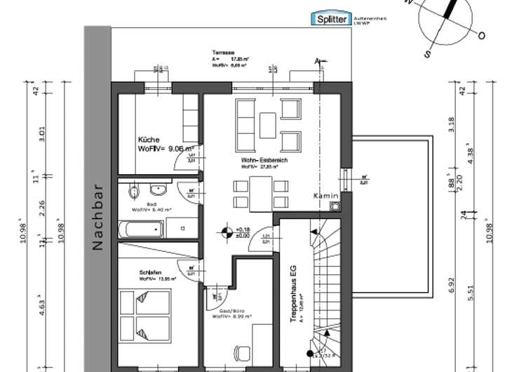
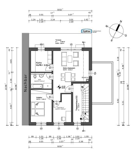
• Erdgeschoss: Wohnung 1 mit ca. 74,97 m²
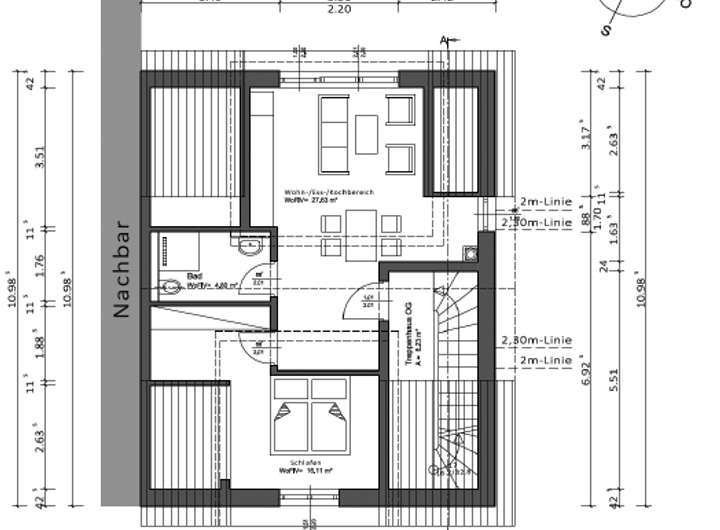
• 1. Obergeschoss: Wohnung 2 mit ca. 48,54 m²
Zusätzlich ist der Bau einer Pkw-Garage genehmigt, die Ihren Wohnkomfort ergänzt. Dieses Angebot richtet sich an Bauherren, Investoren oder Familien, die in einem durchdachten Zweifamilienhaus mit moderner Aufteilung leben möchten.
Die ruhige Lage in Schwalbach/Elm macht das Grundstück besonders reizvoll. Hier genießen Sie ein naturnahes Umfeld, das dennoch eine gute Anbindung an wichtige Infrastrukturen bietet. Das Grundstück ist ideal für Familien, die Wert auf Lebensqualität legen, oder für Investoren, die nach einem Projekt mit Potenzial suchen.
Greifen Sie jetzt zu und verwirklichen Sie Ihre Pläne!
Baugrundstück mit Baugenehmigung – Zweifamilienhaus in Aussicht!
66773 Schwalbach
Die vollständige Adresse der Immobilie erhalten Sie vom Anbieter.
Auf Karte anzeigen
Die vollständige Adresse der Immobilie erhalten Sie vom Anbieter.
Finanzierungszertifikat
In nur zwei Minuten zu Ihrem persönlichen Finanzierungszertifkat.
Infos
| Vermarktungsart | Kaufen |
|---|---|
| Grundstücksfläche | 279 m2 |
| Erschließung | Erschlossen |
Kosten
| Miete pro Jahr |
42.000 € |
|---|---|
| Provision |
2.750€ zzgl. der gesetzlich gültigen MwSt. Die Höhe unserer Courtage richtet sich nach den ab 23.12.2020 in Kraft getretenen gesetzlichen Regelungen zur Teilung der Maklercourtage. Hiernach wird die Courtage für beide Parteien (Eigentümer und Käufer) in Höhe von 2.750€ zuzüglich Umsatzsteuer in jeweils gleicher Höhe, bei notariellem Vertragsabschluss verdient und fällig. Die Höhe der Bruttocourtage unterliegt einer Anpassung bei Steuersatzänderung. |
Finanzierungsrechner:
Kaufpreis:
600.000 €
Eigenkapital:
600.000 €
Monatliche Rate
0 €
Effektiver Jahreszins
0 %
Sollzinsbindung
10 Jahre
Beschreibung des Objekts
Lage
Wirtschaft:
Schwalbach/Elm liegt strategisch günstig im Saarland und bietet eine hervorragende Anbindung an die nahegelegenen Wirtschaftszentren Saarlouis und Saarbrücken. Diese Städte beherbergen eine Vielzahl von Unternehmen aus unterschiedlichen Branchen, darunter Industrie, Handel und Dienstleistungen. Pendler profitieren von kurzen Wegen, während lokale Geschäfte und Handwerksbetriebe zur wirtschaftlichen Stabilität der Region beitragen.
Bildung:
Die Gemeinde Schwalbach ist familienfreundlich und verfügt über eine gut ausgebaute Bildungslandschaft. Vor Ort finden sich Kindergärten und Grundschulen, während weiterführende Schulen in den umliegenden Städten leicht erreichbar sind. Bildungszentren wie die Universität des Saarlandes in Saarbrücken bieten zusätzliche Möglichkeiten für akademische und berufliche Weiterentwicklung.
Medizinische Versorgung:
In Schwalbach und der näheren Umgebung gibt es ein breites Angebot an Haus- und Fachärzten sowie Apotheken. Krankenhäuser und Kliniken in Saarlouis und Völklingen gewährleisten eine umfassende medizinische Betreuung, auch in Notfällen. Senioren und Familien finden in der Region ein verlässliches Netzwerk an Gesundheits- und Pflegediensten.
Freizeit und Erholung:
Die Umgebung von Schwalbach/Elm lädt mit ihren Wäldern, Wander- und Radwegen zu Aktivitäten in der Natur ein. Der nahegelegene "Saar-Polygon" und der Saargarten sind beliebte Ausflugsziele. Sportbegeisterte kommen in den örtlichen Vereinen oder Sportanlagen auf ihre Kosten, während kulturelle Veranstaltungen und Feste das Gemeinschaftsleben bereichern.
Erholung:
Die ruhige und naturnahe Lage von Elm bietet eine ideale Rückzugsmöglichkeit für alle, die dem Alltag entfliehen möchten. Ob Spaziergänge entlang der Saar, entspannte Stunden im Grünen oder der Besuch eines der vielen regionalen Weingüter – hier finden Sie Raum für Erholung und Lebensqualität.
Mit diesen vielfältigen Vorzügen ist Schwalbach/Elm nicht nur ein attraktiver Wohnort, sondern auch ein Ort, der in jeder Lebensphase ein hohes Maß an Lebensqualität bietet.
Grundriss
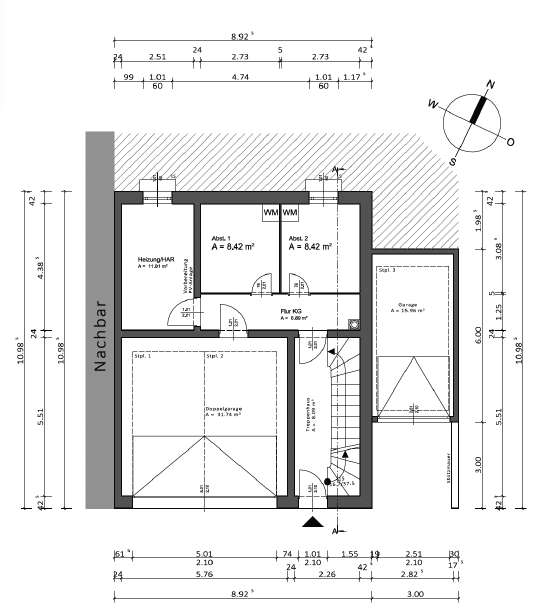
Kellergeschoss
>
>
Erdgeschoss
>
>
Dachgeschoss
>
>