Dieses besondere Zweifamilienhaus verbindet historischen Charme mit wohnlicher Großzügigkeit. Der Ursprung liegt in einem Einfamilienhaus aus dem Jahr 1928, das später durch einen Bungalow aus den 1960er Jahren erweitert wurde. Beide Gebäudeteile sind geschickt miteinander verbunden und bieten heute eine Gesamtwohnfläche von rund 451 Quadratmetern, einschließlich 90 Quadratmetern Wohn-Nutzfläche, sowie zusätzliche 193 Quadratmeter reine Nutzfläche.
Das Herzstück des Hauses bildet die eindrucksvolle Wohnküche mit einer Fläche von etwa 60 Quadratmetern. Großzügige Panoramafenster lassen viel Licht herein und schaffen eine offene, freundliche Atmosphäre. Von hier aus öffnet sich der direkte Zugang zur sonnigen Südterrasse, die nahtlos in den Garten übergeht und ideale Voraussetzungen für entspannte Stunden im Freien bietet.
Charakteristisch und zugleich reizvoll ist der Dachgarten auf dem Obergeschoss. Er ist sowohl über eine Wendeltreppe vom Garten aus erreichbar als auch direkt vom Obergeschoss zugänglich und erweitert die Möglichkeiten für Erholung und individuelle Nutzung.
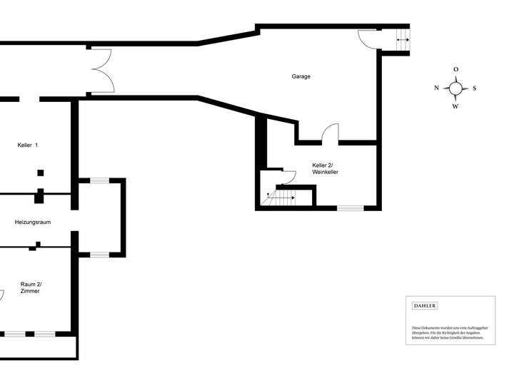
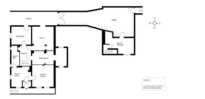
Insgesamt stehen sieben Zimmer zur Verfügung, die vielfältige Wohn- und Arbeitskonzepte ermöglichen. Ergänzend zu den zwei offiziell genehmigten Wohneinheiten verfügt das Haus über weitere, wohnlich ausgebaute Nutzflächen. So befindet sich im Souterrain ein eigenständig zugänglicher Bereich mit Schlafraum, Küche und Bad, der flexibel als Gäste-, Arbeits- oder Hobbybereich genutzt werden kann. Auch der Dachboden umfasst wohnlich ausgebaute Nutzfläche mit einem Südbalkon, die zusätzliche Gestaltungsoptionen eröffnet.
Diese besondere Struktur schafft faktisch drei separat nutzbare Bereiche und macht das Anwesen damit besonders interessant für Mehrgenerationenwohnen, die Verbindung von Wohnen und Arbeiten oder eine teilweise Vermietung.
Das Grundstück überzeugt mit seiner sonnigen Ausrichtung, viel Grün und einem hohen Maß an Privatsphäre. Ergänzt wird das Raumangebot durch eine Tiefgarage sowie vielfältige Nutz- und Nebenräume im Untergeschoss, die ausreichend Platz für Hauswirtschaft, Vorräte und Technik bieten.
Die Kombination aus klassischer Architektur, moderner Erweiterung und außergewöhnlichen Außenbereichen verleiht diesem Anwesen eine besondere Ausstrahlung.
Großzügiges Zweifamilienhaus mit Südterrasse und Dachgarten in Bestlage nahe Mexikoplatz
14163 Berlin
Die vollständige Adresse der Immobilie erhalten Sie vom Anbieter.
Auf Karte anzeigen
Die vollständige Adresse der Immobilie erhalten Sie vom Anbieter.
Finanzierungszertifikat
In nur zwei Minuten zu Ihrem persönlichen Finanzierungszertifkat.
Infos
| Haustyp | Mehrfamilienhaus |
|---|---|
| Wohnfläche ca. | 450 m2 |
| Nutzfläche | 192,67 m2 |
| Grundstücksfläche | 1.215 m2 |
| Zimmer | 7 |
| Schlafzimmer | 5 |
| Badezimmer | 4 |
| Garage/Stellplatz | Tiefgarage |
| Anzahl Garage/Stellplatz | 1 |
Kosten
| Kaufpreis |
2.980.000 € |
|---|---|
| Provision |
3,57 % inkl. gesetzlicher MwSt. bezogen auf den Kaufpreis |
Finanzierungsrechner:
Kaufpreis:
600.000 €
Eigenkapital:
600.000 €
Monatliche Rate
0 €
Effektiver Jahreszins
0 %
Sollzinsbindung
10 Jahre
Bausubstanz & Energieausweis
| Baujahr | 1928 |
|---|---|
| Objektzustand | Gepflegt |
| Qualität der Austattung | Normal |
| Heizungsart | Zentralheizung |
| Wesentliche Energieträger | Gas |
| Energieausweis | liegt vor |
| Energieausweistyp | Verbrauchsausweis |
| Energieverbrauchskennwert | 190,5 kWh/(m²*a) |
| Energieeffizienzklasse | F |
190,5
kWh/(m²*a)
Energieeffizienzklasse F
- A+
- A
- B
- C
- D
- E
- F
- G
- H
- 0
- 25
- 50
- 75
- 100
- 125
- 150
- 175
- 200
- 225
- >250
Beschreibung des Objekts
Ausstattung
• Zweifamilienhaus mit großem Entwicklungspotenzial
• 7 Zimmer, davon 5 Schlafzimmer im Haupthaus
• Souterrain: ca. 47 m² wohnlich ausgebaute Nutzfläche mit Schlafraum, Wohnküche und Bad
• Erdgeschoss: Übergang vom Haupthaus zum Bungalow mit großzügiger Wohnküche, drei Schlafzimmern, Ankleide, Loungebereich, Masterbad und Gäste-WC
• Direkter Gartenzugang über Loungebereich und Wohnküche
• 1.OG: 2 Schlafzimmer, Küche, Badezimmer und Wohnzimmer mit Kamin, Balkon und Dachgartenzugang
• Dachboden: ca. 71 m² wohnlich ausgebaute Nutzfläche mit Südbalkon
• Südterrasse mit Gartenanteil
• Bodenbelege mit Echtholzparkett, Fliesen und Naturstein
• Holzfenster mit Isolierverglasung
• Außenjalousien sowie Sonnenmarkise
• Klassische Doppelflügeltüren
• Repräsentative Deckenhöhe von ca. 2,90 m
Lage
Zehlendorf steht wie kaum ein anderer Berliner Bezirk für exklusives Wohnen in einem repräsentativen Umfeld. Großzügig angelegte Grünflächen, weitläufige Wälder und malerische Seen wie die Krumme Lanke oder der Schlachtensee verleihen der Umgebung einen außergewöhnlichen Erholungswert. Geprägt wird das Stadtbild von eleganten Einfamilienhäusern, herrschaftlichen Villen sowie hochwertigen Wohnanlagen, die den besonderen Charakter des Bezirks unterstreichen.
Neben der naturnahen Lage überzeugt Zehlendorf durch ein vielseitiges kulturelles Angebot. Museen, Theater, traditionsreiche Kinos und eine Vielzahl historischer Denkmäler bereichern den Alltag. Erstklassige Restaurants, angesehene Schulen sowie die Freie Universität Berlin und renommierte Forschungseinrichtungen wie das Max-Planck-Institut verleihen dem Standort internationale Strahlkraft. Besonders die Ortsteile Dahlem, Wannsee und Nikolassee sind weltweit bekannt als Standorte für Wissenschaft, Diplomatie und Kultur.
Trotz seiner ruhigen und grünen Wohnlagen ist die Anbindung an die Berliner Innenstadt hervorragend. Mehrere S- und U-Bahnhöfe sowie ein dichtes Busnetz sorgen für kurze Wege innerhalb der Stadt. Mit dem Auto erreicht man über die Anschlussstelle Hüttenweg in wenigen Minuten die AVUS (A 115) und somit die City-West sowie weitere zentrale Lagen Berlins.
Grundriss
Keller / Souterrain
>
>
Erdgeschoss
>
>
1.Obergeschoss
>
>
Dachboden
>
>
Adresse
14163 Berlin
Interessante Orte
Preis- und Lageinformationen
Preistrend für Bestandsimmobilien in Zehlendorf (Zehlendorf)