Zum Verkauf stehen zwei charmante Einfamilienhäuser, die massiv im Jahr 1978 und 1996 erbaut wurden und sich auf einem großzügigen Grundstück von ca. 1.337 m² befinden.
Das erste Haus bietet eine Wohnfläche von ca. 162 m² und das zweite Haus ca. 105 m², ideal für eine große Familie oder als Mehrgenerationenlösung.
Beide Häuser verfügen über insgesamt 11 Zimmer und sind mit zeitlosen Einbauküchen ausgestattet. Die kleinere Immobilie wurde zuletzt 2023 renoviert und ermöglicht somit einen Einzug ohne weiteren Sanierungsbedarf.
Im gesamten Wohn-und Nutzbereich herrscht ein angenehmes Raumklima, das durch zwei effiziente Zentralheizung (Gas) sichergestellt wird. Jede Wohneinheit erstreckt sich über zwei Stockwerke und bietet Badezimmer, die Funktionalität und Komfort verbinden.
Zusätzlichen Stauraum bieten die großzügigen Kellerräume im Haupthaus mit einer Nutzfläche von ca. 67 m². Der gepflegte Garten lädt zum Entspannen und zu geselligen Stunden mit Familie und Freunden ein.
Diese Immobilie vereint den Charme vergangener Jahre mit modernen Annehmlichkeiten und bietet vielfältige Nutzungsmöglichkeiten.
Zwei Häuser auf großem Grund
16775 Gransee
Die vollständige Adresse der Immobilie erhalten Sie vom Anbieter.
Auf Karte anzeigen
Die vollständige Adresse der Immobilie erhalten Sie vom Anbieter.
Finanzierungszertifikat
In nur zwei Minuten zu Ihrem persönlichen Finanzierungszertifkat.
Infos
| Haustyp | Einfamilienhaus |
|---|---|
| Etagenzahl | 2 |
| Wohnfläche ca. | 267 m2 |
| Nutzfläche | 67 m2 |
| Grundstücksfläche | 1.337 m2 |
| Zimmer | 11 |
| Badezimmer | 3 |
Kosten
| Kaufpreis |
749.000 € |
|---|---|
| Provision |
Die Käuferprovision beträgt 3,57 % des Kaufpreises inkl. 19% MwSt. |
Finanzierungsrechner:
Kaufpreis:
600.000 €
Eigenkapital:
600.000 €
Monatliche Rate
0 €
Effektiver Jahreszins
0 %
Sollzinsbindung
10 Jahre
Bausubstanz & Energieausweis
| Baujahr | 1978 |
|---|---|
| Bauphase | Haus fertig gestellt |
| Objektzustand | Nach Vereinbarung |
| Heizungsart | Zentralheizung |
| Wesentliche Energieträger | Gas |
| Energieausweis | liegt vor |
| Energieausweistyp | Verbrauchsausweis |
| Energieverbrauchskennwert | 90,6 kWh/(m²*a) |
| Energieeffizienzklasse | C |
90,6
kWh/(m²*a)
Energieeffizienzklasse C
- A+
- A
- B
- C
- D
- E
- F
- G
- H
- 0
- 25
- 50
- 75
- 100
- 125
- 150
- 175
- 200
- 225
- >250
Beschreibung des Objekts
Ausstattung
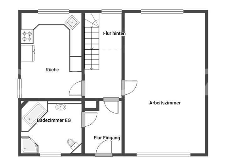
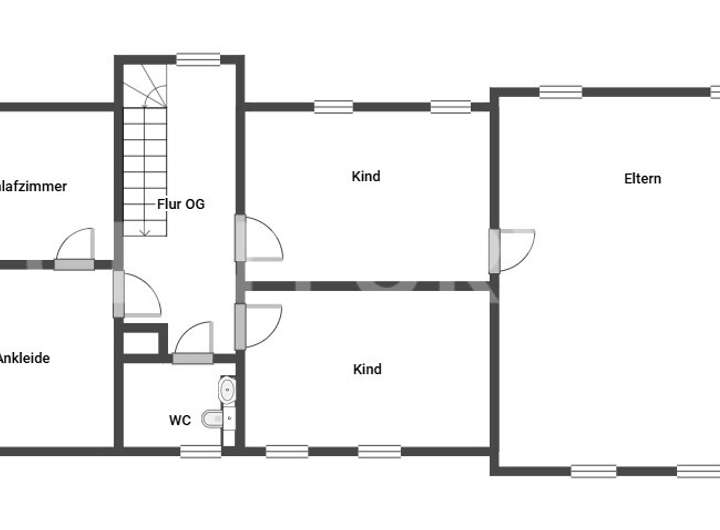
Haus 1
+ ca. 162 m² Wohnfläche
+ 7 Zimmer
+ gepflegte EBK
+ Dusch- Wannenbad EG
+ Gäste WC OG
+ Badezimmer inkl. Sauna im UG
+ Massivbau im Jahr 1978
+ vollunterkellert
+ ca. 67m² Nutzfläche
Haus 2
+ ca. 105m²
+ 4 Zimmer
+ Massivbau im Jahr 1996
+ gepflegtes Dusch- Wannenbad
+ Wintergarten
+ EBK
+ Gasheizung
+ manuelle sowie elektrische Rollläden
Grundstücksgröße ca. 1337m²
Lage
Die Immobilie befindet sich in einer idyllischen Einfamilienhaussiedlung in Gransee, die durch ihre ruhige Lage besticht.
Der großzügige Garten lädt zur Entspannung ein und bietet genügend Platz für vielfältige Freizeitaktivitäten. Trotz der abgeschiedenen Atmosphäre verfügt der Standort über eine sehr gute Infrastruktur, die den Alltag erleichtert. Einkaufsmöglichkeiten, Schulen und medizinische Einrichtungen sind in unmittelbarer Nähe vorhanden.
Die Umgebung bietet zahlreiche Erholungsmöglichkeiten, sei es durch Spaziergänge in der Natur oder durch sportliche Aktivitäten. Öffentliche Verkehrsmittel sind leicht erreichbar, was eine gute Anbindung an umliegende Städte garantiert.
Die Nachbarschaft zeichnet sich durch eine freundliche und familienorientierte Gemeinschaft aus.
Gransee ist ein idealer Ort, um dem hektischen Stadtleben zu entkommen und gleichzeitig von den Annehmlichkeiten einer gut vernetzten Kleinstadt zu profitieren.
Sonstige Angaben
Das Exposé zu diesem Angebot und die darin gemachten Angaben in Wort, Bild und Werten stellen keine Beschaffenheitsvereinbarung dar.
Bitte haben Sie dafür Verständnis, dass wir aus Gründen der Dokumentationspflicht ausschließlich Anfragen mit kompletten Angaben (Namen, Adresse, Rufnummer) bearbeiten können.
Haftungsausschluss: alle Angaben beruhen auf Auskünften des Eigentümers, Irrtum und Zwischenverkauf oder Vermietung vorbehalten. Für die Richtigkeit der Angabe des Eigentümers übernimmt die Century21 Wohnmanufaktur/ PP Immobilien keinerlei Haftung.
Wir verfügen über eine 3D Rundgang, den wir Ihnen gern anbieten.
Weitere Dokumente
DokumentDokument
Adresse
16775 Gransee
Interessante Orte
Preis- und Lageinformationen
Preistrend für Bestandsimmobilien in Gransee
>
>
>