Willkommen in Waiblingen, wo dieses schnuckelige 3-Familienhaus auf Sie wartet. Auf einem großzügigen 435 m² großen Grundstück mit altem Baumbestand verbindet es den Charme vergangener Zeiten mit großem Potenzial für modernes Wohnen, muss aber renoviert werden. Das Grundstück selbst besteht aus zwei Flurstücken. Das im Jahr 1936 in solider Bauweise errichtete Haus bietet rund 200 m² Wohnfläche auf drei eigenständigen Etagen. Das Haus wurde im Jahre 2001 im Dachgeschoss teilrenoviert sowie ein Erkeranbau mit kleiner Dachterrasse genehmigt und erbaut.
1. Obergeschoss: Helle 3-Zimmer-Wohnung (ca. 75 m²) mit direktem Blick ins Grüne
2. Obergeschoss: Ebenfalls eine großzügige 3-Zimmer-Wohnung (ca. 75 m²) mit Blick in den eigenen Garten.
3. Dachgeschoss: Charmante 3-Zimmer-Wohnung (ca. 50 m²) – ideal für Gäste, erwachsene Kinder oder zur Vermietung mit 2 kleinen Balkonen. Die Wohnungen sind alle mit Echtholzparkett ausgestattet bis auf die Bäder welche mit Steinboden und Fliesen versehen sind. Die Tageslichtbäder im EG und im 1. OG, befinden sich direkt vor dem Erker Anbau und erhalten dadurch Licht. Sie sind jeweils mit einer Badewanne mit Duschfunktion und Waschtisch ausgestattet. Das Herzstück ist der große Garten – ein grünes Paradies für Kinder, Gartenfreunde und entspannte Sommerabende. Eine gemütliche Laube, eine Garage und ein Stellplatz machen das Angebot komplett. Die Lage könnte kaum besser sein: Ruhige Wohnstraße, freundliche Nachbarschaft und dennoch nur wenige Gehminuten zu Einkaufs-Möglichkeiten, Schulen, Kindergärten und öffentlichen Verkehrsmitteln. Ob Mehrgenerationenwohnen, Eigennutzung mit Mieteinnahmen oder reine Kapitalanlage – dieses Haus passt sich Ihren Lebensplänen an.
Fazit: Ein Ort, an dem sich Familienleben und Wohnglück perfekt entfalten können. Hier investieren Sie nicht nur in Stein und Erde, sondern in Lebensqualität.
Ihr neues Zuhause mit Herz und Geschichte. 3-Familienhaus mit Garten und Garage in Waiblingen.
71332 Waiblingen
Die vollständige Adresse der Immobilie erhalten Sie vom Anbieter.
Auf Karte anzeigen
Die vollständige Adresse der Immobilie erhalten Sie vom Anbieter.
Finanzierungszertifikat
In nur zwei Minuten zu Ihrem persönlichen Finanzierungszertifkat.
Infos
| Haustyp | Mehrfamilienhaus |
|---|---|
| Etagenzahl | 3 |
| Wohnfläche ca. | 200 m2 |
| Nutzfläche | 65 m2 |
| Grundstücksfläche | 435 m2 |
| Bezugsfrei ab | ab sofort |
| Zimmer | 9 |
| Schlafzimmer | 6 |
| Badezimmer | 3 |
| Garage/Stellplatz | Garage |
| Anzahl Garage/Stellplatz | 1 |
Kosten
| Kaufpreis |
615.000 € |
|---|---|
| Provision |
4,76 % vom Kaufpreis inkl. der ges. MwSt. |
Finanzierungsrechner:
Kaufpreis:
600.000 €
Eigenkapital:
600.000 €
Monatliche Rate
0 €
Effektiver Jahreszins
0 %
Sollzinsbindung
10 Jahre
Bausubstanz & Energieausweis
| Baujahr | 1936 |
|---|---|
| Letzte Sanierung | 2001 |
| Bauphase | Haus fertig gestellt |
| Objektzustand | Renovierungsbedürftig |
| Qualität der Austattung | Einfach |
| Heizungsart | Zentralheizung |
| Wesentliche Energieträger | Gas |
| Energieausweis | liegt vor |
Beschreibung des Objekts
Ausstattung
- 1 Garage im Haus
- 1 Autostellplatz am Haus
- 1 Geschirrhütte im Garten
- 3 Wohnungen, 9 Zimmer
- 3 Tageslichtbäder, im DG mit Dusche und Toilette
- 2 separate Toiletten im 1.OG und 2.OG
- 2 Balkone im Dachgeschoss
- 3 Kellerräume
- 1 Tiefkeller
- 1 Heizraum
- Heizung Gaszentralheizung 1990 Rohleder
- Warmwasserversorgung über Wohnungsgasthermen (Bosch/Junkers)
Lage
Das Haus befindet sich in einer guten Lage von Waiblingen umgeben von Ein und- Mehrfamilienhäusern. Die Einkaufsmöglichkeiten sind fußläufig in wenigen Gehminuten zu erreichen. Der Garten hinter dem Haus mit altem Baumbestand bietet viel Freiraum für Kinder und alle Gartenfreunde. Die S Bahnhaltestelle (Bahnhof in Waiblingen mit S2 und S3) ist fußläufig in ca. 7 Gehminuten und die Bushaltstelle in ca. 3 Gehminuten erreichbar.
Sonstige Angaben
Bitte haben Sie Verständnis, dass wir nur schriftliche Anfragen mit Ihrer Adresse und einer gültigen Telefonnummer beantworten können. Gerne vereinbaren wir mit Ihnen telefonisch einen Besichtigungstermin und freuen und uns aus Sie. Danke Ihr STOLPP Immobilien Team.
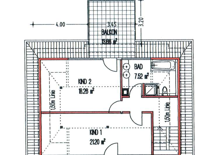
Grundriss
Grundriss DG
>
>
Adresse
71332 Waiblingen
Interessante Orte
Preis- und Lageinformationen
Preistrend für Bestandsimmobilien in Waiblingen