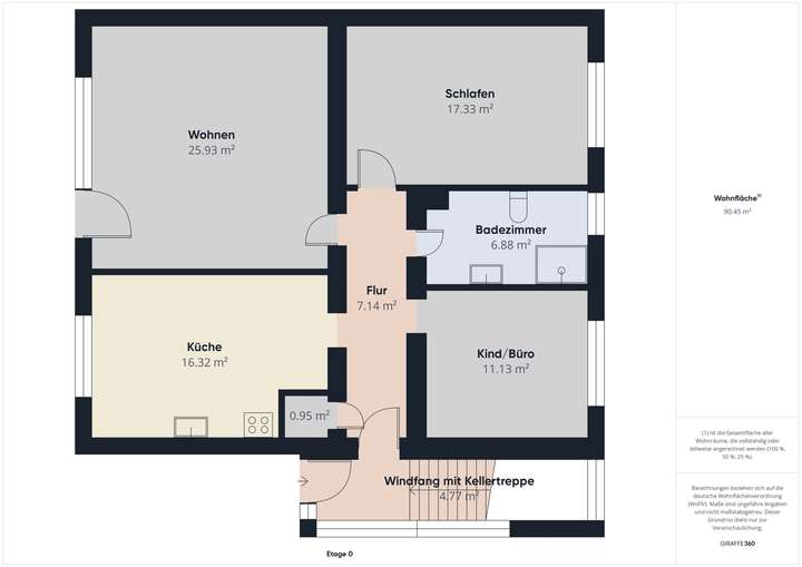
Diese charmante Doppelhaushälfte bietet auf einer Wohnfläche von 90 m² ein gemütliches Zuhause mit viel Potenzial. Das 1990 erbaute Haus steht auf einem großzügigen Grundstück von 593 m² und besticht durch seine ruhige Lage.
Beim Betreten des Hauses gelangen Sie in einen einladenden Flur, der Zugang zu allen wichtigen Räumen bietet. Die Küche ist funktional gestaltet und bietet ausreichend Platz für gemeinsame Kochabende. Das angrenzende Wohnzimmer ist hell und geräumig, mit direktem Zugang zum Garten, der viel Platz für Freizeitaktivitäten im Freien bietet.
Das Haus verfügt über drei Zimmer, die flexibel als Schlafzimmer, Kinderzimmer oder Büro genutzt werden können. Das Badezimmer ist mit einer Dusche ausgestattet und bietet alles, was man für den täglichen Bedarf benötigt. Ein Abstellraum fehlt natürlich auch nicht.
Auch nicht immer vorhanden bei Immobilien dieses Typs ist der großzügige Keller, der zusätzlichen Stauraum bietet und vielfältige Nutzungsmöglichkeiten eröffnet.
Ebenso dazu gehören 3 Garagen mit Stellflächen davor, die Einblicke in den Garten verwehren, und zwei Geräteräume für Fahrräder oder Gartengeräte.
Der Kaufpreis von 194.000 € bietet eine attraktive Gelegenheit für Käufer, die ein solides Zuhause mit Gestaltungsspielraum suchen.
Diese Doppelhaushälfte ist ideal für die kleine Familie, Paare oder Senioren, die sich ein gemütliches Heim in einer ruhigen Umgebung wünschen. Bis auf die Kellertreppe ist das Haus barrierefrei. Die eine Eingangsstufe ist schnell korrigiert.
____
GEG: Energiebedarfsausweis, 180,79 kWh/(am²), Gas, Baujahr 1990, Energieeffizienzklasse F, gültig bis 21.09.2035
Bungalow in guter Lage - klein, fein, (fast) barrierefrei
31582 Nienburg (Weser)
Die vollständige Adresse der Immobilie erhalten Sie vom Anbieter.
Auf Karte anzeigen
Die vollständige Adresse der Immobilie erhalten Sie vom Anbieter.
Finanzierungszertifikat
In nur zwei Minuten zu Ihrem persönlichen Finanzierungszertifkat.
Infos
| Haustyp | Doppelhaushaelfte |
|---|---|
| Wohnfläche ca. | 90 m2 |
| Grundstücksfläche | 593 m2 |
| Zimmer | 3 |
| Schlafzimmer | 2 |
| Badezimmer | 1 |
Kosten
| Kaufpreis |
194.000 € |
|---|---|
| Provision |
3,57 % inkl. MwSt. |
Finanzierungsrechner:
Kaufpreis:
600.000 €
Eigenkapital:
600.000 €
Monatliche Rate
0 €
Effektiver Jahreszins
0 %
Sollzinsbindung
10 Jahre
Bausubstanz & Energieausweis
| Baujahr | 1990 |
|---|---|
| Heizungsart | Zentralheizung |
| Wesentliche Energieträger | Gas |
| Energieausweis | liegt vor |
| Energieausweistyp | Bedarfsausweis |
| Energieverbrauchskennwert | 180,8 kWh/(m²*a) |
| Energieeffizienzklasse | F |
180,8
kWh/(m²*a)
Energieeffizienzklasse F
- A+
- A
- B
- C
- D
- E
- F
- G
- H
- 0
- 25
- 50
- 75
- 100
- 125
- 150
- 175
- 200
- 225
- >250
Beschreibung des Objekts
Ausstattung
- Doppelhaushälfte mit 90m² Wohnfläche
- Grundstücksfläche: 593m²
- Baujahr: 1990
- 3 Zimmer
- Keller vorhanden
- Fliesenböden in Flur, Küche und Bad
- Teppichboden im Schlafzimmer
- Einbauküche mit Elektrogeräten
- Badezimmer mit Dusche
- Große Fenster für viel Tageslicht
- Zentralheizung
- überdachte Terrasse
- (fast vollständig) barrierefrei
- Garten mit Rasenfläche
- 3 Garagen
- Stellplätze davor
- 2 Geräteräume für den Garten oder Fahrräder
- Kaufpreis: 194.000 €
Heizung:
- Remaha Tzerre M 15DS
- Gasbrennwertkessel
- Erdgas (H)
Internet:
- Telekom 250 MBit/s max. Download 40 MBit/s max. Upload
- Vodafon 1000 MBit/s max. Download 50 MBit/s max. Upload
Lage
Diese Immobilie bietet eine hervorragende Lage mit einer Vielzahl von Annehmlichkeiten in unmittelbarer Nähe. In der Umgebung finden Sie eine Vielzahl an Einkaufsmöglichkeiten, darunter ein Supermarkt in nur wenigen Gehminuten Entfernung. Für den täglichen Bedarf sind mehrere Apotheken und Drogerien in der Nähe vorhanden.
Für die medizinische Versorgung ist ebenfalls gesorgt: Die Helios Kliniken Mittelweser sind in ca. 10 Minuten erreichbar, und mehrere Arztpraxen befinden sich in der Nähe.
Familien profitieren von der Nähe zu Bildungseinrichtungen. Eine Grundschule ist in ca. 10 Minuten zu Fuß erreichbar, und mehrere Kindergärten befinden sich ebenfalls in der Umgebung. Für Freizeitaktivitäten bietet der nahegelegene Park Erholung im Grünen. Auch für sportliche Aktivitäten ist gesorgt: Die Sportanlagen des TKW Nienburg sind in wenigen Minuten erreichbar, und mehrere Sportplätze bieten Raum für diverse Freizeitaktivitäten.
Diese Immobilie besitzt gute Anbindung an den öffentlichen Nahverkehr mit einer Bushaltestelle in unmittelbarer Nähe. Für Pendler ist der Bahnhof Nienburg/Weser in ca. 15 Minuten erreichbar. Die Autobahn ist ebenfalls gut zu erreichen, was die Lage ideal für Berufspendler macht. Der nächste Flughafen ist Hannover-Langenhagen und liegt ca. 50 Autominuten entfernt.
Sonstige Angaben
Die Objektdaten beruhen auf Angaben des Auftraggebers/Verkäufers, für die wir keine Gewähr übernehmen. Sie wurde sorgfältig und so vollständig wie möglich gemacht. Dennoch kann das Vorhandensein von Fehlern nicht ausgeschlossen werden. Trotz der sorgfältigen Zusammenstellung aller Unterlagen/Angaben/Daten übernehmen wir für die Richtigkeit keine Haftung. Irrtum vorbehalten. Irrtum und Zwischenverkauf / Zwischenvermietung bleibt vorbehalten.
Es kann bei großer Nachfrage behalten wir uns vor, unser digitales Angebotsverfahren DAVEit durchzuführen. Der tatsächliche Kaufpreis wird dann möglicherweise den Angebotspreis übersteigen.
Die Urheberrechte an Wort (Ausnahme technische Angaben) und Bild des Exposés liegen in jeder Präsentations- und Darstellungsform bei Ralf Hermerding, Hermerding Immobilien. Reproduktion und Kopie - auch in Auszügen - sind untersagt.
Rechtlicher Hinweis: Jeder RE/MAX Franchise- und Lizenznehmer ist ein rechtlich eigenständiges Unternehmen.
Weitere Informationen erhalten Sie auf Anfrage. Rufen Sie einfach an!
Sie haben Interesse an der Immobilie und möchten nach dem 3D-Rundgang alles einmal richtig anschauen? Vereinbaren Sie einen Termin - am schnellsten geht's per Telefon: 05052 88 87 907
____________________
Möchten Sie sofort oder in naher Zukunft verkaufen oder vermieten? Ich erstelle für Sie eine Verkaufswertermittlung gemäß Immobilien-Wertermittlungsverordnung (ImmoWertV, Verordnung auf Grundlage des § 199 Absatz 1 des Baugesetzbuchs). Mein Verkaufskonzept haben Sie bereits teilweise kennengelernt. Ob es noch mehr gibt? Lassen Sie sich überraschen und individuell beraten.
GEG: Energiebedarfsausweis, 180,79 kWh/(am²), Gas, Baujahr 1990, Energieeffizienzklasse F, gültig bis 21.09.2035
Grundriss
Erdgeschoss (Fläche)
>
>
Keller (Fläche)
>
>
Adresse
31582 Nienburg (Weser)
Interessante Orte
Preis- und Lageinformationen
Preistrend für Bestandsimmobilien in Nienburg (Weser)