Willkommen in Ihrem neuen Zuhause in Monheim am Rhein! Diese charmante Etagenwohnung aus dem Baujahr 1982 besticht durch ihre gepflegte Erscheinung und bietet ideale Voraussetzungen für ein komfortables Wohnen. Die Wohnung befindet sich in einem gepflegten Mehrfamilienhaus mit insgesamt fünf Etagen und ist sowohl für Familien als auch für Paare oder Singles bestens geeignet.
Mit einer großzügigen Wohnfläche von ca. 81 m² verfügt die Wohnung über drei gut geschnittene Zimmer, darunter zwei gemütliche Schlafzimmer, die Ihnen Raum für individuelle Gestaltungsmöglichkeiten bieten. Das lichtdurchflutete Wohnzimmer ist der perfekte Ort zum Entspannen und bietet Zugang zu einem eigenen Balkon, auf dem Sie sonnige Stunden im Freien genießen können.
Die Wohnung umfasst zudem ein modernes Badezimmer, das mit allen notwendigen Annehmlichkeiten ausgestattet ist. Die Ausstattung der Wohnung kann als normal bezeichnet werden, bietet jedoch alle Grundvoraussetzungen für ein behagliches Zuhause. Zusätzlichen Stauraum finden Sie im zugehörigen Kellerraum, wodurch sich die Gesamtfläche um ca. 5 m² Nutzfläche ergänzt.
Das monatliche Hausgeld beträgt 403,00 €, was eine gute Investition in den Erhalt und die Pflege der Immobilie darstellt. Die Verfügbarkeit der Wohnung richtet sich nach individueller Vereinbarung, das sie zurzeit gut vermietet ist, sodass Ihnen ausreichend Flexibilität geboten wird, um Ihren Umzug nach Ihren Wünschen zu gestalten.
Lassen Sie sich diese Gelegenheit nicht entgehen und vereinbaren Sie noch heute einen Besichtigungstermin, um sich selbst von den Vorzügen dieser attraktiven Immobilie zu überzeugen!
*** Attraktive Bast-Bau Wohnung*** sichern Sie Ihre Altersversorgung***
40789 Monheim am Rhein
Die vollständige Adresse der Immobilie erhalten Sie vom Anbieter.
Auf Karte anzeigen
Die vollständige Adresse der Immobilie erhalten Sie vom Anbieter.
Finanzierungszertifikat
In nur zwei Minuten zu Ihrem persönlichen Finanzierungszertifkat.
Infos
| Wohnungskategorie | Etagenwohnung |
|---|---|
| Etage | 2 von 5 |
| Wohnfläche ca. | 81 m2 |
| Nutzfläche | 5 m2 |
| Bezugsfrei ab | Nach Vereinbarung |
| Zimmer | 3 |
| Schlafzimmer | 2 |
| Badezimmer | 1 |
| Garage/Stellplatz | Tiefgarage |
| Anzahl Garage/Stellplatz | 1 |
Kosten
| Kaufpreis |
299.000 € |
|---|---|
| Hausgeld |
403 € |
| Preis für Garage/Stellplatz | 10.000 € |
| Provision |
Die Provision von 3,57% inkl. 19% MwSt ist fällig mit Unterzeichnung des Kaufvertrages. |
Finanzierungsrechner:
Kaufpreis:
600.000 €
Eigenkapital:
600.000 €
Monatliche Rate
0 €
Effektiver Jahreszins
0 %
Sollzinsbindung
10 Jahre
Bausubstanz & Energieausweis
| Baujahr | 1982 |
|---|---|
| Objektzustand | Gepflegt |
| Qualität der Austattung | Normal |
| Heizungsart | Zentralheizung |
| Wesentliche Energieträger | Gas |
| Energieausweis | liegt vor |
| Energieausweistyp | Verbrauchsausweis |
| Energieverbrauchskennwert | 149,4 kWh/(m²*a) |
| Energieeffizienzklasse | E |
149,4
kWh/(m²*a)
Energieeffizienzklasse E
- A+
- A
- B
- C
- D
- E
- F
- G
- H
- 0
- 25
- 50
- 75
- 100
- 125
- 150
- 175
- 200
- 225
- >250
Beschreibung des Objekts
Ausstattung
Aufteilung
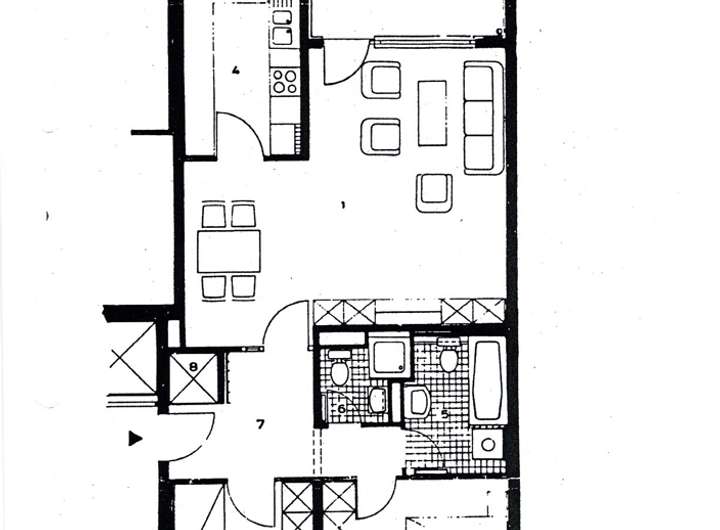
Großzügiges Wohn-/Esszimmer, Küche, Balkon, Diele mit Garderobe, Gäste-WC.
Schlafzimmer mit Balkon, Badezimmer mit Wanne und Dusche.
Die genaue Aufteilung entnehmen Sie bitte dem beigefügten Grundrissplan.
Nutzfläche
Im Kellergeschoss steht ein eigener Abstellraum, ein gemeinschaftlich genutzter Wasch- und Trockenkeller zur Verfügung.
Mietverhältnis: Zurzeit ist die ETW gut vermietet, dieses Objekt eignet sich auch hervorragend als Kapitalanlage.
Wohngeld
Das monatliche Wohngeld beträgt zurzeit ca. € 403,– einschließlich Instandhaltungsrücklage. In der Wohngeldzahlung sind u.a. die Kosten für die Heizung enthalten.
Besichtigung
Gerne zeigen wir Ihnen die Wohnung bei einer Besichtigung vor Ort. Zur Terminvereinbarung senden Sie uns eine vollständig ausgefüllte Anfrage. Vielen Dank!
Lage
Die Stadt Monheim ist ein gefragter Wohnstandort zwischen den Rheinmetropolen Köln und Düsseldorf und liegt direkt am Rhein. Dafür gibt es gute Gründe. Schauen Sie sich einmal dort um oder fragen Sie die Menschen, die seit vielen Jahren hier leben.
Das Stadtzentrum von Monheim bietet zahlreiche Einkaufsmöglichkeiten und eine vielfältige Gastronomie. Im Sommer schmeckt das „ Bier “ in einem der schönen Biergärten und mit Blick auf den Rhein gleich doppelt so gut. Monheim verfügt über eine hübsche, gemütliche Altstadt und zahlreiche historische Bauten wie z.B. den „Schelmenturm“ und die „Marienburg“.
Die Möglichkeiten zur Freizeitgestaltung sind riesig. Jogging oder Fahrradtouren in den Rheinauen lassen den Alltagsstress vergessen. Darüber hinaus gibt es viele Sportangebote- und Vereine wie z.B. Tennis, Reiten, Wasserski fahren, Fußball und vieles mehr. Die „Marke Monheim“ bietet ein breit gefächertes kulturelles Programm.
Die angebotene Wohnung befindet sich im Stadtteil Baumberg in einem Wohngebiet. Es steht in ruhiger Lage direkt im Zentrum. Einkaufsmöglichkeiten für den täglichen Bedarf wie z.B. ein Lebensmittelmarkt sind nur ca. 200 m entfernt. Weitere Angebote finden Sie im Zentrum von Alt-Baumberg (ca. 2 km) und von Monheim (4 km). Für die „kleinen“ Bewohner sind Grundschule und Kindertagesstätten nur wenige Fußminuten entfernt. Weiterführende Schulen sind im Zentrum von Monheim vorhanden.
Ein besonderes Plus ist sicherlich die perfekte Verkehrsanbindung. Die S-Bahnhöfe Berghausen und Hellerhof sind nur ca. 2, 5 km entfernt. Die S 6 fährt über Düsseldorf bis nach Essen oder in entgegen gesetzter Richtung über Leverkusen bis Köln. Die Autobahnanbindung ist ebenfalls hervorragend. Sie erreichen die A 46, A 59, A 3, die A 542 und auch die Bundesstraße 8 schnell und bequem. Ein idealer, ruhiger Wohnstandort in perfekter Infrastruktur.
Sonstige Angaben
SPAM-HINWEIS:
Bitte prüfen Sie nachdem Sie nicht innerhalb von 4 Stunden ein Expose bzw. eine Email von uns erhalten haben Ihren Email SPAM Ordner. Als Spezialist für den Verkauf von Einfamilienhäuser, Mehrfamilienhäusern, Eigentumswohnungen und Kapitalanlagen stehen wir Ihnen gerne beim Thema "rund um die Immobilie" mit Rat und Tat zur Seite und zwar nicht nur bezogen auf die von uns angebotenen Immobilien. Weitere Informationen finden Sie auf unserer Homepage www.Akurat-Immobilien.de
Sie möchten Ihre Immobilie vermieten oder verkaufen? Dann nutzen Sie unser KnowHow zu Ihrem Vorteil! Wir vermieten / verkaufen Ihr Objekt sicher, kompetent und zum marktgerechten Preis.
Besichtigungstermine jederzeit nach Vereinbarung möglich! Wir sind bemüht, alle Angaben vollständig und richtig zu übermitteln, da wir uns hierbei jedoch auf die Informationen des Vermieters/Verkäufer stützen müssen, übernehmen wir keine Gewähr für die Vollständig- oder Richtigkeit, Beschaffenheit und Aktualität dieser Angaben. Irrtum und Zwischenverkauf/-vermietung sind vorbehalten.
Die Nebenkosten richten sich nach der Personenzahl und dem individuellen Verbrauch und sind somit variabel.
Grundriss
Grundriss
>
>
Adresse
40789 Monheim am Rhein
Interessante Orte
Preis- und Lageinformationen
Preistrend für Bestandsimmobilien in Monheim am Rhein