Sie haben ein Grundstück? Dann haben wir einen zuverlässigen Baupartner für Sie!
Ein gemütliches Zuhause für Ihre Familie - ein hochwertiger Neubau, der modernes Wohnen mit solider Bauweise vereint. Dieses Einfamilienhaus entsteht in massiver Bauweise und bietet Ihnen und Ihrer Familie ein behagliches, energieeffizientes und stilvolles Zuhause.
Das durchdachte Raumkonzept, moderne Technik sowie langlebige Materialien schaffen eine Wohnatmosphäre, die sowohl funktional als auch gemütlich ist – genau richtig für Menschen, die Wert auf Qualität und langfristige Werthaltigkeit legen.
Wir planen individuell nach Ihren Vorstellungen – bei uns gibt es keine Häuser von der Stange. Jedes Haus wird flexibel geplant und lässt sich ganz nach Ihren persönlichen Vorstellungen gestalten.
Viele zufriedene Kunden und realisierte Bauprojekte zeugen von der Kompetenz und dem hohen Anspruch des Unternehmens an Qualität und Kundenzufriedenheit.
Hinweis: Dieses Angebot beinhaltet KEIN Grundstück!
Ihr Familiendomizil - energieeffizient, modern und massiv gebaut
48249 Dülmen
Die vollständige Adresse der Immobilie erhalten Sie vom Anbieter.
Auf Karte anzeigen
Die vollständige Adresse der Immobilie erhalten Sie vom Anbieter.
Finanzierungszertifikat
In nur zwei Minuten zu Ihrem persönlichen Finanzierungszertifkat.
Infos
| Haustyp | Einfamilienhaus |
|---|---|
| Wohnfläche ca. | 152 m2 |
| Grundstücksfläche | 1 m2 |
| Zimmer | 6 |
Kosten
| Kaufpreis |
406.680 € |
|---|---|
| Provision | Nein |
Finanzierungsrechner:
Kaufpreis:
600.000 €
Eigenkapital:
600.000 €
Monatliche Rate
0 €
Effektiver Jahreszins
0 %
Sollzinsbindung
10 Jahre
Bausubstanz & Energieausweis
| Baujahr | unbekannt |
|---|---|
| Energieausweis | laut Gesetz nicht erforderlich |
Beschreibung des Objekts
Ausstattung
Ausstattungsmerkmale auf einen Blick:
+ Energie-Effizienzstufe 40
+ Schlüsselfertig – optional mit Garage oder Carport
+ inklusive Architekten- und Ingenieurleistungen
+ Individuelle Gestaltungsoptionen bei Grundriss, Fassade und Innenausbau
+ Massive Bauweise, Stein auf Stein
+ Klinkerfassade: Verblenderpreis bis 850,-€/1000 Stück (NF)
+ Dacheindeckung mit engobierten Ton-Flachdachziegeln
+ Zukunftssicher mit Luft-Wasser-Wärmepumpe von Bosch und PV-Anlage (9,9 kWp)
+ inkl. Fußbodenheizung
+ Fenster mit 3-fach Wärmeschutzverglasung und 7-Kammer-System
+ elektrisch gesteuerte Rollladen im EG und OG
+ Sanitärausstattung mit Produkten namhafter Hersteller
+ Fliesen in Diele, HWR, Gäste-WC, Küche, Bad und Treppe
+ Eigenleistungen möglich (Endgewerke)
+ inkl. Blower-Door-Test
+ inkl. Baugrundgutachten
+ inkl. Baustrom und Bauwasser
+ inkl. Lageplan
+ inkl. Baufertigstellungsbürgschaft
+ Gewährleistung von 5 Jahren gem. BGB für Bauwerke
+ Festpreisgarantie
Lage
Wir bauen auf Ihrem Grundstück im Münsterland und im Emsland!
Gerne geben wir Ihnen Auskunft darüber, ob Ihr Grundstück im Einzugsbereich des Baupartners liegt. Sprechen Sie uns an!
Sonstige Angaben
Wir freuen uns auf Ihre Anfrage und Ihr Bauvorhaben mit dem Neubaupartner der LBS Gebietsleitung Coesfeld.
Für Fragen rund um Ihre Neubauplanung stehen wir gerne zur Verfügung.
VERBRAUCHERINFO
1. Maklerleistung ist der Nachweis der Gelegenheit zum Abschluss eines Vertrages bzw. Vermittlung eines Vertrages über eine Immobilie gegen die Courtagezahlungspflicht des Kunden
2. Unternehmer,Anschrift,Beschwerdeadressat
LBSi NordWest, Himmelreichallee 40, 48149 Münster, Tel:0251/973233-997, eMail:info@lbsi-nw.de
GF:Martin Englert, Volker Goldbeck
3. Es besteht ein Widerrufsrecht
4. Weitere Infos: verbraucherinfo.lbsi-nordwest.de
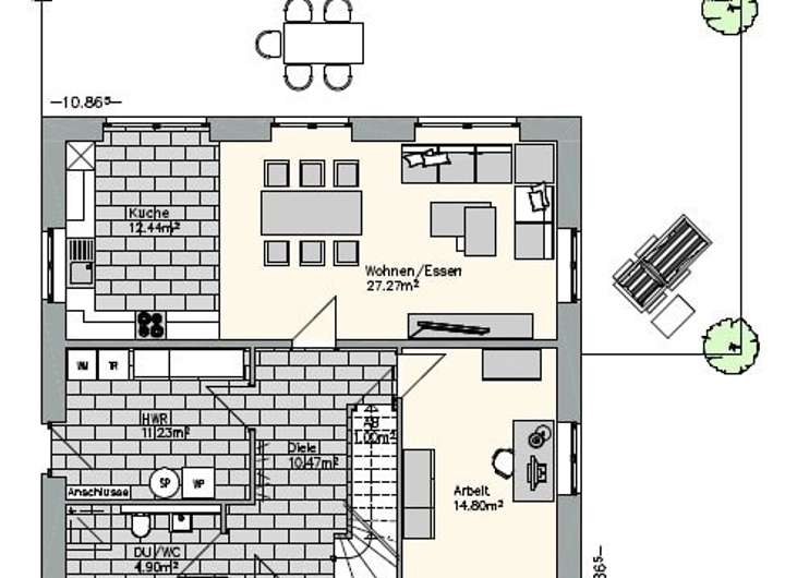
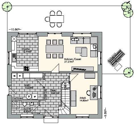
Grundriss
Grundriss EG
>
>
Grundriss OG
>
>
Adresse
48249 Dülmen
Interessante Orte
Preis- und Lageinformationen
Preistrend für Bestandsimmobilien in Dülmen