Die Firma BauHausEurope s.r.o. bietet ein exklusives Wohnbauprojekt in der attraktiven touristischen Lage Privlaka, nur wenige Minuten vom Meer entfernt, zum Verkauf an.
Standort: Privlaka, Gespanschaft Zadar, Kroatien
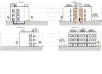
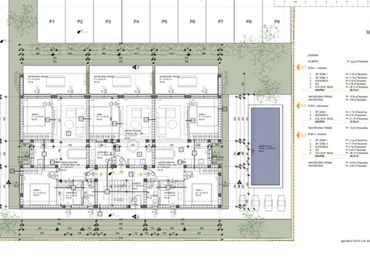
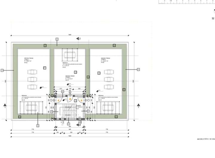
Projekt: 3 Wohngebäude (EG + 2) mit Pool
Gesamtfläche der Grundstücke: 2.296 m²
• Grundstück 6041/1 – 864 m²
• Grundstück 6041/2 – 716 m²
• Grundstück 6041/3 – 716 m²
Anzahl der Wohnungen: 27 (9 Wohnungen pro Gebäude)
Gesamt-BGF: 3.024 m² (1.008 m² pro Gebäude)
Preis: 2.300.000 € (Verhandlung möglich)
Gültige Baugenehmigungen – sofortiger Baubeginn möglich
Komplette Projektunterlagen (Architektur, Statik, Installationen, Energie)
Hervorragende Investition – ideal für Wohnungsverkäufe oder kurzfristige Vermietung
Möglichkeit, die Projekte einzeln oder als Gesamtpaket zu erwerben
Kommunikation in EN, DE, SK, CZ, PL und HR möglich.
Zusätzliche Information:
Es besteht die Möglichkeit, ein einzelnes Projekt mit 9 Apartments für 770.000 € zu erwerben.
BauHausEurope s.r.o.
Hauptkontakt: Ľubomír Kruk — +421 904 027 703
K&B REAL ESTATE d.o.o.
Zusätzlicher Kontakt: Darius Jan Begonja — +421 918 867 421
Exklusives Baugrundstück mit Projekt – Privlaka 2.296 m²
Puklina 6041/1,2,3,
23233 Privlaka
Auf Karte anzeigen
Finanzierungszertifikat
In nur zwei Minuten zu Ihrem persönlichen Finanzierungszertifkat.
Infos
| Vermarktungsart | Kaufen |
|---|---|
| Grundstücksfläche | 2.296 m2 |
| Grundflächenzahl (GRZ) | 3 |
| Verfügbar ab | 20.10.2025 |
Kosten
| Miete pro Jahr |
0 € |
|---|---|
| Provision | Nein |
Finanzierungsrechner:
Kaufpreis:
600.000 €
Eigenkapital:
600.000 €
Monatliche Rate
0 €
Effektiver Jahreszins
0 %
Sollzinsbindung
10 Jahre
Beschreibung des Objekts
Lage
Ruhige Lage in der Nähe des Meeres, gepflegte Nachbarschaft, Restaurants, Supermarkt, Schule, Freizeitmöglichkeiten und gute Anbindung an Zadar.
Weitere Dokumente
bhe_Ch1Grundriss
6
>
>
7
>
>
8
>
>
9
>
>
10
>
>
11
>
>
12
>
>