Willkommen in Ihrem zukünftigen Einfamilienhaus in Ebersbach an der Fils! Dieses charmante, projektiertene Zuhause wird individuell nach Ihren Wünschen und Vorstellungen gestaltet. Mit 4 Zimmern und einer großzügigen Wohnfläche von 123,32 m² auf einem 380 m² großen Grundstück bietet es Ihnen genug Platz für die ganze Familie. Das durchdachte Projektkonzept umfasst zwei Etagen, drei Schlafzimmer und ein modernes Badezimmer mit Dusche, Wanne und Fenster, sowie ein zusätzliches Gäste-WC. Hier finden Sie den perfekten Raum für Entspannung und Rückzug.
Das Objekt besticht durch seine gehobene Ausstattung und bietet Ihnen zahlreiche Highlights, wie einen Dachboden, der zusätzlichen Stauraum oder sogar einen kreativen Rückzugsort bieten kann. Auf den hochwertigen Bodenbelägen aus Fliesen und Parkett erleben Sie nicht nur eine elegante Optik, sondern auch eine unkomplizierte Pflege und hohe Langlebigkeit. Fliesen sind besonders hygienisch und pflegeleicht, während Parkett eine warme und einladende Atmosphäre schafft.
Die moderne Wärmepumpe sorgt für eine effiziente Beheizung und unterstützt den Niedrigenergie-Standard KFW55, was Ihnen nicht nur ein angenehmes Wohnklima, sondern auch nachhaltige Energiekosten garantiert.
Dieses Einfamilienhaus vereint alles, was Sie sich für Ihr neues Zuhause wünschen!
Ihr Traumhaus in Ebersbach an der Fils: Einfamilienhaus nach Ihren Wünschen
73061 Ebersbach an der Fils
Die vollständige Adresse der Immobilie erhalten Sie vom Anbieter.
Auf Karte anzeigen
Die vollständige Adresse der Immobilie erhalten Sie vom Anbieter.
Finanzierungszertifikat
In nur zwei Minuten zu Ihrem persönlichen Finanzierungszertifkat.
Infos
| Haustyp | Einfamilienhaus |
|---|---|
| Etagenzahl | 2 |
| Wohnfläche ca. | 123 m2 |
| Grundstücksfläche | 380 m2 |
| Zimmer | 4 |
| Schlafzimmer | 3 |
| Badezimmer | 1 |
Kosten
| Kaufpreis |
466.223 € |
|---|
Finanzierungsrechner:
Kaufpreis:
600.000 €
Eigenkapital:
600.000 €
Monatliche Rate
0 €
Effektiver Jahreszins
0 %
Sollzinsbindung
10 Jahre
Bausubstanz & Energieausweis
| Baujahr | unbekannt |
|---|---|
| Bauphase | Haus in Planung (projektiert) |
| Qualität der Austattung | Gehoben |
| Heizungsart | Wärmepumpe |
Beschreibung des Objekts
Ausstattung
Im Preis enthalten:
Dein tolles Energieeffizienzhaus in KfW55 Standard (auf
Wusch in KfW 40+)
Architektenleistung: Entwurfsplanung und Erstellung der
Bauanträge
Planänderungspauschale für freie Grundrissanpassung
Vermessungsleistung des Bauplatzes zur Erstellung des
Bauantrags
Bodengutachten von unabhängigem Gutachter
Moderne Wärmepumpe von ELCO, Buderus oder Tecalor
Sicherheitshaustüre mit Mehrfachverriegelung
3-fach verglaste Fenster im ganzen Haus
Dacheindeckung mit Betondachziegel
Dachrinnen und Fallrohre aus Titan-Zink
Aluminiumrolläden an allen Fenstern
Material für den Innenausbau: Dämm- und
Beplankungspaket, Spachtelmasse, Innenwandfarbe usw.
Gesamtes Innenaustattungspaket (Türen, Sanitärobjekte,
Bodenbeläge uvm.)
Blower Door Test und Erstellung des Energieausweises
Lieferung und Hausmontage inkl. Baukran
Bau-Sicherheitspaket (R+V Versicherungspaket):
inkl. Bauleistungsversicherung
inkl. Bauherren-Haftpflichtversicherung
inkl. Wohngebäudeversicherung
inkl. Feuer-Rohbauversicherung
inkl. Arbeitslosenversicherung
zzgl. Baunebenkosten
zzgl. Restbauleistungen
zzgl. Kaufnebenkosten des Grundstücks
Selbstverständlich bieten wir Ihnen das Haus in verschiedenen Ausbaustufen an.
Vom AUSBAUHAUS bis hin zum fertigen Objekt, stehen alle Möglichkeiten zur Verfügung.
Wir bieten Ihnen eine große Auswahl an Einfamilienhäusern mit einer Wohnfläche zwischen 114m² und 275m². Vom klassischen Haus für Paare oder kleine Familien über praktische Stadthäuser mit schmalem Schnitt bis hin zur großen Stadtvilla oder modernem Bungalow ist alles dabei.
Dabei können Sie unsere Fertighäuser ganz nach Ihren eigenen Wünschen gestalten. Sowohl die Dachform (Satteldach, Walmdach, Flachdach oder Pultdach) als auch zusätzliche Bauteile wie Erker, Balkon oder Giebel sind frei wählbar.
Interessiert? Dann rufen Sie mich unter 0176/62960599 an oder senden Sie mir eine E-Mail an joshua.traunig@allkauf.de
Lage
Sie suchen ein passendes Grundstück für Ihren Haustraum?
Dann hilft Ihnen der #1 Fertighaushersteller Deutschlands!
Mit unserer innovativen Methodik arbeiten wir mit unseren Bauherren eng zusammen und nutzen die Expertise unser 40 jährigen Erfahrung
bei der Suche und Findung Ihres Traumgrundstücks - und das völlig kostenlos.
Ob die Suche beim Grundstück selbst oder die Absicherung durch unsere Fachleute beim Bebauungsplan - bei uns sind Sie in besten Händen.
Bei Interesse unserer Vorgehensweise, erreichen Sie mich unter folgender Nummer:
0176 62960599
Ich freue mich auf Ihren Anruf.
Sonstige Angaben
allkauf heißt: Maximale Sicherheit, kurze Lieferzeiten, garantierte Fertigstellung.
Wer sich den Traum von den eigenen vier Wänden erfüllen möchte, sieht oftmals vielen Unsicherheiten entgegen. Mit allkauf profitieren Sie von:
- kurzen Lieferzeiten
- einer Liefergarantie
- garantierter Sicherheit
- einer Festpreisgarantie
- einer Fertigstellungsgarantie
Zu allen Häusern gehört:
- Energieeffizienzwand
- Echtholztreppe
- Luft-Wasser-Wärmepumpe
- Fußbodenheizung
- Be- und Entlüftungsanlage
- 3-fach verglaste Fenster inklusive Rollläden mit Aluminiumlamellen
- Lichte Raumhöhe 2,75 m
- inkl. erhöhten Fenstern und Türen
- TOXPROOF Gütesiegel - schadstoffgeprüfter Materialien
- Just-in-Time-Lieferungen
- Bemustern im eigenen Bemusterungszentrum mit Markenprodukten
Ob Einfamilienhaus, Doppelhaus oder Bungalow - bei allkauf finden Sie Ihr Traumhaus! Vereinbaren Sie noch heute Ihren Termin zur Planung Ihres allkauf Traumhauses.
Weitere Dokumente
Siegel ProduktqualitätInstitut Preis-Leistungsverhäl
TÜV Zertifikat
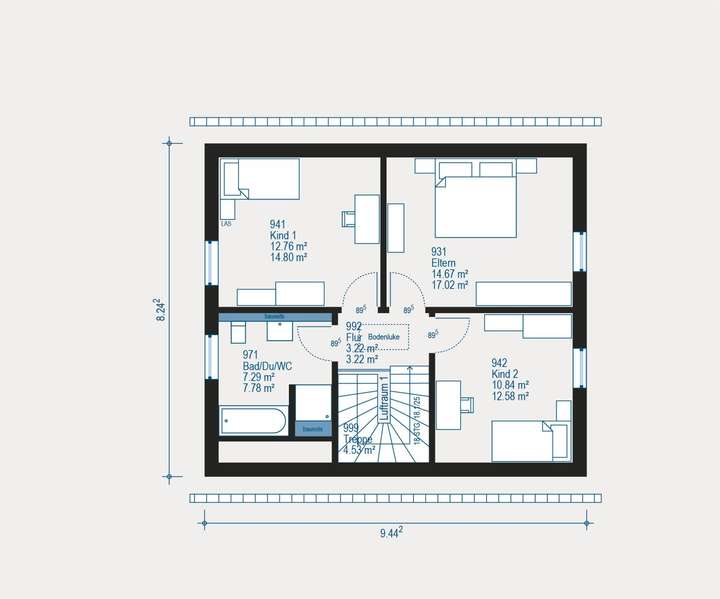
Grundriss
Grundriss EG
>
>
Grundriss OG
>
>
Adresse
73061 Ebersbach an der Fils
Interessante Orte
Preis- und Lageinformationen
Preistrend für Bestandsimmobilien in Ebersbach an der Fils