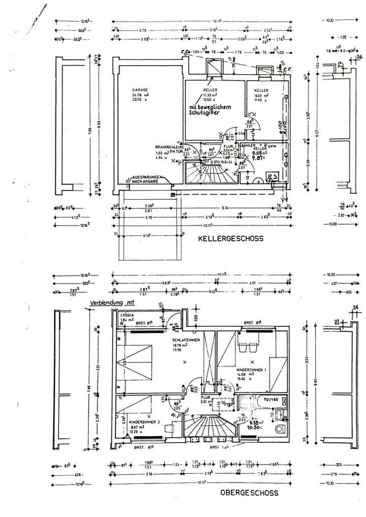
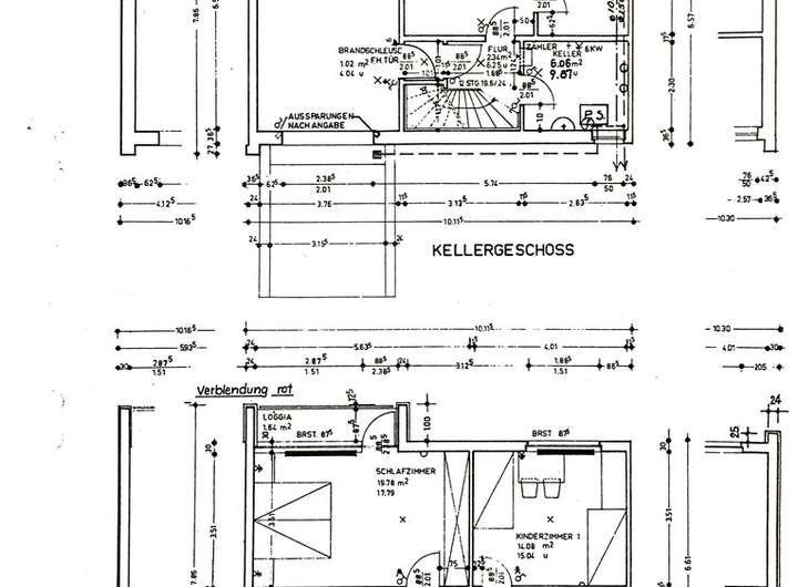
Das Haus wurde 1963 erbaut und 2019 im Rahmen einer Kernsanierung vollständig modernisiert. Lediglich das Mauerwerk ist noch original. Dabei wurden sämtliche Gewerke neu installiert - inklusive: • neuer Strom-, Wasser- und Heizungsleitungen • moderne Heizungsanlage mit effizienter Fernwärme • komplett neue Fenster & Türen (inkl. Wärmegedämmte Glasbausteine) • Außendämmung für optimalen Energiestandard • Intelligente Gebäudesteuerung • Netzwerktechnik und Videoüberwachung (Außenbereich) • Neu angelegter Garten Ein echter Clou: Durch die versetzte zweite Hausreihe wirkt das Haus wie ein Reihenendhaus - mit deutlich mehr Ruhe & Privatsphäre. Auf rund 120 m² Wohnfläche + Volle Unterkellern (60qm) + Dachboden als Stauraum (~45qm) bietet das Haus alles, was man sich als Familie oder modernes Paar wünschen kann: •EG: Großzügiger Wohn‑ und Essbereich mit offener Küche, Gäste-WC •OG: Zwei große Schlafzimmer, ein kleineres. Modernes Badezimmer •DG: Ausgebaut und als Lagerfläche voll nutzbar •KG: Werkstatt, Heizungsraum, großer Lagerraum und Tiefgarage mit direktem Hauszugang
Ein Zuhause wie neu - modern, komfortabel, einzigartig
28259 Bremen
Die vollständige Adresse der Immobilie erhalten Sie vom Anbieter.
Auf Karte anzeigen
Die vollständige Adresse der Immobilie erhalten Sie vom Anbieter.

Finanzierungszertifikat
In nur zwei Minuten zu Ihrem persönlichen Finanzierungszertifkat.
Infos
Haustyp | Reiheneckhaus |
---|---|
Etagenzahl | 4 |
Wohnfläche ca. | 138 m2 |
Nutzfläche | 80 m2 |
Grundstücksfläche | 465 m2 |
Bezugsfrei ab | nach Absprache |
Zimmer | 4 |
Schlafzimmer | 3 |
Badezimmer | 2 |
Garage/Stellplatz | Garage |
Anzahl Garage/Stellplatz | 1 |
Kosten
Kaufpreis |
450.000 € |
---|---|
Provision | Nein |
Finanzierungsrechner:
Kaufpreis:
600.000 €
Eigenkapital:
600.000 €
Monatliche Rate
0 €
Effektiver Jahreszins
0 %
Sollzinsbindung
10 Jahre
Bausubstanz & Energieausweis
Baujahr | 1963 |
---|---|
Bauphase | Haus fertig gestellt |
Objektzustand | Modernisiert |
Heizungsart | Zentralheizung |
Wesentliche Energieträger | Fernwärme |
Energieausweis | liegt vor |
Energieausweistyp | Verbrauchsausweis |
Energieverbrauchskennwert | 50,0 kWh/(m²*a) |
Energieeffizienzklasse | A |
50,0
kWh/(m²*a)
Energieeffizienzklasse A
- A+
- A
- B
- C
- D
- E
- F
- G
- H
- 0
- 25
- 50
- 75
- 100
- 125
- 150
- 175
- 200
- 225
- >250
Beschreibung des Objekts
Ausstattung
Balkon, Terrasse, Garten, Keller, Vollbad, Duschbad, Pool · Schwimmbad, Einbauküche, Gäste-WC, Kamin Bemerkungen: Dieses Zuhause ist mehr als Standard - es ist ein Wohn-Traum mit Wohlfühlfaktor: • Neubauqualität (Fenster mit Elektrischen Rolläden, Türen, Dämmung, Abgehangene Decken in den Bädern) • Automatische Steuerung des Hauses (Wärme, Licht, Bewässerung) • Hohe Sicherheitsstandards • Gartenparadies • liebevoll gestaltet • großer ovaler Pool (ca. 3,5 × 7,5 m) • Kaminkasette im Wohnzimmer für gemütliche Stunden
Lage
Dieses außergewöhnliche Reihenhaus liegt in ruhiger Lage von Bremen-Huchting, in zweiter Reihe zur idyllischen Varreler Bäke. Die direkte Nachbarschaft zu Niedersachsen bietet eine naturnahe Umgebung mit schönen Spazierwegen und gleichzeitiger Nähe zur Stadt: Ob Innenstadt oder Flughafen - durch die gute Verkehrsanbindung sind Sie flexibel unterwegs. Zusätzlich zur Anbindung an die Bundesstraße B75 sind Bus und (in Kürze) Bahnstationen fußläufig zu erreichen. Infrastruktur (im Umkreis von 5 km): Apotheke, Lebensmittel-Discount, Allgemeinmediziner, Kindergarten, Grundschule, Hauptschule, Realschule, Gymnasium, Gesamtschule, Öffentliche Verkehrsmittel
Sonstige Angaben
Heizungsart: Zentralheizung Energieträger: Fernwärme Makleranfragen nicht erwünscht. Nach § 7 UWG sind unaufgeforderte Kontaktaufnahmen durch Makler ohne ausdrückliche Einwilligung des Empfängers verboten! ohne-makler (OM) ist weder Anbieter noch Vermittler der Immobilie. OM betreibt eine Plattform für Immobilieneigentümer, die unter anderem die gleichzeitige Veröffentlichung einzelner Inserate auf mehreren Immobilienportalen ermöglicht. Die Inhalte dieser Inserate werden ausschließlich von Dritten verantwortet. Für die Richtigkeit, Vollständigkeit oder Rechtmäßigkeit der Angaben übernimmt OM keine Haftung. Hinweise auf mögliche Rechtsverstöße können jederzeit gemeldet werden und werden nach Prüfung umgehend bearbeitet.
Grundriss
EG
>

OG & Keller
>

Adresse
28259 Bremen
Interessante Orte
Preis- und Lageinformationen
Preistrend für Bestandsimmobilien in Mittelshuchting