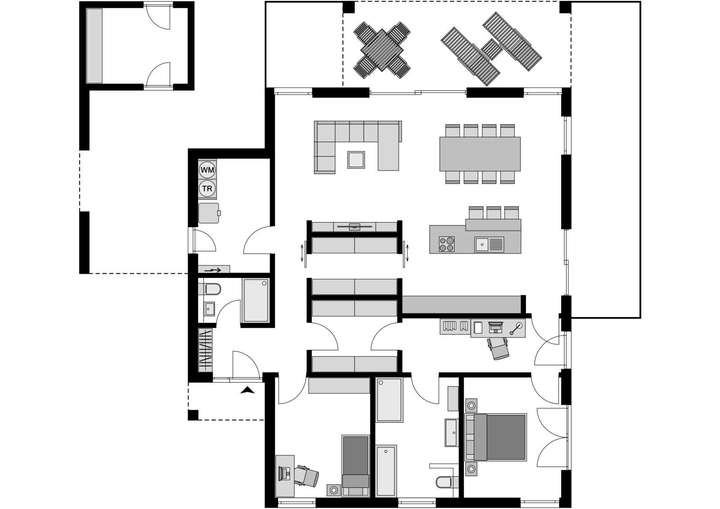
Entdecken Sie den Charme und die Freiheit, die Ihnen ein individuell geplanter Bungalow von STREIF bietet. Mit einer Wohnfläche von 121,29 m², verteilt auf 4 großzügige Zimmer, lässt dieser Bungalow keine Wünsche offen. Drei Schlafzimmer bieten Raum für die ganze Familie, während das geräumige Badezimmer mit Dusche, Wanne und Fenster sowie das zusätzliche Gäste-WC höchsten Komfort versprechen. Das Projekt überzeugt durch seine moderne Architektur und die Möglichkeit zur individuellen Gestaltung, um Ihr persönliches Traumhaus zu verwirklichen. Das großzügige Grundstück von 1065 m² in einem attraktiven Wohngebiet in Braunschweig bietet Ihnen zudem reichlich Platz für Gartenliebhaber oder zum Spielen für Kinder.
***Barrierefreies Wohnen: Ihr Traum-Bungalow für entspannte Lebensqualität mit Klinkeraktion!***
38108 Braunschweig
Die vollständige Adresse der Immobilie erhalten Sie vom Anbieter.
Auf Karte anzeigen
Die vollständige Adresse der Immobilie erhalten Sie vom Anbieter.
Finanzierungszertifikat
In nur zwei Minuten zu Ihrem persönlichen Finanzierungszertifkat.
Infos
| Haustyp | Bungalow |
|---|---|
| Etagenzahl | 1 |
| Wohnfläche ca. | 121 m2 |
| Nutzfläche | 25 m2 |
| Grundstücksfläche | 1.065 m2 |
| Bezugsfrei ab | 2025 |
| Zimmer | 4 |
| Schlafzimmer | 3 |
| Badezimmer | 1 |
Kosten
| Kaufpreis |
900.755 € |
|---|---|
| Provision | Nein |
Finanzierungsrechner:
Kaufpreis:
600.000 €
Eigenkapital:
600.000 €
Monatliche Rate
0 €
Effektiver Jahreszins
0 %
Sollzinsbindung
10 Jahre
Bausubstanz & Energieausweis
| Baujahr | 2025 |
|---|---|
| Bauphase | Haus in Planung (projektiert) |
| Qualität der Austattung | Gehoben |
| Heizungsart | Wärmepumpe |
| Energieausweis | liegt zur Besichtigung vor |
Beschreibung des Objekts
Ausstattung
Genießen Sie eine gehobene Ausstattung mit hochwertigen Bodenbelägen aus Fliesen oder nach Ihrem Wunsch - ideal für Allergiker und pflegeleicht im Alltag. Eine moderne Wärmepumpe sorgt effizient und nachhaltig für wohlige Wärme und erfüllt den KFW40 Standard, was Ihnen langfristig Energiekosten spart und einen positiven Beitrag zur Umwelt leistet. Die Ausstattungsdetails vereinen Funktionalität mit ästhetischem Design und garantieren eine hohe Lebensqualität.
Lage
Der Bungalow befindet sich im begehrten Wohngebiet von Braunschweig, das Ihnen eine hervorragende Infrastruktur bietet. In unmittelbarer Nähe finden Sie Busverbindungen, Einkaufsmöglichkeiten sowie Bildungseinrichtungen wie Grundschule, Kindergarten und weiterführende Schulen. Freizeitmöglichkeiten sind ebenfalls reichlich vorhanden: Ein Spielplatz in der Nähe lädt zum Toben ein, während das nahe Umfeld zu entspannenden Spaziergängen einlädt.
Sonstige Angaben
STREIF Haus - der Pionier der deutschen Fertighausbranche
Die langjährige Firmentradition des Unternehmens reicht bis in das Jahr 1929 zurück. In den 50er und 60er Jahren wurde in Deutschland schnell und viel Wohnraum für Familien benötigt, seitdem konzentrierte sich das Unternehmen auf die Entwicklung und Produktion von Fertighaustypen, die im Werk in großen Stückzahlen hergestellt werden konnten. So kann das Unternehmen auf 90.000 gebaute Hausobjekte zurückblicken und sich zu Recht als Pionier der deutschen Fertighausbranche bezeichnen.
Die neuen Energiesparhäuser - So baut man heute.
Unser Anspruch ist es, in enger Partnerschaft mit unseren Kunden langlebige Häuser zu bauen, mit einer hohen architektonischen Qualität, individuell geplant und dabei energieeffizient und ressourcenschonend. Jedes STREIF-Haus ist einzigartig und wird speziell für jeden Kunden "maßgeschneidert" und gebaut. Passend zu den persönlichen Wünschen, dem vorgegebenen Budget und dem vorhandenen Grundstück planen und bauen wir jedes Haus mit viel Liebe zum Detail.
Grundriss
95592-8104-3-g
>
>
Adresse
38108 Braunschweig
Interessante Orte
Preis- und Lageinformationen
Preistrend für Bestandsimmobilien in Schunteraue