Zum Verkauf steht ein Zweifamilienhaus in bester Lage von Bremen-Osterfeuerberg. Die Immobilie verfügt über zwei Wohneinheiten, kann aber auch perfekt als Einfamilienhaus genutzt werden und besticht durch das gute Raumgefühl und die optimale Lage. Die Immobilie wurde im Jahr 1898 errichtet.
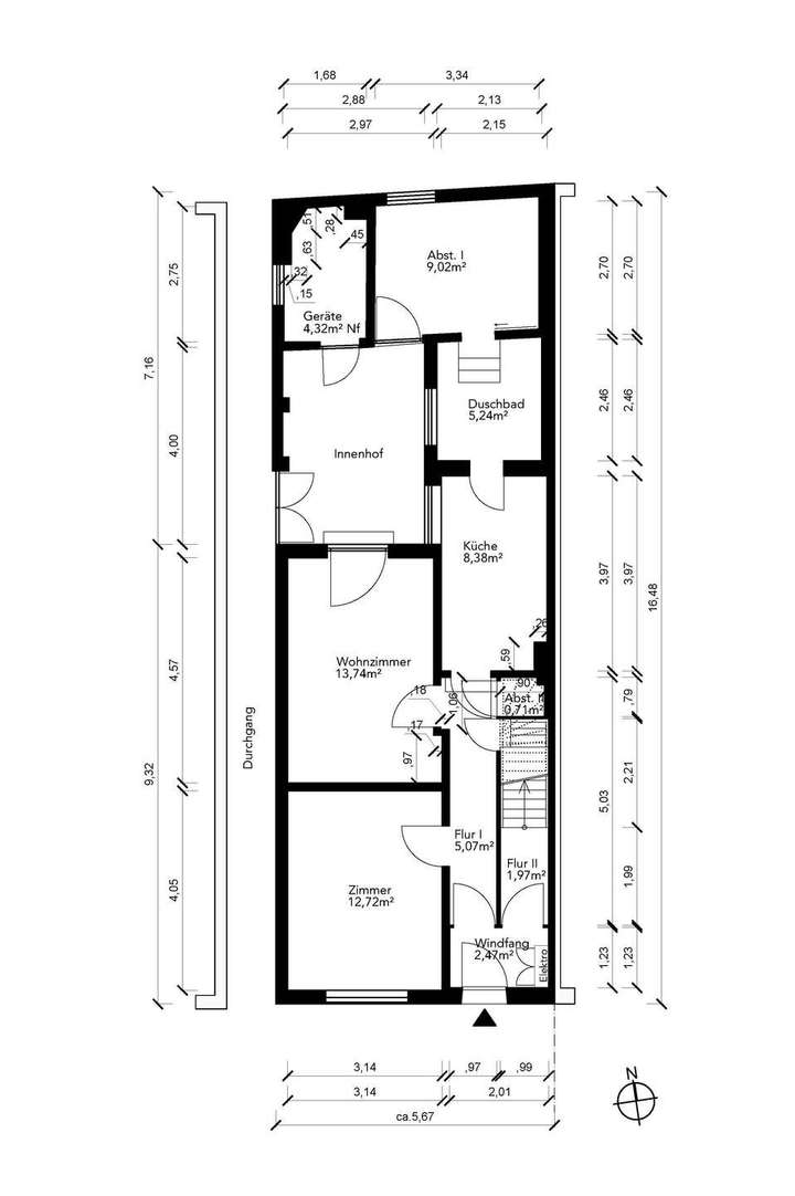
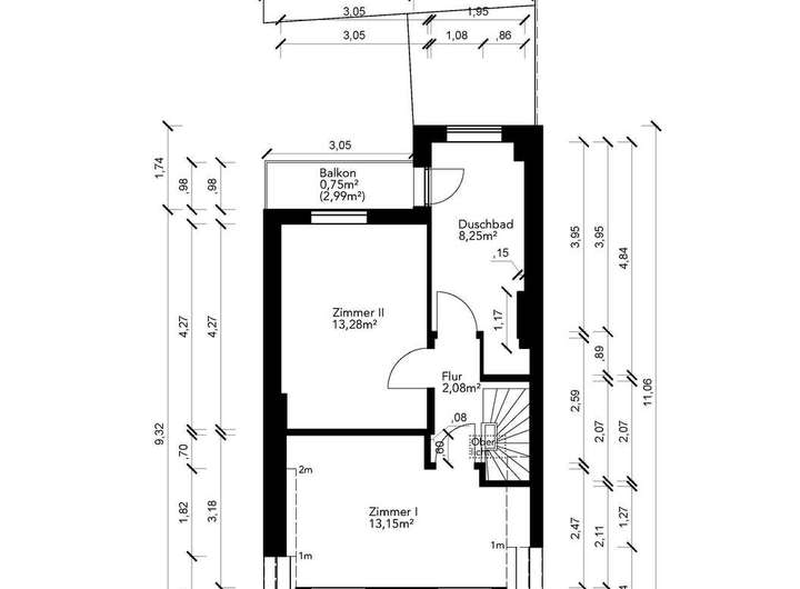
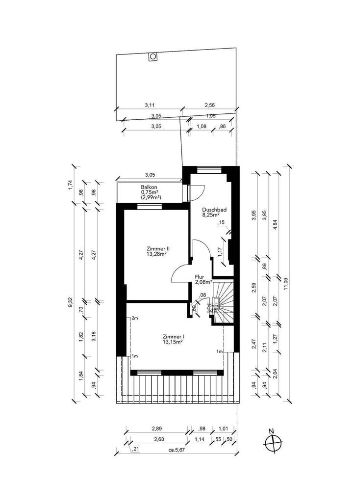
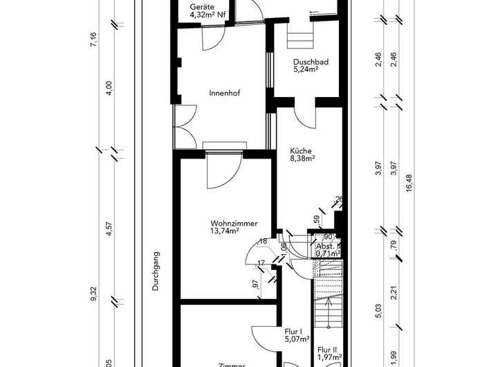
Auf insgesamt drei Etagen präsentieren sich zwei Wohneinheiten. Die genaue Aufteilung entnehmen Sie bitte den beigefügten Grundrissen. Ein Ausgang zum Innenhof bietet sich im hinteren Teil. Ein kleines Grundstück (Siehe Bilder) kann z. Zt. unentgeltlich genutzt werden. Die Wohnflächenberechnung übersenden wir Ihnen nebst Exposé.
Ein Teilkeller ergänzt das Platzangebot sinnvoll. Beheizt wird diese Immobilie über Etagenheizungen aus den Jahren 2018 und 2021. Die Warmwassersteuerung übernehmen Durchlauferhitzer.
Insgesamt ist zu sagen, dass es sich bei dieser Immobilie um eine sehr gute Möglichkeit in guter Lage handelt, welche sich in einem sanierungsbedürftigen Zustand befindet und Freiraum für Ihre Ideen bietet.
Der charmante Grundriss und die durchdachte Raumaufteilung machen dieses Haus zu einer attraktiven Option für Familien oder Paare, die ein harmonisches Wohnambiente schätzen. Auch Wohnen und Arbeiten unter einem Dach ist gut möglich, ebenso das Mehrgenerationen-Wohnen. Ein wirklich gutes Angebot in wertstabiler Lage.
Wir freuen uns auf Ihre Anfrage und ich stehe Ihnen persönlich unter der 0176 578 44 0 44 jederzeit zur Verfügung.
Herzliche Grüße! Ihr fairer Makler – Torsten Wolf
** Neuer Preis ** Charmantes Zweifamilienhaus in bester Lage von Bremen-Osterfeuerberg **
28219 Bremen
Die vollständige Adresse der Immobilie erhalten Sie vom Anbieter.
Auf Karte anzeigen
Die vollständige Adresse der Immobilie erhalten Sie vom Anbieter.
Finanzierungszertifikat
In nur zwei Minuten zu Ihrem persönlichen Finanzierungszertifkat.
Infos
| Haustyp | Sonstige |
|---|---|
| Wohnfläche ca. | 143 m2 |
| Grundstücksfläche | 300 m2 |
| Zimmer | 7 |
Kosten
| Kaufpreis |
265.000 € |
|---|---|
| Provision |
1,5% zzgl. gesetzlicher MwSt. |
Finanzierungsrechner:
Kaufpreis:
600.000 €
Eigenkapital:
600.000 €
Monatliche Rate
0 €
Effektiver Jahreszins
0 %
Sollzinsbindung
10 Jahre
Bausubstanz & Energieausweis
| Baujahr | 1898 |
|---|---|
| Objektzustand | Renovierungsbedürftig |
| Qualität der Austattung | Normal |
| Heizungsart | Etagenheizung |
| Wesentliche Energieträger | Gas |
| Energieausweis | liegt vor |
| Energieausweistyp | Bedarfsausweis |
| Energieverbrauchskennwert | 249,4 kWh/(m²*a) |
| Energieeffizienzklasse | G |
249,4
kWh/(m²*a)
Energieeffizienzklasse G
- A+
- A
- B
- C
- D
- E
- F
- G
- H
- 0
- 25
- 50
- 75
- 100
- 125
- 150
- 175
- 200
- 225
- >250
Beschreibung des Objekts
Ausstattung
Zwei Wohneinheiten
Teilkeller
Rollläden
Abstellräume
Loggia / Wintergarten light
zwei Etagenheizungen (2018 und 2021)
Lage
Das Zweifamilienhaus befindet sich in der Walle, in der Glücksburger Straße, einem aufstrebenden Stadtteil Bremens.
Die Anbindung an den öffentlichen Nahverkehr ist optimal, mit mehreren Buslinien, die in kurzer Zeit die Innenstadt und andere Stadtteile erreichen. Zudem sind wichtige Verkehrsachsen gut erreichbar, sodass Sie auch mit dem Auto schnell zu den umliegenden Städten und Autobahnen gelangen.
Viele kleine Unternehmen schätzen den guten Ruf dieses Viertels und siedeln sich hier an. Die Nähe zum Flughafen und zur Innenstadt macht diese Lage besonders attraktiv.
Die Immobilie liegt in einer ruhigen Seitenstraße und ist nur wenige Gehminuten von der Straßenbahnlinie 2 und der Bushaltestelle 26 entfernt. Dadurch sind der Flughafen, der Bahnhof, die Innenstadt und sogar die Universität bequem zu erreichen. Ärzte, Schulen und Kindergärten befinden sich in der Nähe.
Walle ist bunt und bietet eine Vielzahl an Geschäften und Einkaufsmöglichkeiten über den täglichen Bedarf hinaus sowie den Wochenmarkt auf dem Artburgplatz, der hier 3 × wöchentlich (Di, Do, Sa – 8–13 Uhr) stattfindet. In der Nachbarschaft gibt es auch gemütliche Cafés und Restaurants.
Sonstige Angaben
Der Makler weist darauf hin, dass die von ihm weitergegebenen Objektinformationen vom Verkäufer bzw. von einem vom Verkäufer beauftragten Dritten stammen und von ihm, dem Makler, auf ihre Richtigkeit nicht überprüft worden sind. Es ist Sache des Kunden, diese Angaben auf ihre Richtigkeit hin zu überprüfen. Der Makler, der diese Informationen nur weitergibt, übernimmt für die Richtigkeit keinerlei Haftung.
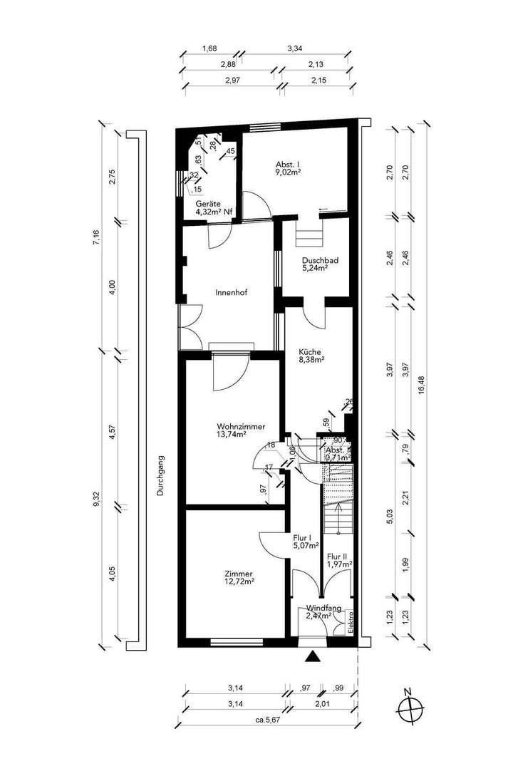
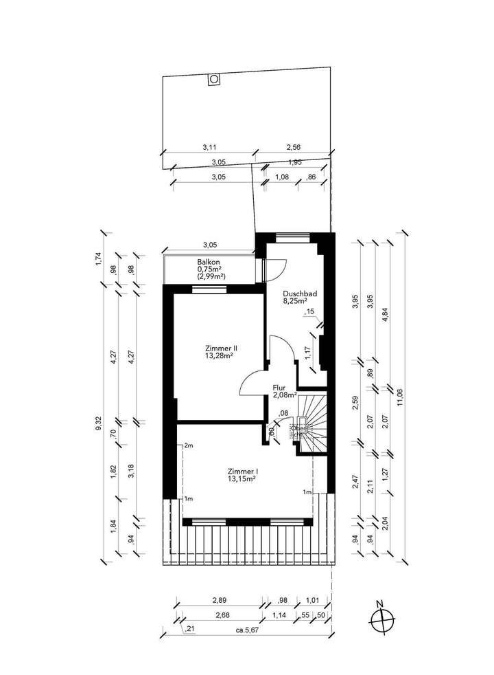
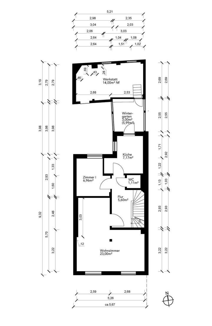
Grundriss
Grundriss Teilkeller
>
>
Grundriss Erdgeschoss
>
>
Grundriss Obergeschoss
>
>
Grundrisse Dachgeschoss
>
>
Adresse
28219 Bremen
Interessante Orte
Preis- und Lageinformationen
Preistrend für Bestandsimmobilien in Osterfeuerberg