Dieser großzügige Winkelbungalow wurde 1974 von der renommierten Firma Bast Bau errichtet und überzeugt durch seine durchdachte Architektur sowie das Wohnen auf einer Ebene. Mit einer Wohnfläche von ca. 149 m² bietet die Immobilie viel Platz für individuelles Wohnen und Leben.
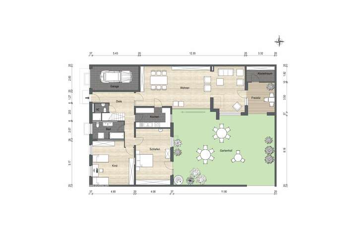
Das Herzstück des Hauses ist das helle Wohn- und Esszimmer mit ca. 59 m², das dank großer Fensterflächen einen harmonischen Übergang zum Innenhof schafft und gleichzeitig einen herrlichen Blick in den Patio bietet.
Zwei großzügige Schlafzimmer mit ca. 27 m² und 25 m² runden das Raumangebot ab und bieten vielfältige Gestaltungsmöglichkeiten – sei es als Rückzugsort, Homeoffice oder Gästezimmer.
Das Haus verfügt zudem über ein modernes Tageslicht-Badezimmer mit Badewanne und Dusche sowie ein separates Gäste-WC mit Dusche, was den Wohnkomfort zusätzlich unterstreicht.
Ein besonderes Highlight dieses Bungalows ist der große, uneinsehbarer Patio, der teilweise begrünt ist und eine außergewöhnliche Wohnatmosphäre schafft. Er bildet das private Zentrum des Hauses und lädt zum Entspannen, Feiern oder Verweilen im Freien ein – ganz ohne störende Blicke von außen.
Ergänzt wird das Raumangebot durch ein ca. 117 m² großes Untergeschoss, das über eine große Natursteintreppe erreichbar ist. Dieses wurde von den Eigentümern teilweise ausgebaut und eröffnet zahlreiche Nutzungsmöglichkeiten.
Die Kombination aus offener Grundrissgestaltung, großzügigen Fensterflächen, moderner Ausstattung und dem einzigartigen Patio verleiht diesem Objekt einen besonderen Charme, der sowohl zeitlos als auch modern wirkt. Gleichzeitig bietet das Haus – trotz bereits erfolgter Modernisierungen (siehe Ausstattungen) die Möglichkeit, es durch eine zeitgemäße Revitalisierung an die Ansprüche des 21. Jahrhunderts anzupassen. Dieser Umstand ist bei der Kaufpreisfindung bereits berücksichtigt und eröffnet neuen Eigentümern die Chance, dem Bungalow ihre ganz persönliche Handschrift zu verleihen.
Großzügiger Winkelbungalow mit uneinsehbarem Patio in Erkrath-Unterfeldhaus
40699 Erkrath
Die vollständige Adresse der Immobilie erhalten Sie vom Anbieter.
Auf Karte anzeigen
Die vollständige Adresse der Immobilie erhalten Sie vom Anbieter.
Finanzierungszertifikat
In nur zwei Minuten zu Ihrem persönlichen Finanzierungszertifkat.
Infos
| Haustyp | Bungalow |
|---|---|
| Etagenzahl | 1 |
| Wohnfläche ca. | 148 m2 |
| Nutzfläche | 117,14 m2 |
| Grundstücksfläche | 389 m2 |
| Bezugsfrei ab | Nach Absprache |
| Zimmer | 3 |
| Schlafzimmer | 2 |
| Badezimmer | 2 |
| Garage/Stellplatz | Garage |
| Anzahl Garage/Stellplatz | 1 |
Kosten
| Kaufpreis |
595.000 € |
|---|---|
| Provision |
2,38 inkl. 19 % MwSt. |
Finanzierungsrechner:
Kaufpreis:
600.000 €
Eigenkapital:
600.000 €
Monatliche Rate
0 €
Effektiver Jahreszins
0 %
Sollzinsbindung
10 Jahre
Bausubstanz & Energieausweis
| Baujahr | 1974 |
|---|---|
| Objektzustand | Gepflegt |
| Qualität der Austattung | Normal |
| Heizungsart | Zentralheizung |
| Wesentliche Energieträger | Gas |
Beschreibung des Objekts
Ausstattung
Neuer Eingangs- und Garagenbereich im Jahr 2024
+ Automatische Sicherheitstür mit Edelstahl-Beschlägen
+ Neues Funk-Sektionaltor
+ Digitales Zutrittkontrollsystem
+ Ring-Türsystem mit Videoüberwachung
+ Aluminium-Fassadenverkleidung
+ Neue Pflasterung im Eingangs- und Garagenbereich
Weitere Ausstattungen im Aussenbreich
+ Großer -teilweise begrünter- Patio
+ Aussenkamin
+ Zugang zum UG auch vom Patio möglich
+ Begrünung zur Straßenfront erneuert in 2025
+ Flachdachfläche in 2024 erneuert
+ Einzelgarage mit zusätzlichem Stellplatz davor
+ Doppelverglaste Kunststoff-Fenster zur Straße aus 2018
+ Fenster UG aus 2008
+ Aussenrollos überwiegend elektrisch
Ausstattung Wohnräume
+ Heller Wohnbereich
+ Große Fensterfronten im Wohnbereich
+ Innen- und Aussenkamin
+ Barrierearmer Zugang
+ Laminat in allen Wohnräumen
Badezimmer aus dem Jahr 2019
+ Tageslicht-Badezimmer
+ Weiße Wandfliesen
+ Anthrazit-Farbene Bodenfliesen
+ Mit Badewanne und Dusche
+ Dusche mit Glasabtrennung
+ Neue Elektrik
+ Neue Wasser- und Abwasserrohre
+ Elektrische Fussbodenheizung
+ Großer Hängewaschtisch mit 2 Armaturen
und Unterschrank
+ Beleuchteter Spiegelschrank
+ Handtuchwärmer
+ Deckeneinbau-Strahler
+ Hänge-WC und Unterputz-Spülkasten
Gäste-WC mit Dusche (ca. Jahr 2010)
(Ohne Verrohrung)
Untergeschoss
+ Breite Natursteintreppe
+ Überwiegend von den Eigentümern ausgebaut
+ Waschküche mit Abwasser-Hebeanlage
Neue Heizungsanlage (Gemeinschaftsheizung) in 2025
Lage
Die Immobilie liegt in einer ruhigen, gepflegten Wohnstraße im familienfreundlichen Stadtteil Unterfeldhaus von Erkrath. Typisch ist der ruhige Anliegerverkehr sowie die angenehme Nachbarschaft mit Einfamilien- und Reihenhäusern sowie Eigentumswohnungen.
Zahlreiche Parks und Grünflächen (Bavier Park, Bayer Park, Morper Park) bieten perfekte Rückzugsorte für Entspannung und Bewegung.
Das Neanderbad bietet Schwimmvergnügen für Kinder und Sportbegeisterte – mit Rutsche, Kinderbecken und Wettkampfbahnen.
Der Neuenhausplatz als Nahversorgungszentrum punktet mit Einkaufsmöglichkeiten und gastronomischen Angeboten alles fußläufig oder per kurzer Fahrt erreichbar.
Schnell erreichbar sind die Anschlussstellen zu den Autobahnen A46 und A3, ideal für Berufspendler und Naturausflüge.
Die Düsseldorfer Innenstadt liegt nur etwa 11 km entfernt – in ca. 15–20 Minuten Fahrt, je nach Verkehr.
Sonstige Angaben
+ Neuer Eingangs- und Garagenbereich im Jahr 2024 (Details siehe "Ausstattung")
+ Flachdachfläche in 2024 erneuert
+ Neue Heizungsanlage in 2025 (Heizungsgemeinschaft)
+ Badezimmer aus dem Jahr 2019 (Details siehe "Ausstattung")
+ Glasfaseranschluss
Grundriss
Erdgeschoss - Einrichtungsbeis
>
>
Untergeschoss - Einrichtungsbe
>
>
Adresse
40699 Erkrath
Interessante Orte
Preis- und Lageinformationen
Preistrend für Bestandsimmobilien in Erkrath