In traumhafter Lage, eingebettet zwischen Wäldern und Wiesen, am Ende einer ruhigen Sackgasse, befindet sich dieses freistehende Einfamilienhaus mit großzügigem Garten und überdachter Terrasse. Nur rund 28 Autominuten von Mannheim und Heidelberg entfernt, bietet das Haus sowohl Familien als auch Mehrgenerationenhaushalten ein ideales Zuhause mit viel Platz, Privatsphäre und naturnahem Lebensgefühl. Das Haus wurde im Jahr 1995 errichtet. Das Kellergeschoss wurden in solider Massivbauweise gebaut, Erd- und Dachgeschoss in hochwertiger Fertigbauweise von Massa Haus. Die Wohnfläche beträgt ca. 151 m² und verteilt sich über zwei Etagen. Das Grundstück umfasst 538 m² und bietet mit gepflegter Grünfläche und weitläufiger Terrasse genügend Raum zum Spielen, Entspannen oder Gärtnern. Schon beim Betreten des Hauses fällt der helle, freundliche Eingangsbereich auf, der dank der Hanglage anteilig im Untergeschoss liegt und mit Fußbodenheizung ausgestattet ist. Hier befinden sich auch mehrere vollwertig nutzbare Räume mit Heizkörpern und Tageslicht. Aktuell sind hier ein Büro sowie ein Spielzimmer untergebracht – ideal für Homeoffice, Hobby oder als Rückzugsbereich für Jugendliche. Zusätzlich gibt es auf dieser Ebene einen Abstellraum, einen Heizraum mit der Ölheizung aus dem Jahr 1995 sowie vorbereitete Anschlüsse, die den Einbau eines weiteren Badezimmers ermöglichen und damit zukünftige Erweiterungen unterstützen. Die Heizungsanlage sowie der Brenner der Heizung wurden 2023 modernisiert.
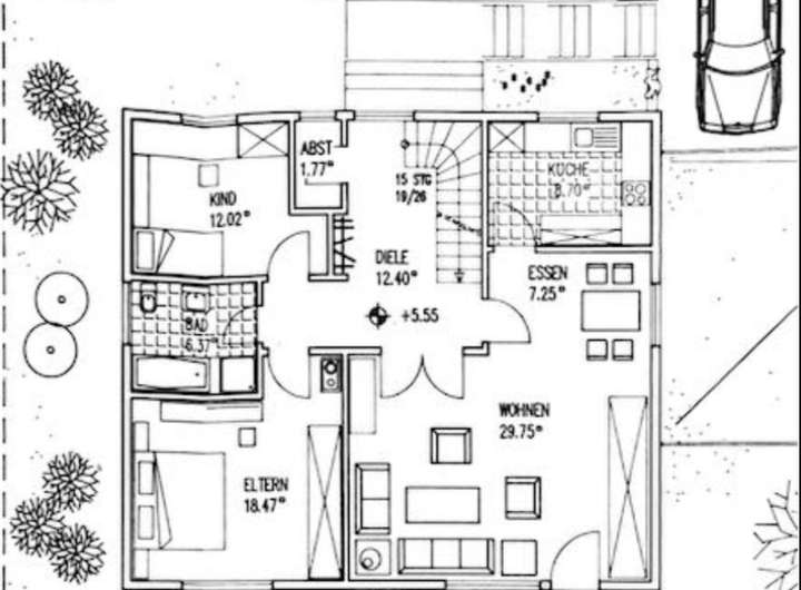
Über die Innentreppe gelangen Sie in das Erdgeschoss, welches den Mittelpunkt des familiären Zusammenlebens bildet. Vom Flur zweigen sich hier nahezu alle Zimmer ab. Der großzügige Wohn- und Essbereich ist lichtdurchflutet und bietet Zugang zur ca. 30 m² großen, überdachten Terrasse. Diese ist windgeschützt, uneinsichtig und ideal für gemütliche Stunden im Freien.
Im Wohnbereich sorgt ein Holzofen für behagliche Wärme und ein gemütliches Ambiente. Der Wohnbereich ist auch direkt vom Flur über eine große Glastür begehbar.
Die separate Küche ist funktional eingerichtet und mit einer verbleibenden Einbauküche versehen. Sie wird unmittelbar vom Essbereich betreten.
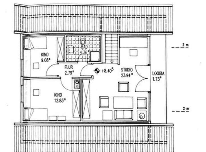
Ein großes Schlafzimmer ist ebenfalls auf dieser Etage angesiedelt. Das dritte Zimmer auf dieser Etage eignet sich hervorragend als Kinder-, Gäste- oder Arbeitszimmer. Ein helles Tageslichtbad mit Badewanne und Dusche komplettiert diese Etage ebenso wie ein zusätzlicher Abstellraum. Im Dachgeschoss befinden sich zwei weitere Zimmer sowie ein großzügiger Studiobereich. Vom Studio erreichen Sie den überdachten Balkon. Im Dachgeschoss erwartet Sie ein weiteres Tageslichtbad mit Dusche. Über eine Auszugstreppe erreichen Sie die zusätzliche Staufläche im Dachgeschoss.
Vor dem Haus befindet sich der Garten mit einer gepflegten Grünfläche. Hier könnte eine zweite Terrasse Platz finden. Über eine seitliche Treppe gelangen Sie zur Terrasse. Neben der Terrasse befindet sich derzeit ein Gewächshaus. Das Grundstück reicht bis zum Ende der dekorativen Pflanzsteinmauer, die nicht nur für eine klare Abgrenzung sorgt, sondern auch zur gepflegten Gartenoptik beiträgt. Eine Doppelgarage bietet Platz für zwei Fahrzeuge zzgl. dem Stellplatz davor.
Ein Ort zum Durchatmen – Einfamilienhaus in ruhiger Höhenlage
69253 Heiligkreuzsteinach
Die vollständige Adresse der Immobilie erhalten Sie vom Anbieter.
Auf Karte anzeigen
Die vollständige Adresse der Immobilie erhalten Sie vom Anbieter.
Finanzierungszertifikat
In nur zwei Minuten zu Ihrem persönlichen Finanzierungszertifkat.
Infos
| Haustyp | Einfamilienhaus |
|---|---|
| Wohnfläche ca. | 151 m2 |
| Nutzfläche | 204 m2 |
| Grundstücksfläche | 538 m2 |
| Zimmer | 6 |
| Schlafzimmer | 4 |
| Badezimmer | 2 |
| Garage/Stellplatz | Garage |
| Anzahl Garage/Stellplatz | 2 |
Kosten
| Kaufpreis |
435.000 € |
|---|---|
| Provision |
2,57 % inkl. MwSt jeweils von beiden Seiten nach notarieller Verbriefung fällig |
Finanzierungsrechner:
Kaufpreis:
600.000 €
Eigenkapital:
600.000 €
Monatliche Rate
0 €
Effektiver Jahreszins
0 %
Sollzinsbindung
10 Jahre
Bausubstanz & Energieausweis
| Baujahr | 1995 |
|---|---|
| Letzte Sanierung | 2023 |
| Objektzustand | Gepflegt |
| Qualität der Austattung | Gehoben |
| Heizungsart | Zentralheizung |
| Wesentliche Energieträger | Öl |
| Energieausweis | liegt vor |
| Energieausweistyp | Verbrauchsausweis |
| Energieverbrauchskennwert | 120,2 kWh/(m²*a) |
| Energieeffizienzklasse | D |
120,2
kWh/(m²*a)
Energieeffizienzklasse D
- A+
- A
- B
- C
- D
- E
- F
- G
- H
- 0
- 25
- 50
- 75
- 100
- 125
- 150
- 175
- 200
- 225
- >250
Beschreibung des Objekts
Ausstattung
Keller Massivbau
Erdgeschoss und Dachgeschoss Massa Fertighaus
2-fach verglaste Holtzfenster
Ölheizung aus dem Jahr 1995, modernisiert 2023
3 Plastiktanks
Fußbodenheizung im Eingangsbereich
Holzofen im Wohnen Essen
Zentralheizung mit Heizkörpern im übrigen Haus
minibore Kessel, Niederdruckheißwassererzeuger
Doppelgarage 2020 renoviert
30 m² große, überdachte Terrasse
zusätzliche Freifläche hinter dem Haus zzgl. Gewächshaus
Garten vor dem Haus mit seitlichem Zugang über Treppen zur Terrasse
überdachter Balkon
zukunftsfähige Raumaufteilung
Tageslichtbad mit Badewanne und Dusche im EG
Tageslichtbad mit Dusche im DG
WC mit Anschlüssen im Keller
Wohnfläche im EG und DG
Wohnnutzfläche im Keller (Büro, Sportraum, Spielzimmer etc denkbar)
Jalousien im EG, DG
Parkett, Laminat, Fliesen
Glasfaseranschluss mit 500 Mbit/s Download und 100 Mbit/s upload
Lage
Heiligkreuzsteinach liegt idyllisch im südlichen Odenwald und gehört zur familienfreundlichen Metropolregion Rhein-Neckar. Das malerische Dorf erstreckt sich im grünen Tal der Steinach – einem Nebenfluss des Neckars – und bietet die perfekte Kombination aus naturnahem Wohnen und guter Erreichbarkeit. Gerade für Familien ist die Lage ideal: Eine Grundschule und ein Kindergarten befinden sich in der benachbarten Gemeinde und ist gut erreichbar. Bzgl. der weiterführenden Schulen haben Sie mehrere Auswahlmöglichkeiten.
Die täglichen Wege mit Kindern lassen sich entspannt organisieren. Der nächste Supermarkt ist rasch erreichbar, ebenso eine Apotheke, Metzgerei, Bäckerei, Gastronomie sowie ein Eiscafé.
Wer pendelt oder regelmäßig reist, profitiert von der Nähe zur Autobahn (ca 15 Fahrminuten entfernt) und dem Busnetz nach Heidelberg. Der nächste Flughafen ist in unter einer Stunde erreichbar und bietet Zugang zu nationalen und internationalen Zielen.
Heiligkreuzsteinach, die Gemeinde, bietet eine naturnahe, kinderfreundliche Umgebung mit viel Platz zum Entdecken und Spielen. Die Region ist bekannt für ihre vielfältigen Wander- und Radwege, welche unmittelbar vor Ihrer Haustür beginnen – perfekt für gemeinsame Familienausflüge an der frischen Luft.
Ihr neues Zuhause befindet sich am Ende einer Sackgasse in absolut ruhiger, idyllischer Hanglage.
Sonstige Angaben
Diese Immobilie vereint großzügiges Wohnen, naturnahe Lage und durchdachte Raumaufteilung auf ideale Weise. Ob als klassisches Familienhaus, Mehrgenerationendomizil oder Wohnen & Arbeiten unter einem Dach – hier finden Sie Raum für Ihre persönlichen Lebensentwürfe. Die hochwertige Bausubstanz, die zukunftsfähige Raumaufteilung sowie die einmalige Lage machen dieses Haus zu einem echten Rückzugsort mit Zukunft.
HUGO`s IMMOBILIEN GmbH steht für herausragende Professionalität, kreative Lösungen und umfassende Fachkenntnisse. Als regionaler Immobilienmakler ist es unser Ziel, Ihre Fragen und Wünsche rund um Immobilien kompetent zu beantworten. Deshalb bieten wir Ihnen eine persönliche und individuelle Beratung, die exakt auf Ihre Bedürfnisse abgestimmt ist. Mit unserer Leistungsgarantie gewährleisten wir Ihnen einen umfassenden Service: von einer gründlichen Marktpreiseinschätzung über die ansprechende Vermarktung Ihrer Immobilie mit einem überzeugenden Exposé und virtuellen 360-Grad- Rundgängen bis hin zur Unterstützung beim Verkaufsabschluss und darüber hinaus. Profitieren Sie von unserer langjährigen Erfahrung und Zuverlässigkeit in der Branche, um den bestmöglichen Verkaufspreis für Ihre Immobilie zu erzielen. Zudem bieten wir Ihnen einen attraktiven Nachlass auf Ihre Provision, wenn Sie bei uns eine Immobilie erwerben und gleichzeitig Ihre bestehende Immobilie über uns verkaufen.
Grundriss
>
>
IMG_4812
>
>
Adresse
69253 Heiligkreuzsteinach
Interessante Orte
Preis- und Lageinformationen
Preistrend für Bestandsimmobilien in Heiligkreuzsteinach